ᐅ Grundriss Galeriewohnung ca. 125m2
Erstellt am: 13.12.21 16:59
Bebauungsplan/Einschränkungen
Geschossigkeit: 2
Dachform: Satteldach 1, Neigung 38°
Ausrichtung: Süd/West
Maximale Höhen/Begrenzungen 5 Meter Firsthöhe
Anforderungen der Bauherren
Stilrichtung, Dachform, Gebäudetyp: Satteldach
Keller, Geschosse: 2
Anzahl der Personen, Alter; 2 Personen, 28 und 30
Raumbedarf im EG, OG: ca 4-5 Zimmer
Büro: Familiennutzung oder Homeoffice: Homeoffice 1x pro Woche
Schlafgäste pro Jahr: 12x
konservativ Bauweise
offene Küche mit Kochinsel
Anzahl Essplätze: 4
Kamin: nein
Musik/Stereowand: nein
Balkon, Dachterrasse: Dachterrasse: ca 35m2
Hausentwurf
Von wem stammt die Planung: Bauträger
Was gefällt besonders? Der Wohnraum mit dem 5m hohen First.
Was gefällt nicht? Warum? Unsicherheit da kein Gästebad/WC eingeplant ist und der Flur mir sehr klein vorkommt.
Preisschätzung lt Architekt/Planer: 450 000€
Warum ist der Entwurf so geworden, wie er jetzt ist? ZB
Standardentwurf vom Planer? Ja
Entsprechende/Welche Wünsche wurden vom Architekten umgesetzt?
Bad und Gästezimmer gleich groß
Hallo Zusammen,
wir 2 haben uns eine ca 125m2 große Galeriewohnung in Bayern gekauft.
Das Haus ist ein 8 Parteienhaus und wir teilen uns das DG mit einem weiteren Eigentümer.
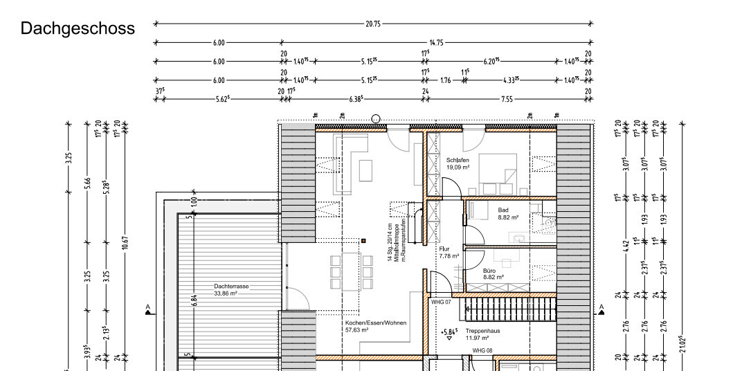
Die Wohnung verfügt im "EG":
- offener Wohnraum mit Treppe in die Gallerie 57m2 (abzg. Dachschräge ca 51m2) Deckenhöhe hier ca 5m am First
- Flur 7,8m2
- Bad 8,8m2
- Büro/Gästezimmer 8,8m2
-Schlafzimmer: 19,1m2
- Dachterrasse in Richtung Westen
im DG:
- offene Gallerie ca10m2
- Büro ca 10 m2
Die 2m Linie ist eingezeichnet.
Zur Gallerie hatten wir uns eine offene Treppe (evtl weiß) mit Handlauf nur auf der Wandseite vorgestellt, sodass es im Raum nicht zu sperrig wird.
Ich bin mir leider beim Grundriss unsicher, ob uns das fehlende Gäste-WC und der etwas kleine Flur auf dauer fehlen bzw stören wird.
Ausserdem hätte ich gerne noch andere Meinungen zum Grundriss bzgl Sinnhaftigkeit und Logik. 🙂
Was meint ihr zu den Fenstern? Ausreichend?
Aktuell sind wir noch in einer Bauphase in der man noch gut umplanen kann. Somit bin ich für jegliche Kritik offen und vielleicht sieht der ein oder andere noch etwas, dass wir übersehen haben.
Lg


Geschossigkeit: 2
Dachform: Satteldach 1, Neigung 38°
Ausrichtung: Süd/West
Maximale Höhen/Begrenzungen 5 Meter Firsthöhe
Anforderungen der Bauherren
Stilrichtung, Dachform, Gebäudetyp: Satteldach
Keller, Geschosse: 2
Anzahl der Personen, Alter; 2 Personen, 28 und 30
Raumbedarf im EG, OG: ca 4-5 Zimmer
Büro: Familiennutzung oder Homeoffice: Homeoffice 1x pro Woche
Schlafgäste pro Jahr: 12x
konservativ Bauweise
offene Küche mit Kochinsel
Anzahl Essplätze: 4
Kamin: nein
Musik/Stereowand: nein
Balkon, Dachterrasse: Dachterrasse: ca 35m2
Hausentwurf
Von wem stammt die Planung: Bauträger
Was gefällt besonders? Der Wohnraum mit dem 5m hohen First.
Was gefällt nicht? Warum? Unsicherheit da kein Gästebad/WC eingeplant ist und der Flur mir sehr klein vorkommt.
Preisschätzung lt Architekt/Planer: 450 000€
Warum ist der Entwurf so geworden, wie er jetzt ist? ZB
Standardentwurf vom Planer? Ja
Entsprechende/Welche Wünsche wurden vom Architekten umgesetzt?
Bad und Gästezimmer gleich groß
Hallo Zusammen,
wir 2 haben uns eine ca 125m2 große Galeriewohnung in Bayern gekauft.
Das Haus ist ein 8 Parteienhaus und wir teilen uns das DG mit einem weiteren Eigentümer.
Die Wohnung verfügt im "EG":
- offener Wohnraum mit Treppe in die Gallerie 57m2 (abzg. Dachschräge ca 51m2) Deckenhöhe hier ca 5m am First
- Flur 7,8m2
- Bad 8,8m2
- Büro/Gästezimmer 8,8m2
-Schlafzimmer: 19,1m2
- Dachterrasse in Richtung Westen
im DG:
- offene Gallerie ca10m2
- Büro ca 10 m2
Die 2m Linie ist eingezeichnet.
Zur Gallerie hatten wir uns eine offene Treppe (evtl weiß) mit Handlauf nur auf der Wandseite vorgestellt, sodass es im Raum nicht zu sperrig wird.
Ich bin mir leider beim Grundriss unsicher, ob uns das fehlende Gäste-WC und der etwas kleine Flur auf dauer fehlen bzw stören wird.
Ausserdem hätte ich gerne noch andere Meinungen zum Grundriss bzgl Sinnhaftigkeit und Logik. 🙂
Was meint ihr zu den Fenstern? Ausreichend?
Aktuell sind wir noch in einer Bauphase in der man noch gut umplanen kann. Somit bin ich für jegliche Kritik offen und vielleicht sieht der ein oder andere noch etwas, dass wir übersehen haben.
Lg
H
Hausbautraum2013.12.21 18:58Hallo,
also den Gang finde ich nicht störend.
Gäste-WC fände ich schon nett.
Das Schlafzimmer und der Allraum sind größer als in unserem 160qm Haus. Da hätte ich lieber ein Gäste-WC.
Andererseits haben wir auch mehrere Jahre in einer Wohnung ohne Gäste-WC gewohnt und es war auch nicht schlimm.
also den Gang finde ich nicht störend.
Gäste-WC fände ich schon nett.
Das Schlafzimmer und der Allraum sind größer als in unserem 160qm Haus. Da hätte ich lieber ein Gäste-WC.
Andererseits haben wir auch mehrere Jahre in einer Wohnung ohne Gäste-WC gewohnt und es war auch nicht schlimm.
Wir kennen das darunterliegende Stockwerk nicht, wie sollen wir da ggf. Verschiebungen von mehrheitlich tragenden Wänden vorschlagen ? - ich sehe hier wenig Beratungspotential, und klares schon gar nicht.
https://www.instagram.com/11antgmxde/
https://www.linkedin.com/company/bauen-jetzt/
https://www.instagram.com/11antgmxde/
https://www.linkedin.com/company/bauen-jetzt/
Ähnliche Themen