Hallo,
wir haben ein Grundstück gekauft, dass als Baulücke in einem Baugebiet aus den 90er Jahren steht. Es ist ein Eckgrundstück und hat zu zwei Seiten Wald. Wir möchten nun ein Einfamilienhaus bauen.
Bebauungsplan/Einschränkungen
Größe des Grundstücks: 1022 qm
Hang: ganz leicht zur Straße abfallend
Grundflächenzahl: 0,3
Geschossflächenzahl: 0,3
Baufenster, Baulinie und -grenze
Randbebauung: nein
Anzahl Stellplatz: 1
Geschossigkeit:1
Dachform:Satteldach 35°
Stilrichtung:Verklinkert
Ausrichtung: Straße im Süden
Maximale Höhen/Begrenzungen: 4m Traufhöhe
weitere Vorgaben:
-
Anforderungen der Bauherren
Stilrichtung, Dachform, Gebäudetyp: Massivbauweise ohne Keller
Keller nein, Geschosse EG oder DG
Anzahl der Personen, Alter: 2 Personen; 28 Jahre, 29 Jahre,1 Kind geplant
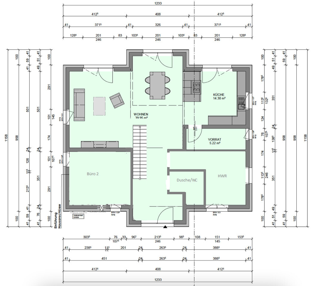
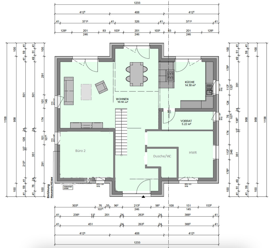
Raumbedarf im EG: offener Wohn-Essbereich, Arbeitszimmer, Hauswirtschaftsraum, Speise, Dusch-WC
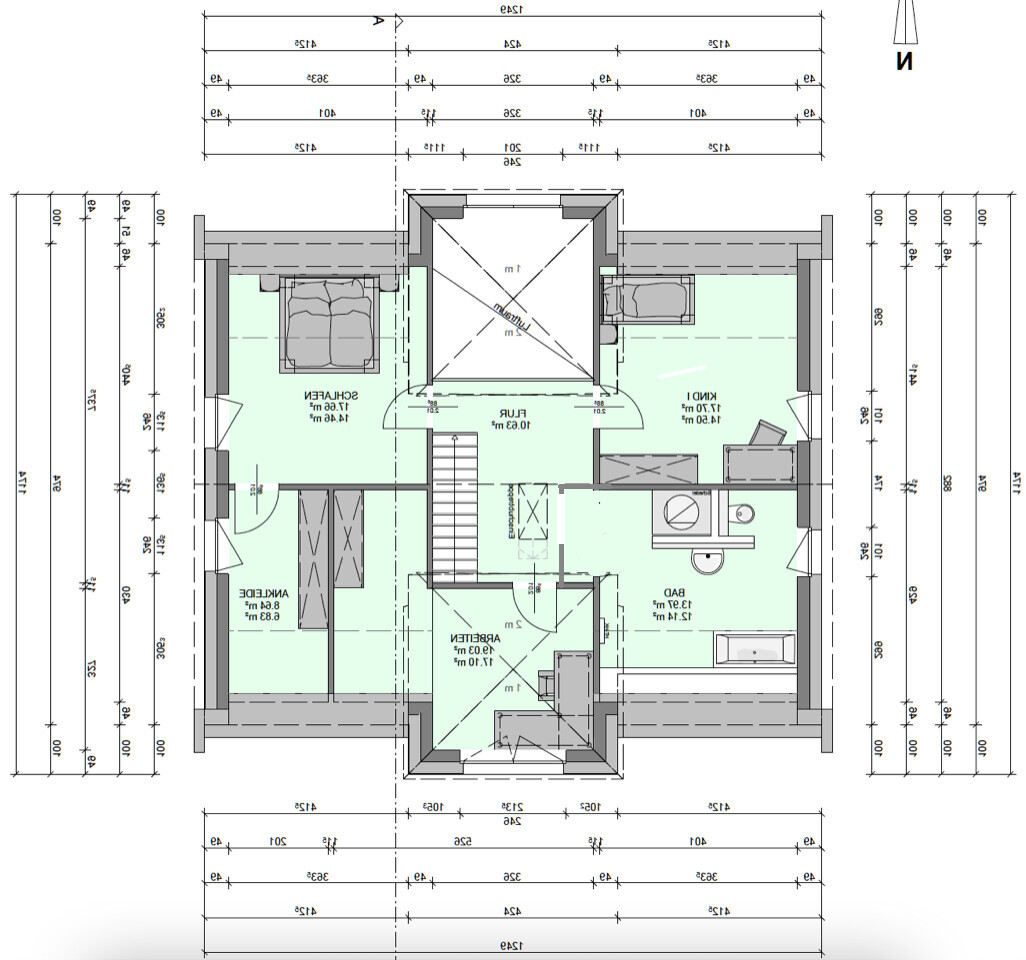
OG: Elternschlafzimmer + Ankleide, 1 Kinderzimmer, Bad mit Wanne und Dusche und 2 Waschbecken, Büro 2
Büro: Familiennutzung oder Homeoffice?: Homeoffice, es werden zwei benötigt
Schlafgäste pro Jahr: 1-2
offene oder geschlossene Architektur: offen
konservativ oder moderne Bauweise: modern
offene Küche, Kochinsel: ja, Insel
Anzahl Essplätze: 6
Kamin: nein
Musik/Stereowand: nein
Balkon, Dachterrasse: nein
Garage, Carport: Doppelgarage mit Abstellraum
Nutzgarten, Treibhaus: vielleicht
weitere Wünsche/Besonderheiten/Tagesablauf, gern auch Begründungen, warum dieses oder das nicht sein soll
Hausentwurf
Von wem stammt die Planung: Von mir selbst mit SweetHome 3D und wurde mit GU durchgesprochen und kalkuliert
Was gefällt besonders? Warum? Die Galerie und die Garderobe mit Durchgang zur Garage
Was gefällt nicht? Warum?: Stauraum könnte knapp werden, Hauswirtschaftsraum evtl zu klein
Preisschätzung lt Architekt/Planer: noch nicht bekannt: 430 TEUR
Persönliches Preislimit fürs Haus, inkl Ausstattung: -
favorisierte Heiztechnik: Luft-Wasser-Wärme-Pumpe
Wenn Ihr verzichten müsst, auf welche Details/Ausbauten
-könnt Ihr verzichten: KFW 55, T-Lösung im Bad, Kücheninsel, bei guten Argumenten: gute Frage
-könnt Ihr nicht verzichten: die offene Galerie soll bleiben
Warum ist der Entwurf so geworden, wie er jetzt ist? ZB
Was macht ihn in Euren Augen besonders gut oder schlecht? Uns gefällt die Aufteilung, eventuell muss die Ankleide noch getauscht werden, je nach Höhe des Kniestock
Was ist die wichtigste/grundlegende Frage zum Grundriss in 130 Zeichen zusammengefasst?
Wir haben im Wohnzimmer viel Licht durch den Wintergarten und die hohen Raumhöhen. Es wird natürlich effektiv Platz verschenkt durch die Bauweise aber das nehmen wir bewusst in Kauf.

wir haben ein Grundstück gekauft, dass als Baulücke in einem Baugebiet aus den 90er Jahren steht. Es ist ein Eckgrundstück und hat zu zwei Seiten Wald. Wir möchten nun ein Einfamilienhaus bauen.
Bebauungsplan/Einschränkungen
Größe des Grundstücks: 1022 qm
Hang: ganz leicht zur Straße abfallend
Grundflächenzahl: 0,3
Geschossflächenzahl: 0,3
Baufenster, Baulinie und -grenze
Randbebauung: nein
Anzahl Stellplatz: 1
Geschossigkeit:1
Dachform:Satteldach 35°
Stilrichtung:Verklinkert
Ausrichtung: Straße im Süden
Maximale Höhen/Begrenzungen: 4m Traufhöhe
weitere Vorgaben:
-
Anforderungen der Bauherren
Stilrichtung, Dachform, Gebäudetyp: Massivbauweise ohne Keller
Keller nein, Geschosse EG oder DG
Anzahl der Personen, Alter: 2 Personen; 28 Jahre, 29 Jahre,1 Kind geplant
Raumbedarf im EG: offener Wohn-Essbereich, Arbeitszimmer, Hauswirtschaftsraum, Speise, Dusch-WC
OG: Elternschlafzimmer + Ankleide, 1 Kinderzimmer, Bad mit Wanne und Dusche und 2 Waschbecken, Büro 2
Büro: Familiennutzung oder Homeoffice?: Homeoffice, es werden zwei benötigt
Schlafgäste pro Jahr: 1-2
offene oder geschlossene Architektur: offen
konservativ oder moderne Bauweise: modern
offene Küche, Kochinsel: ja, Insel
Anzahl Essplätze: 6
Kamin: nein
Musik/Stereowand: nein
Balkon, Dachterrasse: nein
Garage, Carport: Doppelgarage mit Abstellraum
Nutzgarten, Treibhaus: vielleicht
weitere Wünsche/Besonderheiten/Tagesablauf, gern auch Begründungen, warum dieses oder das nicht sein soll
Hausentwurf
Von wem stammt die Planung: Von mir selbst mit SweetHome 3D und wurde mit GU durchgesprochen und kalkuliert
Was gefällt besonders? Warum? Die Galerie und die Garderobe mit Durchgang zur Garage
Was gefällt nicht? Warum?: Stauraum könnte knapp werden, Hauswirtschaftsraum evtl zu klein
Preisschätzung lt Architekt/Planer: noch nicht bekannt: 430 TEUR
Persönliches Preislimit fürs Haus, inkl Ausstattung: -
favorisierte Heiztechnik: Luft-Wasser-Wärme-Pumpe
Wenn Ihr verzichten müsst, auf welche Details/Ausbauten
-könnt Ihr verzichten: KFW 55, T-Lösung im Bad, Kücheninsel, bei guten Argumenten: gute Frage
-könnt Ihr nicht verzichten: die offene Galerie soll bleiben
Warum ist der Entwurf so geworden, wie er jetzt ist? ZB
Was macht ihn in Euren Augen besonders gut oder schlecht? Uns gefällt die Aufteilung, eventuell muss die Ankleide noch getauscht werden, je nach Höhe des Kniestock
Was ist die wichtigste/grundlegende Frage zum Grundriss in 130 Zeichen zusammengefasst?
Wir haben im Wohnzimmer viel Licht durch den Wintergarten und die hohen Raumhöhen. Es wird natürlich effektiv Platz verschenkt durch die Bauweise aber das nehmen wir bewusst in Kauf.
Geschmacksache, aber mir wäre das EG a) viel zu offen und b) Flur/Diele zu groß im Vergleich zu Wohnen. Und trotzdem keine vernünftige Garderobe.
40 qm Wohnen sehe ich nicht. Die 5 qm neben der Treppe sind für mich eher Flur/Diele. Essen ist mit 3,28 m schon sehr schmal und insgesamt zu klein.
Zugang Hauswirtschaftsraum verschenkt auch schon wieder 2 qm.
Das OG hat auch enormes Optimierungspotenzial!
40 qm Wohnen sehe ich nicht. Die 5 qm neben der Treppe sind für mich eher Flur/Diele. Essen ist mit 3,28 m schon sehr schmal und insgesamt zu klein.
Zugang Hauswirtschaftsraum verschenkt auch schon wieder 2 qm.
Das OG hat auch enormes Optimierungspotenzial!
Ich finde das ganz ok so. Auch die Ankleide würde ich nicht drehen, da sonst der Restraum unter der Schräge liegt und nicht oder kaum nutzbar ist.
Wäre es meins, würde ich dem Büro ausschließlich den Erker gönnen und das Schlafzimmer + Schränke erhielte den gesamten Raum planrechts. Grund sind die Schrägen, welche mehr als die Hälfte des Bettes überragen. Da besteht schnell Kopfschmerzgefahr. Das wäre mir für den Rest meines Lebens zu blöd. Unter die Schrägen würde ich mir vom Schreiner jeweils einen schrank schreinern lassen, der die Schräge komplett ausnutzt. Was zu niedrig ist, würde ich abkoffern. Fenster im Giebel würde ich von Mini auf Maxi ändern. Etwa so (ich hoffe, die Vorstellungskraft reicht aus):

Was ich auf jeden Fall ändern würde, ist die Badeinrichtung. Man kommt rein und rennt gegen eine senkrechte Wand bzw. tritt direkt in den eventuellen Nassbereich der Dusche. Das T ist m.E. hier völlig ungeeignet. Weg damit.
Wäre es meins, würde ich dem Büro ausschließlich den Erker gönnen und das Schlafzimmer + Schränke erhielte den gesamten Raum planrechts. Grund sind die Schrägen, welche mehr als die Hälfte des Bettes überragen. Da besteht schnell Kopfschmerzgefahr. Das wäre mir für den Rest meines Lebens zu blöd. Unter die Schrägen würde ich mir vom Schreiner jeweils einen schrank schreinern lassen, der die Schräge komplett ausnutzt. Was zu niedrig ist, würde ich abkoffern. Fenster im Giebel würde ich von Mini auf Maxi ändern. Etwa so (ich hoffe, die Vorstellungskraft reicht aus):
Was ich auf jeden Fall ändern würde, ist die Badeinrichtung. Man kommt rein und rennt gegen eine senkrechte Wand bzw. tritt direkt in den eventuellen Nassbereich der Dusche. Das T ist m.E. hier völlig ungeeignet. Weg damit.
K a t j a schrieb:
Ich finde das ganz ok so. Auch die Ankleide würde ich nicht drehen, da sonst der Restraum unter der Schräge liegt und nicht oder kaum nutzbar ist.
Wäre es meins, würde ich dem Büro ausschließlich den Erker gönnen und das Schlafzimmer + Schränke erhielte den gesamten Raum planrechts. Grund sind die Schrägen, welche mehr als die Hälfte des Bettes überragen. Da besteht schnell Kopfschmerzgefahr. Das wäre mir für den Rest meines Lebens zu blöd. Unter die Schrägen würde ich mir vom Schreiner jeweils einen Schrank schreinern lassen, der die Schräge komplett ausnutzt. Was zu niedrig ist, würde ich abkoffern. Fenster im Giebel würde ich von Mini auf Maxi ändern. Etwa so (ich hoffe, die Vorstellungskraft reicht aus):
[ATTACH alt="Schlafzimmer.jpg"]69904[/ATTACH]
Was ich auf jeden Fall ändern würde, ist die Badeinrichtung. Man kommt rein und rennt gegen eine senkrechte Wand bzw. tritt direkt in den eventuellen Nassbereich der Dusche. Das T ist m.E. hier völlig ungeeignet. Weg damit.Danke für den Input. Das mit dem T werde ich auf jeden Fall ändern. Ist mir so bisher nicht aufgefallen.Das Büro ist mir dann etwas zu klein mit knapp 9m2. Die Fenster in den Giebeln, sind beide Bodentief aber zweigeteilt und nur oben zu öffnen.
nagner99 schrieb:
Wir sind soweit zufrieden, allerdings wird der HAR und das Gästezimmer (Büro 2) noch getauscht, so dass der HAR entsprechend größer wird.wirklich? Bäder übereinander, Hauswirtschaftsraum direkt daneben. Optimale Anschlussbedingungen für die Bäder. Das Gästezimmer wäre dann sehr ungemütlich.Die Garderobe würde mir Kopfschmerzen bereiten...
cryptoki schrieb:
wirklich? Bäder übereinander, Hauswirtschaftsraum direkt daneben. Optimale Anschlussbedingungen für die Bäder. Das Gästezimmer wäre dann sehr ungemütlich.
Die Garderobe würde mir Kopfschmerzen bereiten...Ja muss leider geändert werden, da der HAR eine Außentür zur Garage bekommt und die kann nur recht neben dem Haus entstehen. Das Gästezimmer ist eigentlich ein Büro und bekommt noch ein Fenster nach vorne an der Wand mit ca. 2,3m länge. Dort soll dann ein Schreibtisch stehen und dahinter noch ein Schrank. Habt Ihr Ideen, wie man die Garderoben Problematik lösen kann? Ich habe jetzt nochmal etwas umgezeichnet, allerdings ohne genaue Maße. Somit hätte ich etwa 1,80x0,70 Garderobe neben der Haustür (die dann gespiegelt werden müsste).
Was haltet ihr davon?
P
Pitiglianio21.02.22 11:55Zugang Hauswirtschaftsraum würde ich das "Mundloch" weglassen, und diesen Bereich als Garderobe nutzen. Tür entsprechend versetzen.
Ähnliche Themen