Guten Tag,
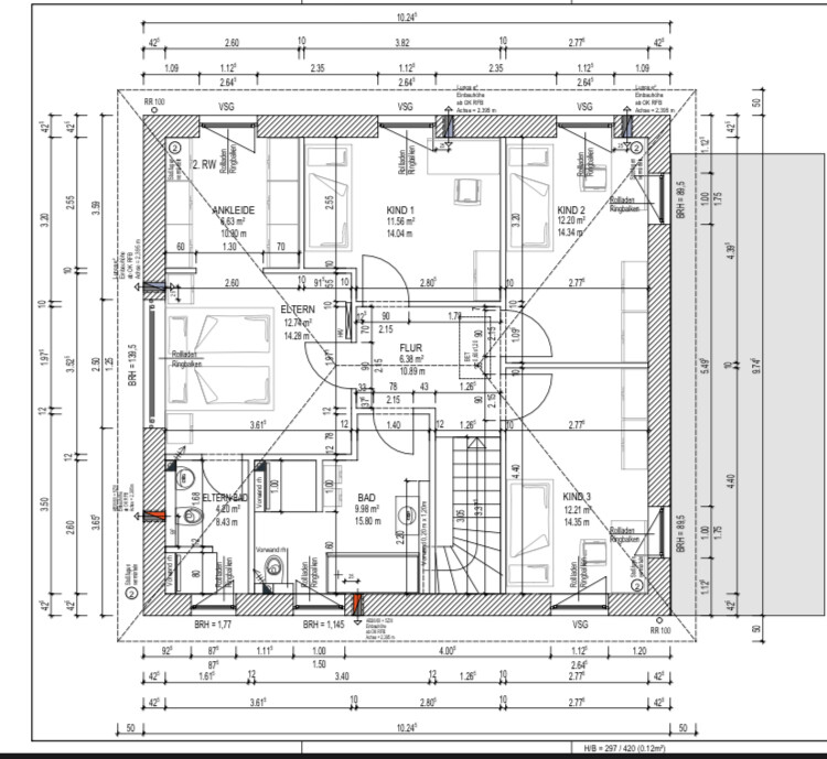
wir haben im Februar ein Grundstück gekauft und haben im August mit dem Bau angefangen. Alles war schön und gut bis die EG Decke draufkam. Der Garten zeigt zur Südost Seite, da auf der Südseite ein riesen Mehrfamilienhaus steht und die Straße zur Westseite zeigt. Ich lade den Grundriss hoch. Es geht mir nicht um die Raumgrößen (Hauswirtschaftsraum und Garderobe ist zu klein). Die Garage wollten wir nach rechts machen weil dort das große Haus steht aber ich habe bemerkt, dass abends an der Wand, wo wir keine Fenster haben doch sehr viel Licht hinkommt und ich ärgere mich total die Fenster nicht auch auf die rechte Seite gesetzt zu haben. Fenster noch nachträglich einzuplanen (Rohbau steht) macht die Baufirma nicht ohne den Bau für 3-4 Monate zu stoppen und dann ist auch die Preisgarantie hin.
Wir haben uns mit der Planung und dem Bau sehr beeilen müssen aufgrund der finanziellen Situation.Die Förderung für KfW55 konnten wir noch in der letzten Woche genehmigen lassen und Zinsen sind auch in die Höhe geschossen, nachdem wir unterschrieben haben.
Wie könnte man die Situation noch retten? Ich brauche wirklich nur produktive Kritik, weil ich das Haus schon so schlecht gemacht habe und pessimistisch bin dass ich noch mehr negativen Input nicht verkraften kann. Ich brauche eure Hilfe.


wir haben im Februar ein Grundstück gekauft und haben im August mit dem Bau angefangen. Alles war schön und gut bis die EG Decke draufkam. Der Garten zeigt zur Südost Seite, da auf der Südseite ein riesen Mehrfamilienhaus steht und die Straße zur Westseite zeigt. Ich lade den Grundriss hoch. Es geht mir nicht um die Raumgrößen (Hauswirtschaftsraum und Garderobe ist zu klein). Die Garage wollten wir nach rechts machen weil dort das große Haus steht aber ich habe bemerkt, dass abends an der Wand, wo wir keine Fenster haben doch sehr viel Licht hinkommt und ich ärgere mich total die Fenster nicht auch auf die rechte Seite gesetzt zu haben. Fenster noch nachträglich einzuplanen (Rohbau steht) macht die Baufirma nicht ohne den Bau für 3-4 Monate zu stoppen und dann ist auch die Preisgarantie hin.
Wir haben uns mit der Planung und dem Bau sehr beeilen müssen aufgrund der finanziellen Situation.Die Förderung für KfW55 konnten wir noch in der letzten Woche genehmigen lassen und Zinsen sind auch in die Höhe geschossen, nachdem wir unterschrieben haben.
Wie könnte man die Situation noch retten? Ich brauche wirklich nur produktive Kritik, weil ich das Haus schon so schlecht gemacht habe und pessimistisch bin dass ich noch mehr negativen Input nicht verkraften kann. Ich brauche eure Hilfe.
S
Sunshine38717.10.22 20:08Genau. Erstmal die Frage, was du jetzt ändern möchtest? Sonst erstmal das Haus zu Ende bauen lassen und die Garage nicht an die Südseite stellen. Dann später nach Baufertigstellung dort noch Fenster rein mache und fertig
O
Osnabruecker17.10.22 20:12Es gibt auch ganz gute Innenarchitekten (angeblich ).
Die können dir auch ohne Fenster ein helles Zimmer zaubern... Farbenspiele, Lichtdesign, Spiegel....
Kopf hoch, weiter machen.
Die können dir auch ohne Fenster ein helles Zimmer zaubern... Farbenspiele, Lichtdesign, Spiegel....
Kopf hoch, weiter machen.
K
K a t j a17.10.22 20:19Was ist das denn für ein unflexibler GU? Da geht es doch nur um ein Fenster - deswegen muss man den Bau nicht stoppen.
An Deiner Stelle würde ich mir den Rohbauer mal schnappen. Frag ihn, was es Dich kostet, im Wohnzimmer auf der Südseite einen Sturz für ein Fenster zusätzlich einzubauen. Wenn der sagt, ja ist möglich, gehst Du wieder zum GU und sagst ihm, dass es kein Problem wäre, das Fenster noch rein zu machen und dann heulst Du ihm mal ordentlich was vor.
Wenn der weiter so ein Drama draus macht, lass wenigstens den Sturz rein setzen. So weißt Du, dass Du an der Stelle jederzeit ein Fenster selber nachrüsten kannst.
An Deiner Stelle würde ich mir den Rohbauer mal schnappen. Frag ihn, was es Dich kostet, im Wohnzimmer auf der Südseite einen Sturz für ein Fenster zusätzlich einzubauen. Wenn der sagt, ja ist möglich, gehst Du wieder zum GU und sagst ihm, dass es kein Problem wäre, das Fenster noch rein zu machen und dann heulst Du ihm mal ordentlich was vor.
Wenn der weiter so ein Drama draus macht, lass wenigstens den Sturz rein setzen. So weißt Du, dass Du an der Stelle jederzeit ein Fenster selber nachrüsten kannst.
Ähnliche Themen