Hausbau - Ratgeber
Bauherrenhilfe
- Bauherrenhilfe vor Vertragsabschluss
-- Warum einen unabhängigen Baubetreuer?
-- Vertragsgrundlagen
-- Bausumme
-- Zahlungsplan zur Kostenkontrolle
-- Pflichten des Bauherren vor Vertragsabschluss
-- Unterlagen beim Hausbau vor Vertragsabschluss
- Bauherrenhilfe nach Vertragsabschluss
-- Bauantrag bei Behörden
-- Bau-Genehmigungsverfahren bei Baubehörden
-- Bauspezifische Versicherungen
-- Bauzeitenplan
-- Baubeginn - die Letzten Pflichten der Bauherrschaft
- Bauherrenhilfe während der Bauzeit
- Gewährleistungsansprüche
- Bauabnahme
Baufinanzierung
- Baufinanzierung - Allgemeine Fragen
- Kreditarten
- Kredit-Konditionen
- Bausparen
- Staatliche Förderungen
- Verkehrswert
- Haushaltsrechnung und Bonität
Hausbau Planung
- Haustypen
- Hausbau Vorbereitungsarbeiten
- Das Baugrundstück
- Baugrund beim Hausbau
- Baurecht
- Gebäudeschutz
- Erdarbeiten und Wasserhaltung
- Stützmauern
- Einfriedung
- Untergeschoss
- Kanalisation
- Tragende Elemente
- Nichttragende Innenwände
- Fundation / Fundament
- Deckenkonstruktionen
- Dächer
- Kaminanlagen
- Treppen Rampen Leitern
- Dachbeläge und Spengler
- Fenster
- Sonnen und Wetterschutz
- Aussenputze
- Einbauten, Küchen, Türen
- Bodenbeläge und Unterlagsböden
- Parkett
- Gips, Wand, Decke
Haustechnik und Energie
- Heiztechnik
- Lüftung und Klimatechnik
- Sanitärtechnik
- Elektrotechnik
- Erneuerbare Energie
Whirlpools / Jacuzzi
Hausbau Magazin
- Baufinanzierung trotz Krise?
- Das Blockhaus
- Moderne Dämmstoffe im Vergleich
- Erker Vor- und Nachteile
- Glasflächen beim Hausbau
- Günstig ein Haus Bauen
- Mediterraner Hausbaustil
- Mehrgenerationenhaus
- Moderne Architektur
- Gartengestaltung leicht gemacht
- Traditioneller Ziegelbau
- Villa als höchster Traum
- Im Eigenheim Ruhestand geniessen
- Altbau sanieren
- Kauf einer Holzgarage
- Immobilienmakler
- Arbeitshandschuhe für den Winter
- Zuhause verschönern
- Outdoor-Plissees
- Schlafzimmer planen
- Terrassenüberdachung
- Wohngebäudeversicherung
- Girokonto für Bauherren finden
- Hauseingang gestalten
- Zaunarten und Eigenschaften
- Der perfekte Grundriss
- Sparsamer heizen im Altbau
- Einfamilienhaus smart finanzieren
- Planung einer PV-Anlage
- Neues Haus
- Immobilienfinanzierung
- Installation einer Photovoltaikanlage
- Asbest erkennen und entfernen
- Gartenpflege im Frühling – worauf achten
- Sauna im Fokus - Wellness zuhause
- Erfolgreich vermieten
- Die perfekte Winterbekleidung
- Das Niedrigenergiehaus
- Der April und seine Stürme
- Architektonische Vielfalt
- Ökologisch und nachhaltig bauen
- Das perfekte Schlafzimmer
- Nachhaltige Energieversorgung
- Zukunftsorientiert bauen
- Nachhaltigkeit beim Hausbau
- Tiny Houses
- Wärmepumpen als nachhaltige Heizvariante
- Maßgeschneiderten Kleiderschrank
- Der richtige Baukredit
- Ratgeber für erfolgreichen Hausbau
- Haus als Altersvorsorge
Do-it-yourself Anleitungen
- Verlegeanleitung für Bodenbeläge und Parkett
- Bodenbeläge und Parkett reinigen und pflegen
- Malerarbeiten am Haus
- Garten Tipps
- Umzug und Reinigung

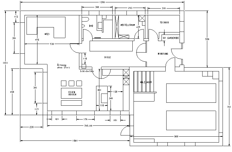
ᐅ Grundriss Einfamilienhaus, Verbesserung

Erstellt am: 16.12.14 11:28
S
Sonnenblu
Hallo zusammen,

wir haben von unserem Planer einen Grundriss bekommen mit dem wir nicht ganz zufrieden waren. Jetzt hab ich ein bißchen selbst rumgezeichnet. Was sagt ihr dazu? Die Fenster sind noch nicht eingezeichnet bzw. von manchen nur die ungefähre Stelle.

LG
Sonnenblu

2D-Grundrissplan eines Hauses mit Küche, Wohnzimmer, Bad und Garage.


Grundriss eines Hauses mit Schlaf- und Ankleidezimmer, Küche, Bad mit Sauna und Speicher
S
Sonnenblu
16.01.15 20:21
Sorry, ich hoffe jetzt ist es besser

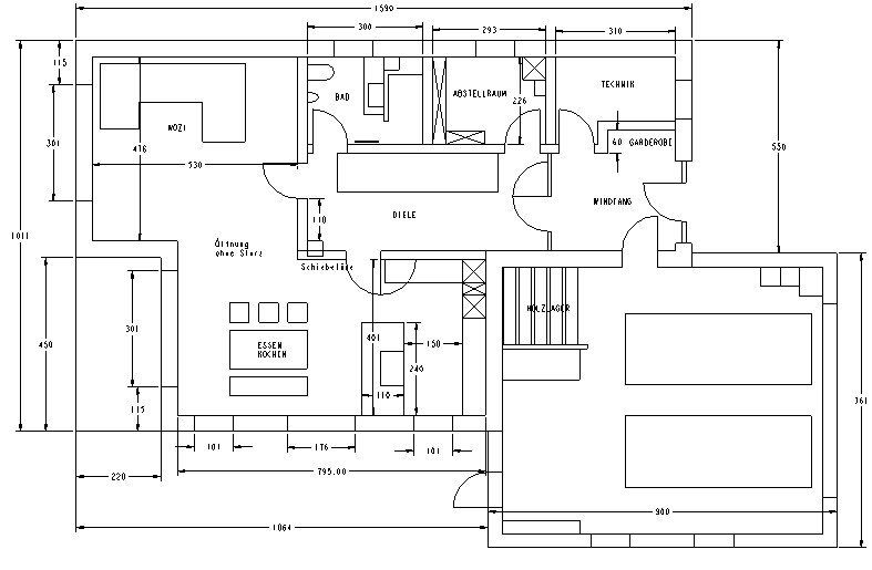
Detaillierter Grundriss eines Hauses mit Küche, Essbereich, Wohnzimmer, Bad und Schlafzimmer.


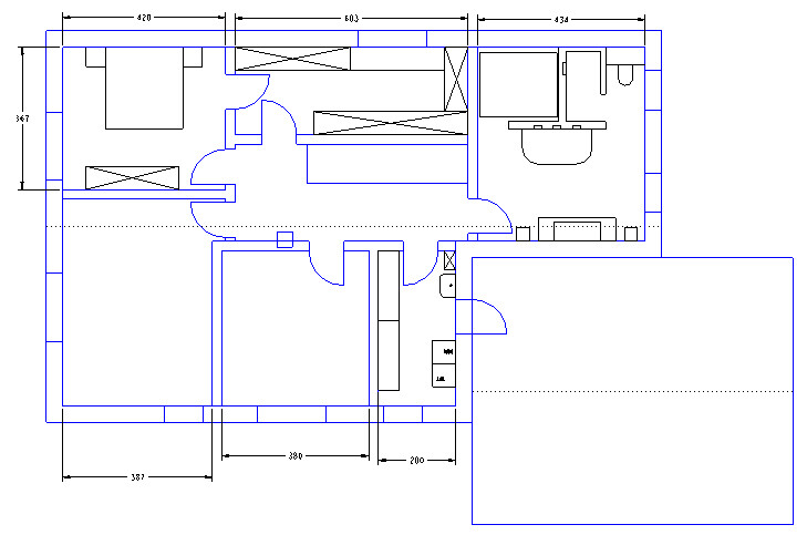
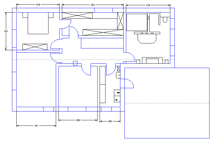
2D Grundriss eines Hauses mit Türen, Fenstern und Innenaufteilung in Blau


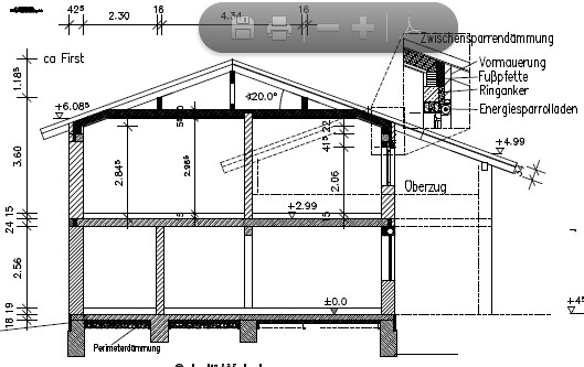
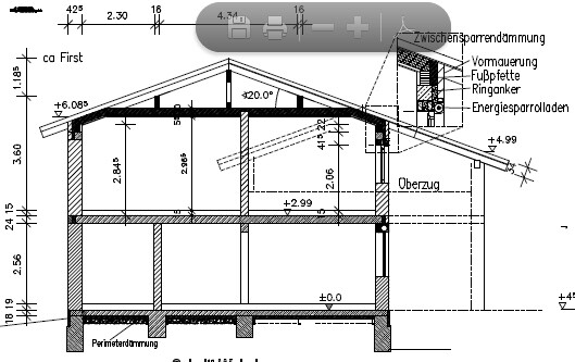
Querschnitt eines Wohnhauses mit Dach, Wänden, Fundamenten und Maßen


3D-Hausmodell einer zweigeschossigen Gebäudeansicht mit dunklem Dach und Fenstern
S
Sonnenblu
19.01.15 20:24
Hat keiner einen Tipp für mich... 🙁
Y
ypg
19.01.15 21:20
Danke für das weisse Blatt 🙂
Ich kann Dir nur etwas zu dem Offenen sagen: hatte ich im alten Reihenhaus, alles nach oben offen, der Raum war beim Giebel so ca. 340 hoch. Das war sehr grosszügig.
Haben wir jetzt teilweise auch wieder übernommen, weil es stylish und grosszügig ist.

Ausserdem würde ich Abstell und Gäste-WC tauschen.

Edit: eine Garage ist kein Ort für eine sachgerechte Lagerung von Kaminholz!
S
Sonnenblu
19.01.15 21:36
Danke ypg,
bei uns würde es so maximal um die 4m hoch werden. In den Räumen kann ich mir das ja noch gut vorstellen, aber in der schmalen Diele hab ich Angst das das zu hoch wirkt. Was denkst du?

Über das tauschen von Bad und WC hab ich auch schon nachgedacht. Aber ich dachte das es so besser ist weil die Wege von Wohnzimmer und Küche (wo wir uns meistens aufhalten) kürzer sind. Wieso würdest du tauschen?

Wo soll man Kaminholz lagern? Wir haben keinen Keller...
Y
ypg
19.01.15 21:56
Es wird dann schon sehr hoch, hat aber dennoch etwas luftiges - gerade im Flur.
Ich würde wegen des kurzen Weges von der Küche zum Abstell tauschen. WC wäre schneller zu erreichen, wenn man mit Notdurft nach Haus kommt.
Google mal nach Kaminholzlagerung: Holz sollte draußen gelagert werden, damit es nicht schimmelt. Wind muss ans Holz! Am besten sind diese Überdachungen vom Baumarkt, worin das Holz auf bestimmte Weise gestapelt wird. Ausrichtung nach Windrichtung ist auch wichtig.

Gruß Yvonne
S
Sonnenblu
22.01.15 11:21
Okay, danke.
kaminholzküche