Grundriss Einfamilienhaus Typ Stadtvilla - Meinungen, Ideen, Feedback

4,50 Stern(e) 4 Votes
Zuletzt aktualisiert 22.11.2025
Sie befinden sich auf der Seite 2 der Diskussion zum Thema: Grundriss Einfamilienhaus Typ Stadtvilla - Meinungen, Ideen, Feedback
>> Zum 1. Beitrag <<

11ant

11ant

Kann ich das nochmal im Original Thread ersetzen oder soll ich das hier nochmal rein setzen?
Der Urpost ist zu "alt", den wirst Du nicht mehr editieren können. Andere machen das aber auch so, das im Threadverlauf nachzuschieben.

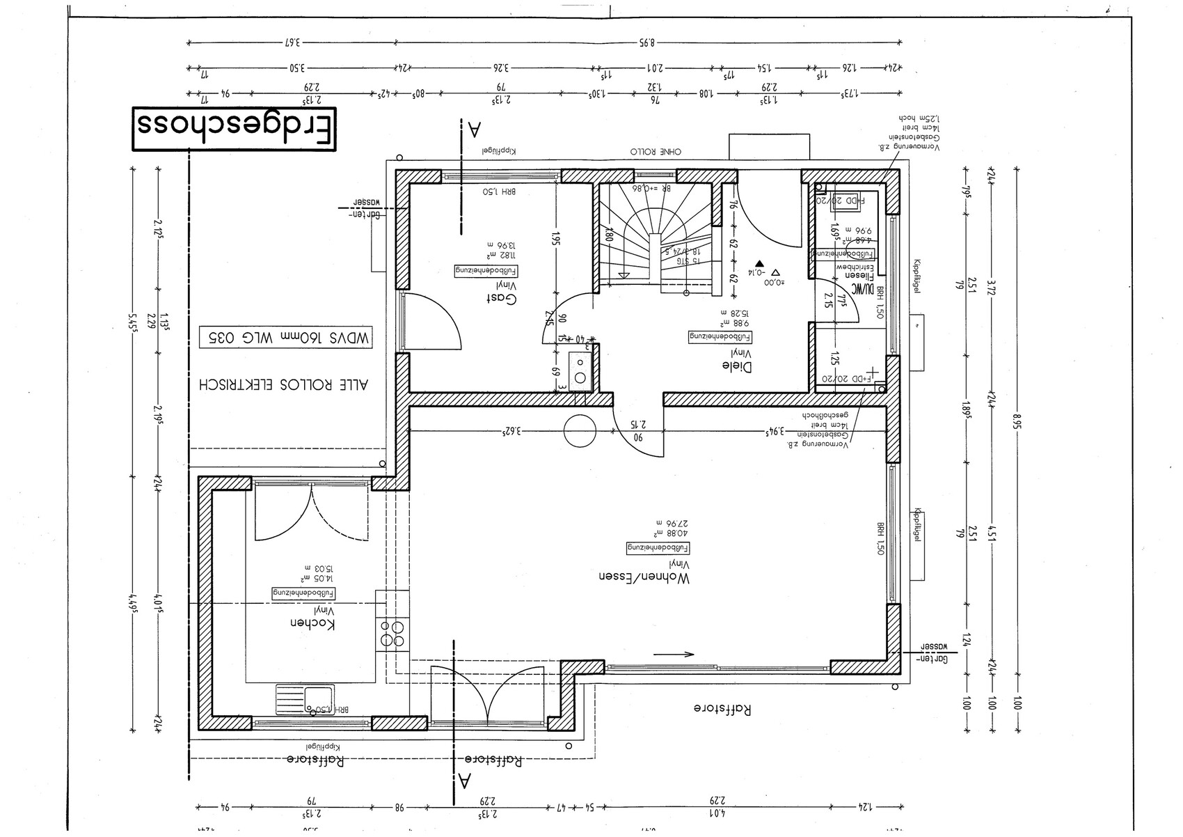
Halbinsel nennt sich es, wenn es an einer Seite an die Wand anschliesst?
Eine Halbinsel hat an einer Seite eine Verbindung zum Festland. Das kann hier eine Wand sein, oder eine Küchenzeile.
 
H

haydee

Halbinsel nennt sich es, wenn es an einer Seite an die Wand anschliesst?

Aber Danke, so hatte ich das mir auch überlegt, dann könnte man da frühstücken
Genau.
100 cm Arbeitsbreite hat auch den Vorteil das man beim Ausrollen von Teig mehr in die Tiefe kann. Die 60er ist mir regelmäßig zu schmal und ich muß auf den Esstisch ausweichen.

Wo ist der Ausgang zur Terrasse?
Nicht das du um die Halbinsel, Küchenzeile etc rumlaufen mußt nur weil du dir ein Glas Wasser auf die Terrasse stellen willst.
 
H

haydee

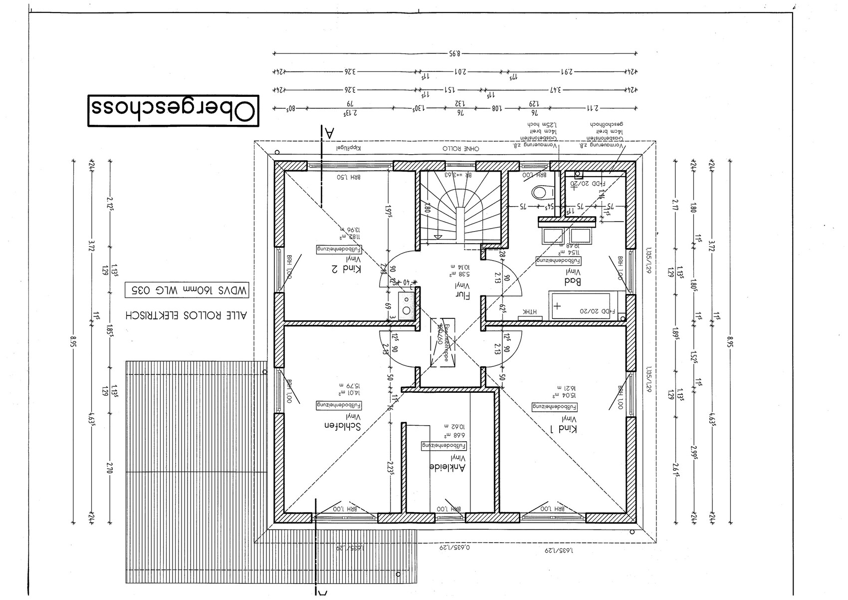
Überlege dir ob du die Ankleide um 20 cm verkleinerst.
Dann kannst du die Kinderzimmer und Schlafzimmertüre verschieben und an die Wand hinter beiden Zimmer, würde ein Schrank passen
 
M

matte

Ich würde mir außerdem überlegen, ob es nicht sinnvoller wäre, das Schlafzimmer über die Ankleide zu begehen.
Wenn einer von beiden eher aufstehen muss, dann ist das viel einfacher, wenn die Ankleide kein gefangener Raum ausm Schlafzimmer ist, sondern andersrum.
 
Zuletzt aktualisiert 22.11.2025
Im Forum Grundrissplanung / Grundstücksplanung gibt es 2535 Themen mit insgesamt 87988 Beiträgen


Ähnliche Themen zu Grundriss Einfamilienhaus Typ Stadtvilla - Meinungen, Ideen, Feedback
Nr.ErgebnisBeiträge
1Pfiffige Schlafzimmer Idee mit Ankleide gesucht 19
2Grundriss Schlafzimmer, Ankleide und Bad en Suite - Seite 336
3Grundriss Schlafzimmer mit Bad und Ankleide 62
4Grundriss Einfamilienhaus mit Doppelgarage und Terrasse - Seite 219
5Grundrissplanung - Wie Schlafzimmers & Ankleide anordnen? 11
6Waschmaschine und Trockner in Ankleide? 16
7Teppich im Schlafzimmer trotz Fußbodenheizung? 36
8Kinderzimmer und Schlafzimmer - Welche Größe ist zu empfehlen? - Seite 256
9Verbindung Schlafzimmer / Ankleidezimmer / Bad 16
10Überdachte Terrasse als Wohnfläche anrechnen lassen? - Seite 651
11Durchbruch Bad und Ankleide ohne Türe? - Seite 212
12Neubau Grundflächenzahl ausnutzen, Terrasse überbauen - Seite 321
13Grundriss Doppelhaushälfte - Feedback erwünscht :-) - Seite 212
14Terrasse mit Plenera Dielen 32
15Begehbare Garage (Terrasse) - Seite 211
16Terrasse mit Platten über Eck (L-Form). Realisierung Gefälle 12
17Terrasse erstellen lassen 11
18Terrasse auf Flachdach - Aufbau - Belag 12
19Fundament/Untergrund WPC Terrasse 36
20Terrasse und Auffahrt 55

Oben