ᐅ Grundriss Einfamilienhaus mit 3 Kinderzimmern und Doppelgarage
Erstellt am: 07.07.23 11:37
K
Kenche2024
Hallo zusammen,
meine Frau und ich wollen in einem Neubaugebiet ein Einfamilienhaus bauen.
Wir haben den ersten Entwurf unseres Planers erhalten und würden uns gerne Anregungen / Verbesserungsvorschläge einholen.
Unsere groben Anforderungen:
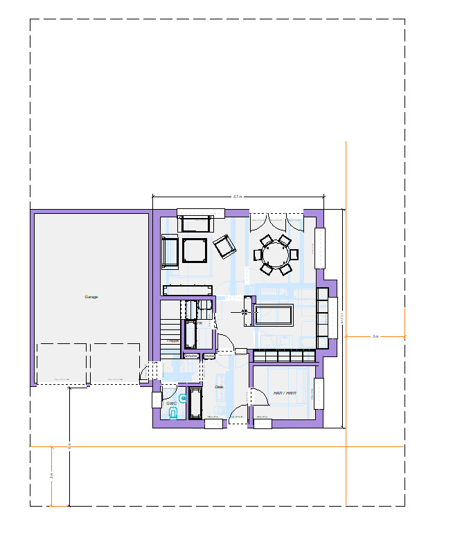
- Zusätzliches Zimmer im EG als Büro / Gästezimmer
- Duschbad im EG
- 3 Kinderzimmer im OG
- Doppelgarage
Was uns im Entwurf nicht gefällt:
- Nebeneingang außerhalb der Garage
- Allraum zu klein
- Eingangsbereich etwas knapp bemessen, kleine Garderobe
- Aufteilung im OG
-> Elternschlafzimmer sehr groß (brauchen eigentlich keine Ankleide)
-> 1 Kinderzimmer groß, die anderen 2 schon sehr klein (am besten alle +/- 15 qm)
Vielleicht hat der ein oder andere Optimierungsvorschläge. Was wir uns überlegt haben ist, den Dachboden auszubauen und eine Art Studio für uns einzurichten bzw. den Ausbau vorzubereiten. Aktuell haben wir 2 Kinder (2 1/2 & kurz vor Geburt). 3 Kinder sind zwar geplant, aber man weiß ja nie... So bräuchten wir aktuell im OG nur 3 Zimmer, die wir alle großzügiger schneiden könnten und hätten wahrscheinlich sogar noch Platz für einen Abstellraum oder Kinderbad. Wäre natürlich mit deutlich mehr Kosten verbunden. Was meint ihr dazu?
Danke für Eure Hilfe und viele Grüße
Kenche2024



meine Frau und ich wollen in einem Neubaugebiet ein Einfamilienhaus bauen.
Wir haben den ersten Entwurf unseres Planers erhalten und würden uns gerne Anregungen / Verbesserungsvorschläge einholen.
Unsere groben Anforderungen:
- Zusätzliches Zimmer im EG als Büro / Gästezimmer
- Duschbad im EG
- 3 Kinderzimmer im OG
- Doppelgarage
Was uns im Entwurf nicht gefällt:
- Nebeneingang außerhalb der Garage
- Allraum zu klein
- Eingangsbereich etwas knapp bemessen, kleine Garderobe
- Aufteilung im OG
-> Elternschlafzimmer sehr groß (brauchen eigentlich keine Ankleide)
-> 1 Kinderzimmer groß, die anderen 2 schon sehr klein (am besten alle +/- 15 qm)
Vielleicht hat der ein oder andere Optimierungsvorschläge. Was wir uns überlegt haben ist, den Dachboden auszubauen und eine Art Studio für uns einzurichten bzw. den Ausbau vorzubereiten. Aktuell haben wir 2 Kinder (2 1/2 & kurz vor Geburt). 3 Kinder sind zwar geplant, aber man weiß ja nie... So bräuchten wir aktuell im OG nur 3 Zimmer, die wir alle großzügiger schneiden könnten und hätten wahrscheinlich sogar noch Platz für einen Abstellraum oder Kinderbad. Wäre natürlich mit deutlich mehr Kosten verbunden. Was meint ihr dazu?
Danke für Eure Hilfe und viele Grüße
Kenche2024
11ant schrieb:
Nicht die Treppe, sondern das Pultdach ist hier im falschen Film.Ich rede sowieso vom Satteldach -Haus!ypg schrieb:
Ich rede sowieso vom Satteldach -Haus!Dabei stünde die Treppe dann allerdings firstnah und damit nicht widersinnig. Ein Satteldach wäre wohl kleidsam für eine Stadtvilla, während die Grundrisse hier geradezu klischeemäßig zum Genre der Anstattvilla passen ;-)https://www.instagram.com/11antgmxde/
https://www.linkedin.com/company/bauen-jetzt/
11ant schrieb:
Dabei stünde die Treppe dann allerdings firstnah und damit nicht widersinnig. Ein Satteldach wäre wohl kleidsam für eine Stadtvilla, während die Grundrisse hier geradezu klischeemäßig zum Genre der Anstattvilla passen ;-)Mien Jung:Ich versetze den Hauseingang und die Treppe. Was vom Grundriss bleibt, ist quasi nichts. Vielleicht das Büro planunten rechts.
Was Du auch wieder mit Deiner Anstattvilla ankommst… Du drehst mit Deinem Antworten Pirouetten ohne konstruktiv zu sein.
ypg schrieb:
Ich versetze den Hauseingang und die Treppe. Was vom Grundriss bleibt, ist quasi nichts. Vielleicht das Büro planunten rechts.Das entspricht auch ungefähr meiner Erwartung der geringen Übereinstimmung eines besseren Entwurfes mit dem vorgelegten.ypg schrieb:
Was Du auch wieder mit Deiner Anstattvilla ankommst… Du drehst mit Deinem Antworten Pirouetten ohne konstruktiv zu sein.Diese Behauptung ist dreistest wahrheitswidrig: ich habe zuletzt in Beitrag #16 eine ausführliche Diagnose einschließlich einfachst umzusetzender Therapieempfehlung geben, ebenso (mit einer noch schlichteren zackigen Einzelmaßnahme in Beitrag #24.#1 eine Grundrissvorlage zu importieren, muß zwingend glücklos bleiben, wenn diese Vorlage einen anderen "Familienstand" hat;
#2 Bauzeichner sind auf die Destillation von Werkplänen aus positiv als funktionierend geprüften Entwürfen trainiert,
nicht jedoch auf die Entwicklung eigener Entwürfe oder Modifikationen;
#3 die Einrückung des EG hat den ärgerlichen Effekt der unnötigen Komprimierung des Allraumes und ist dabei
#4 zur Verschattung gegen die Morgensonne auch noch eine völlig überzogene Maßnahme.
Und was wahr ist, muß wahr bleiben: der vorliegende Entwurf verwendet Grundrisse der Kategorie "Anstattvilla Allerstandardst", während ein Satteldach für eine Stadtvilla ohne Anführungszeichen kleidsam wäre, für eine "Stadtvilla" aka Anstattvilla jedoch eine beinahe schon kecke Variation.
Also, ich fasse die Maßnahmen zusammen:
#A nur mit Raumprogramm und Wunschzettel, aber ausdrücklich ohne Vorlage
#B zu einem freien Architekten statt zu einem GU-Inklusivplaner gehen
#C sich nicht wundern, wenn der das schwierigere Stockwerk zuerst entwickelt
Das alles sind einfache Maßnahmen - aber noch lange kein Grund zu der Behauptung, ich hätte keinen Rat gegeben, sondern mich auf meinen Spott für die Anführungszeichen-Stadtvilla beschränkt :-(
https://www.instagram.com/11antgmxde/
https://www.linkedin.com/company/bauen-jetzt/
Wenn der TE wirklich bereit ist, 600K für die Hütte hinzublättern, wundere ich mich doch über den eher bescheidenen Entwurf. Ich weiß nicht genau, ob wir momentan noch bei 3k/qm sind, aber für das Budget würde ich schon um die 200qm erwarten. Die sehe ich nicht.
Ich bringe einfach mal ein Beispiel mit Dachausbau bei 1m Kniestock und eine Gesamthöhe von um die 10,60m. Über den Daumen knapp über 200qm.


Aus dem Hauswirtschaftsraum in den Garten würde ich noch eine Terrassentür planen. Die hab ich auf die Schnelle vergessen.
Ob man die Stütze neben der Kücheninsel zwingend brauch, kann ich leider nicht abschätzen. Ohne wäre natürlich schöner.


Die Kinderzimmer haben so um die 18 bis 19 qm. Wenn das zu viel den Guten ist, kann man auch kleinere Kinderzimmer planen und dafür die Gäste mit ins OG planen:

Zumindest kann der TE so mal überlegen, ob das dann zu viel Haus für ihn wäre. 🙂

Ich bringe einfach mal ein Beispiel mit Dachausbau bei 1m Kniestock und eine Gesamthöhe von um die 10,60m. Über den Daumen knapp über 200qm.
Aus dem Hauswirtschaftsraum in den Garten würde ich noch eine Terrassentür planen. Die hab ich auf die Schnelle vergessen.
Ob man die Stütze neben der Kücheninsel zwingend brauch, kann ich leider nicht abschätzen. Ohne wäre natürlich schöner.
Die Kinderzimmer haben so um die 18 bis 19 qm. Wenn das zu viel den Guten ist, kann man auch kleinere Kinderzimmer planen und dafür die Gäste mit ins OG planen:
Zumindest kann der TE so mal überlegen, ob das dann zu viel Haus für ihn wäre. 🙂
K a t j a schrieb:
Ich bringe einfach mal ein Beispiel mit DachausbauDu bist gleich bei einem 2-Geschosser plus Dachausbau - ok. Wäre auch interessant, wenn man bedenkt, dass man bei 470qm Grundstück noch etwas Garten haben will. Ich hätte jetzt ein etwas spitzeres Dach gewählt und den Kniestock schon bei ca. 160 oder so gesehen. Da hat man dann adäquate Raumaufteilungen auf 3 Ebenen. Im Dachausbau dann eben nur noch Schlafzimmer und Speicher, im OG Gast und drei Kinderzimmer.
Ähnliche Themen