ᐅ Grundriss Einfamilienhaus mit 3 Kinderzimmern und Doppelgarage
Erstellt am: 07.07.23 11:37
Kenche202407.07.23 11:37
Hallo zusammen,
meine Frau und ich wollen in einem Neubaugebiet ein Einfamilienhaus bauen.
Wir haben den ersten Entwurf unseres Planers erhalten und würden uns gerne Anregungen / Verbesserungsvorschläge einholen.
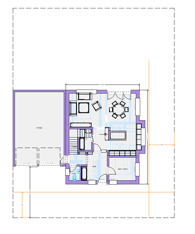
Unsere groben Anforderungen:
- Zusätzliches Zimmer im EG als Büro / Gästezimmer
- Duschbad im EG
- 3 Kinderzimmer im OG
- Doppelgarage
Was uns im Entwurf nicht gefällt:
- Nebeneingang außerhalb der Garage
- Allraum zu klein
- Eingangsbereich etwas knapp bemessen, kleine Garderobe
- Aufteilung im OG
-> Elternschlafzimmer sehr groß (brauchen eigentlich keine Ankleide)
-> 1 Kinderzimmer groß, die anderen 2 schon sehr klein (am besten alle +/- 15 qm)
Vielleicht hat der ein oder andere Optimierungsvorschläge. Was wir uns überlegt haben ist, den Dachboden auszubauen und eine Art Studio für uns einzurichten bzw. den Ausbau vorzubereiten. Aktuell haben wir 2 Kinder (2 1/2 & kurz vor Geburt). 3 Kinder sind zwar geplant, aber man weiß ja nie... So bräuchten wir aktuell im OG nur 3 Zimmer, die wir alle großzügiger schneiden könnten und hätten wahrscheinlich sogar noch Platz für einen Abstellraum oder Kinderbad. Wäre natürlich mit deutlich mehr Kosten verbunden. Was meint ihr dazu?
Danke für Eure Hilfe und viele Grüße
Kenche2024




meine Frau und ich wollen in einem Neubaugebiet ein Einfamilienhaus bauen.
Wir haben den ersten Entwurf unseres Planers erhalten und würden uns gerne Anregungen / Verbesserungsvorschläge einholen.
Unsere groben Anforderungen:
- Zusätzliches Zimmer im EG als Büro / Gästezimmer
- Duschbad im EG
- 3 Kinderzimmer im OG
- Doppelgarage
Was uns im Entwurf nicht gefällt:
- Nebeneingang außerhalb der Garage
- Allraum zu klein
- Eingangsbereich etwas knapp bemessen, kleine Garderobe
- Aufteilung im OG
-> Elternschlafzimmer sehr groß (brauchen eigentlich keine Ankleide)
-> 1 Kinderzimmer groß, die anderen 2 schon sehr klein (am besten alle +/- 15 qm)
Vielleicht hat der ein oder andere Optimierungsvorschläge. Was wir uns überlegt haben ist, den Dachboden auszubauen und eine Art Studio für uns einzurichten bzw. den Ausbau vorzubereiten. Aktuell haben wir 2 Kinder (2 1/2 & kurz vor Geburt). 3 Kinder sind zwar geplant, aber man weiß ja nie... So bräuchten wir aktuell im OG nur 3 Zimmer, die wir alle großzügiger schneiden könnten und hätten wahrscheinlich sogar noch Platz für einen Abstellraum oder Kinderbad. Wäre natürlich mit deutlich mehr Kosten verbunden. Was meint ihr dazu?
Danke für Eure Hilfe und viele Grüße
Kenche2024
kbt0907.07.23 11:54
Für Gedankenspiele mit DG-Ausbau ... dort ist gar nicht genügend Stehhöhe vorhanden ... schon eine Treppenposition müsste neu geschaffen werden.
hanghaus202307.07.23 12:17
Schieb doch die Garage 1,5 m Richtung Strasse. Dann hast den Seiteneingang zur Garage. Sparst noch 9 m2 Pflaster.
Dann nutze die 9 m Grenzbebauung aus. Der 1 m Wand kostet sicher nicht viel mehr als der schiefe Dachüberstand
Mir würde das Haus nicht gefallen.
Dann nutze die 9 m Grenzbebauung aus. Der 1 m Wand kostet sicher nicht viel mehr als der schiefe Dachüberstand
Mir würde das Haus nicht gefallen.
kbt0907.07.23 12:50
Ich finde den Nebeneingang so genau richtig. Dann kann man nämlich so in der Garage parken, dass man den Zugang zu den Fahrrädern optimiert. Und, wenn man vom Großeinkauf nach Hause kommt, kann man genausogut den Nebeneingang vor der Garage nutzen .. mit gutem Zugriff auf den geöffneten Kofferraum. Regengeschützt ist es auch.
11ant07.07.23 13:10
Ich staune immer wieder über den Spaß am regelrechten Einplanen der Pfuschertaschen, und zweifle im übrigen an der Flunderplattheit des Grundstückes wie in den Zeichnungen dargestellt.
https://www.instagram.com/11antgmxde/
https://www.linkedin.com/company/bauen-jetzt/
https://www.instagram.com/11antgmxde/
https://www.linkedin.com/company/bauen-jetzt/
hanghaus202307.07.23 13:18
der TE schreibt:
Die Autos etwas weiter nach hinten dann kann man gut in die Nebeneingangstür. Man kommt mit dem Fahrad auch gut in der Mitte durch.
die Einfahrt hat 2% Gefälle zur Strasse.
Kenche2024 schrieb:
Was uns im Entwurf nicht gefällt:
- Nebeneingang außerhalb der Garage
Die Autos etwas weiter nach hinten dann kann man gut in die Nebeneingangstür. Man kommt mit dem Fahrad auch gut in der Mitte durch.
die Einfahrt hat 2% Gefälle zur Strasse.
Ähnliche Themen