kronos215 schrieb:
Anzahl Stellplatz
die anliegende Straße sollte genügend Stellplätze bereitstellen. Eine Garage ist zudem vorgesehen.Wie viele Stellplätze fordert euer Bebauungsplan pro Wohneinheit? Ihr habt einen Stellplatz geplant, denn der Platz vor der Garage wird in der Regel nicht als eigener Stellplatz gewertet. Viele Bebauungspläne fordern 1,5 oder 2 Stellplätze je Wohneinheit.K
kronos21524.05.25 08:5011ant schrieb:
wobei der TE bislang nicht aufgeklärt hat, wo der untypische Wert sonst her rührt: 24 cm Stein plus 10 cm Dämmung ? - irgendwas soll(te) sich der Planer ja dabei gedacht habenes ist noch nicht entschieden, ob Holz oder Stein. Wir tendieren aber stark zu einem Holzhaus. Wir sind nicht vom Fach und haben die Wandstärken als iO angenommen.11ant schrieb:
Soll mit der Ausschreibung demnach garkeine solche gemeint sein, sondern eine Preisumfrage mit nur Einzugsfertig-GU´ als Teilnehmern ?; und soll dann ein Excel-Orakel den Gewinner des Castings ermitteln ?eine Preisumfrage ist gemeint. Wir wollen keine einzelnen Gewerke beauftragen, da wir die Koordinierung dieser vermeiden wollen und alles aus einer Hand haben möchten (auch hinsichtlich Garantie)hanse987 schrieb:
Wie viele Stellplätze fordert euer Bebauungsplan pro Wohneinheit?das ist nicht definiert, es findet sich dazu kein Absatz. Der Plan stammt aus den 60ern. Das Grundstück befindet sich als einziges in einer kurzen Seitenstraße. Abgesehen von baurechtlichen Vorschriften sollten Stellplätze rein praktisch und im Alltag hier keine Probleme darstellen.
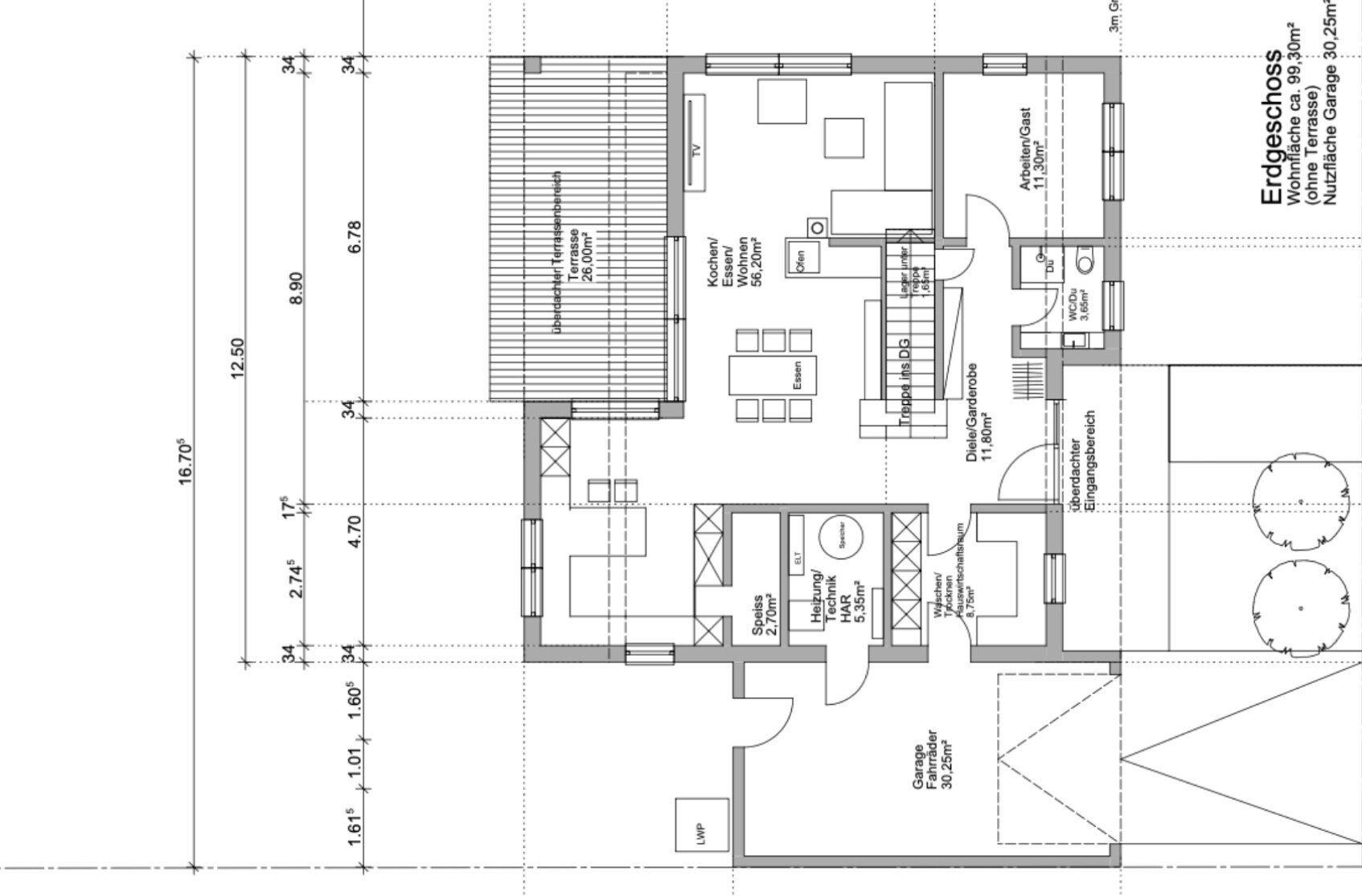
Ich möchte erwähnen, dass die Kostenschätzung von 540.000€ auf einem qm-Preis von 2300€/qm + Nebenkosten beruht. Das kommt mir deutlich zu niedrig vor.
Ich bin immer mehr dazu geneigt doch zu einem Standard-Grundriss zu tendieren. Das Budget liegt bei "nur" 550.000€ und das vertrauen in eine neue und gelungene Architektenplanung ist relativ gering.
Liegt die Schwäche des Entwurfs nicht vor allem in der Platzierung der Treppe? Mir scheint, als sei durch den Verlauf von links nach rechts das gesamte Haus in "Nord" und "Süd" unterteilt. Die Räume ordnen sich oberhalb und unterhalb der Treppe an. Dort befindet sich im OG allerdings das abfallende Dach und die Herausforderung des niedrigen Kniestocks. Ergebnis ist eine riesige Gaube im Norden und 4 Dachfenster im Süden.
K
kronos21524.05.25 09:07um 90 Grad nach links gekippt scheint mir auf den ersten Blick dieser Grundriss eines EG unserem Wunsch nach mehr Licht deutlich näher zu kommen.
Die Garage würde sich rechts wohl auch an den Technikraum anbinden können. Vorsprünge könnten reduziert und/oder verschoben werden.
Man verliert leider die größere Fensterfront nach rechts zu den Feldern. Allerdings wird beides kaum umsetzbar sein (links offen nach Süden für Lichteinfall, rechts offen für die Aussicht und gleichzeitig Anbindung einer Garage mit 5m Abstand zur Straße)


Die Garage würde sich rechts wohl auch an den Technikraum anbinden können. Vorsprünge könnten reduziert und/oder verschoben werden.
Man verliert leider die größere Fensterfront nach rechts zu den Feldern. Allerdings wird beides kaum umsetzbar sein (links offen nach Süden für Lichteinfall, rechts offen für die Aussicht und gleichzeitig Anbindung einer Garage mit 5m Abstand zur Straße)
kronos215 schrieb:
das ist nicht definiert, es findet sich dazu kein Absatz.Dann gilt die Stellplatzverordnung Deines Landes.kronos215 schrieb:
um 90 Grad nach links gekipptDa Süden ja planunten auf Sieben Uhr liegt und Du im Norden und Osten Felder hast, Im Osten aber Straßenlärm, würde ich diese Ausrichtung nehmenDie Garage kommt dann in den schrägen Osten, und zwar vorn drei Meter, nach hinten breiter.
Zu klären ist, ob die Garage auch die Flucht einhalten muss oder zurück versetzt stehen darf.
Danach wird sich die Lage des Einganges richten. Dann die Beiräume natürlich anders anordnen.. die Treppe müsste auch woanders hin und sich dem Dachverlauf anpassen. Hier hätte sie zumindest schon den richtigen Verlauf (Traufe/First)
Bei Nähe Garage/Eingang auf einen Zweitflur durch den rein (im Sinne von sauber) zu haltenden Hauswirtschaftsraum verzichten. Hauswirtschaftsraum und Speis zusammenlegen. Das funktioniert. Oder Hauswirtschaftsraum in den gewonnenen Qm im DG unterbringen. Letzendlich sollen auch Qm eingespart werden. WZ ist zu groß. Naja, das kann man schon zurechtzuppeln. Die gewachsene Tiefe des Hauses kann man unter Dach besser nutzen. Aber stauchen muss man wohl das ein oder andere.
K
kronos21524.05.25 11:21ypg schrieb:
Da Süden ja planunten auf Sieben Uhr liegt und Du im Norden und Osten Felder hast, Im Osten aber Straßenlärm, würde ich diese Ausrichtung nehmen
[ATTACH alt="IMG_0742.jpeg"]91535[/ATTACH]
Die Garage kommt dann in den schrägen Osten, und zwar vorn drei Meter, nach hinten breiter.
Zu klären ist, ob die Garage auch die Flucht einhalten muss oder zurück versetzt stehen darf.
Danach wird sich die Lage des Einganges richten. Dann die Beiräume natürlich anders anordnen.. die Treppe müsste auch woanders hin und sich dem Dachverlauf anpassen. Hier hätte sie zumindest schon den richtigen Verlauf (Traufe/First)
Bei Nähe Garage/Eingang auf einen Zweitflur durch den rein (im Sinne von sauber) zu haltenden Hauswirtschaftsraum verzichten. Hauswirtschaftsraum und Speis zusammenlegen. Das funktioniert. Oder Hauswirtschaftsraum in den gewonnenen Qm im DG unterbringen. Letzendlich sollen auch Qm eingespart werden. WZ ist zu groß. Naja, das kann man schon zurechtzuppeln. Die gewachsene Tiefe des Hauses kann man unter Dach besser nutzen. Aber stauchen muss man wohl das ein oder andere.Danke für den Vorschlag. Ich habe jedoch dein Eindruck dass man auf der Terrasse dann etwas eingeengt zwischen Nachbarhecke (welche direkt auf der Grundstücksgrenze beginnt) und eigener Hauswand ist. Wenn es zudem nicht gerade Hochsommer ist und die Sonne etwas tiefer steht, könnte ich mir vorstellen, dass der Schattenwurf des Nachbargebaeudes und durch die Hecke nur wenige Meter Sonne übrig lässt. Die Hecke ist ca 1,50m hoch und wäre ca 3m vom Haus entfernt, wenn dieses nicht schmaler wirdÄhnliche Themen