ᐅ Grundriss Einfamilienhaus L-Form mit Doppelgarage - Eure Meinung
Erstellt am: 14.08.13 13:44
S
stefanhEin freundliches "Servus" aus Bayern!
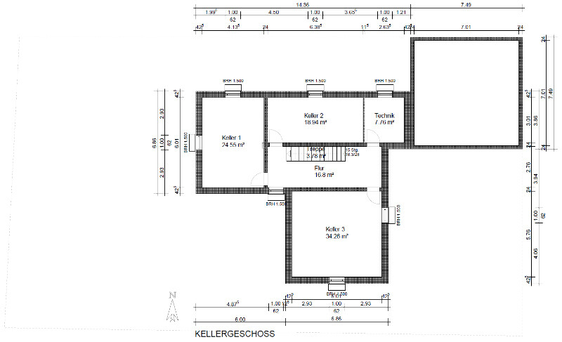
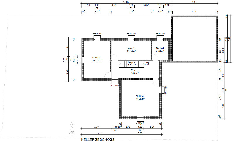
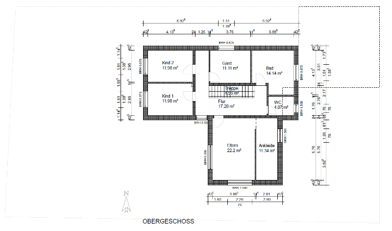
Jetzt habe ich einen ersten Entwurf unseres Einfamilienhaus für die Bauvoranzeige erstellt und bitte um eure Meinung dazu!
Anmerkungen:
Wo wir grad am Überlegen sind, ist die Treppe. Sowohl die im Grundriss gezeigte Laufrichtung hat ihre Vorteile als auch eine um 180 Grad gedrehte Variante. Was meint Ihr?
Ich hoffe man kann auf den angehängten Screenshots was erkennen...
Vielen Dank und Grüße,
Stefan H.



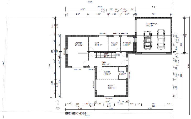
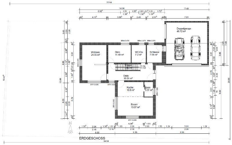
Jetzt habe ich einen ersten Entwurf unseres Einfamilienhaus für die Bauvoranzeige erstellt und bitte um eure Meinung dazu!
Anmerkungen:
- Die Anordernung der Türen und Fenster sind nicht final.
- Die gestrichelte Linie in dem Koch-/Essbereich dient nur zur Unterteilung.
- Der angedeutete Trenner im Wohnbereich soll später ein Panoramakamin (Zwecks der Gemütlichkeit) werden.
Wo wir grad am Überlegen sind, ist die Treppe. Sowohl die im Grundriss gezeigte Laufrichtung hat ihre Vorteile als auch eine um 180 Grad gedrehte Variante. Was meint Ihr?
Ich hoffe man kann auf den angehängten Screenshots was erkennen...
Vielen Dank und Grüße,
Stefan H.
B
backbone2314.08.13 14:30Küchenbereich ist zu klein, da bekommt man doch kaum Schränke rein.
Deine Kinder tun mir leid ... 12 qm pro Kind, die meiner Meinung nach schlecht zu möblieren sind. Bett, Schrank, Schreibtisch. Bekommt man das sinnvoll in die Kinderzimmer rein? Mal abgesehen davon, dass dann kaum mehr Platz für was anderes ist.
Immerhin ist das Elternschlafzimmer so groß wie die zwei Kinderzimmer zusammen + noch mal eine Ankleide in Kinderzimmergröße. Die Kinder werden sich freuen. Wer verbringt wohl mehr Zeit in seinem Zimmer: Kinder oder Eltern?
Deine Kinder tun mir leid ... 12 qm pro Kind, die meiner Meinung nach schlecht zu möblieren sind. Bett, Schrank, Schreibtisch. Bekommt man das sinnvoll in die Kinderzimmer rein? Mal abgesehen davon, dass dann kaum mehr Platz für was anderes ist.
Immerhin ist das Elternschlafzimmer so groß wie die zwei Kinderzimmer zusammen + noch mal eine Ankleide in Kinderzimmergröße. Die Kinder werden sich freuen. Wer verbringt wohl mehr Zeit in seinem Zimmer: Kinder oder Eltern?
Vielen Dank für deine Antwort!
Küche/Speis und Essbereich sind zusammen 36 m². Die Küche wird hier nur aus eine Schrankreihe an der Nordwand + Kochinsel auf der gegenüberliegenden Seite bestehen. Die Speis kann man ja schieben wie man will da es keine tragende Wand ist, ich hoffe da mehr vom Küchenbauer zu erfahren. Dennoch denke ich das 36 m² ausreichen, oder welche Größe schlägst du vor?
Das mit den Kinderzimmer ist ein super Hinweis - werde das mal komplett drehen und das Schlafzimmer + Ankleide (das Steckenpferd meiner Frau) auf die Westseite setzen und die zwei Kinderzimmer auf die Süd-/Ostseite. Dann sollten es rechnerisch knapp 18 m² pro Kinderzimmer sein.
Übrigens hatte ich als Kind auch "nur" ein 3x4 Meter großes Zimmer und das hat gereicht für Bett, Schrank, Sofa und Schreibtisch!
Küche/Speis und Essbereich sind zusammen 36 m². Die Küche wird hier nur aus eine Schrankreihe an der Nordwand + Kochinsel auf der gegenüberliegenden Seite bestehen. Die Speis kann man ja schieben wie man will da es keine tragende Wand ist, ich hoffe da mehr vom Küchenbauer zu erfahren. Dennoch denke ich das 36 m² ausreichen, oder welche Größe schlägst du vor?
Das mit den Kinderzimmer ist ein super Hinweis - werde das mal komplett drehen und das Schlafzimmer + Ankleide (das Steckenpferd meiner Frau) auf die Westseite setzen und die zwei Kinderzimmer auf die Süd-/Ostseite. Dann sollten es rechnerisch knapp 18 m² pro Kinderzimmer sein.
Übrigens hatte ich als Kind auch "nur" ein 3x4 Meter großes Zimmer und das hat gereicht für Bett, Schrank, Sofa und Schreibtisch!
Der Da schrieb:
50 qm für die Autos und 22 qm für die Kids... man muss eben Prioritäten setzen
Im Ernst, die Kinderzimmer sind ein Garant dafür, die Blagen bald aus dem Haus zu haben. Dort ist Nichtmal Platz ein 1,40 m Bett zu stellen. Schrank und Schreibtisch werden auch schwer. Ist doch schön wenn die Kinder früh auf eigene Beinen stehen :-P - Mal im Ernst... wie schon im vorherigen Beitrag geschrieben, werde ich das Schlafzimmer mit den Kinderzimmern tauschen. So wird das Schlafzimmer mit Ankleide 24 m² groß und die Kinderzimmer jeweils 18 m² groß bei einem Grundriss von 3x6 Metern (gesamt also 36 m²). Zudem ist bei Max. 2 Kindern geplant das im OG als "Gästezimmer" genannten Raum als Spielzimmer mit zu verwenden. Das Büro im EG wird dann das Gästezimmer.Bzgl. Garage hatten wir am Anfang auch eine kleinere geplant. Allerdings benötigen wir den zusätzlichen Platz als Lager das mit einem geschlossenen Schranksystem umgesetzt werden soll. Ich kenne einige Freunde die sich eine zu kleine Garage gebaut haben und sich jetzt nach Fertigstellung darüber aufregen... lieber etwas mehr Platz grade in der Breite um bequem auch aus dem Auto zu kommen, ein- auszuladen etc.
Der Da schrieb:
Muss das Haus L-Form haben? So sehe ich keine wirklich guten Ansätze, die Probleme zu lösen. Die L-Form ist fest ja - dies ist ein Wunsch von uns beiden und da gibts auch nichts dran zu rütteln. Des Weiteren sind doch die "Probleme" durch den Tausch gelöst.Wir wollen die freie Fläche dazwischen im Sommer als "erweiterten" Wohnraum nutzen mit dementsprechenden Sonnenschutz. So kann man vom Esszimmer in die Diele oder ins Wohnzimmer und umgekehrt. Des Weiteren sind wir somit "geschützt" vor der Straße.
Der Da schrieb:
Küche wär mir auch zu klein. Geschmackssache. konstruktiv kann ich sonst leider nichts beitragen ;IWie oben schon geschrieben ist der Raum 6x6 m also 36 m² groß. Damit kann man doch was anfangen wenn man Küche / Speis / Esszimmer unterbringen will? Wie groß ist denn bei dir der Bereich?B
backbone2314.08.13 23:51Mir gings bei der Küche nur um die Anordnung der Möbel. Aber wenn Ihr das vorab mit dem Küchenbauer plant passt das ja.
Hallo, mich persönlich würde die kleine Raumaufteilung sehr stören. Das Haus an sich ist ja nicht klein, aber durch das getrennte Wohn- und Esszimmer und die kleinen Türen wirkt das später wie in einem "Altbau". Ein großzügiges Raumgefühl stellt sich da nicht ein! Man läuft erst durch einen relativ riesigen Flur, öffnet dann eine schmale Tür und steht in einem kaum größeren Wohnzimmer, da würde ich wenigstens die Wand zum Flur komplett weg lassen um den Raum optisch zu vergrößern. So ein Panoramakamin passt da gar nicht mehr rein, den macht ihr an und fangt an zu schwitzen , die Hitze bleibt ausschließlich in diesem Raum und macht ihn zur Sauna. Habt ihr Euch schon mal Musterhäuser angesehen, da kann man sich die Größe der einzelnen Zimmer relativ gut vorstellen. Wie alt sind denn eure Kinder? LG Sabine
Ähnliche Themen