Hallo liebe Community,
wir sind ein junges Pärchen (Anfang 30) und haben ein recht großes Grundstück mit Hanglage am Ende einer Sackgasse, wollen aber aus Kostengründen auf den Keller verzichten.
Wir freuen uns über euer kritisches Feedback zu unserer Planung.
Bebauungsplan/Einschränkungen
Größe des Grundstücks: 900 qm (ca. 27x34 m)
Hang: ja (siehe Bild Höhenprofil)
Grundflächenzahl: 0,4
Geschossflächenzahl: 0,8
Baufenster: 15 x 34 m, 6 m Abstand zur Straße
Geschossigkeit: 2
Dachform: Satteldach, mind. 40° Dachneigung (gilt nicht für Garagen und Nebenanlagen)
Stilrichtung: offene Bauweise, nur Einzelhäuser
Ausrichtung: Traufseite zur Straße (talseits)
Traufhöhe: talseits max. 6,50 m
Anforderungen der Bauherren
Keller: nein -> Kostenschätzung Keller: rd. 90 T€ ohne Erdarbeiten ist uns zu teuer
Geschosse: 1,5 Geschosse (Kniestock 1,60 m)
Anzahl der Personen, Alter: 4 Personen, 2 Erwachsene, 2 Kinder
Raumbedarf im EG/OG: ca. 160 qm
Büro: Homeoffice
Schlafgäste pro Jahr: keine
konservativ oder moderne Bauweise: mix, eher konservativ
Küche: Kochen/Essen in einem Raum; Kochinsel kann, muss nicht
Anzahl Essplätze: ca. 8
Kamin: nein
Balkon, Dachterrasse: nein
Carport: Doppelcarport mit Abstellraum
Nutzgarten, Treibhaus: ja
weitere Wünsche/Besonderheiten/Tagesablauf, gern auch Begründungen, warum dieses oder das nicht sein soll:
Hausentwurf
Von wem stammt die Planung: Eigenentwurf
Was gefällt besonders? Warum?
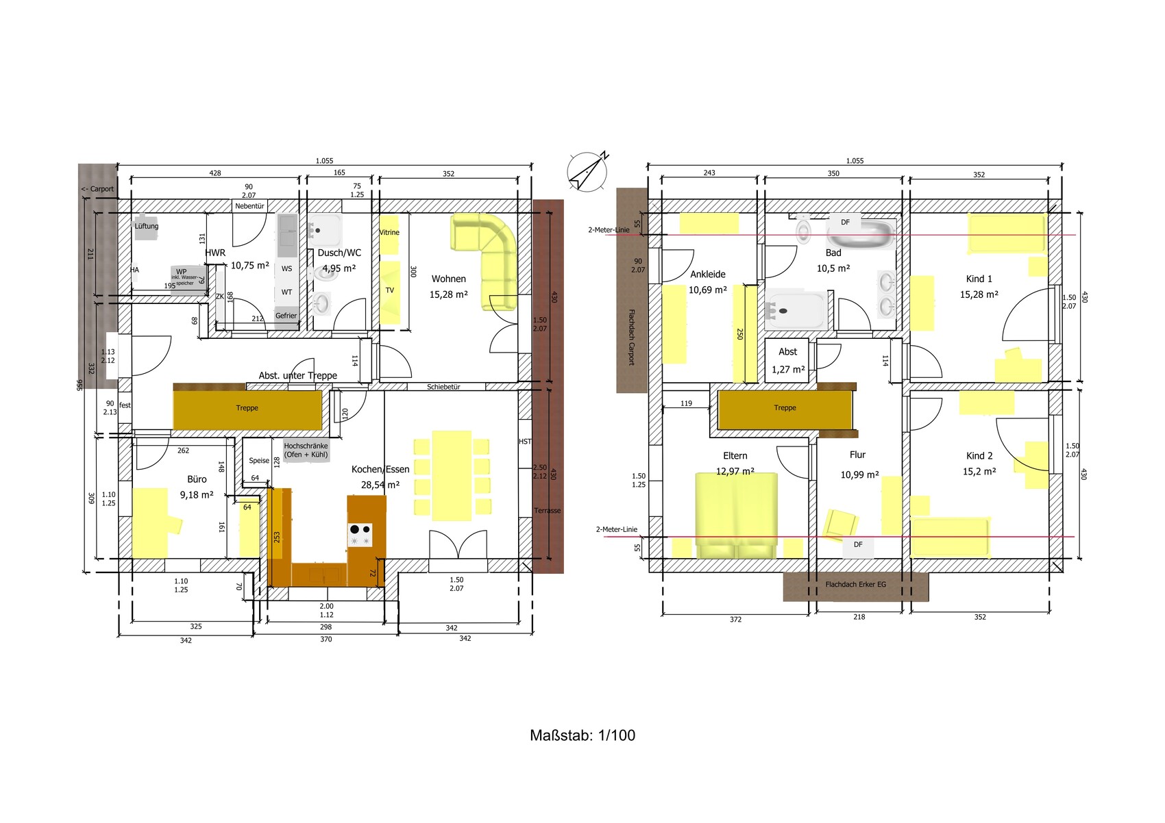
- Wohnzimmer und Essbereich kann bei Bedarf durch eine Schiebetür getrennt werden
- Kompaktes Familienbad
Was gefällt nicht? Warum?
- Treppenaufgang im Eingangs-/Schmutzbereich
- wenig Stellfläche im Wohnen und Essbereich
- Im Familienbad nur ein Dachfenster -> Belüftung mit Belüftungsanlage ausreichend?
- Schlafzimmer im Südwesten
Preisschätzung: 450 T€
Persönliches Preislimit fürs Haus, inkl. Ausstattung: 600 T€
favorisierte Heiztechnik: Luft-Wärme-Pumpe und Lüftungsanlage
Wenn Ihr verzichten müsst, auf welche Details/Ausbauten
könnt Ihr verzichten:
- separates Ankleidezimmer
könnt Ihr nicht verzichten:
- großer Essbereich
- separates Wohnzimmer
- Speisekammer




wir sind ein junges Pärchen (Anfang 30) und haben ein recht großes Grundstück mit Hanglage am Ende einer Sackgasse, wollen aber aus Kostengründen auf den Keller verzichten.
Wir freuen uns über euer kritisches Feedback zu unserer Planung.
Bebauungsplan/Einschränkungen
Größe des Grundstücks: 900 qm (ca. 27x34 m)
Hang: ja (siehe Bild Höhenprofil)
Grundflächenzahl: 0,4
Geschossflächenzahl: 0,8
Baufenster: 15 x 34 m, 6 m Abstand zur Straße
Geschossigkeit: 2
Dachform: Satteldach, mind. 40° Dachneigung (gilt nicht für Garagen und Nebenanlagen)
Stilrichtung: offene Bauweise, nur Einzelhäuser
Ausrichtung: Traufseite zur Straße (talseits)
Traufhöhe: talseits max. 6,50 m
Anforderungen der Bauherren
Keller: nein -> Kostenschätzung Keller: rd. 90 T€ ohne Erdarbeiten ist uns zu teuer
Geschosse: 1,5 Geschosse (Kniestock 1,60 m)
Anzahl der Personen, Alter: 4 Personen, 2 Erwachsene, 2 Kinder
Raumbedarf im EG/OG: ca. 160 qm
Büro: Homeoffice
Schlafgäste pro Jahr: keine
konservativ oder moderne Bauweise: mix, eher konservativ
Küche: Kochen/Essen in einem Raum; Kochinsel kann, muss nicht
Anzahl Essplätze: ca. 8
Kamin: nein
Balkon, Dachterrasse: nein
Carport: Doppelcarport mit Abstellraum
Nutzgarten, Treibhaus: ja
weitere Wünsche/Besonderheiten/Tagesablauf, gern auch Begründungen, warum dieses oder das nicht sein soll:
- separates Wohnzimmer um zwei Aufenthaltsräume zu haben
- (kleine) Speisekammer ist ein Muss
- Technik/Hauswirtschaftsraum groß genug, um dort auch Wäsche machen zu können etc. (muss den fehlenden Keller kompensieren)
- Technik/Hauswirtschaftsraum mit Außenzugang (Schmutzschleuse): wegen Gartenarbeit, damit Dreck nicht immer im Eingangsbereich landet
- Familienbad mit Doppelwaschbecken (günstiger und platzsparender als Eltern- und separatem Kinderbad)
- Elternschlafzimmer mit separaten Ankleide (unterschiedliche Aufstehzeiten)
- Ggf. Bereich für (kleinen) Abstellraum
- Wunsch: im Notfall wohnen auf einer Ebene möglich (Büro->Schlafen und DU/WC im EG)
Hausentwurf
Von wem stammt die Planung: Eigenentwurf
Was gefällt besonders? Warum?
- Wohnzimmer und Essbereich kann bei Bedarf durch eine Schiebetür getrennt werden
- Kompaktes Familienbad
Was gefällt nicht? Warum?
- Treppenaufgang im Eingangs-/Schmutzbereich
- wenig Stellfläche im Wohnen und Essbereich
- Im Familienbad nur ein Dachfenster -> Belüftung mit Belüftungsanlage ausreichend?
- Schlafzimmer im Südwesten
Preisschätzung: 450 T€
Persönliches Preislimit fürs Haus, inkl. Ausstattung: 600 T€
favorisierte Heiztechnik: Luft-Wärme-Pumpe und Lüftungsanlage
Wenn Ihr verzichten müsst, auf welche Details/Ausbauten
könnt Ihr verzichten:
- separates Ankleidezimmer
könnt Ihr nicht verzichten:
- großer Essbereich
- separates Wohnzimmer
- Speisekammer
H
hanghaus202318.02.24 13:24Gibt es Fotos von der Umgebung und vom Grundstück? Ein Lageplan mit Höhenangaben (Höhenlinien) ist auch meist nett.
H
hanghaus202318.02.24 13:33Was sagt der Bebauungsplan zu Auf- und Abtrag des Geländes und zu Stützmauern an der Grenze? Bezugspunkt für die Höhe hat ja @11ant schon geschrieben. Ist die rote Linie der Bestand? Da geht es ja gleich am Anfang 1,5 m steil hoch.
H
hanghaus202318.02.24 13:52Irgendwie stimmt etwas mit Deinem Profil nicht. Wenn es 5 m in der Horizontale sind muss es auch 5 m in der Höhe sein. Bei Dir sind 2m aber nur 1,5 m. Also ist das noch steiler.
Wenn ich das bereinige, dann sind es über 20% Steigung zum Carport.
Wie schon so oft gesagt, Hang sollte nicht DIY geplant werden.
Wenn ich das bereinige, dann sind es über 20% Steigung zum Carport.
Wie schon so oft gesagt, Hang sollte nicht DIY geplant werden.
hanghaus2023 schrieb:
Gibt es Fotos von der Umgebung und vom Grundstück? Ein Lageplan mit Höhenangaben (Höhenlinien) ist auch meist nett.Der Vermesser war noch nicht da. Die Höhenangaben sind aus dem Internet, sollten aber zur aktuellen Situation passen.
Hier zwei Fotos:
Einmal von Blickrichtung der Haustür des linken Nachbarn und von der Straße. Die Bäume zur Straße sind mittlerweile alle weg.
hanghaus2023 schrieb:
Was sagt der Bebauungsplan zu Auf- und Abtrag des Geländes und zu Stützmauern an der Grenze? Bezugspunkt für die Höhe hat ja @11ant schon geschrieben. Ist die rote Linie der Bestand? Da geht es ja gleich am Anfang 1,5 m steil hoch.Der Bebauungsplan ist von 1987, da steht zu dem Thema nichts drin.
Die rote Linie ist der Bestand.
Da das Grundstück nach den 1,5 m Böschung relativ eben ist hatten wir geplant das Haus oben drauf zu setzen. Aber euren Meinungen entnehme ich, dass das keine gute Idee ist? Oder sprecht ihr das nur in Bezug auf die Auffahrt zum Carport an? Das Carport anders zu platzieren wäre dann bestimmt immer noch günstiger als einen Keller zu bauen.
hanghaus2023 schrieb:
Irgendwie stimmt etwas mit Deinem Profil nicht. Wenn es 5 m in der Horizontale sind muss es auch 5 m in der Höhe sein. Bei Dir sind 2m aber nur 1,5 m. Also ist das noch steiler.
Wenn ich das bereinige, dann sind es über 20% Steigung zum Carport.
Wie schon so oft gesagt, Hang sollte nicht DIY geplant werden.Danke für das Feedback, jetzt ist uns die Differenz zur Grafik und zum Text drunter auch aufgefallen.
Das Höhenprofil ist aus einem Online-Portal. Warten wir mal ab was der Vermesser sagt.
Irgendwie kommt mir die Straßenansicht bekannt vor. Vermutlich weil es schon öfter Böschungen direkt an der Straße gab. Wie weit muss der Carport von der Straße weg?
Ich würde Carport an der Straße planen und einen Weg zur Haustüre.
Der Grundriss gefällt mir nicht. Hat was von Tetris.
Nimm mal das Wohnzimmer. lt Berechnung 15 qm Nutzbar wegen Türen/Verkehrsfläche 10,5 qm
Das ineffektive Eck in der Küche mit dem Namen Speis etc, im OG der riesige Flur dafür fehlt Abstellraum
Ich würde Carport an der Straße planen und einen Weg zur Haustüre.
Der Grundriss gefällt mir nicht. Hat was von Tetris.
Nimm mal das Wohnzimmer. lt Berechnung 15 qm Nutzbar wegen Türen/Verkehrsfläche 10,5 qm
Das ineffektive Eck in der Küche mit dem Namen Speis etc, im OG der riesige Flur dafür fehlt Abstellraum
Ähnliche Themen