Hallo zusammen,
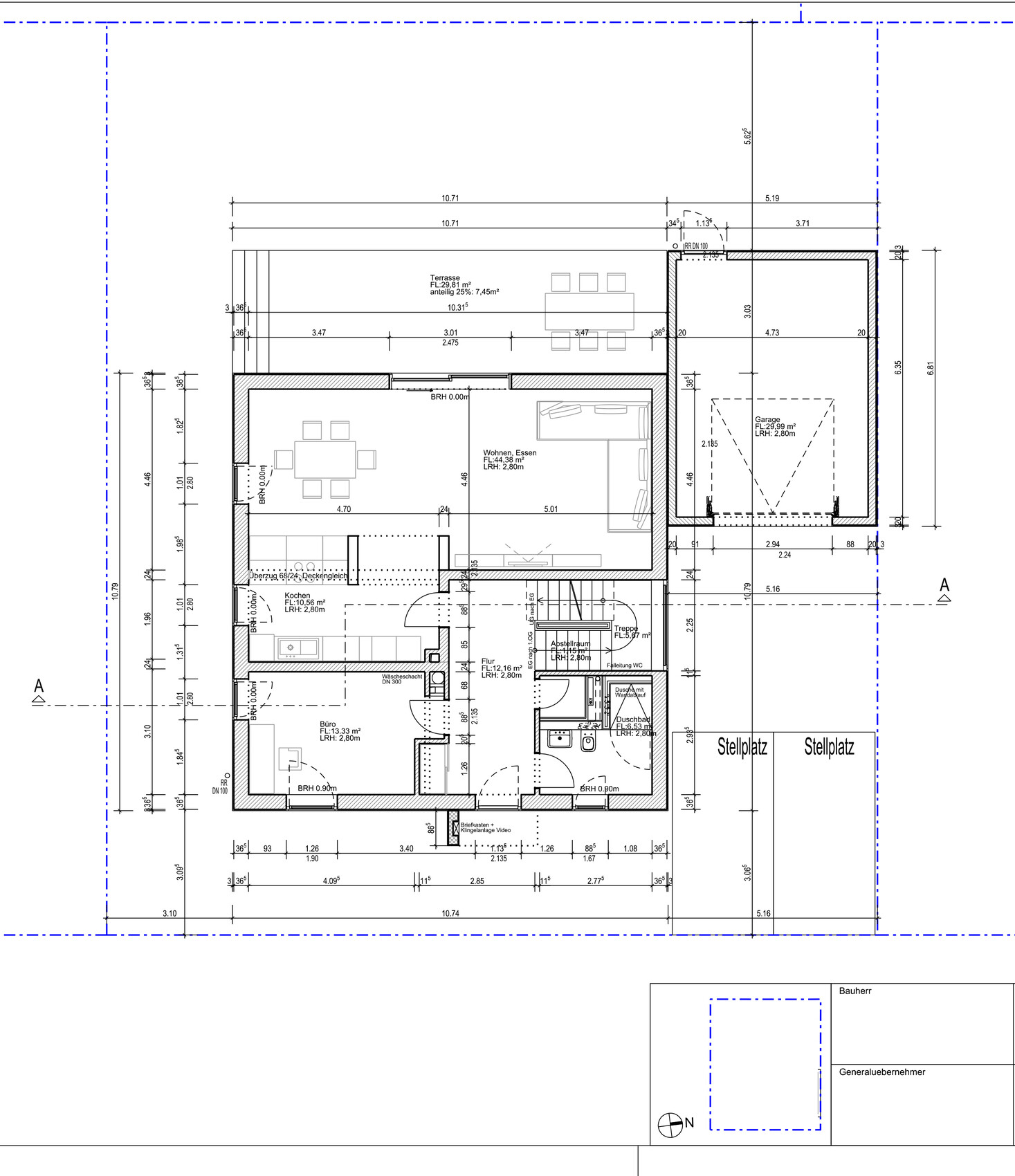
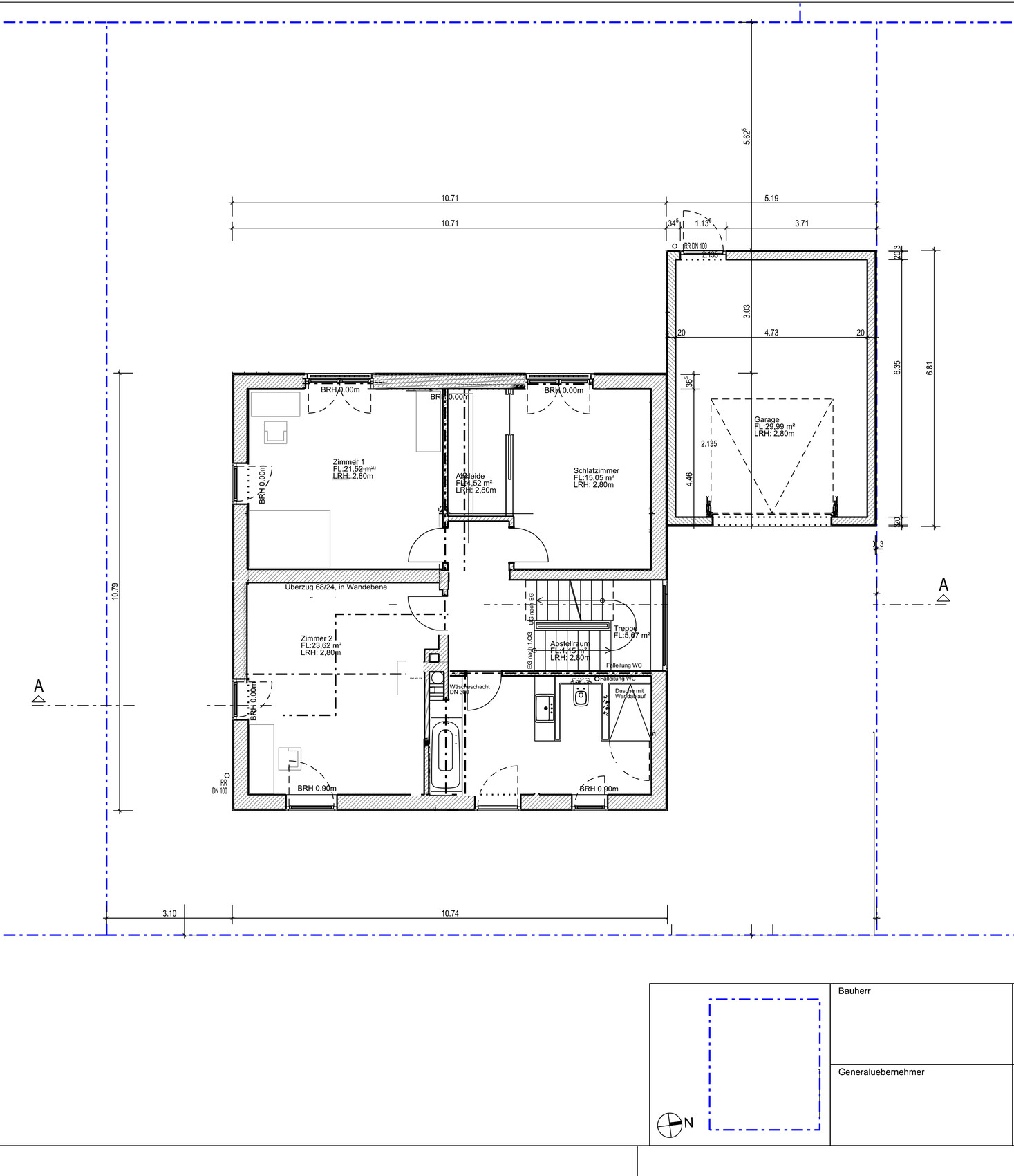
es wäre nett, wenn Ihr den Plan mal bewerten könntet. Was ist gut was nicht. Was fehlt? Was könnte man besser machen oder was wäre Sinnvoller.
Wir haben gerade den Grundriss erst geändert, daher stimmen noch nicht alle Maßketten. Es sollte aber nur minimale Abweichungen geben.
Da mein Mann Selbstständig ist (kein Publikumsbesuch) ist ein Homeoffice im Haus zwingend notwendig.
Hier weitere Details:
Bebauungsplan/Einschränkungen: ohne, lediglich ein Staffelgeschoss müsste zur Straße zurückspringen.
Größe des Grundstücks: 428m² (19 x 22,51m)
Hang: abschüssig, 2 Meter
Grundflächenzahl: 0,4
Geschossflächenzahl: 0,8
Nur Bauliene zur Straße
Anzahl Stellplatz: 3
Geschossigkeit: 2
Dachform: Alles erlaubt
Ausrichtung: SW
Maximale Höhen/Begrenzungen: 7m TH (ohne Attika)
- Flachdach
- 2 Geschossen + Keller
- 4 Personen. 2 Erwachsene; Kind 1: 15, Kind 2: 2 Jahre
- Homeoffice
- Keine Schlafgäste
- Kochinsel
- Bad im EG soll später auch fürs Alter taugen
Der Entwurf ist Do-it-Yourself. Soll aber später nochmal zum Architekten.
Heizen wollen wir mit Gas und es soll eine Fußbodenheizung geben.
Gerne auch eine Brennstoffzelle, wobei hier immer abgeraten wird?!
Eigentlich ist der Plan sehr gut von innen aber langweilig von Außen.
Mit dem Bad im OG sind wir aber noch nicht 100% glücklich. Hier ist so eine "Kackniesche" 😉

es wäre nett, wenn Ihr den Plan mal bewerten könntet. Was ist gut was nicht. Was fehlt? Was könnte man besser machen oder was wäre Sinnvoller.
Wir haben gerade den Grundriss erst geändert, daher stimmen noch nicht alle Maßketten. Es sollte aber nur minimale Abweichungen geben.
Da mein Mann Selbstständig ist (kein Publikumsbesuch) ist ein Homeoffice im Haus zwingend notwendig.
Hier weitere Details:
Bebauungsplan/Einschränkungen: ohne, lediglich ein Staffelgeschoss müsste zur Straße zurückspringen.
Größe des Grundstücks: 428m² (19 x 22,51m)
Hang: abschüssig, 2 Meter
Grundflächenzahl: 0,4
Geschossflächenzahl: 0,8
Nur Bauliene zur Straße
Anzahl Stellplatz: 3
Geschossigkeit: 2
Dachform: Alles erlaubt
Ausrichtung: SW
Maximale Höhen/Begrenzungen: 7m TH (ohne Attika)
- Flachdach
- 2 Geschossen + Keller
- 4 Personen. 2 Erwachsene; Kind 1: 15, Kind 2: 2 Jahre
- Homeoffice
- Keine Schlafgäste
- Kochinsel
- Bad im EG soll später auch fürs Alter taugen
Der Entwurf ist Do-it-Yourself. Soll aber später nochmal zum Architekten.
Heizen wollen wir mit Gas und es soll eine Fußbodenheizung geben.
Gerne auch eine Brennstoffzelle, wobei hier immer abgeraten wird?!
Eigentlich ist der Plan sehr gut von innen aber langweilig von Außen.
Mit dem Bad im OG sind wir aber noch nicht 100% glücklich. Hier ist so eine "Kackniesche" 😉
Hmm .. Riesenräume im OG, aber die Ankleide im Schlafzimmer bietet nicht viel Platz.
Keller, was soll da noch alles passieren?
EG .. volle Westsonne auf den Fernseher .. ich würde Wohnen/Kochen tauschen, dann hat man auch den direkten Terrassenzugang von der Küche aus. Den Zugang vom Flur würde ich dann ggü. der Eingangstür legen.
Warum haben im Allraum Wohnen/Essen/Kochen die Fenster mal eine Ausschnittshöhe von 280 cm und mal nur 247 cm?
Mir wären es auch zu wenig Fenster dort, vor allem die schmalen im Süden.
Was ist das für ein seltsamer kleiner Raum im EG neben der Treppe? Abstellkammer? So kann man da aber nix reinstellen.
Keller, was soll da noch alles passieren?
EG .. volle Westsonne auf den Fernseher .. ich würde Wohnen/Kochen tauschen, dann hat man auch den direkten Terrassenzugang von der Küche aus. Den Zugang vom Flur würde ich dann ggü. der Eingangstür legen.
Warum haben im Allraum Wohnen/Essen/Kochen die Fenster mal eine Ausschnittshöhe von 280 cm und mal nur 247 cm?
Mir wären es auch zu wenig Fenster dort, vor allem die schmalen im Süden.
Was ist das für ein seltsamer kleiner Raum im EG neben der Treppe? Abstellkammer? So kann man da aber nix reinstellen.
Finde die Grundrisse nicht schlecht, kein vergeudeter Raum durch Gänge etc. Waschmaschine, Trockner, Technikraum ist im Keller? Was ich persönlich nochmals überdenken würde:
- bei sehr großen Räumen wie z.B: dem Wohn-Essraum der immerhin 10m lang ist, kann eine Raumhöhe von 2,8m sehr niedrig wirken. Ich würde sowieso auf 3,0m Raumhöhe gehen.
- Eventuell kann man sich im Erdgeschoss die Dusche sparen, da hier kein Schlafzimmer ist, reicht doch WC und waschbecken. Dafür könnte dieser kleine Abstellraum etwas größer werden und falls ihr später mal doch eine Dusche im EG braucht, könntet Ihr den Abstellraum zur Dusche mit Waschbecken umbauen.
- So ein Kubus-Haus muß von außen nicht schlecht ausschauen, wenn die Fassade schön ist und die Fenster gut angeordnet sind.
LG Kathar
- bei sehr großen Räumen wie z.B: dem Wohn-Essraum der immerhin 10m lang ist, kann eine Raumhöhe von 2,8m sehr niedrig wirken. Ich würde sowieso auf 3,0m Raumhöhe gehen.
- Eventuell kann man sich im Erdgeschoss die Dusche sparen, da hier kein Schlafzimmer ist, reicht doch WC und waschbecken. Dafür könnte dieser kleine Abstellraum etwas größer werden und falls ihr später mal doch eine Dusche im EG braucht, könntet Ihr den Abstellraum zur Dusche mit Waschbecken umbauen.
- So ein Kubus-Haus muß von außen nicht schlecht ausschauen, wenn die Fassade schön ist und die Fenster gut angeordnet sind.
LG Kathar
Erstmal vielen Dank für das Feedback.
Die Fenster auf der Südseite bekommen einen Rollladenkasten daher ist der Ausschnitt größer. Zudem wird es, denken ich mit der Statik nicht ohne Stahl klappen, wenn die Schiebetür höher ist und ganz klar ist der Preis dann auch höher.
Wegen dem tauschen finde ich keine schlechte Idee zumal dann auch das eine Fenster weg kann, was die Fassaden Optik eh zerstört.
Im Süden bringt es wahrscheinlich nichts noch mehr oder größere Fenster zu machen, da wir links auf eine 9 Meter Garage gucken werden.
Wir hatten kurz überlegt das Haus in L-Form zu bauen aber da ist uns nichts gutes eingefallen.
Ja, der Raum soll ein Abstellraum werden. Der war Mal größer bevor dann alles dort rein gekommen ist. Evtl verlegen wir den HKV noch in die Garderobe und machen die Dusche kleiner. Müssen aber dann gucken ob man das Fallrohr noch mehr verziehen kann.
Falls aber sonst noch was auffällt gerne her damit. Auch Tipps für mehr Glas sind gerne willkommen.
Im Keller ist unter den Bädern der Hauswirtschaftsraum und unter dem Büro der Waschraum. Die vorderen werden wohl Abstellraum/Hobbyraum.
Die Fenster auf der Südseite bekommen einen Rollladenkasten daher ist der Ausschnitt größer. Zudem wird es, denken ich mit der Statik nicht ohne Stahl klappen, wenn die Schiebetür höher ist und ganz klar ist der Preis dann auch höher.
Wegen dem tauschen finde ich keine schlechte Idee zumal dann auch das eine Fenster weg kann, was die Fassaden Optik eh zerstört.
Im Süden bringt es wahrscheinlich nichts noch mehr oder größere Fenster zu machen, da wir links auf eine 9 Meter Garage gucken werden.
Wir hatten kurz überlegt das Haus in L-Form zu bauen aber da ist uns nichts gutes eingefallen.
Ja, der Raum soll ein Abstellraum werden. Der war Mal größer bevor dann alles dort rein gekommen ist. Evtl verlegen wir den HKV noch in die Garderobe und machen die Dusche kleiner. Müssen aber dann gucken ob man das Fallrohr noch mehr verziehen kann.
Falls aber sonst noch was auffällt gerne her damit. Auch Tipps für mehr Glas sind gerne willkommen.
Im Keller ist unter den Bädern der Hauswirtschaftsraum und unter dem Büro der Waschraum. Die vorderen werden wohl Abstellraum/Hobbyraum.
Ähnliche Themen