ᐅ Grundriss Einfamilienhaus Einliegerwohnung als 3-Parteien-Haus
Erstellt am: 05.07.2021 06:50
florian93 05.07.2021 06:50
Hallo zusammen,
lange Zeit war ich stiller Mitleser und habe hier schon sehr viele Informationen und Anregungen mitnehmen können. Herzlichen Dank dafür!
Wir beschäftigen uns seit Ende letzten Jahres mit dem Thema Hausbau. Zuerst hatten wir Gespräche mit ein paar Schlüsselfertigbaufirmen. Mit einer Firma sind wir konkreter in die Planung gegangen. Super zufrieden waren wir mit dem Ergebnis nie, da uns ab einem gewissen Punkt immer die Flexibilität/Individualität gefehlt hat. Mittlerweile sind wir bei einem Architekten aus dem Nachbardorf gelandet, der uns von der Planung bis zum fertigen Haus (Leistungsphase 1-8) zur Seite stehen wird. Hier sind wir mittlerweile an dem Punkt eines "finalen" Entwurfs inkl. Kostenschätzung angelangt.
Bebauungsplan/Einschränkungen
Größe des Grundstücks: 709 qm
Hang: Nein
Grundflächenzahl: 0,4
Geschossflächenzahl: 0,8
Baufenster, Baulinie und -grenze: siehe Plan
Randbebauung: Garage
Anzahl Stellplatz: 1,5 pro Wohneinheit (= 5)
Geschossigkeit: 1,5
Dachform: 38-47° Sattel- oder Krüppelwalmdach
Stilrichtung: Nein
Ausrichtung: Nein
Maximale Höhen/Begrenzungen: Nein
weitere Vorgaben: Nein
Anforderungen der Bauherren
Stilrichtung, Dachform, Gebäudetyp: Klassisch-Modern, Satteldach
Keller, Geschosse: 2 Vollgeschosse (laut Bebauungsplan nur 1,5 => Nachbarn aus direkter Umgebung haben aber schon 2 genehmigt bekommen, wenn sie in der Gesamthöhe nicht höher als 1,5er waren => geringere Dachneigung)
Anzahl der Personen, Alter:
Schlafgäste pro Jahr: Können auf der Couch schlafen
offene oder geschlossene Architektur: offen
konservativ oder moderne Bauweise: modern
offene Küche, Kochinsel: offen ja, Kochinsel evtl.
Anzahl Essplätze: 6
Kamin: Vorbereitung
Musik/Stereowand: Nein
Balkon, Dachterrasse: Nein
Garage, Carport: Garage, aber auch von Carport (je nach Ersparnis) nicht abgeneigt
Nutzgarten, Treibhaus: Nein, maximal ein bisschen Nutzbereich im Garten
weitere Wünsche/Besonderheiten/Tagesablauf, gern auch Begründungen, warum dieses oder das nicht sein soll: Nein
Hausentwurf
Von wem stammt die Planung: Architekt
Was gefällt besonders? Warum?
favorisierte Heiztechnik: Wärmepumpe
Wenn Ihr verzichten müsst, auf welche Details/Ausbauten
-könnt Ihr verzichten: Kamin (bzw. Kaminvorbereitung), Smarthome (kann ich als IT-ler auch noch gut selbst nachrüsten)
-könnt Ihr nicht verzichten: nichts
Warum ist der Entwurf so geworden, wie er jetzt ist? ZB
Standardentwurf vom Planer? Grundidee kommt von uns + mehrere Gespräche mit Architekt
Entsprechende/Welche Wünsche wurden vom Architekten umgesetzt?
Was ist die wichtigste/grundlegende Frage zum Grundriss in 130 Zeichen zusammengefasst?



lange Zeit war ich stiller Mitleser und habe hier schon sehr viele Informationen und Anregungen mitnehmen können. Herzlichen Dank dafür!
Wir beschäftigen uns seit Ende letzten Jahres mit dem Thema Hausbau. Zuerst hatten wir Gespräche mit ein paar Schlüsselfertigbaufirmen. Mit einer Firma sind wir konkreter in die Planung gegangen. Super zufrieden waren wir mit dem Ergebnis nie, da uns ab einem gewissen Punkt immer die Flexibilität/Individualität gefehlt hat. Mittlerweile sind wir bei einem Architekten aus dem Nachbardorf gelandet, der uns von der Planung bis zum fertigen Haus (Leistungsphase 1-8) zur Seite stehen wird. Hier sind wir mittlerweile an dem Punkt eines "finalen" Entwurfs inkl. Kostenschätzung angelangt.
Bebauungsplan/Einschränkungen
Größe des Grundstücks: 709 qm
Hang: Nein
Grundflächenzahl: 0,4
Geschossflächenzahl: 0,8
Baufenster, Baulinie und -grenze: siehe Plan
Randbebauung: Garage
Anzahl Stellplatz: 1,5 pro Wohneinheit (= 5)
Geschossigkeit: 1,5
Dachform: 38-47° Sattel- oder Krüppelwalmdach
Stilrichtung: Nein
Ausrichtung: Nein
Maximale Höhen/Begrenzungen: Nein
weitere Vorgaben: Nein
Anforderungen der Bauherren
Stilrichtung, Dachform, Gebäudetyp: Klassisch-Modern, Satteldach
Keller, Geschosse: 2 Vollgeschosse (laut Bebauungsplan nur 1,5 => Nachbarn aus direkter Umgebung haben aber schon 2 genehmigt bekommen, wenn sie in der Gesamthöhe nicht höher als 1,5er waren => geringere Dachneigung)
Anzahl der Personen, Alter:
- aktuell => 3 (Papa 27, Mama 25, Sohn 1)
- zukünftig => 4-5 (Papa, Mama, 2-3 Kinder) + 2 in Einliegerwohnung (Eltern, in ca. 5-10 Jahren)
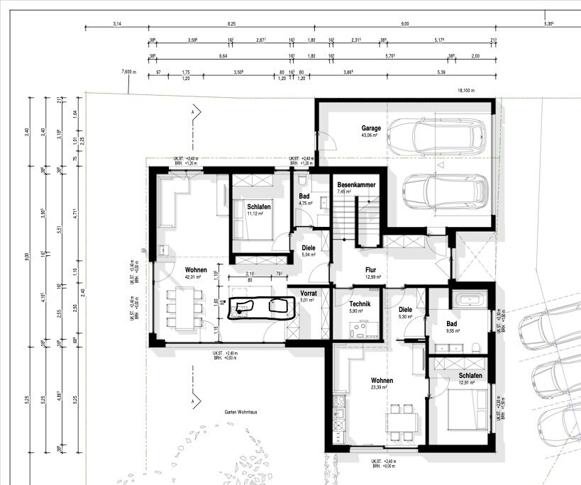
- EG + OG:
- Größe: ca. 160-180 qm; Orientierung war hier der Neubau eines Bekannten
- Räume EG: offener Koch-/Ess-/Wohnbereich + kleiner Vorrat, Büro, Technik, Gäste-WC
- Räume OG: Großes Bad, Elternschlafzimmer, 3x Kinderzimmer
- Einliegerwohnung:
- Größe: ca. 50 qm; Orientierung war hier unsere alte 2-Zimmer-Wohnung
- Räume: offener Koch-/Ess-/Wohnbereich, Bad, Schlafzimmer
Schlafgäste pro Jahr: Können auf der Couch schlafen
offene oder geschlossene Architektur: offen
konservativ oder moderne Bauweise: modern
offene Küche, Kochinsel: offen ja, Kochinsel evtl.
Anzahl Essplätze: 6
Kamin: Vorbereitung
Musik/Stereowand: Nein
Balkon, Dachterrasse: Nein
Garage, Carport: Garage, aber auch von Carport (je nach Ersparnis) nicht abgeneigt
Nutzgarten, Treibhaus: Nein, maximal ein bisschen Nutzbereich im Garten
weitere Wünsche/Besonderheiten/Tagesablauf, gern auch Begründungen, warum dieses oder das nicht sein soll: Nein
Hausentwurf
Von wem stammt die Planung: Architekt
Was gefällt besonders? Warum?
- Nutzung als Einfamilienhaus + Einliegerwohnung und jederzeit auftrennbar in 3 Wohneinheiten, z. B. wenn die Kinder mal größer werden oder man später vermieten wollte
- Eigene Gartenanteile Einfamilienhaus und Einliegerwohnung
- Große Fensterfläche nach Süden => viel Tageslicht (Nachbar nach Süden relativ weit entfernt + guter Sichtschutz nach Osten durch Einliegerwohnung)
- Garten/Terrassen zur Südseite
- Direkter Zugang von innen zur Garage
- Direkter Zugang Einliegerwohnung für Zeit der kompletten Eigennutzung
- Sehr dunkler Eingangsbereich
- Wir haben Bedenken, dass der Koch-/Ess-/Wohnbereich zu klein/eng sein könnte
- Vorwort: alles wurde aufgrund der aktuellen Rohstoffpreise sehr großzügig kalkuliert
- all-in 778k (das erschlossene Grundstück besitzen wir schon)
- davon 40k Baunebenkosten
- davon 35k bereits für Einrichtung geplant
- davon 50k bereits für Außenanlagen und Freiflächen geplant
- ergibt:
- nach Abzug Förderungen: 662k (3x Kfw 40 Plus + Energieberater = 116k)
- nach Abzug sicherer Eigenleistungen: 642k
- nach Abzug Einliegerwohnung von ca. 160k (finanziert durch Eltern): 482k
favorisierte Heiztechnik: Wärmepumpe
Wenn Ihr verzichten müsst, auf welche Details/Ausbauten
-könnt Ihr verzichten: Kamin (bzw. Kaminvorbereitung), Smarthome (kann ich als IT-ler auch noch gut selbst nachrüsten)
-könnt Ihr nicht verzichten: nichts
Warum ist der Entwurf so geworden, wie er jetzt ist? ZB
Standardentwurf vom Planer? Grundidee kommt von uns + mehrere Gespräche mit Architekt
Entsprechende/Welche Wünsche wurden vom Architekten umgesetzt?
- eigentliche alle unsere Wünsche
- Treppe mit geraden Stufen
- gut: kein 0815-Standardentwurf, optisch (wie wir finden) sehr ansprechend
- schlecht: nichts
Was ist die wichtigste/grundlegende Frage zum Grundriss in 130 Zeichen zusammengefasst?
- Wir hätten einfach gern ein paar Meinungen/Optimierung von Dritten, die unbefangen sind
- Wie kann man den Eingangsbereich bzgl. Tageslicht optimieren?
Myrna_Loy 05.07.2021 10:12
Versteh ich das richtig, dass die Einliegerwohnung erst in ca. 10 Jahren als solche genutzt werden soll und bis dahin die Wohnung als Wohnfläche mitgenutzt wird?
Ysop*** 05.07.2021 10:29
Eigentlich baut ihr doch auch nur zwei Wohneinheiten. Die dritte ist irgendwann abtrennbar (Küchenanschlüsse müssten noch vorbereitet werden), aber für die Förderung sehe ich die dritte jetzt nicht. Ansonsten finde ich es nicht schlecht.
Kücheninsel hätte ich anders geplant, da man diese beim Arbeiten immer umkurven muss. Allraum der Einliegerwohnung ggf. nicht ganz so gemütlich. Wo und wie wohnen denn die Eltern denn aktuell? Ist die Einliegerwohnung auf deren Bedürfnisse zugeschnitten?
Kücheninsel hätte ich anders geplant, da man diese beim Arbeiten immer umkurven muss. Allraum der Einliegerwohnung ggf. nicht ganz so gemütlich. Wo und wie wohnen denn die Eltern denn aktuell? Ist die Einliegerwohnung auf deren Bedürfnisse zugeschnitten?
florian93 05.07.2021 10:46
Myrna_Loy schrieb:
Versteh ich das richtig, dass die Einliegerwohnung erst in ca. 10 Jahren als solche genutzt werden soll und bis dahin die Wohnung als Wohnfläche mitgenutzt wird?Genau. Wir würden sie solange als (zugegeben übergroßes) Büro nutzen. Gibt nur bedingt Sinn in 5-10 Jahren wieder eine Baustelle für einen Anbau aufzureißen, wenn ich heute schon weiß, dass er kommen wird. Noch dazu sind die Baupreise bis dahin vermutlich noch irrsinniger als sie es heute schon sind. Alternative wäre vermieten bis dahin. Das würden wir aber nur machen, wenn es finanziell gar nicht anders geht. Hast du eine bessere Idee? Dann gerne raus damit 🙂
Ysop*** schrieb:
Eigentlich baut ihr doch auch nur zwei Wohneinheiten. Die dritte ist irgendwann abtrennbar (Küchenanschlüsse müssten noch vorbereitet werden), aber für die Förderung sehe ich die dritte jetzt nicht. Ansonsten finde ich es nicht schlecht.
Kücheninsel hätte ich anders geplant, da man diese beim Arbeiten immer umkurven muss. Allraum der Einliegerwohnung ggf. nicht ganz so gemütlich. Wo und wie wohnen denn die Eltern denn aktuell? Ist die Einliegerwohnung auf deren Bedürfnisse zugeschnitten?Danke für das Feedback! Auf dem Plan sind es noch zwei Wohneinheiten, das stimmt. Aus einem Kinderzimmer oben wird dann eine Küche. Anschlüsse dafür werden selbstverständlich vorbereitet. Dann kommen wir wir auf 3 Wohneinheiten.
Ich muss zugegeben, ich finde die Kücheninsel auch noch nicht so optimal. Das angesprochene Umkurven hatte ich auch schon als störend empfunden. Wir würden die Insel aber vermutlich auch nicht 1,60 m sondern nur 1,20 m breit machen. Sind uns aber auch noch unsicher, ob es das bedeutend besser macht. Die Alternative zur Insel wäre eine Küche in U-Form. Allerdings müssten wir dafür dann auf die bodentiefen Fenster verzichten und hätten keine (wie wir finden schöne) riesige Glasfront.
/edit: Sorry, die Hälfte der Fragen habe ich nicht beantwortet. Hier der Rest:
Die Eltern (beide Anfang 60) wohnen aktuell noch im eigenen Haus. Seitdem die Kinder ausgezogen sind, steht viel leer. Sie wissen schon jetzt, dass sie das komplette Haus im fortschreitenden Alter nicht mehr pflegen und bewirtschaften können und wollen. Noch dazu ist es nicht sonderlich altersgerecht und hat eine ziemlich unpraktische Treppe. Deswegen auch der Wunsch nach Ebenerdigkeit, die wir bei unserem Entwurf berücksichtigt haben. Mit dem Umzug in die Einliegerwohnung wird das Haus dann verkauft.
Myrna_Loy 05.07.2021 10:59
Ich finde den Plan gut - da hat sich der Architekt echt ausgezahlt. Aber das Konstrukt an sich ist mir echt fremd.
Ich schätze, dass die Eltern eher noch jung sind? Und ein Einzug dann so mit 60 geplant ist?
Die Einliegerwohnung, wie sie jetzt geschnitten ist, ist in keinster Weise behindertengerecht. Ich tu mich immer sehr schwer mit diesen Eierlegendenwollmilchsauhäusern. Wenn der Idealfall nicht eintritt, dann sitzt Ihr zu dritt auf 230 qm mit drölfzig Zimmern. Und ich habe schon sehr viele solcher Einfamilienhaus Häuser gesehen, wo man bei der Planungsphase meinte, später mal vermieten zu wollen - macht niemand. Weil man in Einfamilienhaus nicht Fremde so nah haben möchte. Das ist wie eine WG.
Ich schätze, dass die Eltern eher noch jung sind? Und ein Einzug dann so mit 60 geplant ist?
Die Einliegerwohnung, wie sie jetzt geschnitten ist, ist in keinster Weise behindertengerecht. Ich tu mich immer sehr schwer mit diesen Eierlegendenwollmilchsauhäusern. Wenn der Idealfall nicht eintritt, dann sitzt Ihr zu dritt auf 230 qm mit drölfzig Zimmern. Und ich habe schon sehr viele solcher Einfamilienhaus Häuser gesehen, wo man bei der Planungsphase meinte, später mal vermieten zu wollen - macht niemand. Weil man in Einfamilienhaus nicht Fremde so nah haben möchte. Das ist wie eine WG.
Gudeen. 05.07.2021 11:00
Das Grundstück sieht gut aus, Südwest Garten, Zufahrt Nordosten gefällt mir. Der Rest nicht so 🤨
Die Küche sieht für mich unpraktisch aus, Technik zu klein für Mehrparteienhaus, Flur ohne Fenster oben mit Tür zum Treppenhaus.
Wirkt auf mich wieder so, dass anstatt eine wirlich schöne Wohneinheit zu bauen, krampfhaft versucht wird 3 WEs unterzubringen obwohl eigentlich gerade nur eine benötigt wird.
Bist Du zufällig mit verwandt? :p
Die Küche sieht für mich unpraktisch aus, Technik zu klein für Mehrparteienhaus, Flur ohne Fenster oben mit Tür zum Treppenhaus.
Wirkt auf mich wieder so, dass anstatt eine wirlich schöne Wohneinheit zu bauen, krampfhaft versucht wird 3 WEs unterzubringen obwohl eigentlich gerade nur eine benötigt wird.
Bist Du zufällig mit verwandt? :p
Ähnliche Themen