Grundriss Einfamilienhaus ca. 200qm ohne Keller, Bauhausstil

4,70 Stern(e) 6 Votes
Zuletzt aktualisiert 23.11.2025
Sie befinden sich auf der Seite 3 der Diskussion zum Thema: Grundriss Einfamilienhaus ca. 200qm ohne Keller, Bauhausstil
>> Zum 1. Beitrag <<

2

2024_Häuslebau

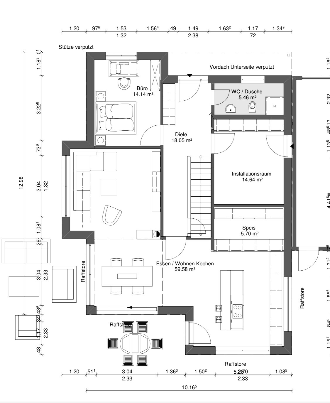
Wir haben mittlerweile nun eine überarbeite Version des Grundrisses erhalten, u.a. Haben wir nun die Küche nach vorne in den Süden gesetzt und das WZ eher als Ruhezone platziert. Gefällt uns so auch viel besser- danke für den Hinweis.
Wir hatten auch eine Variante mit Podesttreppe, allerdings hatten wir dadurch SEHR viel Flurfläche gewonnen und rund 10 qm Wohnraumfläche verloren. Das ist aufgrund der hohen qm-Kosten für uns daher leider keine Option.

Anbei daher der aktualisierte Grundriss mit gerader Treppe, es bleibt leider bei einem relativ langen (4m) Schlauch bei einer Breite von 1,2m (Treppe wird unten geschlossen). Eine Möglichkeit zur etwas luftigeren Gestaltung wäre eine Öffnung zum WZ, dadurch hätte man aber wiederum etwas Ruhe im WZ verloren und auch die Lärmausbreitung im Haus verstärkt. Habt ihr noch eine andere Idee?
Grundriss: Offene Küche mit Ess- und Wohnbereich, Büro, Diele, WC/Dusche, Speis.
 
H

hanghaus2023

Ich finde den neuen Entwurf um einiges besser. Gab es hier schon mal eine Angabe zum Budget? Oder habe ich das nur nicht gesehen?
 
2

2024_Häuslebau

Haus liegt derzeit bei ca 620k inklusive einigen Sonderthemen aus der Vorbemusterung (zB. Eichentreppe, Raffrolllos etc).
 
Zuletzt bearbeitet von einem Moderator:
Zuletzt aktualisiert 23.11.2025
Im Forum Grundrissplanung / Grundstücksplanung gibt es 2535 Themen mit insgesamt 87994 Beiträgen


Ähnliche Themen zu Grundriss Einfamilienhaus ca. 200qm ohne Keller, Bauhausstil
Nr.ErgebnisBeiträge
1Wohin mit der Treppe? Dachausbau Walmdachbungalow - Seite 219
2Treppe im Flur, Grundriss steht eigentlich schon :o( 20
3Was ist bei einer Treppe beachten/Unterschie Wendeluing 22
4Grundrissfrage, Treppe, Fenster, Ausrichtung 12
5 2 Vollgeschosse, Durchgang Garage, Hauswirtschaftsraum unter Treppe 25
6Frage zu Grundriss, insbesondere Treppe 13
7"notwendige Treppe" zum Dachgeschoss - Seite 423
8Treppe Grundriss Planung, Auftritt und Unterzug 21
9Grundrissfrage, Garage, Treppe 33
10Technikraum so klein wie möglich - Unter der Treppe? 10
11Treppe ohne Geländer geliefert und ich muss nun nachzahlen? - Seite 319
12Welche Treppe habt ihr genommen 77
13Gerade Treppe - warum? 14
14Abschluss Treppe - Parkett 28
15Baumangel - Treppe nicht in Ordnung - Seite 212
16Treppe - Sind die Treppenmaße 2.00x2.00m in Ordnung? - Seite 568
17Einfamilienhaus ca. 150 qm Grundriss - Treppe wie planen? 65
18Stadtvilla mit gerader Treppe, offene moderne Bauweise, 140m² 18
19Treppe im Wohnzimmer als Hype - Pro & Contra? - Seite 426
20Fliesen auf halbgewendelter Treppe - Wer hat da Erfahrungen? - Seite 638

Oben