Hallo alle zusammen,
wir möchten am Grundstück (altes Betriebsgebäude meiner Großeltern) in Österreich auf eine alte Garage (Bauplatte ist da und statisch gesehen bebaubar) zweistöckig bauen.
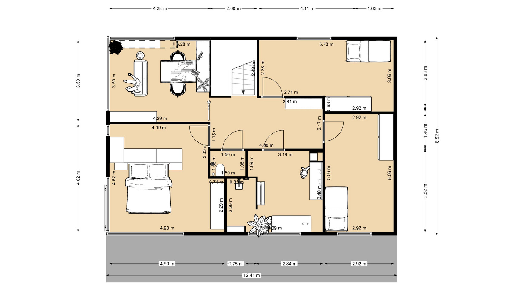
Grundfläche ist 11,08x8,22m.
Da wir von zwei Seiten eine Halle anschließen haben, sind auf den zwei Seiten (Norden und Osten) keine Fenster im EG möglich (außer eine erhöhte Fensteröffnung über dem Esstisch). Die Wand Richtung Süden schließt an den Garten meiner Grosseltern. Somit möchte ich hier auch keine Fenster, um nicht in einen „fremden“ Garten zu sehen. Außer beim Eingang, hier würde ich eine Wand schräg ergänzen, und das Fenster schaut in einen kleinen Lichtschacht.
der Plan ist von mir gezeichnet worden und soll nun an einen Planer für den Einreichplan übergeben werden. Mich würde aber vorab eure Meinung dazu interessieren.
weitere Infos:
Über den Hauswirtschaftsraum Raum kommt man in die bereits bebaute Halle. In die Halle kommt alles mit Technik.
die Wand mit den Glasflächen im EG zeigt Richtung Westen und in den Garten. Der Eingang ist nur seitlich über den Garten möglich.
Im 1. Stock ist der Blick Richtung Osten/Norden/Westen ein Traum, somit haben wir hier grosse Fenster geplant. Das wäre Schlafzimmer und Büro.
die Terrasse soll mit einer ca. 1,70 tiefen Betonplatte, die sich bis zum Eingang zieht, überdacht werden. Der Bereich, wo man sitzt, wird dann noch zusätzlich mit Glas überdacht, damit man geschützter ist und trotzdem Licht reinkommt.
Wenn noch Infos fehlen, bitte um Infos.
ansonsten vielen Dank schon einmal für eure Gedanken


wir möchten am Grundstück (altes Betriebsgebäude meiner Großeltern) in Österreich auf eine alte Garage (Bauplatte ist da und statisch gesehen bebaubar) zweistöckig bauen.
Grundfläche ist 11,08x8,22m.
Da wir von zwei Seiten eine Halle anschließen haben, sind auf den zwei Seiten (Norden und Osten) keine Fenster im EG möglich (außer eine erhöhte Fensteröffnung über dem Esstisch). Die Wand Richtung Süden schließt an den Garten meiner Grosseltern. Somit möchte ich hier auch keine Fenster, um nicht in einen „fremden“ Garten zu sehen. Außer beim Eingang, hier würde ich eine Wand schräg ergänzen, und das Fenster schaut in einen kleinen Lichtschacht.
der Plan ist von mir gezeichnet worden und soll nun an einen Planer für den Einreichplan übergeben werden. Mich würde aber vorab eure Meinung dazu interessieren.
weitere Infos:
Über den Hauswirtschaftsraum Raum kommt man in die bereits bebaute Halle. In die Halle kommt alles mit Technik.
die Wand mit den Glasflächen im EG zeigt Richtung Westen und in den Garten. Der Eingang ist nur seitlich über den Garten möglich.
Im 1. Stock ist der Blick Richtung Osten/Norden/Westen ein Traum, somit haben wir hier grosse Fenster geplant. Das wäre Schlafzimmer und Büro.
die Terrasse soll mit einer ca. 1,70 tiefen Betonplatte, die sich bis zum Eingang zieht, überdacht werden. Der Bereich, wo man sitzt, wird dann noch zusätzlich mit Glas überdacht, damit man geschützter ist und trotzdem Licht reinkommt.
Wenn noch Infos fehlen, bitte um Infos.
ansonsten vielen Dank schon einmal für eure Gedanken
K
K a t j a04.01.25 08:13Moin, bitte immer den Fragebogen ausfüllen:
https://www.hausbau-forum.de/threads/grundriss-planung-unbedingt-vor-beitrag-erstellung-lesen.11714/post-79977
Außerdem am besten alle angrenzenden Gebäude in Skizzen als Rechteck einzeichnen sowie das gesamte Grundstück inkl. Stellplätzen, Zuwegung und Himmelsrichtungen.
Grundsätzlich zur Wiedernutzung eines Kellers: Wurde dessen Tragfähigkeit/Statik geprüft und lässt zwei Geschosse mit dem gewählten Material zu?
https://www.hausbau-forum.de/threads/grundriss-planung-unbedingt-vor-beitrag-erstellung-lesen.11714/post-79977
Außerdem am besten alle angrenzenden Gebäude in Skizzen als Rechteck einzeichnen sowie das gesamte Grundstück inkl. Stellplätzen, Zuwegung und Himmelsrichtungen.
Grundsätzlich zur Wiedernutzung eines Kellers: Wurde dessen Tragfähigkeit/Statik geprüft und lässt zwei Geschosse mit dem gewählten Material zu?
Josy1990 schrieb:
Hallo alle zusammen,
Wir möchten am Grundstück (altes Betriebsgebäude meiner Großeltern) in Österreich auf eine alte Garage (Bauplatte ist da und statisch gesehen bebaubar) zweistöckig bauen.
Grundfläche ist 11,08x8,22m.
Da wir von zwei Seiten eine Halle anschließen haben, sind auf den zwei Seiten (Norden und Osten) keine Fenster im EG möglich (außer eine erhöhte Fensteröffnung über dem Esstisch). Die Wand Richtung Süden schließt an den Garten meiner Groseltern. Somit möchte ich hier auch keine Fenster, um nicht in einen „fremden“ Garten zu sehen. Außer beim Eingang, hier würde ich eine Wand schräg ergänzen, und das Fenster schaut in einen kleinen Lichtschacht.
der Plan ist von mir gezeichnet worden und soll nun an einen Planer für den Einreichplan übergeben werden. Mich würde aber vorab eure Meinung dazu interessieren.
weitere Infos:
Über den Hauswirtschaftsraum Raum kommt man in die bereits bebaute Halle. In die Halle kommt alles mit Technik.
die Wand mit den Glasflächen im EG zeigt Richtung Westen und in den Garten. Der Eingang ist nur seitlich über den Garten möglich.
Im 1. Stock ist der Blick Richtung Osten/Norden/Westen ein Traum, somit haben wir hier grosse Fenster geplant. Das wäre Schlafzimmer und Büro.
die Terrasse soll mit einer ca. 1,70 tiefen Betonplatte, die sich bis zum Eingang zieht, überdacht werden. Der Bereich, wo man sitzt, wird dann noch zusätzlich mit Glas überdacht, damit man geschützter ist und trotzdem Licht reinkommt.
Wenn noch Infos fehlen, bitte um Infos.
ansonsten vielen Dank schon einmal für eure Gedanken [ATTACH alt="IMG_3971.jpeg"]89656[/ATTACH]Fragebogen:Bebauungsplan/Einschränkungen
Größe des Grundstücks - bebaute Fläche auf der gebaut werden soll 11,08x8,22 m. Restliche Garten ca. 700m2
Hang -Nein
Grundflächenzahl - 2
Geschossflächenzahl - ca. 80-90m2
Baufenster, Baulinie und -grenze
Randbebauung
Anzahl Stellplatz - nicht direkt an Haus
Geschossigkeit
Dachform - Satteldach
Stilrichtung
Ausrichtung - Westen
Maximale Höhen/Begrenzungen - bauklasse 2, Höhe kein Problem laut Gemeinde, da nebenan ein 20m Halle steht
weitere Vorgaben
Anforderungen der Bauherren
Stilrichtung, Dachform, Gebäudetyp
Keller, Geschosse - zwei Geschosse, kein Keller (bereits vorhanden, Bodenplatte statisch geprüft und ok)
Anzahl der Personen, Alter - 2 EW (33,37) 1 Kind (1Jahr) Hund
Raumbedarf im EG, OG
Büro: Familiennutzung oder Homeoffice?- viel Homeoffice, und selbstständig
Schlafgäste pro Jahr - ab und zu
offene oder geschlossene Architektur - offen
konservativ oder moderne Bauweise - modern, mit architektonisches Aufgreifen als Gebäude/Weinkeller in Umgebung
offene Küche, Kochinsel - offen mit Kücheninsel, Blick und Öffnung Richtung Garten
Anzahl Essplätze - 8 Personen (Alltag 6)
Kamin - ja, verbauter Kachelofen mit Sichtfenster
Musik/Stereowand
Balkon, Dachterrasse - nein
Garage, Carport - nicht am Haus möglich
Nutzgarten, Treibhaus
weitere Wünsche/Besonderheiten/Tagesablauf, gern auch Begründungen, warum dieses oder das nicht sein soll - Möglichkeit die Glasfenster/Schiebetüren in den Garten und auf die Terrasse so weit wie möglich zu öffnen, damit Garten mit innen verschmilzt.
Glasbodenplatte entlang von Fenster im 1. Stock im Büro, damit Licht in das Wohnzimmer unten kommen kann
Hausentwurf
Von wem stammt die Planung:
-Do-it-Yourself
Was gefällt besonders? Warum?
Was gefällt nicht? Warum?
Preisschätzung laut Architekt/Planer:
Persönliches Preislimit fürs Haus, inkl. Ausstattung:
favorisierte Heiztechnik: wärmepumpe, Fußbodenheizung und Kühlung
Wenn Ihr verzichten müsst, auf welche Details/Ausbauten
-könnt Ihr verzichten:
-könnt Ihr nicht verzichten: Büro mit Ausblick, große Glasfläche in den Garten
Warum ist der Entwurf so geworden, wie er jetzt ist? ZB
persönliche Wünsche gemischt mit räumlichen Gegebenheiten.
K a t j a schrieb:
Moin, bitte immer den Fragebogen ausfüllen:
https://www.hausbau-forum.de/threads/grundriss-planung-unbedingt-vor-beitrag-erstellung-lesen.11714/post-79977
Außerdem am besten alle angrenzenden Gebäude in Skizzen als Rechteck einzeichnen sowie das gesamte Grundstück inkl. Stellplätzen, Zuwegung und Himmelsrichtungen.
Grundsätzlich zur Wiedernutzung eines Kellers: Wurde dessen Tragfähigkeit/Statik geprüft und lässt zwei Geschosse mit dem gewählten Material zu?Danke für den Hinweis. Habe ihn jetzt so gut ich kann ausgefüllt und ergänzt.
statisch gesehen wurde die bodenplatte von einem Baumeister überprüft und ist in Ordnung. Da es früher eine Wirtschaft war, konnten auch Traktoren usw. darauf fahren.
Ähnliche Themen