Hausbau - Ratgeber
Bauherrenhilfe
- Bauherrenhilfe vor Vertragsabschluss
-- Warum einen unabhängigen Baubetreuer?
-- Vertragsgrundlagen
-- Bausumme
-- Zahlungsplan zur Kostenkontrolle
-- Pflichten des Bauherren vor Vertragsabschluss
-- Unterlagen beim Hausbau vor Vertragsabschluss
- Bauherrenhilfe nach Vertragsabschluss
-- Bauantrag bei Behörden
-- Bau-Genehmigungsverfahren bei Baubehörden
-- Bauspezifische Versicherungen
-- Bauzeitenplan
-- Baubeginn - die Letzten Pflichten der Bauherrschaft
- Bauherrenhilfe während der Bauzeit
- Gewährleistungsansprüche
- Bauabnahme
Baufinanzierung
- Baufinanzierung - Allgemeine Fragen
- Kreditarten
- Kredit-Konditionen
- Bausparen
- Staatliche Förderungen
- Verkehrswert
- Haushaltsrechnung und Bonität
Hausbau Planung
- Haustypen
- Hausbau Vorbereitungsarbeiten
- Das Baugrundstück
- Baugrund beim Hausbau
- Baurecht
- Gebäudeschutz
- Erdarbeiten und Wasserhaltung
- Stützmauern
- Einfriedung
- Untergeschoss
- Kanalisation
- Tragende Elemente
- Nichttragende Innenwände
- Fundation / Fundament
- Deckenkonstruktionen
- Dächer
- Kaminanlagen
- Treppen Rampen Leitern
- Dachbeläge und Spengler
- Fenster
- Sonnen und Wetterschutz
- Aussenputze
- Einbauten, Küchen, Türen
- Bodenbeläge und Unterlagsböden
- Parkett
- Gips, Wand, Decke
Haustechnik und Energie
- Heiztechnik
- Lüftung und Klimatechnik
- Sanitärtechnik
- Elektrotechnik
- Erneuerbare Energie
Whirlpools / Jacuzzi
Hausbau Magazin
- Baufinanzierung trotz Krise?
- Das Blockhaus
- Moderne Dämmstoffe im Vergleich
- Erker Vor- und Nachteile
- Glasflächen beim Hausbau
- Günstig ein Haus Bauen
- Mediterraner Hausbaustil
- Mehrgenerationenhaus
- Moderne Architektur
- Gartengestaltung leicht gemacht
- Traditioneller Ziegelbau
- Villa als höchster Traum
- Im Eigenheim Ruhestand geniessen
- Altbau sanieren
- Kauf einer Holzgarage
- Immobilienmakler
- Arbeitshandschuhe für den Winter
- Zuhause verschönern
- Outdoor-Plissees
- Schlafzimmer planen
- Terrassenüberdachung
- Wohngebäudeversicherung
- Zaunarten und Eigenschaften
- Hauseingang gestalten
- Der perfekte Grundriss
- Sparsamer heizen im Altbau
- Einfamilienhaus smart finanzieren
- Planung einer PV-Anlage
- Neues Haus
- Immobilienfinanzierung
- Installation einer Photovoltaikanlage
- Asbest erkennen und entfernen
- Gartenpflege im Frühling – worauf achten
- Sauna im Fokus - Wellness zuhause
- Erfolgreich vermieten
- Die perfekte Winterbekleidung
- Das Niedrigenergiehaus
- Der April und seine Stürme
- Architektonische Vielfalt
- Ökologisch und nachhaltig bauen
- Das perfekte Schlafzimmer
- Nachhaltige Energieversorgung
- Zukunftsorientiert bauen
- Nachhaltigkeit beim Hausbau
- Tiny Houses
- Wärmepumpen als nachhaltige Heizvariante
- Maßgeschneiderten Kleiderschrank
- Der richtige Baukredit
- Ratgeber für erfolgreichen Hausbau
- Haus als Altersvorsorge
Do-it-yourself Anleitungen
- Verlegeanleitung für Bodenbeläge und Parkett
- Bodenbeläge und Parkett reinigen und pflegen
- Malerarbeiten am Haus
- Garten Tipps
- Umzug und Reinigung

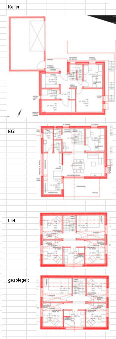
ᐅ Grundriss Einfamilienhaus ca. 160m², Haupteingang im Keller, Nordhang 1700m²

Erstellt am: 25.07.24 07:06
B
Boman19
Y
ypg
11.09.25 12:58
Mich irritieren die verschiedenen Nordpfeile!

Baugrundstücksplan mit Geländeformen und Grundrisszeichnung eines Hauses
kbt0911.09.25 14:06
ypg schrieb:

Mich irritieren die verschiedenen Nordpfeile!
Ich denke, nur der grüne Pfeil ist der echte Nordpfeil. Die schwarzen Pfeile sind alle eher irgendwo wie "Richtungspfeile" von Erdbewegungen oder so zu deuten.

Crux ist wie immer, dass die Pläne in unterschiedlichen Ausrichtungen eingestellt werden. Hier waren es 3 unterschiedliche Ausrichtungen.

Mal zusammengestellt, nur zur Übersicht:

Architekturpläne mit Grundstücks- und Hausgrundrissen und Geländeprofil


Was dadurch sehr negativ auffällt, ist, die Südecke des EG mit der Küche .. wo die Hochschrankecke geplant ist. Halte ich für neuplanungswürdig. Die 3m breite Küche ist nicht Fisch und nicht Fleisch. Sie eignet sich weder als gute 2-Zeiler-Küche noch als echte Inselküche oder ähnliches und verschwendet in der aktuellen Aufteilung Qm-Fläche.
H
hanghaus2023
11.09.25 14:45
ypg schrieb:

Ich habe den blauen Geländeschnitt als Baugrenze gesehen. Mein Fehler. Strich-Punkt ist normalerweise Baugrenze.
Ja das kann schnell passieren zumal ja Baugrenzen normal blau sind.

Wer plant denn in Rot??? Das kann kein Fachmann sein.
Y
ypg
11.09.25 15:01
kbt09 schrieb:

die Südecke des EG mit der Küche .. wo die Hochschrankecke geplant ist
Vielleicht schreibt @Boman19 mal, was man sich dabei gedacht hat. Was für ein Zweck man mit dem Hausanhängsel bezweckt.
H
hanghaus2023
11.09.25 18:41
Danke @kbt09 ich wollte den TE schon darum bitten das mal ordentlich gedreht her zu zeigen. SO faellt einem sogar auf , das das OG mMn gespiegelt gehört.

Ich sags ja Kein Fachmann am Werk.


Mehrgeschossiger Hausgrundriss mit Keller, EG und OG, rote Umrandung
kbt0912.09.25 08:16
hanghaus2023 schrieb:

SO faellt einem sogar auf , das das OG mMn gespiegelt gehört.
Stimmt, das ist im Originalanhang falsch, die Treppenlage stimmt nicht.
küche