Hausbau - Ratgeber
Bauherrenhilfe
- Bauherrenhilfe vor Vertragsabschluss
-- Warum einen unabhängigen Baubetreuer?
-- Vertragsgrundlagen
-- Bausumme
-- Zahlungsplan zur Kostenkontrolle
-- Pflichten des Bauherren vor Vertragsabschluss
-- Unterlagen beim Hausbau vor Vertragsabschluss
- Bauherrenhilfe nach Vertragsabschluss
-- Bauantrag bei Behörden
-- Bau-Genehmigungsverfahren bei Baubehörden
-- Bauspezifische Versicherungen
-- Bauzeitenplan
-- Baubeginn - die Letzten Pflichten der Bauherrschaft
- Bauherrenhilfe während der Bauzeit
- Gewährleistungsansprüche
- Bauabnahme
Baufinanzierung
- Baufinanzierung - Allgemeine Fragen
- Kreditarten
- Kredit-Konditionen
- Bausparen
- Staatliche Förderungen
- Verkehrswert
- Haushaltsrechnung und Bonität
Hausbau Planung
- Haustypen
- Hausbau Vorbereitungsarbeiten
- Das Baugrundstück
- Baugrund beim Hausbau
- Baurecht
- Gebäudeschutz
- Erdarbeiten und Wasserhaltung
- Stützmauern
- Einfriedung
- Untergeschoss
- Kanalisation
- Tragende Elemente
- Nichttragende Innenwände
- Fundation / Fundament
- Deckenkonstruktionen
- Dächer
- Kaminanlagen
- Treppen Rampen Leitern
- Dachbeläge und Spengler
- Fenster
- Sonnen und Wetterschutz
- Aussenputze
- Einbauten, Küchen, Türen
- Bodenbeläge und Unterlagsböden
- Parkett
- Gips, Wand, Decke
Haustechnik und Energie
- Heiztechnik
- Lüftung und Klimatechnik
- Sanitärtechnik
- Elektrotechnik
- Erneuerbare Energie
Whirlpools / Jacuzzi
Hausbau Magazin
- Baufinanzierung trotz Krise?
- Das Blockhaus
- Moderne Dämmstoffe im Vergleich
- Erker Vor- und Nachteile
- Glasflächen beim Hausbau
- Günstig ein Haus Bauen
- Mediterraner Hausbaustil
- Mehrgenerationenhaus
- Moderne Architektur
- Gartengestaltung leicht gemacht
- Traditioneller Ziegelbau
- Villa als höchster Traum
- Im Eigenheim Ruhestand geniessen
- Altbau sanieren
- Kauf einer Holzgarage
- Immobilienmakler
- Arbeitshandschuhe für den Winter
- Zuhause verschönern
- Outdoor-Plissees
- Schlafzimmer planen
- Terrassenüberdachung
- Wohngebäudeversicherung
- Zaunarten und Eigenschaften
- Hauseingang gestalten
- Der perfekte Grundriss
- Sparsamer heizen im Altbau
- Einfamilienhaus smart finanzieren
- Planung einer PV-Anlage
- Neues Haus
- Immobilienfinanzierung
- Installation einer Photovoltaikanlage
- Asbest erkennen und entfernen
- Gartenpflege im Frühling – worauf achten
- Sauna im Fokus - Wellness zuhause
- Erfolgreich vermieten
- Die perfekte Winterbekleidung
- Das Niedrigenergiehaus
- Der April und seine Stürme
- Architektonische Vielfalt
- Ökologisch und nachhaltig bauen
- Das perfekte Schlafzimmer
- Nachhaltige Energieversorgung
- Zukunftsorientiert bauen
- Nachhaltigkeit beim Hausbau
- Tiny Houses
- Wärmepumpen als nachhaltige Heizvariante
- Maßgeschneiderten Kleiderschrank
- Der richtige Baukredit
- Ratgeber für erfolgreichen Hausbau
- Haus als Altersvorsorge
Do-it-yourself Anleitungen
- Verlegeanleitung für Bodenbeläge und Parkett
- Bodenbeläge und Parkett reinigen und pflegen
- Malerarbeiten am Haus
- Garten Tipps
- Umzug und Reinigung

ᐅ Grundriss Einfamilienhaus ca. 140m² - Abtrennbares Treppenhaus

Erstellt am: 21.04.15 14:30
D
derelvis
Musketier24.04.15 13:30
Meiner Meinung nach ist das Treppenhaus etwas ungünstig angeordnet.
Die Erschließung von der Ecke bzw. von der kurzen Seite aus führt zu relativ langen Fluren.

Die Toilette kann man getrennt machen. Das hat alles seine Vor- und Nachteile. Bei uns wird abgeschlossen, dann ist halt das Bad dicht. Anderen reicht eine Schamwand und wieder andere haben eine getrennte Toilette. Jeder wie er's mag.
Die getrennte Toilette dürfte paar 100€ teurer sein, da mehr Fliesen + zusätzliches Waschbecken.


Was in der Diskussion glaub ich das größte Problem ist, ist die Aussage der Abtrennung. Und da sehe ich auch das Problem:
derelvis schrieb:

Thema Treppenhaus:
Dies ist problemlos abtrennbar, indem man das Treppenauge (gemauert) verlängert und nach unten mit dem Kücheneck verbindet.

Das sehe ich nicht so. Zeichne die Wand in den Grundriss ein und versuche dann mal die Tür zu schließen, um die Treppe hinaufzukommen. Allein mag das vielleicht noch irgendwie funktionieren. Zu zweit oder mit einer Einkaufskiste schon nicht mehr.
derelvis schrieb:

Die Küchenanschlüsse/Leitungen kommen ins Kinderzimmer Süd. Die 2 Kinderzimmer werden mit Durchbruch und mit einem Balkon im Westen das Wohnzimmer/Küche.

Die einzige durchgängige (eventuell auch tragende) Wand wird entfernt und dann? Wohin mit der Küche?


Wir hatten auch mal kurz die Überlegung eines abtrennbaren Erdgeschosses, das aber ganz schnell wieder verworfen. Ich glaube das funktioniert sinnvoll erst bei einer gewissen Hausgröße. Ihr habt dafür im EG einfach zu viel Platz "verschwendet" (zurückgesetzter Hauseingang und langer Flur) und auch das OG wird nie zu einer sinnvollen abgeschlossenen Wohnung werden.
M
milkie
24.04.15 14:01
Musketier schrieb:
Die getrennte Toilette dürfte paar 100€ teurer sein, da mehr Fliesen + zusätzliches Waschbecken.
Da kommt auch noch die zusätzliche Tür dazu mit mind. 200€. Prinzipiell finde ich eine getrennte Toilette nicht so schlecht. Hatte ich im Elternhaus. Gerade mit Töchtern kann man wenigstens das WC nutzen wenn mal eine das Bad blockiert Allerdings war es bei uns im 90 Grad Winkel zur Badezimmertür, also konnte man vom Bad auch mal schnell mit oder ohne Handtuch über den Flur huschen

Zum Thema abtrennbare Wohneinheiten sehe ich das wie alle anderen. Wenn, dann sinnvoll. Ein kleines Schlafzimmer mag euch jetzt theoretisch genügen, aber im Alter? Und wollt ihr dann tatsächlich auf den Luxus eures Schlafzimmers + Ankleide verzichten? Das ist dann schon eine enorme Umstellung!
Wie kommt außerdem der Mieter (egal ob familiär oder nicht) in den Keller?
D
derelvis
24.04.15 14:35
Was ich mir grade überlegt habe:
Man könnte Speis und Bad tauschen, dann hätte man Schlafzimmer + Speis nebeneinander.
Die tragenden Wände müsste man tauschen, so dass die Wand zwischen Speis und Bad tragend wird.

Wenn man im Alter nach unten zieht, kann man die Wand zwischen Speis und Schlafzimmer rausnehmen, was ein Schlafzimmer von ~5*3,4m ergäbe.
Zusätzlich hätte man den Eingang zur Speis als Eingang ins neue, große Schlafzimmer und kann den anderen Eingang (Schlafzimmer) zumauern.
So hätte man ein komplett abgetrenntes Treppenhaus, da es die Tür ins Schlafzimmer nicht mehr gibt.
Zusätzlich hat man noch den kürzeren Weg von der Eingangstür in die Speis und vom Wohnzimmer ins WC.

Wäre das ein Idee?
Wir kommen schon noch auf einen gemeinsamen Nenner.
D
derelvis
24.04.15 14:55
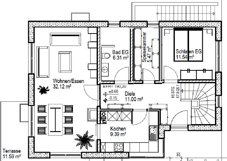
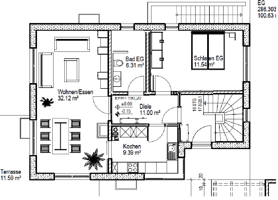
Hier die Bilder wie ich es mir vorstellen könnte, Schlafzimmer wäre dann ca. 17m².

Grundriss EG: Wohnzimmer, Essen, Küche, Diele, Bad, Schlafzimmer, Terrasse und Treppe.


Grundriss eines Hauses: Wohnzimmer/Essen, Küche, Diele, Bad, Speisekammer, Schlafen, Terrasse
M
Manu1976
24.04.15 18:12
So, macht es für später wenigstens mehr Sinn.
D
derelvis
28.04.15 10:52
Wir haben uns nun im Übrigen doch dazu entschlossen, alles so zu lassen, wie es war.
Meiner Frau war das Kücheneck zu wichtig. Hier ist alles mit einem Schritt zu erreichen.
Das wäre im neuen Entwurf nicht mehr der Fall und es wäre etwas zerstückelt.

Trotzdem werden wir die tragende Wand zwischen Schlafzimmer und Bad entfernen, so dass man das EG wie im neusten Entwurf gestalten kann.

Das heißt: Man kann beide Zwischenwände entfernen und eine neue Wand einziehen.
Dann entfällt die Speis und das Bad und das Schlafzimmer werden größer.

Danke trotzdem für die Hinweise, nur so kam die Idee mit der Umgestaltung fürs Alter.
schlafzimmertoilettetüreingangtreppenhausflurentwurf