Grundriss Einfamilienhaus ca. 140m² - Abtrennbares Treppenhaus

4,30 Stern(e) 3 Votes
Zuletzt aktualisiert 23.11.2025
Sie befinden sich auf der Seite 6 der Diskussion zum Thema: Grundriss Einfamilienhaus ca. 140m² - Abtrennbares Treppenhaus
>> Zum 1. Beitrag <<

C

Curly

Unsere Kinder sind fast aus dem Haus. Ich kann mir nicht vorstellen, dass sie bei Mami und Papi einziehen wollten, schon gar nicht freiwillig und mit Partnern.
Warum auch? Kinder leben irgendwann ihr eigenes Leben!

Deine Meinung steht ja eh fest, von daher kann ich nur noch viel Erfolg beim Hausbau wünschen.
das sehe ich auch so. Ein Kind würde dann vielleicht während der Studienzeit im Dachgeschoss wohnen, spätestens wenn dann ein Partner da wäre und eine Familie gegründet würde, wird dann ausgezogen. Das Dachgeschoss wäre dann auch viel zu klein und ein Balkon ist auch nicht vorhanden. Ich würde mich bei der Hausplanung auch nicht so einschränken, nur damit evtl. ein Kind später dort Max. 5 Jahre wohnt.

LG
Sabine
 
M

Manu1976

Ein Kind würde dann vielleicht während der Studienzeit im Dachgeschoss wohnen, spätestens wenn dann ein Partner da wäre und eine Familie gegründet würde, wird dann ausgezogen.
Na, da kenne ich aber andere Beispiele. Bei uns hier, wurden viele Häuser so gebaut, dass irgendwann mal evtl. ein Kind da mit wohnen kann. Und das tun sie zum Teil auch: Mit Partner und eigenen Kinder sogar. Aber vielleicht ist das auf dem Dorf ja anders.....
 
Jochen104

Jochen104

Na, da kenne ich aber andere Beispiele. Bei uns hier, wurden viele Häuser so gebaut, dass irgendwann mal evtl. ein Kind da mit wohnen kann. Und das tun sie zum Teil auch: Mit Partner und eigenen Kinder sogar. Aber vielleicht ist das auf dem Dorf ja anders.....
Für diesen Fall sollte man aber gleich eine richtige Einliegerwohnung planen.
 
Y

ypg

Für diesen Fall sollte man aber gleich eine richtige Einliegerwohnung planen.
Eben! Darum geht es bei diesem Entwurf. Es ist wenig durchdacht, kein Austritt (Balkon) im OG, Raumverhältnisse stimmen nicht, Platz zwar für eine Person, aber keine Familie.
Allerdings kenn ich auch Verhältnisse, in denen rigoros Abnabelungsprozesse, Eigenständigkeit und Freiraum ignoriert werden und Kind, welches in abgetrennten Zimmern bei Eltern lebt, keine Waschmaschine und Küche braucht, weil Mama eine Aufgabe braucht.
Ob das so von beiden Parteien gewollt und gut ist, muss man für sich entscheiden.
Funktioniert oft auf dem Land, dort werden aber meist große Wohnungen vorgehalten, eventuell ein Anbau geplant und Eigenständigkeit befürwortet.
 
D

derelvis

Vielen Dank für die vielen Rückmeldungen.

Thema Kamin:
Der Kamin ist recht einfach eingezeichnet, ich habe jetzt an einen Eckkamin gedacht wie im angehängten Bild.
Dieser soll 45Grad Richtung Wohnzimmer strahlen und direkt neben der Türe stehen.
Evtl. sogar so weit, dass das kleine Fenster neben der Türe nur oberhalb verglast wird und darunter der Kamin steht.
Deshalb auch nur die 50-70CM, da man Abstand braucht.
Wassergeführte Kamine sind auch nicht mit "normalen" Kaminöfen vergleichbar, da 70% ins Wasser gehen.
Vor allem seitlich ist dann ein Abstand von 20cm völlig ausreichend.

Thema Einliegerwohnung / Wohnen im EG:
Ich denke im EG haben wir nun eine gute Möglichkeit im Alter angenehm zu wohnen.
Der Balkon ist als Überlegung angedacht und kann problemlos mit 1-2 Stützen realisiert werden. (im Westen)

Im OG ist eine Möglichkeit geschaffen zu Zweit zu wohnen, evtl. auch mit (kleinem) Kind.
Dies wäre eine schöne 2-3-Zimmer Wohnung mit Küche/Esszimmer, Wohnzimmer und Schlafzimmer mit Ankleide.
Mehr wollen wir auch gar nicht, ich will sicher auf 65qm keine richtige Einliegerwohnung für 5 Personen realisieren,
die dann auch noch auf meinem Kopf wohnt

Moderne weiße Kaminanlage mit Holzvorrat; gemütliche Sitze, Fenster mit verschneiter Landschaft.
 
D

derelvis

Ich habe mal unsere Überlegungen, wie es im Alter aussehen könnte aufgemalt,
allerdings komplett selber, nur mit kopieren einfügen, also nichts vom Architekt.

Ich finde es gut so, evtl. kann man noch die tragende Wand umlegen,
dass man ein großes Wohn-/Esszimmer machen kann.

Außerdem habe ich mir die Sache mit dem WC im Bad noch überlegt.
Ich bin noch etwas unentschlossen.

Ich habe mal ein leeres Bad und 2 Entwürfe mit den richtigen Maßen reingestellt.
Die Wand im Norden kann man natürlich auch verlängern und die Wand im Osten kann raus oder nicht.
Vielleicht hat jemand eine Idee, wie man es am besten lösen kann.

Was uns wichtig ist:
Gemauerte Dusche mit Spirale oder min. 1m*1,4m
Badewanne
Doppelwaschbecken mit min. 2m Abstand nach hinten
WC (am liebsten irgendwie abgetrennt mit Türe zum Flur und zum Bad)
Wäscheabwurf muss erreichbar sein.

Grundriss eines Gebäudeteils mit Treppenaufgang, Innenwänden, Türen und Maßlinien.


Bad DG Grundriss mit Badewanne und Doppelwaschbecken, Eingangstür


Grundriss eines Badbereichs im Dachgeschoss mit Badewanne, WC und Waschbecken


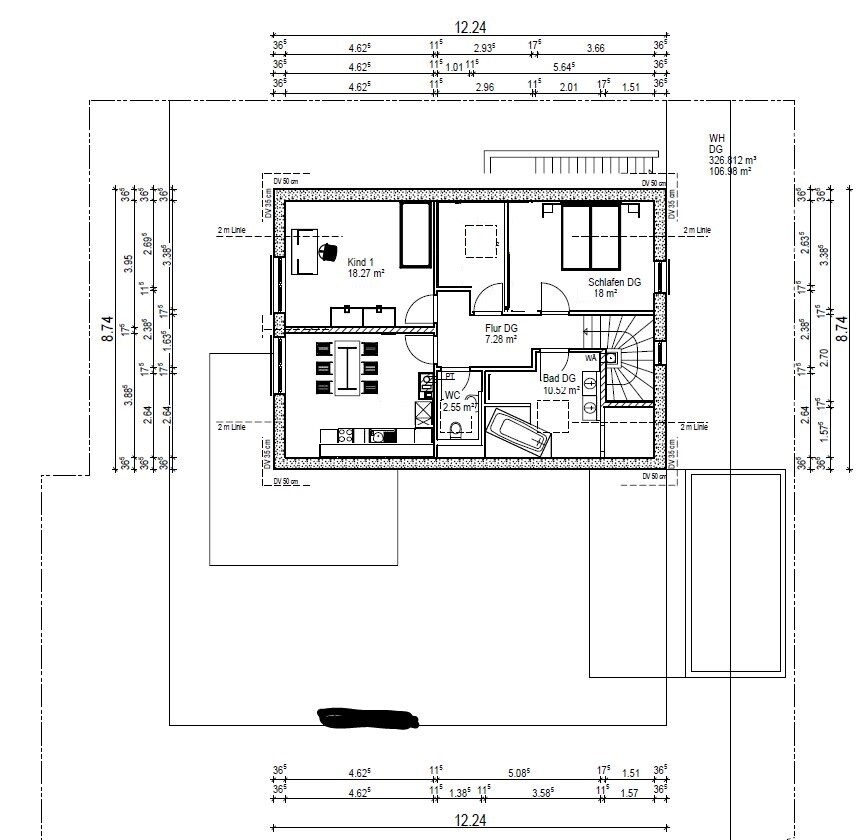
Grundriss eines Dachgeschosses mit Schlafzimmer, Kinderzimmer, Küche, Bad, WC und Flur.


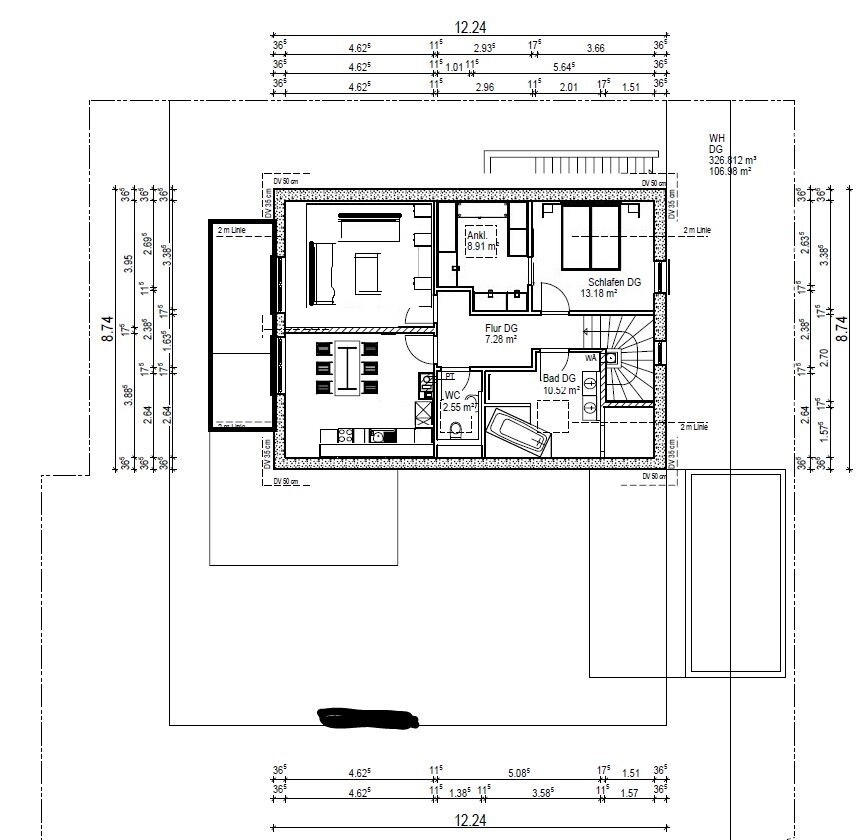
Grundriss Dachgeschoss: Küche, Essbereich, Wohnzimmer, Flur, Bad, WC, Schlafraum, Ankleide
 
Zuletzt aktualisiert 23.11.2025
Im Forum Grundrissplanung / Grundstücksplanung gibt es 2535 Themen mit insgesamt 87994 Beiträgen


Ähnliche Themen zu Grundriss Einfamilienhaus ca. 140m² - Abtrennbares Treppenhaus
Nr.ErgebnisBeiträge
1Grundrissplanung Wohnzimmer-Küche 18
2Wohnzimmer / Esszimmer gestalten. Ideen gesucht 10
3Grundriss: Offenes Wohnzimmer inkl. Kamin - Feedback 11
4Wohnen/Essen/Küche: Wie wohnt ihr oder werdet ihr wohnen? - Seite 752
5Neubau Einfamilienhaus - Begleitet uns dabei! - Seite 38348
6Kombination Fliesen und Parkett im Wohnzimmer mit offener Küche - Seite 330
7Grundriss Einfamilienhaus mit Einliegerwohnung 77
83. Zimmer im 40qm Wohnzimmer unterkriegen. Ideen - Seite 374
9Grundriss Einfamilienhaus Stadtvilla mit Einliegerwohnung - Was meint ihr? - Seite 317
10Definition für eine Einliegerwohnung 20
11Einliegerwohnung für Eltern: 210 m² Einfamilienhaus und 80 m² Einliegerwohnung - Seite 13129
12KfW-Kredit + Tilgungszuschuss für Einliegerwohnung - Seite 339
13Einfamilienhaus Freistehend am Hang mit Einliegerwohnung 25
14Grundrissplanung EFH mit 4 Kinderzimmer und Einliegerwohnung 17
15Grundrisse Einfamilienhaus mit Einliegerwohnung bitte Tipps und Feedback 62
16Einfamilienhaus mit Einliegerwohnung - Anregungen für Neulinge 13
17Grundrissentwurf Einfamilienhaus Stadtvilla mit Einliegerwohnung KFW40+ - Seite 349
18Grundriss Einfamilienhaus Einliegerwohnung als 3-Parteien-Haus - Seite 969
19Grundriss-Tipps Einfamilienhaus mit Einliegerwohnung gewünscht 49
20Grundrisse Einfamilienhaus mit Einliegerwohnung 280 m2 auf 320m2 sympathisch kleinen Grundstück 86

Oben