ᐅ Grundriss Einfamilienhaus barrierefrei fürs Alter mit Eltern-Schlafzimmer im EG
Erstellt am: 13.07.21 22:17
N
NagučkiHallo liebes Forum,
es geht mir hier erstmal rein um den Grundriss im EG, da hänge ich mich schon seit Wochen dran auf. Wir möchten gern jetzt schon barrierefrei bauen und direkt im EG wohnen, sodass die Kinder die 1. Etage haben. Leider finde ich absolut keine Grundrisse, die zu diesem Wunsch passen.
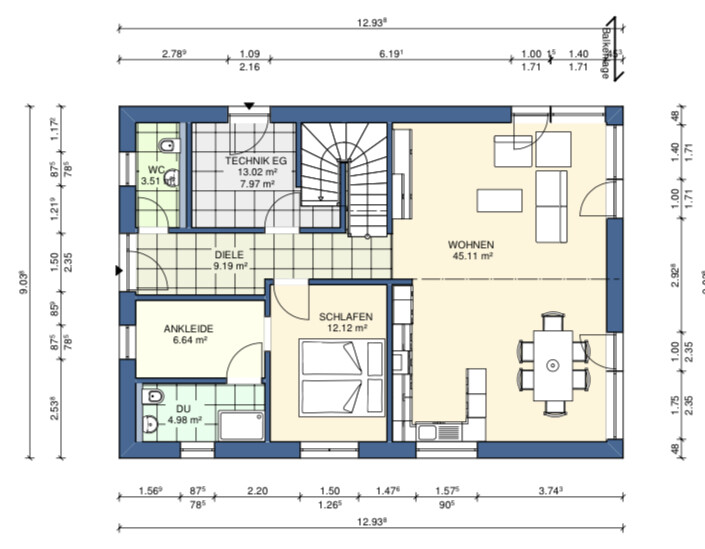
Der Berater hat uns einen Grundriss gezeichnet, allerdings finde ich die Kösung mit dem Masterbad unglücklich. Zudem wird durch das riesige EG das OG entsprechend groß, wo wir soviel Platz aber gar nicht brauchen.
Eventuell habt ihr Hinweise, wie man das besser lösen kann.
danke vorab
Bebauungsplan/Einschränkungen
ca. 650qm (33breit, 22tief) reines Bauland
kein Hang
Geschossigkeit 2
Satteldach
Anforderungen der Bauherren
Außen ist uns aussehen völlig egal
2 Geschosse
Kein Keller
2 Erw. & 2 Kinder
Büro: Homeoffice
offene Architektur
moderne Bauweise
offene Küche, Kochinsel
6 Essplätze
Kamin
Garage, Carport
Pool
Smarthome
Kfw40+
Hausentwurf
Von wem stammt die Planung:
-Planer eines Bauunternehmens
Was gefällt besonders? Warum?
Es ist ein Grundriss und man erkennt es auch.
Was gefällt nicht? Warum?
Wohnbereich erscheint mir zu klein, 2 Bäder nicht nötig
Preisschätzung lt Architekt/Planer: 480k
Persönliches Preislimit fürs Haus, inkl Ausstattung: 600k
favorisierte Heiztechnik: Wärmepumoe

es geht mir hier erstmal rein um den Grundriss im EG, da hänge ich mich schon seit Wochen dran auf. Wir möchten gern jetzt schon barrierefrei bauen und direkt im EG wohnen, sodass die Kinder die 1. Etage haben. Leider finde ich absolut keine Grundrisse, die zu diesem Wunsch passen.
Der Berater hat uns einen Grundriss gezeichnet, allerdings finde ich die Kösung mit dem Masterbad unglücklich. Zudem wird durch das riesige EG das OG entsprechend groß, wo wir soviel Platz aber gar nicht brauchen.
Eventuell habt ihr Hinweise, wie man das besser lösen kann.
danke vorab
Bebauungsplan/Einschränkungen
ca. 650qm (33breit, 22tief) reines Bauland
kein Hang
Geschossigkeit 2
Satteldach
Anforderungen der Bauherren
Außen ist uns aussehen völlig egal
2 Geschosse
Kein Keller
2 Erw. & 2 Kinder
Büro: Homeoffice
offene Architektur
moderne Bauweise
offene Küche, Kochinsel
6 Essplätze
Kamin
Garage, Carport
Pool
Smarthome
Kfw40+
Hausentwurf
Von wem stammt die Planung:
-Planer eines Bauunternehmens
Was gefällt besonders? Warum?
Es ist ein Grundriss und man erkennt es auch.
Was gefällt nicht? Warum?
Wohnbereich erscheint mir zu klein, 2 Bäder nicht nötig
Preisschätzung lt Architekt/Planer: 480k
Persönliches Preislimit fürs Haus, inkl Ausstattung: 600k
favorisierte Heiztechnik: Wärmepumoe
Erstmal vorab, darf man fragen, wie alt ihr seid?
Haben auch erst fürs Alter bauen wollen (43, 41 und 5) letzten Endes aber eingesehen, dass wir fürs jetzt bauen und nicht für in 30 Jahren. Barrierefrei kann auch morgen sein, aufgrund von Unfall oder nie.
Möglicherweise ist es klüger, so zu bauen, dass das jetzige und mittelfristige wohnen schön ist und im Anschluss das für die Erben.
Im Alter mit einem riesenhaus ist doch eh Kappes.
Nur mal so als Denkansatz.
Haben auch erst fürs Alter bauen wollen (43, 41 und 5) letzten Endes aber eingesehen, dass wir fürs jetzt bauen und nicht für in 30 Jahren. Barrierefrei kann auch morgen sein, aufgrund von Unfall oder nie.
Möglicherweise ist es klüger, so zu bauen, dass das jetzige und mittelfristige wohnen schön ist und im Anschluss das für die Erben.
Im Alter mit einem riesenhaus ist doch eh Kappes.
Nur mal so als Denkansatz.
S
SumsumBiene13.07.21 22:39Nachtrag. Hab mir den Grundriss angesehen. Und vorab, ich bin absolut kein Grundrissspezi, da gibt es hier echte Profis.
Mein persönlicher Eindruck allerdings: für ein barrierefreies Wohnen im EG wirkt alles viel zu klein.
Ankleide würde ich streichen, die sollte im Fall einer Notwendigkeit der Barrierefreiheit unnötig sein. Zwei WCs sind in dem Fall auch platzverschwendung würde ich denken. Diese beiden Räume zu streichen, würde auf Anhieb bei gleicher Grundfläche wesentlich mehr Platz für Rollstuhl und Co. geben.
Nebenbei, wie breit sind die Türen, also tatsächliches Türblattmaß?
Mein persönlicher Eindruck allerdings: für ein barrierefreies Wohnen im EG wirkt alles viel zu klein.
Ankleide würde ich streichen, die sollte im Fall einer Notwendigkeit der Barrierefreiheit unnötig sein. Zwei WCs sind in dem Fall auch platzverschwendung würde ich denken. Diese beiden Räume zu streichen, würde auf Anhieb bei gleicher Grundfläche wesentlich mehr Platz für Rollstuhl und Co. geben.
Nebenbei, wie breit sind die Türen, also tatsächliches Türblattmaß?
Y
Ypsi aus NI13.07.21 22:55Ich kenne deine Herausforderungen nur zu gut! Wir hatten ein EG mit Anbauten geplant und im OG nur den Hauptkörper überbaut. War aber von außen nicht ganz so überzeugend. Haben dann alles auf Eis gelegt. Hat einfach nicht richtig eingeschlagen der Grundriss bei uns, Corona kam. Da euch die Optik von außen eh egal ist, wäre das Thema Anbauten eine Möglichkeit.
Dieses Jahr haben wir neu angefangen zu planen: EG als Rechteck, OG Mauer auf Mauer überbaut, aber mit Kniestock, ohne Erker, dafür Galerie, also Luftraum im OG und zweiter Technikraum. Es entstehen nachhaltig zwei trennbare Wohneinheiten, die sich aufgrund der Planungen aber auch deutlich in den qm unterscheiden. Oben rechnerisch 30qm weniger als unten. Für uns passt es, planen im OG aber auch zwei Privatzimmer, egal ob von uns jeweils zum arbeiten genutzt oder fürs Hobby oder was auch immer.
Dieses Jahr haben wir neu angefangen zu planen: EG als Rechteck, OG Mauer auf Mauer überbaut, aber mit Kniestock, ohne Erker, dafür Galerie, also Luftraum im OG und zweiter Technikraum. Es entstehen nachhaltig zwei trennbare Wohneinheiten, die sich aufgrund der Planungen aber auch deutlich in den qm unterscheiden. Oben rechnerisch 30qm weniger als unten. Für uns passt es, planen im OG aber auch zwei Privatzimmer, egal ob von uns jeweils zum arbeiten genutzt oder fürs Hobby oder was auch immer.
N
nordanney13.07.21 23:15Nagučki schrieb:
Eventuell habt ihr Hinweise, wie man das besser lösen kann.Erst dann barrierefrei und altersgerecht bauen, wenn es nötig ist. Oder seid Ihr schon um die 60? Alles andere ist m.E. Unsinn. Ich habe im Leben unterschiedliche Anforderungen - also baue ich auch jeweils unterschiedlich. Die eierlegende Wollmilchsau gibt es nicht (oder zumindest nicht für T€ 480).Ähnliche Themen