ᐅ Grundriss Einfamilienhaus 420m2. Welche Treppen?
Erstellt am: 06.12.17 19:33
Peter117206.12.17 19:33
Hallo!
Wir haben uns ein 420m² großes Grundstück gekauft und planen nächstes Jahr zu bauen.
Kurz zum Bauvorhaben:
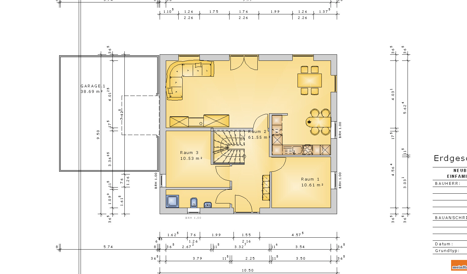
Das EG soll neben, Küche / Wohn-Essbereich ein Duschbad und ein Büro enthalten. Im DG sollen 3 Zimmer und Bad entstehen. Wir werden ohne Keller bauen.
Das Haus wird 1,5 Geschosse haben und EG +DG sollen zusammen ca. 150qm bemessen.
Welche Treppe sollen wir nehmen: eine viertelgewendelte Treppe oder eine halbgewendelte?
ob es noch Vorschläge gibt.
Danke für Eure Unterstützung.

Wir haben uns ein 420m² großes Grundstück gekauft und planen nächstes Jahr zu bauen.
Kurz zum Bauvorhaben:
Das EG soll neben, Küche / Wohn-Essbereich ein Duschbad und ein Büro enthalten. Im DG sollen 3 Zimmer und Bad entstehen. Wir werden ohne Keller bauen.
Das Haus wird 1,5 Geschosse haben und EG +DG sollen zusammen ca. 150qm bemessen.
Welche Treppe sollen wir nehmen: eine viertelgewendelte Treppe oder eine halbgewendelte?
ob es noch Vorschläge gibt.
Danke für Eure Unterstützung.
ypg06.12.17 22:55
Das kommt auf den Grundriss sowie der Dachneigung, Kniestock etc. an.
Bei der 2-Fach Gewendelten wirkt zwar der Flur größer, dafür ist sie unbequemer.
Ich würde sie, so wie sie ist, gar nicht dort platzieren, sondern die Fläche Flur nutzbar machen, zb als Garderobenraum.
Du solltest JPGs einstellen. Oder den Acrobat Reader mitliefern 😉
Bei der 2-Fach Gewendelten wirkt zwar der Flur größer, dafür ist sie unbequemer.
Ich würde sie, so wie sie ist, gar nicht dort platzieren, sondern die Fläche Flur nutzbar machen, zb als Garderobenraum.
Du solltest JPGs einstellen. Oder den Acrobat Reader mitliefern 😉
Peter117207.12.17 18:44
Danke für die Antwort.
Ich habe jetzt die Bilder als JPGs hochgeladen.
Wo wurdest du die Treppe platzieren?
Was halltest du allgemein von dem Entwurf?


Ich habe jetzt die Bilder als JPGs hochgeladen.
ypg schrieb:
Ich würde sie, so wie sie ist, gar nicht dort platzieren, sondern die Fläche Flur nutzbar machen, zb als Garderobenraum.
Wo wurdest du die Treppe platzieren?
Was halltest du allgemein von dem Entwurf?
11ant07.12.17 21:10
Peter1172 schrieb:
Wo wurdest du die Treppe platzieren?
Was halltest du allgemein von dem Entwurf?Beides läßt sich eigentlich kaum beurteilen, ohne das Obergeschoss dazu zu kennen.https://www.instagram.com/11antgmxde/
https://www.linkedin.com/company/bauen-jetzt/
ypg07.12.17 22:34
Peter1172 schrieb:
Danke für die Antwort.
Ich habe jetzt die Bilder als JPGs hochgeladen.
Wo wurdest du die Treppe platzieren?
Was halltest du allgemein von dem Entwurf?Grundrissdiskussionen funktionieren nur mit den Angaben aus dem angepinnten Beitrag.
Aber kurz: wenig halte ich davon. Küche schlecht erreichbar, eingekesselt und unscheinbar. Erreichbar nur durch die Chillecke: jeder stört jeden.
Bei uns ist die Küche Mittelpunkt und erste Anlaufstelle.
Keine Ahnung, wie Ihr so tickt.
Treppe in U-Form würd ich eher 1- 1,5 Meter nach planoben verschieden, damit sich ein Raum planunten ergibt.
Raum 4 ist völlig unattraktiv. Verschenkter Raum vorne.
11ant08.12.17 00:26
ypg schrieb:
Treppe in U-Form würd ich eher 1- 1,5 Meter nach planoben verschieden, damit sich ein Raum planunten ergibt.Diese Treppe so traufnah funktioniert auch nur mit Kniestock.ypg schrieb:
Raum 4 ist völlig unattraktiv. Verschenkter Raum vorne.So isses.https://www.instagram.com/11antgmxde/
https://www.linkedin.com/company/bauen-jetzt/
Ähnliche Themen