ᐅ Grundriss Einfamilienhaus 2 Vollgeschoss ~180m² Wohnfläche - 760m² Grundstück
Erstellt am: 17.11.21 19:44
H
HumpfreyN
Nice-Nofret19.11.21 20:06in dem Zitat hab ich nur meine Prioritäten aufgeschrieben, im Unterschied zu anderen geäusserten Meinungen. Es war keine Kritik sondern eine Bestätigug.
ypg schrieb:
Leider nicht.
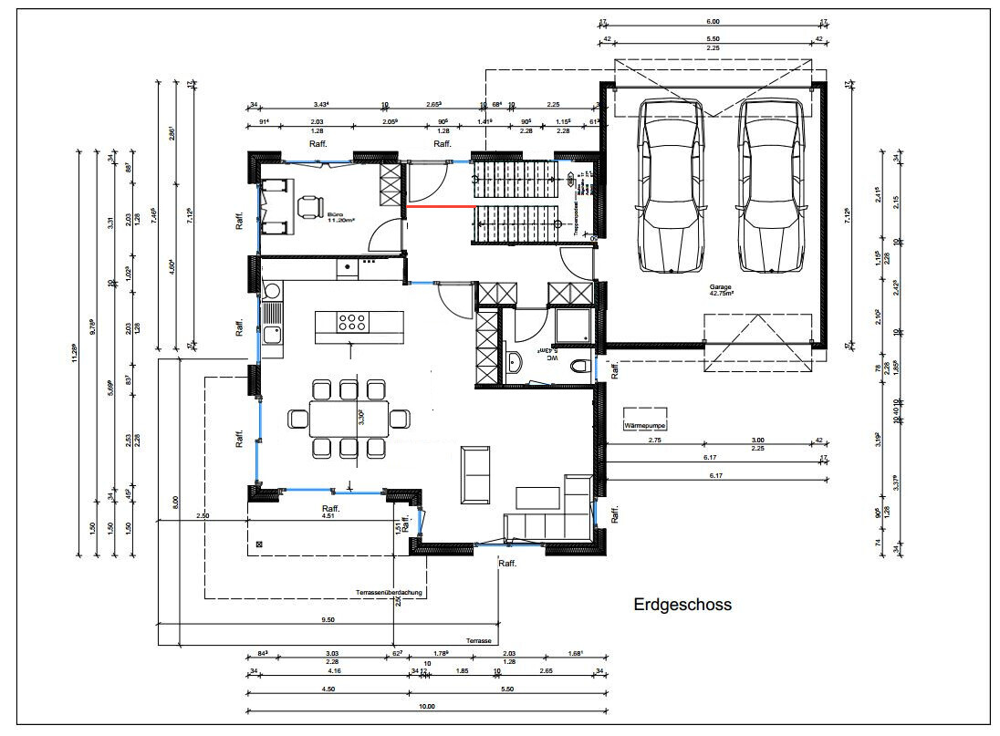
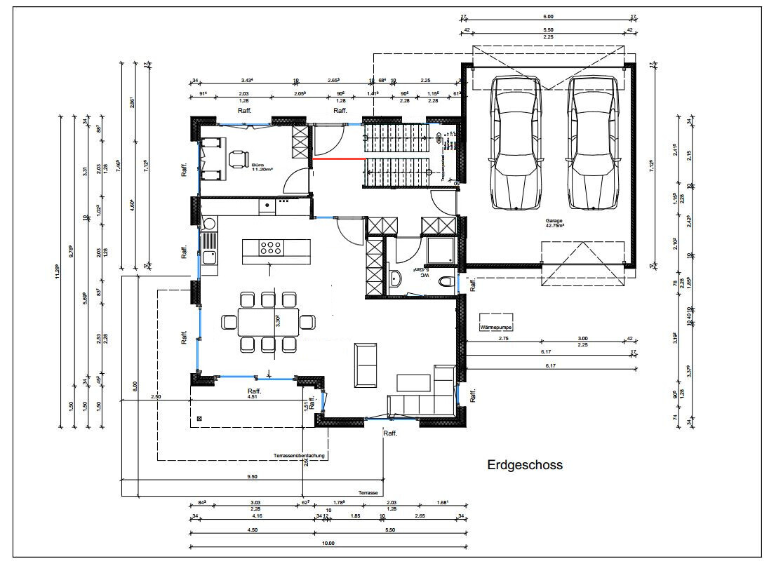
Ich bin gerade am Rumprobieren mit Deinem Grundriss, weil ich der Meinung bin, dass die Abstellräume mitten im Haus kontraproduktiv sind.
Wie dem auch sei - es ist bei mir kein Ergebnis in Sicht mit dieser Treppen- und Hausform, ohne dass ich Deine Ideen verbiegeWürde es deinem rumprobieren entgegenkommen, wenn man die Voraussetzung der trennbaren Wohneinheit rausnimmt? Wir stehen einer anderen Treppenform ebenfalls offen gegenüber. Was wir dennoch unbedingt wollen, ist ein Windfang im Eingangsbereich - idealerweise direkt mit Garderobe. Man soll nicht direkt im Wohnraum/Küche stehen, sobald man das Haus betritt. Weiter wollen wir einen direkten Zugang von der Garage ins Haus, sowie ein Büro im EG beibehalten. Im Grunde sollte das Raumprogramm an sich, schon das beinhalten, wie es auch im Plan berücksichtigt ist. Auch was die Hausform angeht, sind wir eigentlich nur durch die Abstandsflächen limitiert.
11ant schrieb:
Fällt es Euch denn schwer, meine Diagnose konstruktiv zu lesen (ich habe sie extra einfach geschrieben) ?Tatsächlich ist unser Entwurf an einen Grundriss von Bekannten angelehnt, deren Außenmaße 13x14m beträgt (von den Verhältnissen also eigentlich ähnlich unsere), und uns optisch bzw. vom Raumgefühl fantastisch anspricht. Aus diesem haben wir versucht unsere "Kompromisse" (Trennbare Wohneinheit; Zugang Garage-Haus; Gäste-WC mit Dusche) mit einzubauen.. Die Umsetzung in diesen Außenmaßen scheint uns aus finanzieller Sicht sowie den "Platzgründen" auf dem Grundstück nicht realisierbar für uns.
Dass die Speisekammer in der Mitte angeordnet ist finden wir eigentlich auch ganz schön. Hier würden wir uns vorstellen, ggf. eine Nische zusätzlich einzuplanen und darin einen Side By Side Kühlschrank zu platzieren, um so in der "Küche" an sich mehr Arbeitsfläche zu haben. Dies auch unabhängig davon, ob und wie sich der Plan künftig ändert.
Vielen Dank an alle die sich Unserer annehmen und ihre Gedanken beitragen 🙂
Um Gottes Willen! Selbst mit Kontrollierte-Wohnraumlüftung dürfte ein innenliegender Abstellraum ohne Fenster mit einem Kühl/TK-Schrank schnell zur kleinen Sauna werden. Kühlgeräte haben ganz schön Abwärme.
Wir haben eine Speis mit Fenster und Kontrollierte-Wohnraumlüftung und im Sommer wird die trotz geöffnetem Fenster an der Nordseite durch unseren TK manchmal ganz schön warm. Ich möchte mir nicht ausmalen, wie die Temperatur ist, wenn da kein Fenster wäre...
Wir haben eine Speis mit Fenster und Kontrollierte-Wohnraumlüftung und im Sommer wird die trotz geöffnetem Fenster an der Nordseite durch unseren TK manchmal ganz schön warm. Ich möchte mir nicht ausmalen, wie die Temperatur ist, wenn da kein Fenster wäre...
Climbee schrieb:
Um Gottes Willen! Selbst mit Kontrollierte-Wohnraumlüftung dürfte ein innenliegender Abstellraum ohne Fenster mit einem Kühl/TK-Schrank schnell zur kleinen Sauna werden. Kühlgeräte haben ganz schön Abwärme.
Wir haben eine Speis mit Fenster und Kontrollierte-Wohnraumlüftung und im Sommer wird die trotz geöffnetem Fenster an der Nordseite durch unseren TK manchmal ganz schön warm. Ich möchte mir nicht ausmalen, wie die Temperatur ist, wenn da kein Fenster wäre...Ich glaub das hast du falsch verstanden oder ich mich missverständlich ausgedrückt. Die Nische soll so geplant sein, dass das Kühlgerät natürlich nicht IM Abstellraum steht, sondern im Bereich der Küche zugänglich ist aber halt in der Wand "verschwindet".
Grüße
Humpfrey schrieb:
Tatsächlich ist unser Entwurf an einen Grundriss von Bekannten angelehnt, deren Außenmaße 13x14m beträgt (von den Verhältnissen also eigentlich ähnlich unsere), und uns optisch bzw. vom Raumgefühl fantastisch anspricht.Dreizehn mal vierzehn auf elf mal elf zu schrumpfen, läßt aber eher nicht all zu begründet auf einen Beibehalt der Raumgefühls hoffen. Im übrigen empfinde ich das auch nicht wirklich als Beantwortung meiner Rückfrage:11ant schrieb:
Fällt es Euch denn schwer, meine Diagnose konstruktiv zu lesen (ich habe sie extra einfach geschrieben) ?https://www.instagram.com/11antgmxde/
https://www.linkedin.com/company/bauen-jetzt/
Hier mal eine Idee für das EG. Dein Wunsch nach Trennbarkeit der Etagen und Durchgang Garage-Haus blieb erhalten (rote Linie) Küche, Ess- und Wohnzimmer weniger gedrängt. Später könntest Du das WZ abtrennen und als großes Schlafzimmer nutzen. Oben funktioniert es mit der Treppe sicher auch, da entsteht dann ein nach Norden offener Gang, von dem alle Zimmer abzweigen können.

Ähnliche Themen