Hausbau - Ratgeber
Bauherrenhilfe
- Bauherrenhilfe vor Vertragsabschluss
-- Warum einen unabhängigen Baubetreuer?
-- Vertragsgrundlagen
-- Bausumme
-- Zahlungsplan zur Kostenkontrolle
-- Pflichten des Bauherren vor Vertragsabschluss
-- Unterlagen beim Hausbau vor Vertragsabschluss
- Bauherrenhilfe nach Vertragsabschluss
-- Bauantrag bei Behörden
-- Bau-Genehmigungsverfahren bei Baubehörden
-- Bauspezifische Versicherungen
-- Bauzeitenplan
-- Baubeginn - die Letzten Pflichten der Bauherrschaft
- Bauherrenhilfe während der Bauzeit
- Gewährleistungsansprüche
- Bauabnahme
Baufinanzierung
- Baufinanzierung - Allgemeine Fragen
- Kreditarten
- Kredit-Konditionen
- Bausparen
- Staatliche Förderungen
- Verkehrswert
- Haushaltsrechnung und Bonität
Hausbau Planung
- Haustypen
- Hausbau Vorbereitungsarbeiten
- Das Baugrundstück
- Baugrund beim Hausbau
- Baurecht
- Gebäudeschutz
- Erdarbeiten und Wasserhaltung
- Stützmauern
- Einfriedung
- Untergeschoss
- Kanalisation
- Tragende Elemente
- Nichttragende Innenwände
- Fundation / Fundament
- Deckenkonstruktionen
- Dächer
- Kaminanlagen
- Treppen Rampen Leitern
- Dachbeläge und Spengler
- Fenster
- Sonnen und Wetterschutz
- Aussenputze
- Einbauten, Küchen, Türen
- Bodenbeläge und Unterlagsböden
- Parkett
- Gips, Wand, Decke
Haustechnik und Energie
- Heiztechnik
- Lüftung und Klimatechnik
- Sanitärtechnik
- Elektrotechnik
- Erneuerbare Energie
Whirlpools / Jacuzzi
Hausbau Magazin
- Baufinanzierung trotz Krise?
- Das Blockhaus
- Moderne Dämmstoffe im Vergleich
- Erker Vor- und Nachteile
- Glasflächen beim Hausbau
- Günstig ein Haus Bauen
- Mediterraner Hausbaustil
- Mehrgenerationenhaus
- Moderne Architektur
- Gartengestaltung leicht gemacht
- Traditioneller Ziegelbau
- Villa als höchster Traum
- Im Eigenheim Ruhestand geniessen
- Altbau sanieren
- Kauf einer Holzgarage
- Immobilienmakler
- Arbeitshandschuhe für den Winter
- Zuhause verschönern
- Outdoor-Plissees
- Schlafzimmer planen
- Terrassenüberdachung
- Wohngebäudeversicherung
- Zaunarten und Eigenschaften
- Hauseingang gestalten
- Der perfekte Grundriss
- Sparsamer heizen im Altbau
- Einfamilienhaus smart finanzieren
- Planung einer PV-Anlage
- Neues Haus
- Immobilienfinanzierung
- Installation einer Photovoltaikanlage
- Asbest erkennen und entfernen
- Gartenpflege im Frühling – worauf achten
- Sauna im Fokus - Wellness zuhause
- Erfolgreich vermieten
- Die perfekte Winterbekleidung
- Das Niedrigenergiehaus
- Der April und seine Stürme
- Architektonische Vielfalt
- Ökologisch und nachhaltig bauen
- Das perfekte Schlafzimmer
- Nachhaltige Energieversorgung
- Zukunftsorientiert bauen
- Nachhaltigkeit beim Hausbau
- Tiny Houses
- Wärmepumpen als nachhaltige Heizvariante
- Maßgeschneiderten Kleiderschrank
- Der richtige Baukredit
- Ratgeber für erfolgreichen Hausbau
- Haus als Altersvorsorge
Do-it-yourself Anleitungen
- Verlegeanleitung für Bodenbeläge und Parkett
- Bodenbeläge und Parkett reinigen und pflegen
- Malerarbeiten am Haus
- Garten Tipps
- Umzug und Reinigung

ᐅ Grundriss Einfamilienhaus 160qm, 2 Vollgeschosse - Bitte um Tipps!

Erstellt am: 03.03.19 12:53
C
Calbe
C
Calbe
03.03.19 12:53
Hallo alle zusammen,

Das Grundstück ist gekauft worden:
https://www.hausbau-forum.de/threads/6-eckiges-Grundstück-efh-mit-carport-garage-platzieren.27840/

Und jetzt haben wir uns für einen GU entschieden und planen ein Massivhaus mit 2 Vollgeschossen mit 160 qm ohne Keller im der Nähe von Göttingen bauen. Da wir nun in der heißen Phase der Grundrissplanung sind, wären wir sehr für eure Meinungen und Optimierungsvorschläge dankbar.

Welche Variante ist besser?

Vielen Dank für die Tipps!

2D-Grundrissplan eines Hauses mit offener Küche, Essbereich, Wohnzimmer und weiteren Räumen


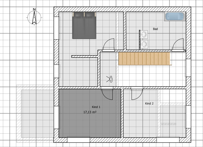
2D-Grundriss eines Hauses mit Bad, zwei Kinderzimmern und Schlafzimmer


2D Grundrissplan eines Hauses mit Wohnzimmer, Küche, Essbereich, Bad und Gästezimmer


2D Grundriss eines Hauses mit zwei Kinderzimmern, Bad, Flur und Treppenbereich


Bebauungsplan Nr. 022 Teilbereich IV: farblich markierte Zonen und Straßen


Lageplan eines Wohngebiets mit Parzellen, Straßen, Grünflächen und Preisen
kbt0903.03.19 13:02
Es wäre nett, wenn du https://www.hausbau-forum.de/threads/grundrissplanung-unbedingt-vor-beitrag-erstellung-lesen.11714/ noch in den Beitrag 1 kopierst.

Die Grundrisse mit Maßen versiehst, den Lageplan dazu nimmst, skizzierst, wie das Haus nun auf dem Grundstück liegen soll. Und, da war auch Gefälle ... wie dieses berücksichtigt wird. Dann kann man irgendwann auch zu Grundrissdiskussionen kommen.
J
jucre45
03.03.19 22:16
Hi,

was mir erstmal so bei den ersten Bildern einfällt:
- Treppe direkt an der Haustür? Jedes mal durch den Dreck wenn man ins OG geht ... ? Mich würde das stören :-(
- Schlafzimmer ist irgendwie suboptimal, viel Fläche ungenutzt. Schränke kommen da wahrscheinlich keine rein, wenn ich die Ankleide sehe.
- Eingang Ankleide würde ich mittig machen, ist irgendwie stimmiger und eventuell schrank-technisch besser planbar.
- Fenster oben wären noch interessant
- würde eher das Gästezimmer größer machen als den Hauswirtschaftsraum ... oder kommt da so viel Technik rein?
11ant04.03.19 01:58
Calbe schrieb:
Da wir nun in der heißen Phase der Grundrissplanung sind, wären wir sehr für eure Meinungen und Optimierungsvorschläge dankbar.
Mir scheint, da ist ein ungeeignetes sofa-Symbol auf die "Maße über alles" der tatsächlich gewünschten Sofa-Landschaft gestaucht und gezogen worden. Wenn es an Maßangaben mangelt und daher ersatzweise solchen Symbolen eine dimensionsgebende Wirkung für die Mitdenkenden zukommt, ist das kontraproduktiv.
https://www.instagram.com/11antgmxde/
https://www.linkedin.com/company/bauen-jetzt/
grundstückankleidesofa