Hausbau - Ratgeber
Bauherrenhilfe
- Bauherrenhilfe vor Vertragsabschluss
-- Warum einen unabhängigen Baubetreuer?
-- Vertragsgrundlagen
-- Bausumme
-- Zahlungsplan zur Kostenkontrolle
-- Pflichten des Bauherren vor Vertragsabschluss
-- Unterlagen beim Hausbau vor Vertragsabschluss
- Bauherrenhilfe nach Vertragsabschluss
-- Bauantrag bei Behörden
-- Bau-Genehmigungsverfahren bei Baubehörden
-- Bauspezifische Versicherungen
-- Bauzeitenplan
-- Baubeginn - die Letzten Pflichten der Bauherrschaft
- Bauherrenhilfe während der Bauzeit
- Gewährleistungsansprüche
- Bauabnahme
Baufinanzierung
- Baufinanzierung - Allgemeine Fragen
- Kreditarten
- Kredit-Konditionen
- Bausparen
- Staatliche Förderungen
- Verkehrswert
- Haushaltsrechnung und Bonität
Hausbau Planung
- Haustypen
- Hausbau Vorbereitungsarbeiten
- Das Baugrundstück
- Baugrund beim Hausbau
- Baurecht
- Gebäudeschutz
- Erdarbeiten und Wasserhaltung
- Stützmauern
- Einfriedung
- Untergeschoss
- Kanalisation
- Tragende Elemente
- Nichttragende Innenwände
- Fundation / Fundament
- Deckenkonstruktionen
- Dächer
- Kaminanlagen
- Treppen Rampen Leitern
- Dachbeläge und Spengler
- Fenster
- Sonnen und Wetterschutz
- Aussenputze
- Einbauten, Küchen, Türen
- Bodenbeläge und Unterlagsböden
- Parkett
- Gips, Wand, Decke
Haustechnik und Energie
- Heiztechnik
- Lüftung und Klimatechnik
- Sanitärtechnik
- Elektrotechnik
- Erneuerbare Energie
Whirlpools / Jacuzzi
Hausbau Magazin
- Baufinanzierung trotz Krise?
- Das Blockhaus
- Moderne Dämmstoffe im Vergleich
- Erker Vor- und Nachteile
- Glasflächen beim Hausbau
- Günstig ein Haus Bauen
- Mediterraner Hausbaustil
- Mehrgenerationenhaus
- Moderne Architektur
- Gartengestaltung leicht gemacht
- Traditioneller Ziegelbau
- Villa als höchster Traum
- Im Eigenheim Ruhestand geniessen
- Altbau sanieren
- Kauf einer Holzgarage
- Immobilienmakler
- Arbeitshandschuhe für den Winter
- Zuhause verschönern
- Outdoor-Plissees
- Schlafzimmer planen
- Terrassenüberdachung
- Wohngebäudeversicherung
- Zaunarten und Eigenschaften
- Hauseingang gestalten
- Der perfekte Grundriss
- Sparsamer heizen im Altbau
- Einfamilienhaus smart finanzieren
- Planung einer PV-Anlage
- Neues Haus
- Immobilienfinanzierung
- Installation einer Photovoltaikanlage
- Asbest erkennen und entfernen
- Gartenpflege im Frühling – worauf achten
- Sauna im Fokus - Wellness zuhause
- Erfolgreich vermieten
- Die perfekte Winterbekleidung
- Das Niedrigenergiehaus
- Der April und seine Stürme
- Architektonische Vielfalt
- Ökologisch und nachhaltig bauen
- Das perfekte Schlafzimmer
- Nachhaltige Energieversorgung
- Zukunftsorientiert bauen
- Nachhaltigkeit beim Hausbau
- Tiny Houses
- Wärmepumpen als nachhaltige Heizvariante
- Maßgeschneiderten Kleiderschrank
- Der richtige Baukredit
- Ratgeber für erfolgreichen Hausbau
- Haus als Altersvorsorge
Do-it-yourself Anleitungen
- Verlegeanleitung für Bodenbeläge und Parkett
- Bodenbeläge und Parkett reinigen und pflegen
- Malerarbeiten am Haus
- Garten Tipps
- Umzug und Reinigung

ᐅ Grundriss, Bauen mit Baum, Einliegerwohnung und Altbestand

Erstellt am: 21.02.23 20:48
B
BucheOnBoard
H
hanghaus2023
22.10.23 11:45
ypg schrieb:

Ich weiß ja nicht, was Dir für Maße in Deinem Programm angezeigt werden, aber bei mir sieht es nach knappen 90qm aus. Kann es sein, dass die Werkstatt/der Carport bei Dir mitberechnet wurde? Als Referenz habe ich die 13,50 von dem Ursprungsplan links genommen.

[ATTACH alt="Bildschirmfoto 2023-10-21 um 15.53.21.png"]82468[/ATTACH]

Danke fuer das nachzeichnen.

Ich habe 9 m*12.5 m für das Haus. Ursprung war 10 m * 13,5 m

Aus Der Skizze geht hervor, dass meine Aussage richtig ist. Die nutzbaren Räume sind wesentlich größer.

Wenn ich den Wandstummel weg lasse, wie im Beitrag #70 gezeigt dann ist das Slafzimmer nicht mehr so beengt, aber falls man Wert drauf legt abzuteilen tuts ja zur Not ein Vorhang.
H
hanghaus2023
22.10.23 11:53
Ieider wieder mal die 4 min.? Sorry.

Hier die Berichtigung.

Wenn ich den Wandstummel weg lasse, wie im Beitrag #84 gezeigt dann ist das Slafzimmer nicht mehr so beengt, aber falls man Wert drauf legt abzuteilen, tuts ja zur Not ein Vorhang.

135m2 *0.8 sind ca. 108 m2 Wohnfläche

112,5 m2 * 0,8 sind ca. 90 m2 Wohnfläche

18 m2 * 3 k = 54 k Minderkosten.
H
hanghaus2023
22.10.23 12:07
Wir hatten hier vor einiger Zeit mal den Fall, da hat jemand ein Haus um die Eiche bauen müssen. Da war das Grundstück viel kleiner.

Ganz so extrem sehe ich das hier nicht. Mit der Verkleinerung auf 9*12,5 m wie von mir eingezeichnet, bist Du mit dem neuen Baukörper weiter von der Buche weg als das bestehende Haus.

Die Alternative ist mMn dann eher ein schmales Haus mit Anbau oder Erker.
Y
ypg
22.10.23 14:49
BucheOnBoard schrieb:

Und Treppe im Allraum würden wir auch sehr gern vermeiden...
Das ist dann oft der Grund, warum alles aneinander gereiht wird.
BucheOnBoard schrieb:

aber irgendwie nur aneinandergereiht, was in großen Flurflächen o.Ä. resultiert.
… und steht in Abhängigkeit zu der Größe der Flure.
BucheOnBoard schrieb:

Das z.B. die vordere Terrasse bis in die Buche hineingezeichnet ist, ist dann zwar eigentlich eine Kleinigkeit, aber sorgt eben auch für keine so gute Laune.
Warum? Die Krone fängt ja weiter oben an und kann einem Eigenbrötler viel Schatten auf der Terrasse spenden.
Man könnte natürlich auch nicht einfach das OG giebelseits abhacken, sondern ein Tortenstück rausschneiden und den Giebel verglasen, um dann die Buche im Haus zu haben 🙂 Es muss ja nicht die teure Vollflächenverglasung sein, aber ein Fenster deckenhoch und ohne Brüstung, also ein gedrehtes Fensterband, um immer den Baum in seiner Pracht sehen zu können, wäre bezahlbar.
Y
ypg
22.10.23 15:42
Was natürlich das Naheliegendste wäre, das Dachgeschoss zu verkleinern, wäre das Abdrempeln. So hat man es von je her gemacht, anstatt ein teures Flachdach zu generieren: Ohne Kniestock oder mit kleinem Bauen und innen Drempel setzen bzw. die Wände für Einbauschränke nutzen.
Der Bauherr mit der Eiche mitten auf seinem Grundstück ist meiner Erinnerung nach User @Oakland . Der hat letztendlich dreieckig gebaut, mit tollem Ausblick auf seine Eiche.
K a t j a22.10.23 16:22
Ich musste auch gleich an Oakland denken, aber hier sind die Optionen imho noch etwas günstiger.
Noch ein Vorschlag zu Gunsten der Buche:


Grundriss eines Hauses mit Terrasse, Carport, Zimmern und Möbeln.


Grundriss eines Hauses mit Terrasse, Carport, Diele, Wohn-/Essbereich, Technikraum und Dusche.


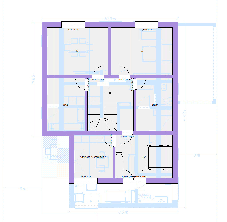
Grundriss eines Hauses mit Treppe, Fluren, Bad, Büro, Schlafzimmer und Ankleide.


Dachboden-Grundriss: zwei Räume, zentrale Treppe, violette Außenwand.




Einfamilienhaus mit dunklem Satteldach, Balkon, Terrasse auf grünem Rasen.


3D-Hausmodell: zweistöckiges Haus mit Giebeldach, Terrasse und offene Veranda
eichewandstummelvorhangwohnflächegrundstück