Giebelfenster, können uns nicht entscheiden

4,00 Stern(e) 5 Votes
Zuletzt aktualisiert 12.10.2025
Sie befinden sich auf der Seite 4 der Diskussion zum Thema: Giebelfenster, können uns nicht entscheiden
>> Zum 1. Beitrag <<

T

tumaa

Hallo zusammen,

die Änderungen sind nun abgeschlossen.

Danke Euch !



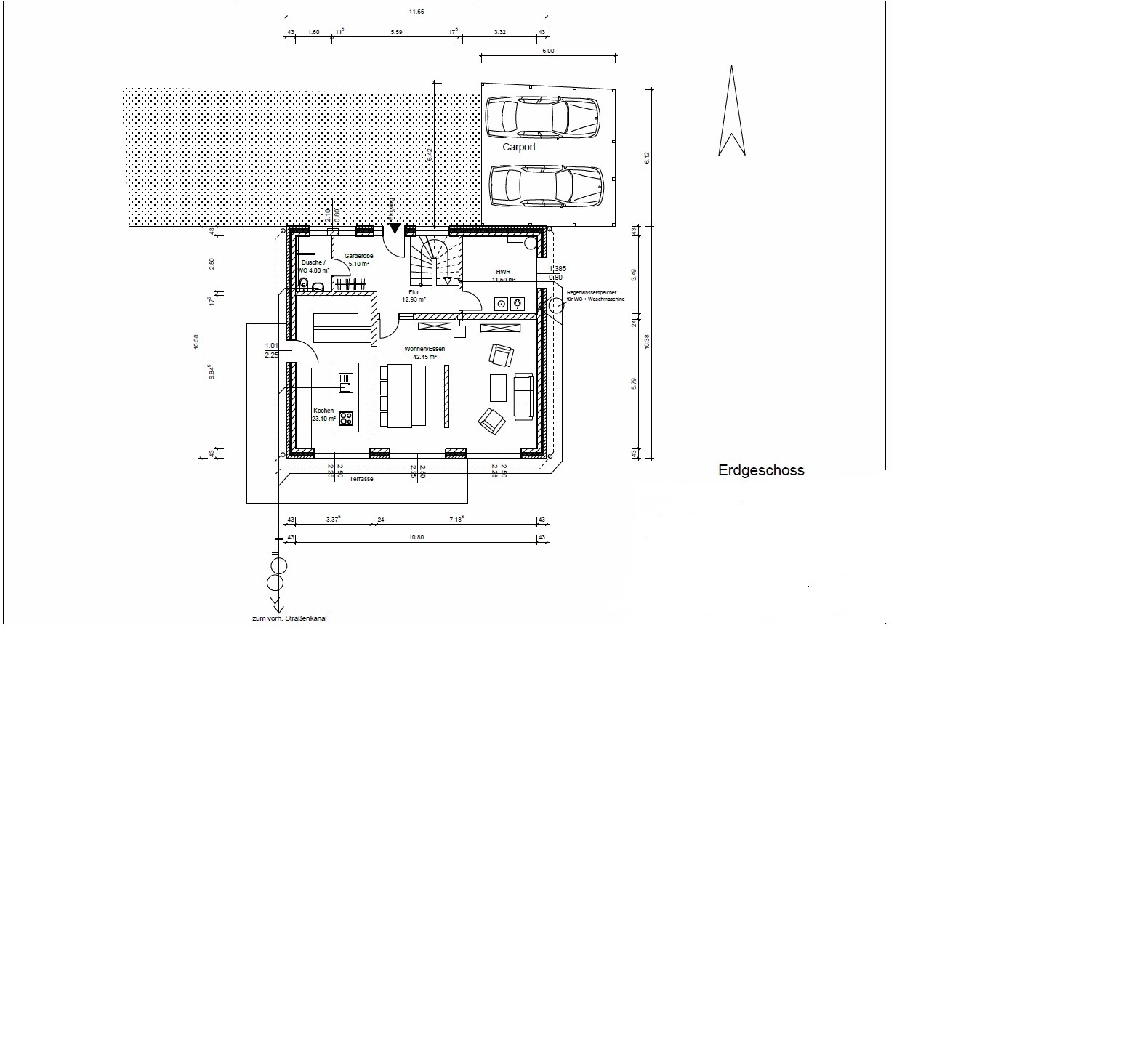
Mein Fensterbauer hatte mir ein Panoramafenster im Wohnzimmer vorgeschlagen, hat irgendwie was.

Glaube, dass das Fenster nie geöffnet werden muss? Terrasse soll über das Esszimmer- oder Küchenfenster begehbar sein.

Würde die Ansicht darunter leiden bzw. was sagt ihr dazu ?

Grundriss Erdgeschoss eines Hauses: Carport, Terrasse, Wohn-/Essbereich, Küche und Flur.
 
Zuletzt bearbeitet:
T

tumaa

Im Osten wurde ein 0,8x2,25m breites bodentiefe Fenster umgesetzt (genau an der Ecke zwischen Innen- und Außenwand, während der Bauphase) ....im Westen (Kücheseite), ist ein 1,01x2,25m breites bodentiefe Fenster.
 
Zuletzt aktualisiert 12.10.2025
Im Forum Fenster / Türen gibt es 1357 Themen mit insgesamt 15498 Beiträgen


Ähnliche Themen zu Giebelfenster, können uns nicht entscheiden
Nr.ErgebnisBeiträge
1Aufmusterung Elektro, Q2, Badfliesen, Drempel, bodentiefe Fenster 23
2Mehrkosten falsch geplante Belüftungsanlage + Bodentiefe Fenster? 50
3Bodentiefe Fenster - wie Sofa stellen? 12
4Bodentiefe Fenster - Warum bodentiefe Fenster? Vor- Nachteile? - Seite 2112
5Bodentiefe Fenster nach außen öffnend, für mehr nutzbaren Platz innen 33
6Bodentiefe Fenster im OG ohne Brüstung - Seite 465
7Nicht-bodentiefe Fenster im Wohnzimmer unmodern? Welche Vorhänge? 17
8Meinungen zu Brüstungshöhe Fenster gesucht 30
9Grundriss Einfamilienhaus geplant, Fenster gefallen uns - Seite 243
10Fenster / Türen / Garderobe 13
11Mehrkosten Anthrazit für Fenster, Haustür und Garagentor? - Seite 321
12Fenster Brüstungshöhe 25 oder 50 - Höhe Absturzsicherung - Seite 428
13Terrassentür ungleich Fenster, oder? 21
14Frontansicht Fenster sind suboptimal und müssen optimiert werden - Seite 890
15Wie viel Fenster sollte man haben? - Seite 631
16Einbruchsichere Fenster? 33
17Innenraum Gestaltung - Fenster 14
18Aufpreis für farbige Fenster realistisch? - Seite 319
19Gutachter Mängelfeststellung, Feststellung Einbau Fenster 10
20Hilfe bei der Anordnung der Fenster benötigt! 32

Oben