Bei uns steht jetzt das EG und wir müssen uns für eine Treppe entscheiden. Wir stehen vor der Wahl entweder eine geschlossene Betontreppe mit Mittelwand nach oben gemauert gießen zu lassen oder eine offene Stahl-/Holztreppe anzufertigen lassen. Der Raum unter der Treppe soll offen bleiben. Es wird noch eine weitere Treppe vom OG ins Dachgeschoss geben, die auf alle Fälle offen sein wird, im Treppenhaus OG ist auch noch ein Fenster.
Optisch tendiere ich eher zur offenen Variante unten, habe aber Bedenken wegen dem Schall, besonders weil es dann ja ein recht hohes Treppenhaus wird (ca. 8m) und es dann auch von dem Austritt im DG vielleicht unangenehm hoch wirken könnte wegen der zwei offenen Treppen. Dass eine offene Treppe mehr Reinigungsaufwand bedeutet, ist mir klar. Was meint ihr: Hat vielleicht jemand konkrete Erfahrungen zu einer ähnlichen Situation?

Optisch tendiere ich eher zur offenen Variante unten, habe aber Bedenken wegen dem Schall, besonders weil es dann ja ein recht hohes Treppenhaus wird (ca. 8m) und es dann auch von dem Austritt im DG vielleicht unangenehm hoch wirken könnte wegen der zwei offenen Treppen. Dass eine offene Treppe mehr Reinigungsaufwand bedeutet, ist mir klar. Was meint ihr: Hat vielleicht jemand konkrete Erfahrungen zu einer ähnlichen Situation?
M
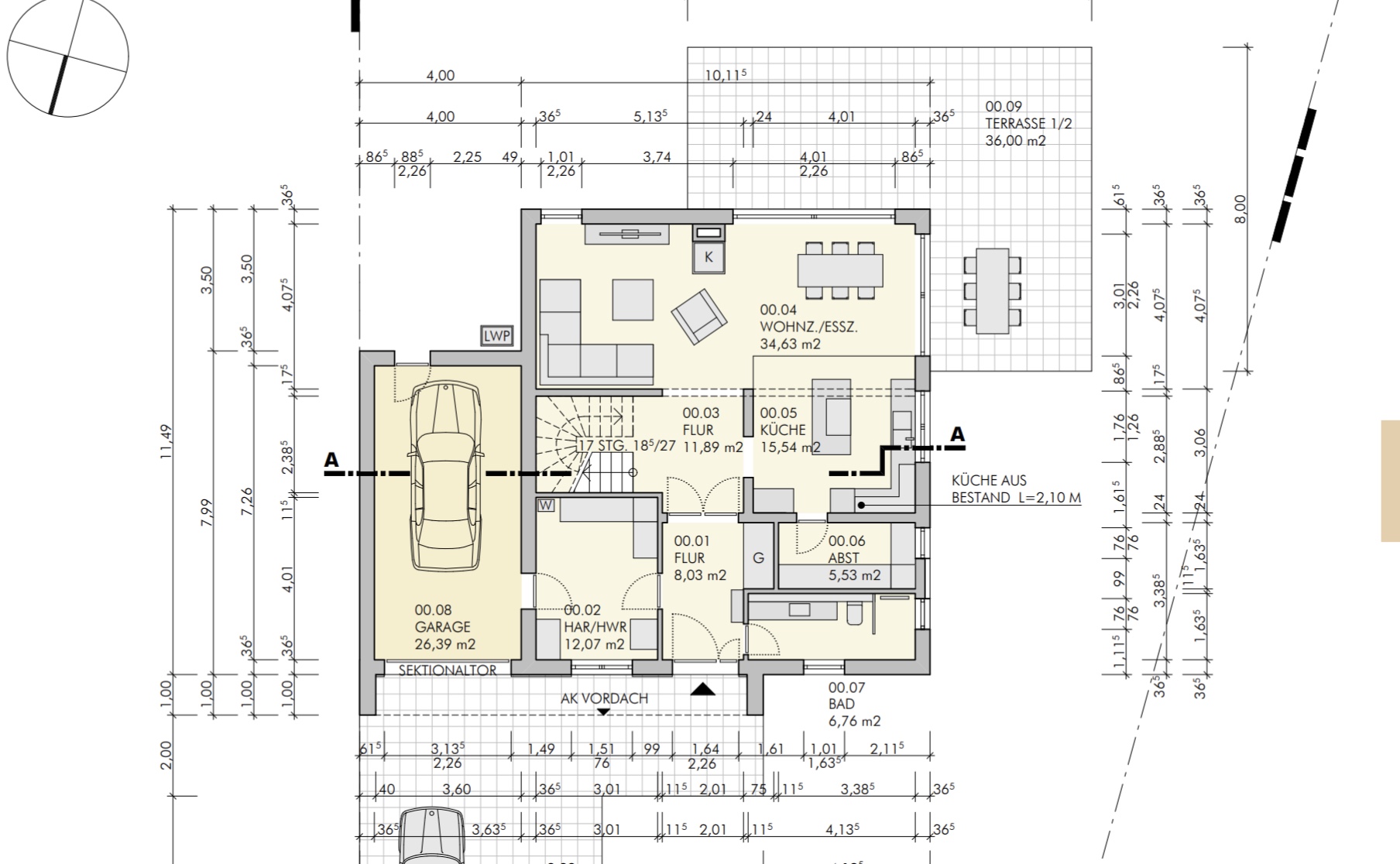
Mottenhausen07.05.19 15:03In dem Grundriss die geschlossene Treppe mit Abstellfläche darunter.
Offen macht nur Sinn, wenn man durch die "nicht vorhandenen" Setzstufen durchblicken kann und so z.B. der Raum optisch vergrößert wird oder mehr Licht rein kommt.
Offen macht nur Sinn, wenn man durch die "nicht vorhandenen" Setzstufen durchblicken kann und so z.B. der Raum optisch vergrößert wird oder mehr Licht rein kommt.
Warum habt ihr nur eine Wahl zwischen geschlossen- mit Mittelwand oder offen?
Unsere Betontreppe hat die tragenden Wände außen und in der Mitte nur ein recht luftig wirkendes Treppengeländer.
Komplett, also in der Mitte gemauert gefällt mir persönlich nicht, die offenen Stufen wollte ich allerdings auch nicht, da mir - vollkommen subjektiv - diese nicht taugen; als könnte da leichter was runterfallen/ durchrutschen
Unsere Betontreppe hat die tragenden Wände außen und in der Mitte nur ein recht luftig wirkendes Treppengeländer.
Komplett, also in der Mitte gemauert gefällt mir persönlich nicht, die offenen Stufen wollte ich allerdings auch nicht, da mir - vollkommen subjektiv - diese nicht taugen; als könnte da leichter was runterfallen/ durchrutschen
Ähnliche Themen