Moin Moin,
Wir sind aktuell in der Bauphase und besprechen das Thema GARAGE, wir haben uns eine Garage vom Bauträger mit PLANEN lassen, aber werden diese selber in Auftrag geben. Jetzt würden wir aber gerne Informationen einholen, welche Typen denn wirklich gut bzw nicht so gut sind.
Ich warte auf unterschiedliche Angebote von einigen Firmen und wollte im Vorfeld mal Erfahrungen von euch haben, was für Garagen habt ihr, gerne mal mit Bildern. Wie sind die Langzeit Erfahrungen usw usw.
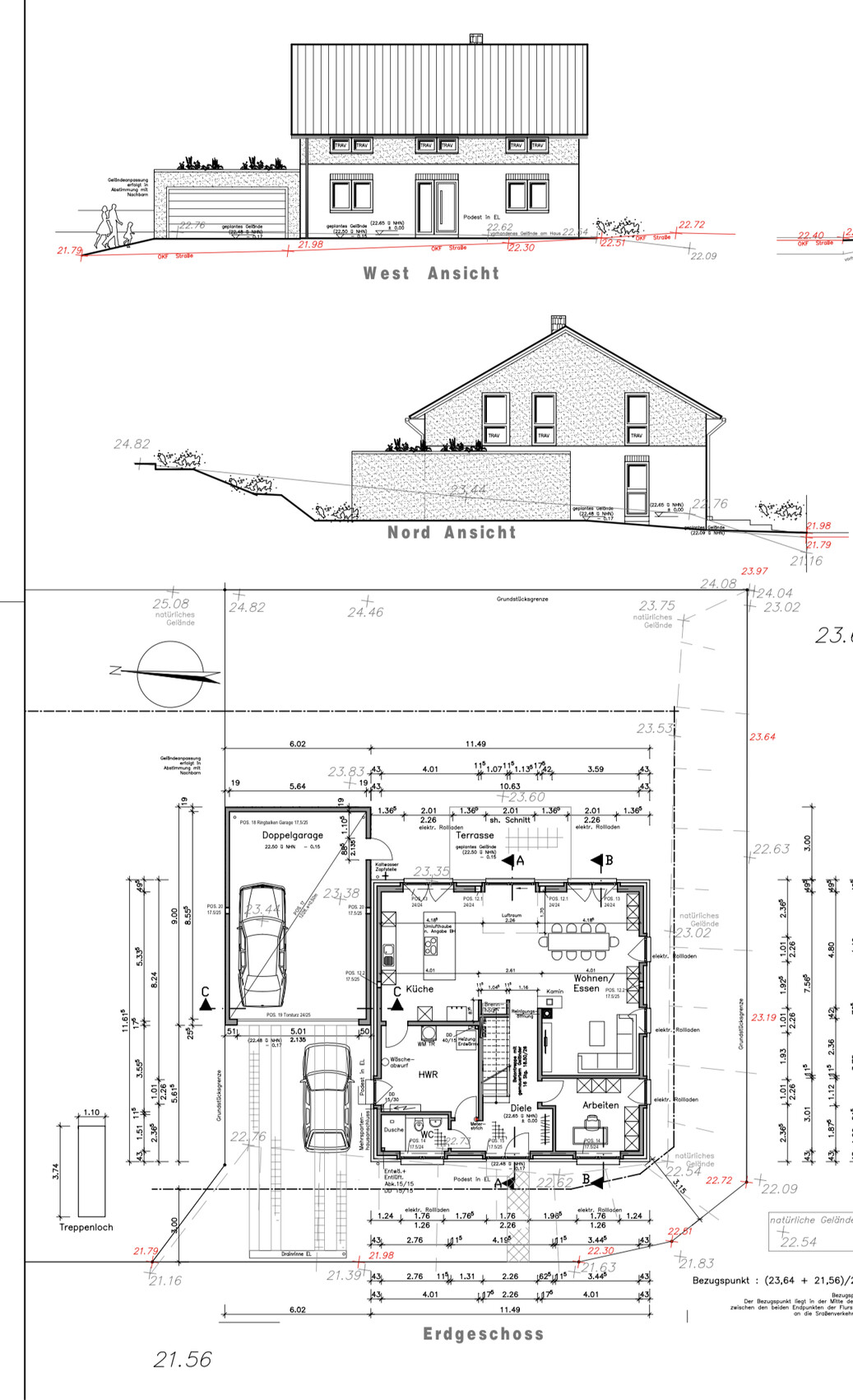
Anbei noch mal die Grundrissplanung
Gruß
Familie Mahnke

Wir sind aktuell in der Bauphase und besprechen das Thema GARAGE, wir haben uns eine Garage vom Bauträger mit PLANEN lassen, aber werden diese selber in Auftrag geben. Jetzt würden wir aber gerne Informationen einholen, welche Typen denn wirklich gut bzw nicht so gut sind.
Ich warte auf unterschiedliche Angebote von einigen Firmen und wollte im Vorfeld mal Erfahrungen von euch haben, was für Garagen habt ihr, gerne mal mit Bildern. Wie sind die Langzeit Erfahrungen usw usw.
Anbei noch mal die Grundrissplanung
Gruß
Familie Mahnke
H
hampshire13.03.20 09:47Die Fertiggarage hat für Dich Vorteile wenn Du
- die Kosten minimieren willst ohne selbst Hand anzulegen
- die Garage schnell stehen soll und Du weiteren Baustellenbetrieb satt hast
- mit den angebotenen Abmessungen zurecht kommst
hampshire schrieb:
Die Fertiggarage hat für Dich Vorteile wenn Du
- die Kosten minimieren willst ohne selbst Hand anzulegen
- die Garage schnell stehen soll und Du weiteren Baustellenbetrieb satt hast
- mit den angebotenen Abmessungen zurecht kommst
Ich würde die Priorität darauf setzen, dass die Garage ästhetisch zum Haus passt. Das bedeutet nicht zwangsläufig, dass sie das selbe Material / dieselbe Außenflächen haben muss, da kann man schon etwas spielen. Ich bin da skeptisch, dass das mit einer Fertiggarage funktioniert.js genau deswegen frage ich ja auch....weil ich gerne mal Fotos sehen würde von jemandem der das z.b. so gemacht hat
Hallo,
Ersteinmal: Der Grundriss des Hauses ist echt gut! Gefällt mir!
Ich habe ebenfalls eine Garage geplant bzw. unser GU macht die Statik und Bauantragsunterlagen, welche wir dann später in EL vergeben werden.
Nach diversen Recherchen bin ich zu dem Schluss gekommen, dass eine Fertiggarage nicht in Betracht kommt. Ich hatte Holz, Stahl und Beton verglichen und alle haben Ihre Vor- aber auch Nachteile. Wobei die Nachteile gegenüber gemauert einfach überwiegen.
Wir werden die Garage mauern (lassen). Material je nach Statik Porenbeton, Kalksandstein oder Poroton. Da wir eine kleine Werkstatt mit einplanen und wir auch Grenzbebauung haben, tendiere ich zu Kalksandstein (wg. Schallschutz).
Ihr habt 6m Außenmaß, was je nach Wanddicke zu einem schon merklich beengten Innenmaß führen kann. Fertiggaragen können hier durch einen geringeren Wandaufbau mehr Platz bieten.
Stehen 2 Autos in der Garage, dann wird es schon arg eng werden.
Noch was zum Grundriss:
Die Türe zwischen Küche und Hauswirtschaftsraum würde ich ein Stück nach planrechts schieben. Wenn erwünscht, diese Türe mit Lichtausschnitt. Dann kann Tageslicht in den sonst eher dunklen Raum rein ("Lichtachse").
Zusätzlich kann im Hauswirtschaftsraum hinter die Türe ein Regal gestellt werden und in der Küche die Küchenzeile bis an diese Wand gezogen werden.
Ersteinmal: Der Grundriss des Hauses ist echt gut! Gefällt mir!
Ich habe ebenfalls eine Garage geplant bzw. unser GU macht die Statik und Bauantragsunterlagen, welche wir dann später in EL vergeben werden.
Nach diversen Recherchen bin ich zu dem Schluss gekommen, dass eine Fertiggarage nicht in Betracht kommt. Ich hatte Holz, Stahl und Beton verglichen und alle haben Ihre Vor- aber auch Nachteile. Wobei die Nachteile gegenüber gemauert einfach überwiegen.
Wir werden die Garage mauern (lassen). Material je nach Statik Porenbeton, Kalksandstein oder Poroton. Da wir eine kleine Werkstatt mit einplanen und wir auch Grenzbebauung haben, tendiere ich zu Kalksandstein (wg. Schallschutz).
Ihr habt 6m Außenmaß, was je nach Wanddicke zu einem schon merklich beengten Innenmaß führen kann. Fertiggaragen können hier durch einen geringeren Wandaufbau mehr Platz bieten.
Stehen 2 Autos in der Garage, dann wird es schon arg eng werden.
Noch was zum Grundriss:
Die Türe zwischen Küche und Hauswirtschaftsraum würde ich ein Stück nach planrechts schieben. Wenn erwünscht, diese Türe mit Lichtausschnitt. Dann kann Tageslicht in den sonst eher dunklen Raum rein ("Lichtachse").
Zusätzlich kann im Hauswirtschaftsraum hinter die Türe ein Regal gestellt werden und in der Küche die Küchenzeile bis an diese Wand gezogen werden.
Die 6 Meter sind inkl. Außenwänden wirklich nicht viel.
Bin jetzt kein Rohbaufachmann, aber wenn man die Garage vor Ort erstellt, kann man nicht die rechte Garagenwand überwiegend weglassen? So dass die Außenwand des Hauses dort in einem die Innenwand der Garage darstellt? Das Dach muss dann natürlich an dieser Seite an der Hauswand verankert werden.
Würde auch das Haus ein klitzekleines Stückchen Richtung Garten schieben, weil man es dann im Baufenster auch noch etwas nach planrechts schieben kann, so dass mehr Breite für die Garage bliebe.
Bin jetzt kein Rohbaufachmann, aber wenn man die Garage vor Ort erstellt, kann man nicht die rechte Garagenwand überwiegend weglassen? So dass die Außenwand des Hauses dort in einem die Innenwand der Garage darstellt? Das Dach muss dann natürlich an dieser Seite an der Hauswand verankert werden.
Würde auch das Haus ein klitzekleines Stückchen Richtung Garten schieben, weil man es dann im Baufenster auch noch etwas nach planrechts schieben kann, so dass mehr Breite für die Garage bliebe.
Fabsta M schrieb:
js genau deswegen frage ich ja auch....weil ich gerne mal Fotos sehen würde von jemandem der das z.b. so gemacht hat Es gibt regionale und überregionale Anbieter. Alle haben referenzlisten, wo man tatsächlich auch hin fahren kann und schauen und ggf. mit den Bauherren Erfahrungen austauschen kann.Ähnliche Themen