ᐅ Fensterplanung DG - Giebelfenster größer oder Dachflächenfenster
Erstellt am: 07.07.21 13:35
K
kgeislerHallo zusammen,
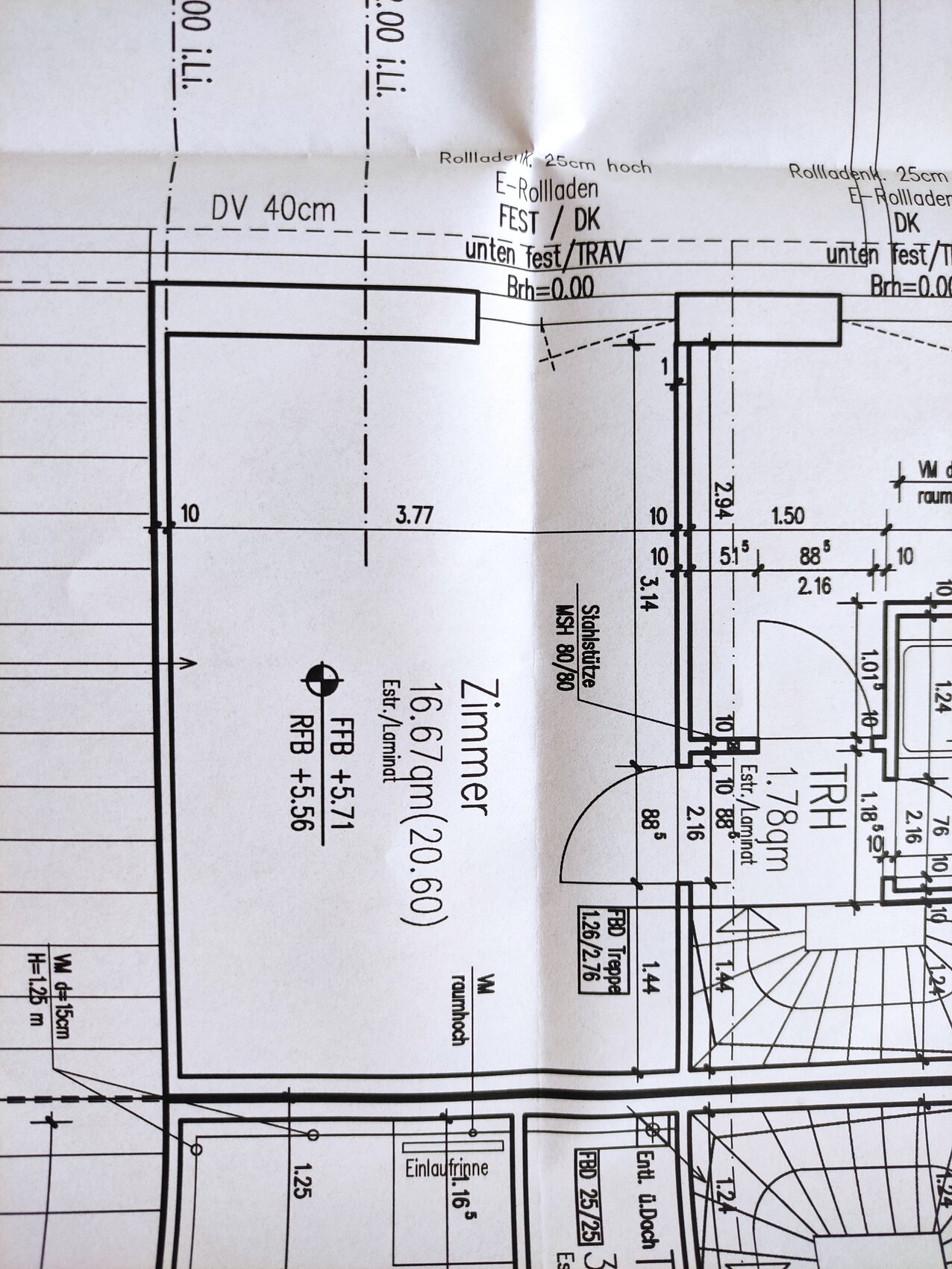
wir sind gerade in der letzten Planung unserer Doppelhaushälfte und haben im DG ein recht großes Fenster mit Schräge geplant.
Dort ist im Standard ein Giebelfenster mit 1,54x1,14m geplant.

Das erschien uns für den Raum etwas zu klein, daher haben wir nun 2 Optionen:
Option 1: Ein Dachflächenfenster mit 0,94x1,18m (Velux GTU) für 1575 EUR
oder
Option 2: Erstmal nur Vergrößerung des Giebelfensters um 40cm für 803 EUR

Die Trav-Verglasung würde natürlich volle 40cm größer, im oberen Teil wären aber nur 22cm sichtbarer Bereich durch das, was durch Rahmen etc. ja nicht größer wird.
Was würdet ihr tun?
Das Zimmer wird ein Schlafzimmer/Kinderzimmer und ich bin nicht der größte Fan von Doppelflügelfenster. Außerdem soll auf dieser Dachseite Photovoltaik entstehen, so dass das Doppelflügelfenster uns natürlich Platz hierfür raubt.
Was würdet ihr an unserer Stelle tun? Lohnt sich die Vergrößerung des Giebelfensters oder doch lieber Doppelflügelfenster?
Danke euch für eure Einschätzung!
Viele Grüße
wir sind gerade in der letzten Planung unserer Doppelhaushälfte und haben im DG ein recht großes Fenster mit Schräge geplant.
Dort ist im Standard ein Giebelfenster mit 1,54x1,14m geplant.
Das erschien uns für den Raum etwas zu klein, daher haben wir nun 2 Optionen:
Option 1: Ein Dachflächenfenster mit 0,94x1,18m (Velux GTU) für 1575 EUR
oder
Option 2: Erstmal nur Vergrößerung des Giebelfensters um 40cm für 803 EUR
Die Trav-Verglasung würde natürlich volle 40cm größer, im oberen Teil wären aber nur 22cm sichtbarer Bereich durch das, was durch Rahmen etc. ja nicht größer wird.
Was würdet ihr tun?
Das Zimmer wird ein Schlafzimmer/Kinderzimmer und ich bin nicht der größte Fan von Doppelflügelfenster. Außerdem soll auf dieser Dachseite Photovoltaik entstehen, so dass das Doppelflügelfenster uns natürlich Platz hierfür raubt.
Was würdet ihr an unserer Stelle tun? Lohnt sich die Vergrößerung des Giebelfensters oder doch lieber Doppelflügelfenster?
Danke euch für eure Einschätzung!
Viele Grüße
S
soneva201207.07.21 13:52Ich bin auch kein Fan von Doppelflügelfenster besonders im Schlafzimmer/Kinderzimmer.
Man kann sie nicht gut verdunkeln. Beim Regen wird es sehr laut (und die Kinder werden geweckt). Wenn sie offen sind kommt deutlich mehr Dreck rein. Beim Lüften kommt kaum frische Luft rein.
Und irgendwann lässt man sie offen und es regnet!
Man kann sie nicht gut verdunkeln. Beim Regen wird es sehr laut (und die Kinder werden geweckt). Wenn sie offen sind kommt deutlich mehr Dreck rein. Beim Lüften kommt kaum frische Luft rein.
Und irgendwann lässt man sie offen und es regnet!
M
Myrna_Loy07.07.21 17:33Falls Ihr ohne Klimaanlage baut, würde ich ein Dachflächenfenster mit einplanen, um durchlüften zu können.
kgeisler schrieb:
Der Giebel zeigt nach Süden. Was würdest du denn an unserer Stelle tun?Ich versteh ehrlich gesagt nicht, warum bei Brüstungshöhe von 0 ein Fenster von Pi mal ……, ok, Streiche den letzten Satz. Problem ist das auf der Seite stehende Foto.
Ich denke, auf Süd wird das Brüstungsfenster reichen.2-flüglig und gut.
Unsers hat ähnliche Maße: 16qm Zimmer, aber Fensterbreite von 2 Metern.
Und dann bei Euch ggü der Tür sollte ein Doppelflügelfenster hin, das macht den Zugang freundlich und bringt Licht in die Ecke.
@Myrna_Loy s Tipp ist Gold wert!
Ähnliche Themen