ᐅ Feedback zur Ikea-Küche
Erstellt am: 10.11.15 22:28
Hallo zusammen,
bei uns geht es nun auch voran. Nachdem wir in der Vergangenheit schon so einige Küchenbasare besucht haben, haben wir uns letztendlich für IKEA(*) entschieden. Primär weils günstig ist - sekundär, weil mich die Küchenkomödianten zum Schluss schier zur Verzweiflung gebracht haben (1000 € Rabatt weil sie die Sonne scheint...). Bei Ikea gibts gleich gar keine Beratung... auch nicht so dolle aber besser als das.
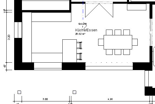
Etwas festgelegt waren wir mit der Planung wegen der Fenster... nun sind wir es noch etwas mehr wegen der Anschlüsse... Estrich ist auch schon drin.
Fronten sind Hyttan und Bodbyn - Geräte werden wir separat kaufen.
Müll sollte via Auszug unter die Spüle hatten wir gedacht.
Kurz zur Hochschrankreihe (weil man es nicht so sieht) von planlinks:
60er Schrank, Backofen, 60er Schrank, Kühlschrank, kleiner Gefrierschrank.
Gern würden wir eure Meinung hören. Noch Dinge die wir unbedingt ändern sollten? Da wir beide nicht so das Design-Gefühl haben gern auch Tipps oder Kommentare dazu.
Danke und viele Grüße



Alternativ hatten wir es auch mal mit der grauen Bodbyn-Front ausprobiert:

bei uns geht es nun auch voran. Nachdem wir in der Vergangenheit schon so einige Küchenbasare besucht haben, haben wir uns letztendlich für IKEA(*) entschieden. Primär weils günstig ist - sekundär, weil mich die Küchenkomödianten zum Schluss schier zur Verzweiflung gebracht haben (1000 € Rabatt weil sie die Sonne scheint...). Bei Ikea gibts gleich gar keine Beratung... auch nicht so dolle aber besser als das.
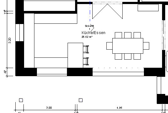
Etwas festgelegt waren wir mit der Planung wegen der Fenster... nun sind wir es noch etwas mehr wegen der Anschlüsse... Estrich ist auch schon drin.
Fronten sind Hyttan und Bodbyn - Geräte werden wir separat kaufen.
Müll sollte via Auszug unter die Spüle hatten wir gedacht.
Kurz zur Hochschrankreihe (weil man es nicht so sieht) von planlinks:
60er Schrank, Backofen, 60er Schrank, Kühlschrank, kleiner Gefrierschrank.
Gern würden wir eure Meinung hören. Noch Dinge die wir unbedingt ändern sollten? Da wir beide nicht so das Design-Gefühl haben gern auch Tipps oder Kommentare dazu.
Danke und viele Grüße
Alternativ hatten wir es auch mal mit der grauen Bodbyn-Front ausprobiert:
Was für ein Fenster ist über der spüle? Wie willst das öffnen wenn der Wasserhahn im weg steht?
Was wird die Ikea Küche ca. kosten? Ich kenne 2 Familien die sind sehr glücklich mit der Optik und dem preis.
Alternativ mal im Poco oder Roller planen und Elektroartikel im Internet kaufen.
Was wird die Ikea Küche ca. kosten? Ich kenne 2 Familien die sind sehr glücklich mit der Optik und dem preis.
Alternativ mal im Poco oder Roller planen und Elektroartikel im Internet kaufen.
Das Fenster bei der Spüle hat unten einen feststehenden Teil - ist also kein Problem.
Der Preis liegt bei etwa 5000 € (ohne Geräte , Stühle etc.)
Was meinst du denn mit nicht öffnen kann - gleichzeitig oder überhaupt?
Da war ich schon mal Viel haben wir davon schon berücksichtigt
Okay, wir schauen noch mal etwas kritischer dann.
Der Preis liegt bei etwa 5000 € (ohne Geräte , Stühle etc.)
Was meinst du denn mit nicht öffnen kann - gleichzeitig oder überhaupt?
Da war ich schon mal Viel haben wir davon schon berücksichtigt
Okay, wir schauen noch mal etwas kritischer dann.
Dann würde ich die Spüle zB mittig setzen - vom Fenster. Schrankwand alles etwas symmetrischer, Türanschlag links neben Türanschlag rechts. Unten eine Reihe Schubläden gleicher Höhe. In der Ecke zB einen Rollladenschrank. Auch mal überlegen, einen Akzent in anderer Türfarbe einzusetzen ... Sieht ja so doch etwas erschlagend aus.
Ich würde bei einer 4er Reihe die Öfen nebeneinander setzen, mittig natürlich
Ich würde bei einer 4er Reihe die Öfen nebeneinander setzen, mittig natürlich
Ähnliche Themen