Hausbau - Ratgeber
Bauherrenhilfe
- Bauherrenhilfe vor Vertragsabschluss
-- Warum einen unabhängigen Baubetreuer?
-- Vertragsgrundlagen
-- Bausumme
-- Zahlungsplan zur Kostenkontrolle
-- Pflichten des Bauherren vor Vertragsabschluss
-- Unterlagen beim Hausbau vor Vertragsabschluss
- Bauherrenhilfe nach Vertragsabschluss
-- Bauantrag bei Behörden
-- Bau-Genehmigungsverfahren bei Baubehörden
-- Bauspezifische Versicherungen
-- Bauzeitenplan
-- Baubeginn - die Letzten Pflichten der Bauherrschaft
- Bauherrenhilfe während der Bauzeit
- Gewährleistungsansprüche
- Bauabnahme
Baufinanzierung
- Baufinanzierung - Allgemeine Fragen
- Kreditarten
- Kredit-Konditionen
- Bausparen
- Staatliche Förderungen
- Verkehrswert
- Haushaltsrechnung und Bonität
Hausbau Planung
- Haustypen
- Hausbau Vorbereitungsarbeiten
- Das Baugrundstück
- Baugrund beim Hausbau
- Baurecht
- Gebäudeschutz
- Erdarbeiten und Wasserhaltung
- Stützmauern
- Einfriedung
- Untergeschoss
- Kanalisation
- Tragende Elemente
- Nichttragende Innenwände
- Fundation / Fundament
- Deckenkonstruktionen
- Dächer
- Kaminanlagen
- Treppen Rampen Leitern
- Dachbeläge und Spengler
- Fenster
- Sonnen und Wetterschutz
- Aussenputze
- Einbauten, Küchen, Türen
- Bodenbeläge und Unterlagsböden
- Parkett
- Gips, Wand, Decke
Haustechnik und Energie
- Heiztechnik
- Lüftung und Klimatechnik
- Sanitärtechnik
- Elektrotechnik
- Erneuerbare Energie
Whirlpools / Jacuzzi
Hausbau Magazin
- Baufinanzierung trotz Krise?
- Das Blockhaus
- Moderne Dämmstoffe im Vergleich
- Erker Vor- und Nachteile
- Glasflächen beim Hausbau
- Günstig ein Haus Bauen
- Mediterraner Hausbaustil
- Mehrgenerationenhaus
- Moderne Architektur
- Gartengestaltung leicht gemacht
- Traditioneller Ziegelbau
- Villa als höchster Traum
- Im Eigenheim Ruhestand geniessen
- Altbau sanieren
- Kauf einer Holzgarage
- Immobilienmakler
- Arbeitshandschuhe für den Winter
- Zuhause verschönern
- Outdoor-Plissees
- Schlafzimmer planen
- Terrassenüberdachung
- Wohngebäudeversicherung
- Zaunarten und Eigenschaften
- Hauseingang gestalten
- Der perfekte Grundriss
- Sparsamer heizen im Altbau
- Einfamilienhaus smart finanzieren
- Planung einer PV-Anlage
- Neues Haus
- Immobilienfinanzierung
- Installation einer Photovoltaikanlage
- Asbest erkennen und entfernen
- Gartenpflege im Frühling – worauf achten
- Sauna im Fokus - Wellness zuhause
- Erfolgreich vermieten
- Die perfekte Winterbekleidung
- Das Niedrigenergiehaus
- Der April und seine Stürme
- Architektonische Vielfalt
- Ökologisch und nachhaltig bauen
- Das perfekte Schlafzimmer
- Nachhaltige Energieversorgung
- Zukunftsorientiert bauen
- Nachhaltigkeit beim Hausbau
- Tiny Houses
- Wärmepumpen als nachhaltige Heizvariante
- Maßgeschneiderten Kleiderschrank
- Der richtige Baukredit
- Ratgeber für erfolgreichen Hausbau
- Haus als Altersvorsorge
Do-it-yourself Anleitungen
- Verlegeanleitung für Bodenbeläge und Parkett
- Bodenbeläge und Parkett reinigen und pflegen
- Malerarbeiten am Haus
- Garten Tipps
- Umzug und Reinigung

ᐅ Feedback zu Grundriss von Hanghaus

Erstellt am: 16.08.17 09:49
C
Crossy
J
j.bautsch
25.07.18 08:48
mir gefällt die türlösung zum Wohnzimmer nicht, der weg ins Haus führt zumindest mich meist zuerst in die Küche (da ich täglich einkaufe, meist nach der Arbeit). ich würde die Tür zum Esstisch hin setzen und nicht ins Wohnzimmer, auch wenn das etwas eng mit der Treppe ist.

insgesamt finde ich die flure zu schlauchig
C
Crossy
25.07.18 09:56
Den Zugang zum Wohnzimmer und Esszimmer wollen wir auch ändern. Zum Wohnzimmer soll eine breite Glasschiebetür führen und ins Esszimmer ein "normale" Tür.

Die Flure find ich auch schlauchig. Unten wollen wir das im Eingangsbereich etwas kaschieren und ein Glasgeländer zur Treppe hin ziehen, dass soll auch oben den Flur zum Gäste-WC etwas luftiger ausschauen lassen. Der Flur oben zum Schlafzimmer hin soll auch etwas verkürzt werden und der letzte Türstummel dem Elternbereich zugeschlagen werden. Der Zutritt zum Elterntrakt soll dann in die Ankleide gehen.
kaho67425.07.18 15:21
Fand den ersten Entwurf besser. Sorry habe nicht alles gelesen.
3 Kinder planunten vielleicht so:


Grundriss eines Hauses: Wohnzimmer, Küche/Essen, Flur, Bad, Schlafzimmer, Büro/Gast, Terrasse.

Grundriss: linke Garage, Bad, HWR, Flur mit Treppe; rechter Bereich Keller und Zimmer (K)
kaho67426.07.18 09:05
Eigentlich würde die Sache im letzten Vorschlag besser, wenn man auf die "Garagenterrasse" verzichtet und den Eingang nach planrechts nimmt. Dann könnte das Bad unten einen Lichtschacht erhalten, der Keller einen separaten Zugang und der Weg von Eingang bis Küche wäre kürzer.


Grundriss eines Hauses mit Küche, Ess- und Wohnbereich, Büro, Bad, Flur und Terrasse.

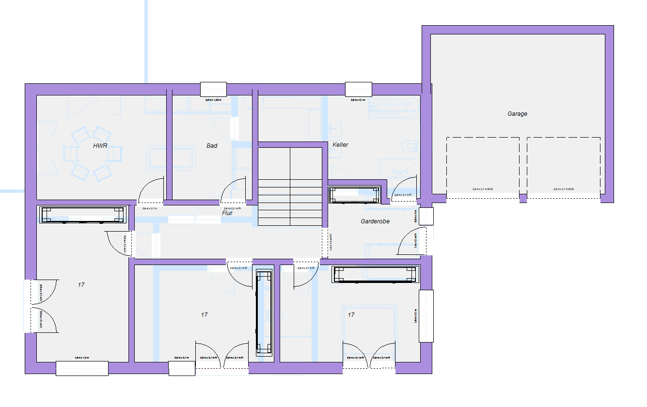
Grundriss eines Hauses mit HWR, Bad, Keller, Garderobe, Garage, Flur.


Was genau die Garage planrechts verhindert, habe ich leider nicht so richtig verstanden.
C
Crossy
26.07.18 10:54
Von deiner Aufteilung her ist die Garage planlinks wirklich besser.
Bei uns ist sie rechts geplant, das wir uns damit eine Stützmauer auf der rechten Seite sparen. Die würde ansonsten wohl noch mal richtig was kosten. Links können wir einfach abböschen und damit an den Nachbarn angleichen.
Außerdem würden wir durch die Garagen links einfach noch Garten auf der rechten Seite verlieren und mit der eingeplanten Terrasse sehr nahe an den rechten Nachbar geraten.
kaho67426.07.18 11:20
Crossy schrieb:

Außerdem würden wir durch die Garagen links einfach noch Garten auf der rechten Seite verlieren und mit der eingeplanten Terrasse sehr nahe an den rechten Nachbar geraten.
Wie breit ist denn das "Vieleck" ?
Beim 2. Vorschlag hätte ich etwas Bedenken, dass Kind 2 immer die Abgase der Autos abbekommt, durch das einzige Fenster.
Trennt der Auto-Stellplatz links vom Haus die Kinder nicht auch ziemlich vom Garten ab? Oder soll da ne Treppe irgendwo außen hin?
wohnzimmerfluretreppeküchetüresszimmereinganggaragegarten