Hallo Forum
wir bauen eine Stadtvilla, 180qm nach WoFl und quälen uns grade mit dem Grundriss für das EG. Anbei die ersten beiden Skizzenentwürfe von unserem Bauträger. Beide sind nahezu identisch, bis auf das in der zweiten Variante aufgrund der größeren Küche die Tür von der Diele zu Hauswirtschaftsraum soweit unter die Treppe rutscht, dass dort der geplante Abstellbereich wegfällt.
Würdet Ihr denn komplett auf den Durchgang zum Hauswirtschaftsraum von der Diele aus verzichten?
Wie vorteilhaft oder nachteilig ist die eher quadratische Form des Wohn-/Essbereichs?



wir bauen eine Stadtvilla, 180qm nach WoFl und quälen uns grade mit dem Grundriss für das EG. Anbei die ersten beiden Skizzenentwürfe von unserem Bauträger. Beide sind nahezu identisch, bis auf das in der zweiten Variante aufgrund der größeren Küche die Tür von der Diele zu Hauswirtschaftsraum soweit unter die Treppe rutscht, dass dort der geplante Abstellbereich wegfällt.
Würdet Ihr denn komplett auf den Durchgang zum Hauswirtschaftsraum von der Diele aus verzichten?
Wie vorteilhaft oder nachteilig ist die eher quadratische Form des Wohn-/Essbereichs?
Erstmal klasse, dass es so viel Feedback gibt. Danke !
@Mecc: Was das mit dem Erker kosten soll wissen wir noch nicht. Der Erker ist individuell zu betrachten so der Architekt, aber irgendwas in der Größenordnung 3-5T€ würde ich einschätzen.
@Teufelchen: Das mit dem Durchgang zum Hauswirtschaftsraum von der Küche mag stimmen. Aber unsere Küche ist mittlerweile 20,5m² groß und hat unendlich viel Stauraum. Die Zeile ist 4,80 lang hat unten 4x90cm Auszugsyteme und oben 1x120 und 4x90cm Oberschränke. die Insel ist 2,1x1,2m groß und hat auch Unterschränke ohne Ende. Die Technikwand in der Nische (1,90) ist 1,80 Hoch und hat neben dem Kühlschrank, Dampfgarer und Ofen auch noch sehr viel Stauraum. Also an Schränken mangelt es uns nicht
@ypg: Genau das ist es, wenn man dann ständig durchs Wohnzimmer muss um z.B. an eine Kiste Wasser zu kommen während innen der Kaffeekranz von statten geht, nicht wirklich angenehm. Und deine Idee mit dem Hauswirtschaftsraum im 2. OG ist mir eben auch eingefallen. Nur bleibt bei uns oben nichts übrig für einen 2. Hauswirtschaftsraum, da wir oben 2 Kinderzimmer (je 15qm), 1 Gästezimmer (12qm) , das Schlafzimmer mit Ankleide (ca. 25qm) und das Bad (15qm) haben.
@Mecc: Was das mit dem Erker kosten soll wissen wir noch nicht. Der Erker ist individuell zu betrachten so der Architekt, aber irgendwas in der Größenordnung 3-5T€ würde ich einschätzen.
@Teufelchen: Das mit dem Durchgang zum Hauswirtschaftsraum von der Küche mag stimmen. Aber unsere Küche ist mittlerweile 20,5m² groß und hat unendlich viel Stauraum. Die Zeile ist 4,80 lang hat unten 4x90cm Auszugsyteme und oben 1x120 und 4x90cm Oberschränke. die Insel ist 2,1x1,2m groß und hat auch Unterschränke ohne Ende. Die Technikwand in der Nische (1,90) ist 1,80 Hoch und hat neben dem Kühlschrank, Dampfgarer und Ofen auch noch sehr viel Stauraum. Also an Schränken mangelt es uns nicht
@ypg: Genau das ist es, wenn man dann ständig durchs Wohnzimmer muss um z.B. an eine Kiste Wasser zu kommen während innen der Kaffeekranz von statten geht, nicht wirklich angenehm. Und deine Idee mit dem Hauswirtschaftsraum im 2. OG ist mir eben auch eingefallen. Nur bleibt bei uns oben nichts übrig für einen 2. Hauswirtschaftsraum, da wir oben 2 Kinderzimmer (je 15qm), 1 Gästezimmer (12qm) , das Schlafzimmer mit Ankleide (ca. 25qm) und das Bad (15qm) haben.
Musketier schrieb:
Vielleicht ist es ein individuelles Gefühl, weil die Grundfläche entsprechend groß ist, aber kann es sein, dass die Treppenlänge nicht paßt?
Um bei den Raumgrößen wie Eurem Wohnzimmer nicht erdrückt zu werden, darf die Geschosshöhe nicht zu niedrig sein. Dann wird das mit 13 Stufen aber eher eine Hühnerleiter.Du hast recht mit deinem Hinweis und der Deckenhöhe. Deshalb haben wir eine erhöhte Geschossdecke vorgesehen. Wie viel stufen wären denn Standard bei einer "normalen" Deckenhöhe?
Und das positionieren der möbel erfolgt heute Abend
N
nordanney23.05.13 16:21Bei uns wird es eine Deckenhöhe von mindestens 2,60m (eher ein paar cm mehr, da der Fußbodenaufbau recht üppig geplant ist) und wir haben eine Treppe mit 16 Stufen vorgesehen (mit 13 Stufen wird es richtig steil!).
aytex schrieb:
Nur bleibt bei uns oben nichts übrig für einen 2. Hauswirtschaftsraum, da wir oben 2 Kinderzimmer (je 15qm), 1 Gästezimmer (12qm) , das Schlafzimmer mit Ankleide (ca. 25qm) und das Bad (15qm) haben.Huch , da lese ich aber 4 - 5 qm für Waschmaschine und Trockner und ein paar Wäscheschränke heraus (Schlafzimmer 12qm, Ankleide 7qm)
Das mit dem kleinen Raum im 2. OG werde ich mit einbeziehen, danke für den Hinweis.
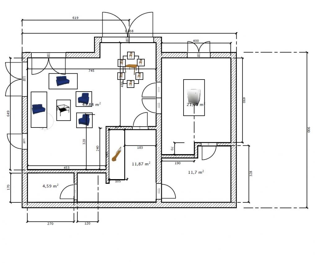
So, nun saß ich also gestern nich bis 00:30 am Rechner, hab Möbel vermessen etc. und habs noch mal angepasst. Das Haus ist jetzt länglicher und hat die Maße 1238x900 statt 1140x980. Dadurch wird das Wohnzimmer "breiter" wodurch Essbereich und Sitzbereich sich von einander entfernen (was wir ja wollten), die Treppe grenzt jetzt links an die Wohnzimmerwand, wodurch wir die Kammer unter der Treppe und die Tür zum Hauswirtschaftsraum behalten.
So sollte es passen oder? Was sollte man ansonsten noch berücksichtigen?










So, nun saß ich also gestern nich bis 00:30 am Rechner, hab Möbel vermessen etc. und habs noch mal angepasst. Das Haus ist jetzt länglicher und hat die Maße 1238x900 statt 1140x980. Dadurch wird das Wohnzimmer "breiter" wodurch Essbereich und Sitzbereich sich von einander entfernen (was wir ja wollten), die Treppe grenzt jetzt links an die Wohnzimmerwand, wodurch wir die Kammer unter der Treppe und die Tür zum Hauswirtschaftsraum behalten.
So sollte es passen oder? Was sollte man ansonsten noch berücksichtigen?
Ähnliche Themen