Hausbau - Ratgeber
Bauherrenhilfe
- Bauherrenhilfe vor Vertragsabschluss
-- Warum einen unabhängigen Baubetreuer?
-- Vertragsgrundlagen
-- Bausumme
-- Zahlungsplan zur Kostenkontrolle
-- Pflichten des Bauherren vor Vertragsabschluss
-- Unterlagen beim Hausbau vor Vertragsabschluss
- Bauherrenhilfe nach Vertragsabschluss
-- Bauantrag bei Behörden
-- Bau-Genehmigungsverfahren bei Baubehörden
-- Bauspezifische Versicherungen
-- Bauzeitenplan
-- Baubeginn - die Letzten Pflichten der Bauherrschaft
- Bauherrenhilfe während der Bauzeit
- Gewährleistungsansprüche
- Bauabnahme
Baufinanzierung
- Baufinanzierung - Allgemeine Fragen
- Kreditarten
- Kredit-Konditionen
- Bausparen
- Staatliche Förderungen
- Verkehrswert
- Haushaltsrechnung und Bonität
Hausbau Planung
- Haustypen
- Hausbau Vorbereitungsarbeiten
- Das Baugrundstück
- Baugrund beim Hausbau
- Baurecht
- Gebäudeschutz
- Erdarbeiten und Wasserhaltung
- Stützmauern
- Einfriedung
- Untergeschoss
- Kanalisation
- Tragende Elemente
- Nichttragende Innenwände
- Fundation / Fundament
- Deckenkonstruktionen
- Dächer
- Kaminanlagen
- Treppen Rampen Leitern
- Dachbeläge und Spengler
- Fenster
- Sonnen und Wetterschutz
- Aussenputze
- Einbauten, Küchen, Türen
- Bodenbeläge und Unterlagsböden
- Parkett
- Gips, Wand, Decke
Haustechnik und Energie
- Heiztechnik
- Lüftung und Klimatechnik
- Sanitärtechnik
- Elektrotechnik
- Erneuerbare Energie
Whirlpools / Jacuzzi
Hausbau Magazin
- Baufinanzierung trotz Krise?
- Das Blockhaus
- Moderne Dämmstoffe im Vergleich
- Erker Vor- und Nachteile
- Glasflächen beim Hausbau
- Günstig ein Haus Bauen
- Mediterraner Hausbaustil
- Mehrgenerationenhaus
- Moderne Architektur
- Gartengestaltung leicht gemacht
- Traditioneller Ziegelbau
- Villa als höchster Traum
- Im Eigenheim Ruhestand geniessen
- Altbau sanieren
- Kauf einer Holzgarage
- Immobilienmakler
- Arbeitshandschuhe für den Winter
- Zuhause verschönern
- Outdoor-Plissees
- Schlafzimmer planen
- Terrassenüberdachung
- Wohngebäudeversicherung
- Zaunarten und Eigenschaften
- Hauseingang gestalten
- Der perfekte Grundriss
- Sparsamer heizen im Altbau
- Einfamilienhaus smart finanzieren
- Planung einer PV-Anlage
- Neues Haus
- Immobilienfinanzierung
- Installation einer Photovoltaikanlage
- Asbest erkennen und entfernen
- Gartenpflege im Frühling – worauf achten
- Sauna im Fokus - Wellness zuhause
- Erfolgreich vermieten
- Die perfekte Winterbekleidung
- Das Niedrigenergiehaus
- Der April und seine Stürme
- Architektonische Vielfalt
- Ökologisch und nachhaltig bauen
- Das perfekte Schlafzimmer
- Nachhaltige Energieversorgung
- Zukunftsorientiert bauen
- Nachhaltigkeit beim Hausbau
- Tiny Houses
- Wärmepumpen als nachhaltige Heizvariante
- Maßgeschneiderten Kleiderschrank
- Der richtige Baukredit
- Ratgeber für erfolgreichen Hausbau
- Haus als Altersvorsorge
Do-it-yourself Anleitungen
- Verlegeanleitung für Bodenbeläge und Parkett
- Bodenbeläge und Parkett reinigen und pflegen
- Malerarbeiten am Haus
- Garten Tipps
- Umzug und Reinigung

ᐅ Erstes Konzept, Grundriss Einfamilienhaus / Meinungen

Erstellt am: 05.11.14 07:05
Y
yakari
Y
yakari
05.11.14 07:05
Hallo zusammen,

unser Architekt hat auf Grundlage unserer Vorschläge das Erste Konzept unseres Einfamilienhaus vorgestellt.

Wohnfläche nach DIN 163m2
Hausgröße 11.45 x 9.45

Bitte teilt mir eurer Meinungen oder Verbesserung bzw. Ideen mit....

Grundriss eines Hauses: Wohnen/Essen, Küche, Arbeitszimmer, Diele, HAR, Freisitz.


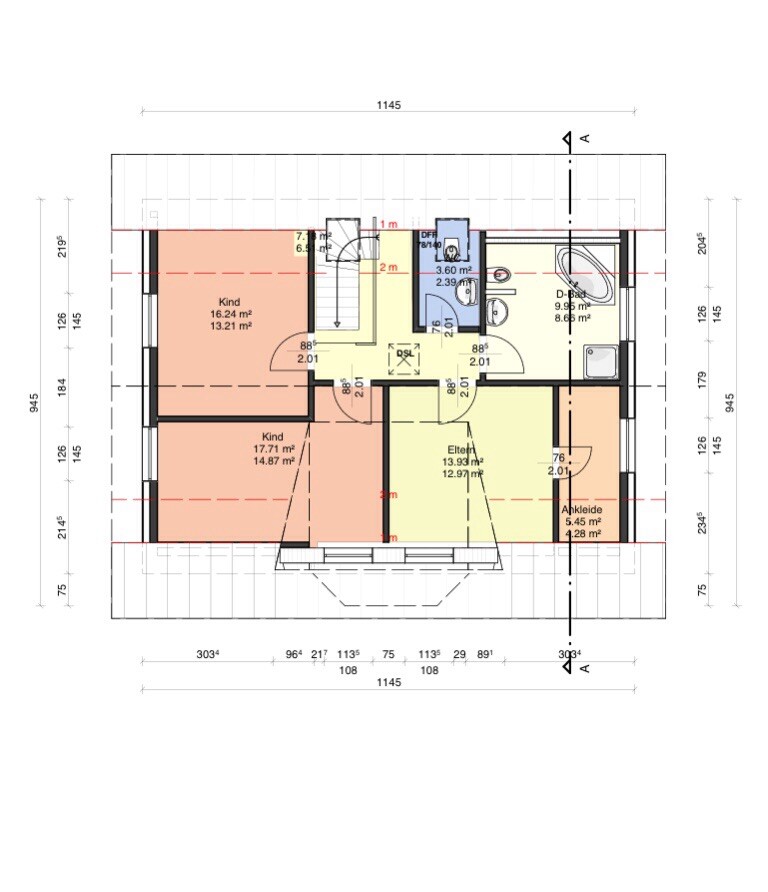
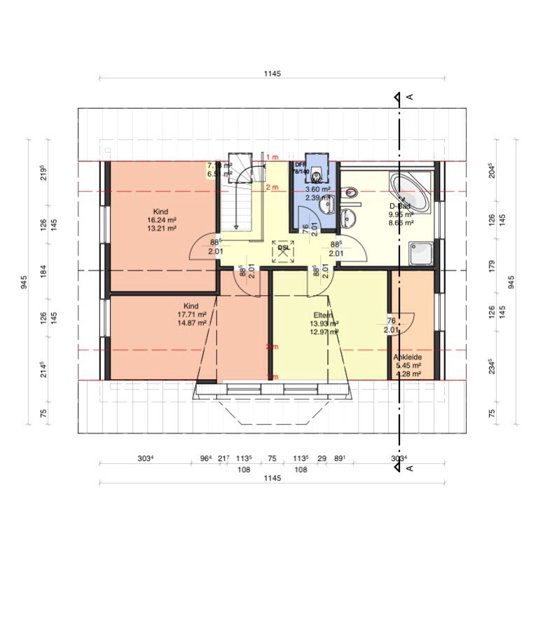
Grundriss Obergeschoss: zwei Kinderzimmer, Elternzimmer, Bad, Ankleide.
M
Manu1976
05.11.14 07:59
und zum Pippi machen, muss man immer hoch laufen? Für mich ein Riesen Fauxpas des Architekten.
Baut ihr mit Keller? Wenn nicht, dann könnte der Hauswirtschaftsraum schnell zu klein werden. Abstellraum unter der Treppe, macht sich bei Häuser ohne Keller auch immer gut.
Treppe zu nah an der Schmutzzone (Eingangsbereich) vom Haus.
Der Erker ist ein schönes Stilelement, der aber leider keinen Nutzen hat, sondern nur Kosten.
Habt ihr euch mal Gedanken zur Möblierung gemacht? Wo wird die Couch stehen? Etwa vor dem Ausgang zum Freisitz?
Packt das Klo von oben nach unten und macht oben aus dem Klo nen Waschraum für die Wäsche oder nen Abstellraum. Das macht mehr Sinn, als 2 WC nebeneinander
D
Doc.Schnaggls
05.11.14 08:02
Hallo,

erst mal eine grundsätzliche Frage: Wo ist Süden?

Der Grundriss an sich ist nicht schlecht, ich habe aber doch ein paar Anmerkungen dazu:

Treppenaufgang in den Schlafbereich beginnt im Schmutzbereich an der Tür => Für mich nicht ideal gelöst.

Zugang zum Wohnzimmer aus dem Flur: Die einzelne Tür ist, meiner Meinung nach, zumindest optisch zu schmal. Doppeltür oder ganz offener (breiter) Durchgang?

Küche: Kein direkter Zugang vom Flur - ist das so gewollt?

Ankleide: Wo wollt Ihr da Schränke stellen? Fenster, Tür und Dachschräge engen die Möglichkeiten gewaltig ein.

Vor allem: Kein WC im EG???

Grüße,

Dirk
W
Wastl
05.11.14 08:04
EG passt.
OG: Das südlich. Kinderzimmer: Dort das östliche Fenster weiter nach Süden, damit ein Schrank an die Wand passt.
Das Extraklo im OG: Lasst euch mal das Klo so wie es ist zeigen (Baut es mit einfachen Kisten / Decken nach). Nachdem das Dachfenster zu weit nördlich ist, muss man sich beim Hinsetzen und Aufstehen immer unter der Fensterlaibung durch ducken. Da würde ich das Fenster weiter Richtung Giebel ziehen, damit es schön begehbar ist.
Das zweite Kind hat ein kleineres, dunkles Zimmer. Habt ihr mehr Kinder geplant?
L
lastdrop
05.11.14 08:33
Kann mir fast nicht vorstellen, dass sich ein Architekt so etwas leistet:
- kein WC im EG
- Haustüre direkt im Treppenantritt
- Assymetrie durch "Freisitz", verbunden mit Erker, die nicht wirklich Mehrwert liefert
- 2 WCs im OG direkt nebeneinander - was soll das?
- eine Ankleide, in der nicht 1 Schrank Stellbar ist
- was soll der ungenutzte Flur im OG
- wohin führt die Tür im Arbeitszimmer? Garten? Dann wird immer schön Schmutz hereingetragen.
Y
yakari
05.11.14 23:37
Manu1976 schrieb:
und zum Pippi machen, muss man immer hoch laufen? Für mich ein Riesen Fauxpas des Architekten.
Baut ihr mit Keller? Wenn nicht, dann könnte der Hauswirtschaftsraum schnell zu klein werden. Abstellraum unter der Treppe, macht sich bei Häuser ohne Keller auch immer gut.
Treppe zu nah an der Schmutzzone (Eingangsbereich) vom Haus.
Der Erker ist ein schönes Stilelement, der aber leider keinen Nutzen hat, sondern nur Kosten.
Habt ihr euch mal Gedanken zur Möblierung gemacht? Wo wird die Couch stehen? Etwa vor dem Ausgang zum Freisitz?
Packt das Klo von oben nach unten und macht oben aus dem Klo nen Waschraum für die Wäsche oder nen Abstellraum. Das macht mehr Sinn, als 2 WC nebeneinander
WC im DG war eine Idee um im EG mehr Platz zu haben, mittlerweile sehen wir die Nachteile und werden es ändern. Ja, wir bauen ohne Keller. Abstellraum in der Treppe ist angedacht und wird auch umgesetzt.
türkellerabstellraumtreppekloflurfensterarchitekterkerankleide