ᐅ Entwurf Grundriss Einfamilienhaus, Typ Stadtvilla - Danke für Feedback
Erstellt am: 01.08.15 20:46
D
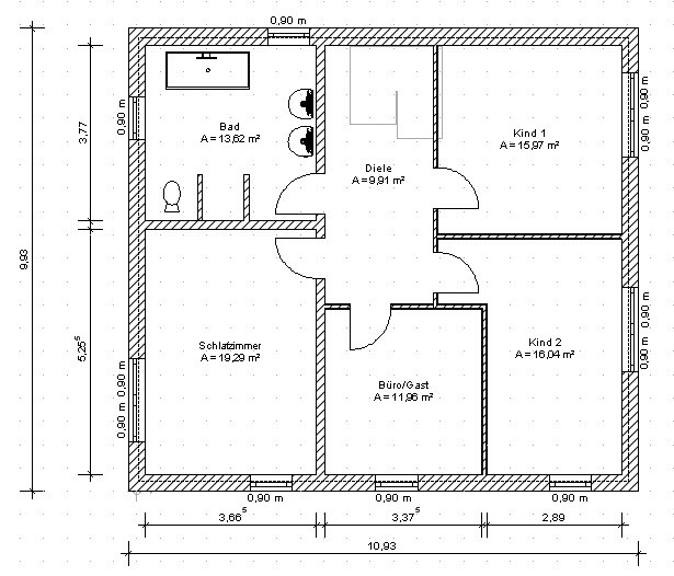
daytonaHallo,
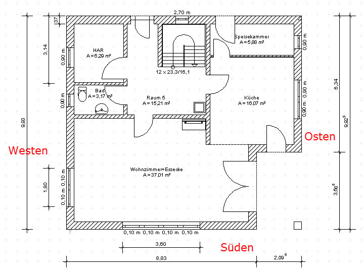
was halt ihr von meinem ersten Entwurf? Folgende Fragen/Punkte diskutieren wir grad noch:
Standort:
Gezeichnet sind 5m zur Straßenseite(Westseite), mehr wären jedoch möglich (sinnvoll)
Fenster/Türen:
Hauseingangstür nach ca. 0,5m nach Innen versetzt (Wetterschutz)
Wohnzimmer Südseite: Dreh-Kipp oder Festverglasung
Wohnzimmer Westseite: Bodentief (Brüstungshöhe wie Südseite )?
Wohnzimmer Tür-Terrasse: ja/nein
Küche Tür-Terrasse: ja/nein
Durchgang zwischen Diele und Küche komplett entfernen
Schmale bzw geringe Fenster-Höhe in Küche wegen Hängeschränken
WC:
Zusätzliche Dusche im Bad EG, dafür HAR kleiner
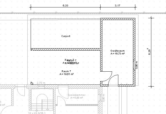
Garage:
Garage mit Rolltor oder Doppelcarport
Heizung:
Beheizung Speisekammer und HAR
Terrasse:
Größe der gepflasterten Fläche






was halt ihr von meinem ersten Entwurf? Folgende Fragen/Punkte diskutieren wir grad noch:
Standort:
Gezeichnet sind 5m zur Straßenseite(Westseite), mehr wären jedoch möglich (sinnvoll)
Fenster/Türen:
Hauseingangstür nach ca. 0,5m nach Innen versetzt (Wetterschutz)
Wohnzimmer Südseite: Dreh-Kipp oder Festverglasung
Wohnzimmer Westseite: Bodentief (Brüstungshöhe wie Südseite )?
Wohnzimmer Tür-Terrasse: ja/nein
Küche Tür-Terrasse: ja/nein
Durchgang zwischen Diele und Küche komplett entfernen
Schmale bzw geringe Fenster-Höhe in Küche wegen Hängeschränken
WC:
Zusätzliche Dusche im Bad EG, dafür HAR kleiner
Garage:
Garage mit Rolltor oder Doppelcarport
Heizung:
Beheizung Speisekammer und HAR
Terrasse:
Größe der gepflasterten Fläche
U
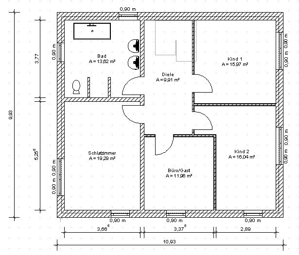
Username_wahl01.08.15 21:32Hallo, ich würde diese "leere" Ecke im EG in Wohnraum umwandeln. Da hat man sicher mehr davon.
Naja , ich denke da gibt es noch mehr zu diskutieren:
- die Küche ist zwar schön groß, aber sehr schlecht zu möblieren.
- Tür zu Terrasse würde ich zwar eine machen, aber nicht an dieser Stelle. So schieben, dass auf der Wandseite noch mindestens 65 - 75cm bleiben. Tür zum Flur lassen und Speisekammer auf jeden Fall unbeheizt (Vorräte brauchen es meist kühl)
- Schlafzimmer: schlecht zu möblieren.
- die überdachte Terrasse an sich finde ich ja gut. Aber bei euch bringt sie nichts. Ihr könnt da nichts drunter stellen ohne euch den Weg nach draußen zu versperren. Gibt da mit Sicherheit sinnvollere Lösungen.
- die möblierung vom Wohnzimmer würde mich auch interessieren. Hab die Befürchtung, dass es da zu einem Hindernisparcourt kommen könnte.
- Ich vermute die Garderobe kommt gegenüber der Treppe. Finde den Weg von der Tür recht weit. Ihr müsst da erstmal mit den dreckigen Schuhen durchs halbe Haus schlappen.
Nichts für Ungut, aber da gibt es noch einiges zu tun. Das Grundgerüst finde ich aber schonmal gut. Kann man ja weiter dran arbeiten.
- die Küche ist zwar schön groß, aber sehr schlecht zu möblieren.
- Tür zu Terrasse würde ich zwar eine machen, aber nicht an dieser Stelle. So schieben, dass auf der Wandseite noch mindestens 65 - 75cm bleiben. Tür zum Flur lassen und Speisekammer auf jeden Fall unbeheizt (Vorräte brauchen es meist kühl)
- Schlafzimmer: schlecht zu möblieren.
- die überdachte Terrasse an sich finde ich ja gut. Aber bei euch bringt sie nichts. Ihr könnt da nichts drunter stellen ohne euch den Weg nach draußen zu versperren. Gibt da mit Sicherheit sinnvollere Lösungen.
- die möblierung vom Wohnzimmer würde mich auch interessieren. Hab die Befürchtung, dass es da zu einem Hindernisparcourt kommen könnte.
- Ich vermute die Garderobe kommt gegenüber der Treppe. Finde den Weg von der Tür recht weit. Ihr müsst da erstmal mit den dreckigen Schuhen durchs halbe Haus schlappen.
Nichts für Ungut, aber da gibt es noch einiges zu tun. Das Grundgerüst finde ich aber schonmal gut. Kann man ja weiter dran arbeiten.
Ähnliche Themen