Hallo Yvonne,
Meinst du generell alle Ansichten oder eine bestimmte? Was soll man da denn ändern?
Hallo kbt09,
Ja meinte die Tür im Hauswirtschaftsraum, Hände waschen, Grill Sachen alles was nicht so in die Küche soll
Klappbügelbrett an der Wand.
Was soll ich sagen zur Treppe ist so gekommen, also sprich zeichnerisch, Treppe in DG ist gleich geblieben.
Wohnzimmer, mh, Überlegung Sofa an Innenwand und tv zwischen 2 große Fenster obwohl das nicht mit oben passt das mittlere Fenster wegen der wand. Vorn dann 2 Oberlichter passend Rechte Seite also Bad und AZ...?...?..
Meinst du generell alle Ansichten oder eine bestimmte? Was soll man da denn ändern?
Hallo kbt09,
Ja meinte die Tür im Hauswirtschaftsraum, Hände waschen, Grill Sachen alles was nicht so in die Küche soll
Klappbügelbrett an der Wand.
Was soll ich sagen zur Treppe ist so gekommen, also sprich zeichnerisch, Treppe in DG ist gleich geblieben.
Wohnzimmer, mh, Überlegung Sofa an Innenwand und tv zwischen 2 große Fenster obwohl das nicht mit oben passt das mittlere Fenster wegen der wand. Vorn dann 2 Oberlichter passend Rechte Seite also Bad und AZ...?...?..
MKoni schrieb:
Hallo Yvonne,
Meinst du generell alle Ansichten oder eine bestimmte? Was soll man da denn ändern?Mir gefallen die sogenannten "Lichtbänder" gar nicht - zu kurz, um sie so zu nennen und ragen zudem aus den gedachten Senkrechten heraus. Sie sind ein Störfeld.
Küche auf der anderen Seite stört mich das mittlere Fenster der Außenansicht.
Was mir gerade auffällt, dass mir die Ausrichtungen der Räume nicht gefällt: Gast/Büro im Süden, Haustür im Westen (SW)... ich würde das ganze Haus drehen mit Eingang zu den Garagen bzw das ganze Bauteil spiegeln
Guten Morgen.
Meinst du mit Lichtbändern die oberlíchter und was ist mit den geraden senkrechten gemeint?
Das die Ausrichtung nicht ideal ist wissen wir, nur lässt sich das wegen der Gegebenheiten der Grundstückslage schlecht anders machen. Einzig die Garage auf die gegenüber liegenden Seite packen, was jedoch nicht geht da dort ein Heckenstreifen vorgeschrieben ist. Eine Haustür gehört für uns nach vorn. Und der Hauswirtschaftsraum an die Garage wegen der kurzen Wege und an den Hauswirtschaftsraum die Küche so ergibt sich das alles von allein.
Meinst du mit Lichtbändern die oberlíchter und was ist mit den geraden senkrechten gemeint?
Das die Ausrichtung nicht ideal ist wissen wir, nur lässt sich das wegen der Gegebenheiten der Grundstückslage schlecht anders machen. Einzig die Garage auf die gegenüber liegenden Seite packen, was jedoch nicht geht da dort ein Heckenstreifen vorgeschrieben ist. Eine Haustür gehört für uns nach vorn. Und der Hauswirtschaftsraum an die Garage wegen der kurzen Wege und an den Hauswirtschaftsraum die Küche so ergibt sich das alles von allein.
@MKoni, da kann etwas nicht stimmen.
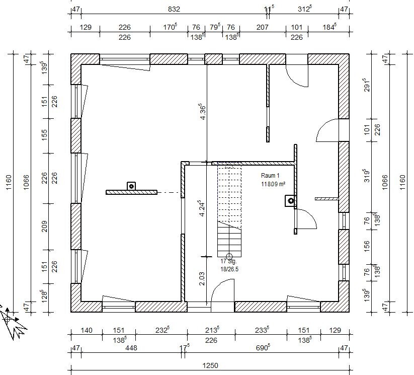
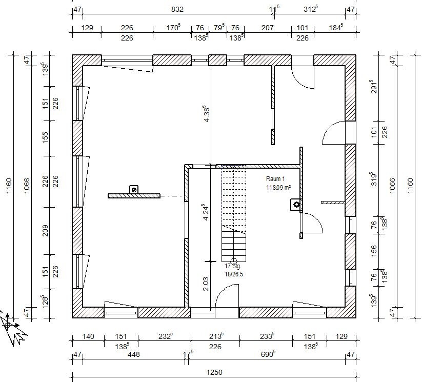
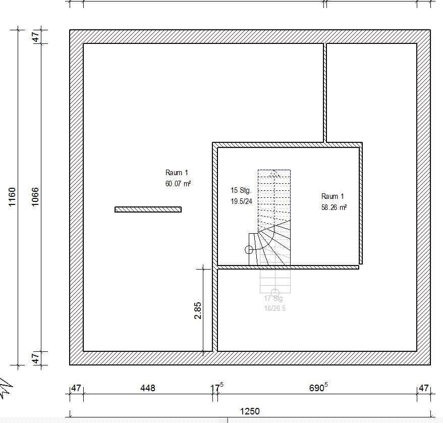
Wenn du den EG-Grundriss nimmst, dann sind von Treppenbeginn bis Außenwand mit Eingangstür 201 cm. Im OG sind von Treppenwand bis Außenwand 285 cm und die 11,5 cm Wand. Ja, ein wenig kann das überlappen aber rund 95 cm ?
Ich habe das mal mit den wesentlichen Maßen skizziert und den entsprechenden Schnitt angefügt, die Treppe ist nämlich in deiner Zeichnung im OG nicht mitgeschnitten

Wenn du den EG-Grundriss nimmst, dann sind von Treppenbeginn bis Außenwand mit Eingangstür 201 cm. Im OG sind von Treppenwand bis Außenwand 285 cm und die 11,5 cm Wand. Ja, ein wenig kann das überlappen aber rund 95 cm ?
Ich habe das mal mit den wesentlichen Maßen skizziert und den entsprechenden Schnitt angefügt, die Treppe ist nämlich in deiner Zeichnung im OG nicht mitgeschnitten
Die Südwestansicht gefällt mir auch nicht.
Welche Farbe bekommen eure Fenster außen? Wenn sie anthrazit werden, dann würde ich im WC ein kleines Lichtband mit derselben Höhe wie im Arbeitszimmer setzen und den Zwischenraum außen mit Fassadenantrich z.B. in anthrazit überbrücken und im Wohnzimmer ein großes Panoramalichtband setzen, das dann genauso groß ist wie die beiden anderen Fenster mit Zwischenwand zusammen.
Könnt ihr aber damit leben im Winter keine Sonne in die Wohnräume zu bekommen? Ich würde einen Zugang auf der Ostseite bevorzugen. Da da sowieso eure Zufahrt ist würde sich das doch anbieten.
Welche Farbe bekommen eure Fenster außen? Wenn sie anthrazit werden, dann würde ich im WC ein kleines Lichtband mit derselben Höhe wie im Arbeitszimmer setzen und den Zwischenraum außen mit Fassadenantrich z.B. in anthrazit überbrücken und im Wohnzimmer ein großes Panoramalichtband setzen, das dann genauso groß ist wie die beiden anderen Fenster mit Zwischenwand zusammen.
Könnt ihr aber damit leben im Winter keine Sonne in die Wohnräume zu bekommen? Ich würde einen Zugang auf der Ostseite bevorzugen. Da da sowieso eure Zufahrt ist würde sich das doch anbieten.
also so sieht das im schnitt schon sehr verständlich aus. Wenn du erlaubst würde ich dies einmal als ausschnitt an die Zeichnerin weitergeben und hören was sie dazu sagt.
Also meiner Frau reicht der Platz An der Waschmaschine, sagt möchte da nicht wohnen sondern einen Platz wo Bügeleisen stehen kann ohne zu stören.
Also meiner Frau reicht der Platz An der Waschmaschine, sagt möchte da nicht wohnen sondern einen Platz wo Bügeleisen stehen kann ohne zu stören.
Ähnliche Themen