Hallo,
wir befassen uns aktuell mit unserer Badplanung, da wir jetzt noch die Möglichkeit haben die Türe zu verschieben. Das Fenster ist bereits fest .
Es stehen zwei Varianten zur Auswahl, Frau möchte lieber Nummer 1, Mann eigentlich lieber Nr. 2
Variante 2 ist nicht richtig bemaßt, verhält sich aber genau wie Variante 1 (Länge der Duschwand, Breite der Dusche etc).
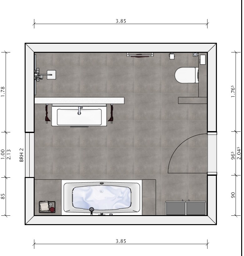
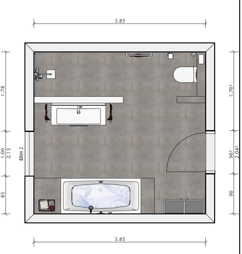
Variante 1:
-Toilette ist verdeckt, intimerer Bereich
-Tageslicht in der Dusche und teilweise am waschtisch
-Durchgang erscheint mir mit 110cm fast zu wenig
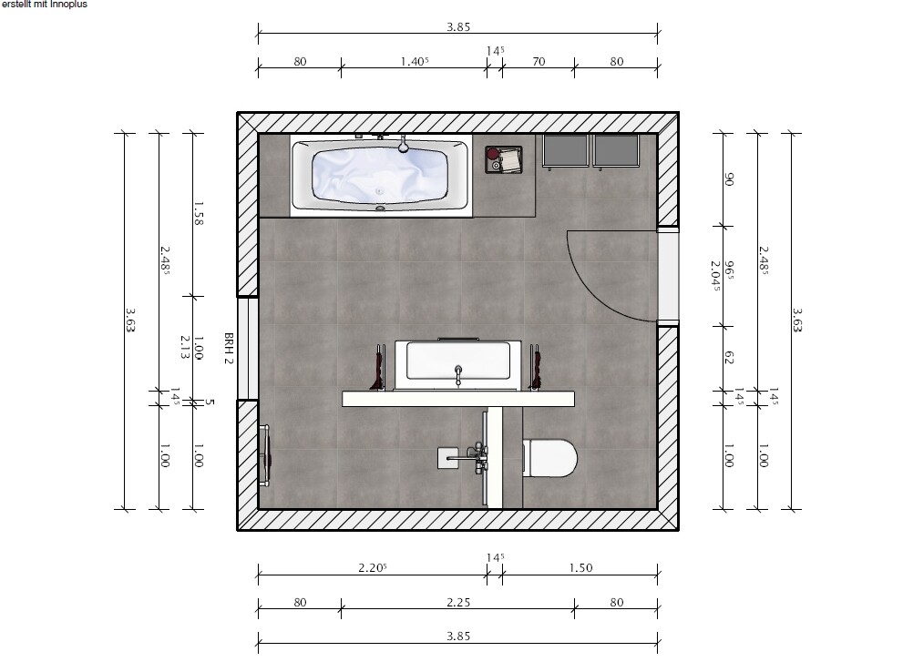
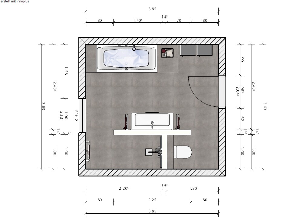
Variante 2:
-Tageslicht am Waschtisch
-Toilette komplett verdeckt allerdings offen zur Dusche hin
-Durch einen Tausch von Badewanne und schränke noch mehr Platz am Waschbecken, dadurch "offeneres" Gefühl des Raumes
-kein Tageslicht in der Dusche
Ich bin für jede Anregung/Meinung dankbar

wir befassen uns aktuell mit unserer Badplanung, da wir jetzt noch die Möglichkeit haben die Türe zu verschieben. Das Fenster ist bereits fest .
Es stehen zwei Varianten zur Auswahl, Frau möchte lieber Nummer 1, Mann eigentlich lieber Nr. 2
Variante 2 ist nicht richtig bemaßt, verhält sich aber genau wie Variante 1 (Länge der Duschwand, Breite der Dusche etc).
Variante 1:
-Toilette ist verdeckt, intimerer Bereich
-Tageslicht in der Dusche und teilweise am waschtisch
-Durchgang erscheint mir mit 110cm fast zu wenig
Variante 2:
-Tageslicht am Waschtisch
-Toilette komplett verdeckt allerdings offen zur Dusche hin
-Durch einen Tausch von Badewanne und schränke noch mehr Platz am Waschbecken, dadurch "offeneres" Gefühl des Raumes
-kein Tageslicht in der Dusche
Ich bin für jede Anregung/Meinung dankbar
S
Sondelgeher1226.04.18 12:39Ich wäre für Variante 1, würde aber Toilette und Dusche tauschen.....möchte nicht dass einer durchs Fenster auf die Dusche schauen kann und auch nicht, dass man beim reinkommen gleich auf die Toilette schaut
Bei Variante 2 gefällt mir nicht dass man beim Duschen aufs Klo schaut....
Bei Variante 2 gefällt mir nicht dass man beim Duschen aufs Klo schaut....
C
cybergnom26.04.18 21:46Unser Bad wird ziemlich genau so wie in Variante 1 gebaut. Allerdings, wie Sondelgeher12 schreibt, mit Dusche und WC getauscht.
Fanden wir ansprechender aus den genannten Gründen...
Fanden wir ansprechender aus den genannten Gründen...
Ähnliche Themen