Elektroplan in Ordnung - Erfahrungen

4,00 Stern(e) 10 Votes
Zuletzt aktualisiert 23.11.2025
Sie befinden sich auf der Seite 3 der Diskussion zum Thema: Elektroplan in Ordnung - Erfahrungen
>> Zum 1. Beitrag <<

M

michert

Spots sind perfekt wo wann eine gute Ausleuchtung mit möglichst wenig Schattenwurf braucht. Also ideal für Küche und Bad und evtl. noch dem Flur. In Wohn und Schlafräumen wirken Spots ziemlich unwohnlich. Hier lieber mit Wand- und Stehlampen zum akzentuieren arbeiten.
 
J

Jake12345

Danke, ich besprech das noch mal mit meiner Frau. Der Hinweis kam ja jetzt oft. Vielleicht im Wohn- und Schlafzimmer doch keine Spots......
 
J

Jake12345

Ich hab das überarbeitet und einige Spots rausgelassen und bitte Euch noch einmal um Euere ehrliche Meinung......Ich will ja selbst keinen OP Saal, aber habe nun mal leider keine Erfahrung.

Danke!

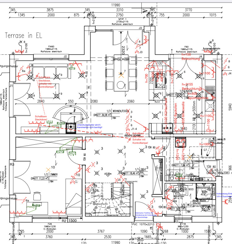
Grundriss eines Wohnhauses mit mehreren Zimmern, Türen, Möbeln und Elektro-Symbolen.


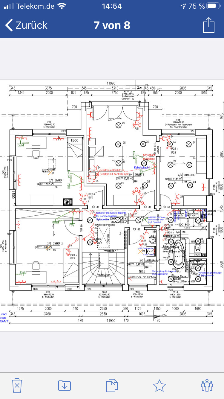
Grundriss eines Wohngebäudes mit Möbeln, Türen, Steckdosen und Leitungssymbole.
 
J

Jake12345

Über 2 Downlights in der Dusche sage ich Mal nichts.Bei der Anzahl muss man hoffen dass alles dimmbar geplant ist.

Stehen die Leuchten schon fest?
Heißt das jetzt eher keine 2 Spots oder soll man 2 Spots machen in der Dusche? Da sind wir auch noch unschlüssig......

Folgende Spots wollten wir nehmen (dimmbar per einfachem Schalter).......

Runde weiße LED-Deckenleuchte (Einbauleuchte) mit gelben Segmenten im Hintergrund


LED-Lampe: 2700K, 50W Äquiv., 20000h, SMD, 380 lm, 50mA
 
kbt09

kbt09

Du solltest aber auch lesen, was wir geschrieben haben, z. B. mit den Spots in der Küche, die die Arbeitsfläche beleuchten sollen und nicht den Rücken der arbeitenden Person

Und dann die Frage ... warum im Schlafzimmer so viele Spots? Welche Lebenssituation stellst du dir da vor?
 
Zuletzt aktualisiert 23.11.2025
Im Forum Maurer / Maler / Gipser gibt es 1506 Themen mit insgesamt 13333 Beiträgen


Ähnliche Themen zu Elektroplan in Ordnung - Erfahrungen
Nr.ErgebnisBeiträge
1Wohnen/Essen/Küche: Wie wohnt ihr oder werdet ihr wohnen? - Seite 852
2Ankleide/Schlafzimmer Problem - Grundrissdiskussion 25
3Einteilung Grundriss Allraum Küche Wohnen Essen - Seite 558
4Grundriss Bungalow 150qm geschlossene Küche, überdachte Terrasse 40
5Standort Küche und Wohnzimmer 55
6Grundriss Einfamilienhaus ohne Keller/Schlafzimmer und Bad im EG - Seite 427
7Geschlossene oder offene Küche ? 11
8Grundriss, Ideen zur räumlichen Trennung innerhalb der Küche 23
9Varianten für eine Ecklösung in der Küche 18
10Planung Wohnraum & Küche eines Doppelhaushälfte in Nürnberg 13
11Probleme bei der aufteilung Küche, Essen , Wohnen 16
12Grundriss Halboffene Küche mit großem Essbereich - Detailfragen 12
13Beleuchtung in Diele und Küche: Deckeneinbau-Strahler benötigt? 19
14Feedback zur Ikea-Küche - Seite 4167
15Next 125 Küche Erfahrungen / Preiseinschätzung 39
16Heizkreise/Thermostate für Wohnen/Essen/Küche bei Fußbodenheizung/Wärmepumpe 35
17Küche über ein Jahr vor Fertigstellung kaufen? - Seite 254
18Frage zur Entwässerung / Verrohrung Küche 16
19Grundriss Einfamilienhaus - Problemfall Küche 20
20Steinwand aus Stein/Steinplatten? Wohnzimmer / Küche 69

Oben