ᐅ Einteilung Grundriss Allraum Küche Wohnen Essen
Erstellt am: 27.07.17 09:59
Bertram10027.07.17 09:59
Hallo Liebes Forum,
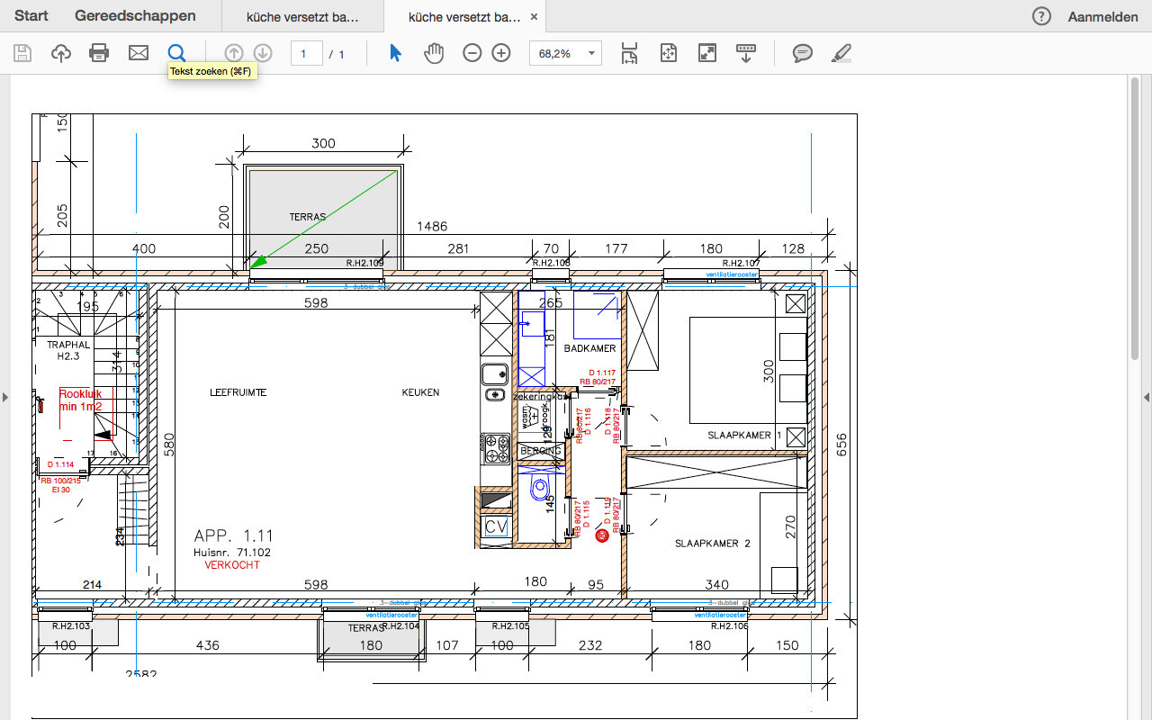
ich habe eine Wohnung gekauft über einen Bauträger. Da liegt der Grundriss um Grund schon fest. Also, der Aussengrundriss. Erst nach einiger Zeit habe ich gemerkt dass der veranschlagte Grundriss schwierig zum Einrichten ist. Es geht um einen Allraum mit Küche, Wohnen und Essen auf ca 600x600 cm. Einen Plan hänge ich an. Das ist der Verkaufsplan. Einen vollständig vermassten Plan bekomme ich wohl erst Ende August.
Die Wohnung wird zum 3. Quartal 2018 fertig, es ist also noch Zeit um das ein oder andere anzupassen. Aber nur wie? Ich raufe mir die Haare weil ich mich blindgeguckt habe auf die Probleme und leider selber auf gar keine anderen neuen Ideen komme. Ich hoffe, ihr könnt mir einen guten Stups in eine andere Denkrichtung geben.
Einzurichten sind:
- Küche für 1 bis 2 Personen
- 1 Esstisch 150x80 mit 4 Stühlen
- 1 Zweisitzer (160cm lang)
- 1 lowbord (120cm lang)
- 1 highord (100cm lang)
- 1 Vitrine (90 cm lang, 110 hoch)
- 1 cocktailstuhl als Leseecke
Alle Möbel bis auf das Sofa sind flexibel und können notfalls auch im Nebenraum verschwinden. Küche und Esstisch sind auch nötig.
Unveränderlich ist auch der Leitungsschacht (das diagonale schwar-weisse Viereck) und im schlimmsten Fall auch das WC. Da muss ich aber noch mal nachfragen.
Ich hoffe jemand kann mir einen Denkanstoss geben. Ich habe nebenan im Küchenplanungsforum auch schon mal die Frage gestellt, aber das war wohl für mich zu früh. Ich konnte mich auf nicht viel einlassen irgendwie. Jetzt ist das anders und ich hoffe auf die hiesige Schwarm-Intelligenz

ich habe eine Wohnung gekauft über einen Bauträger. Da liegt der Grundriss um Grund schon fest. Also, der Aussengrundriss. Erst nach einiger Zeit habe ich gemerkt dass der veranschlagte Grundriss schwierig zum Einrichten ist. Es geht um einen Allraum mit Küche, Wohnen und Essen auf ca 600x600 cm. Einen Plan hänge ich an. Das ist der Verkaufsplan. Einen vollständig vermassten Plan bekomme ich wohl erst Ende August.
Die Wohnung wird zum 3. Quartal 2018 fertig, es ist also noch Zeit um das ein oder andere anzupassen. Aber nur wie? Ich raufe mir die Haare weil ich mich blindgeguckt habe auf die Probleme und leider selber auf gar keine anderen neuen Ideen komme. Ich hoffe, ihr könnt mir einen guten Stups in eine andere Denkrichtung geben.
Einzurichten sind:
- Küche für 1 bis 2 Personen
- 1 Esstisch 150x80 mit 4 Stühlen
- 1 Zweisitzer (160cm lang)
- 1 lowbord (120cm lang)
- 1 highord (100cm lang)
- 1 Vitrine (90 cm lang, 110 hoch)
- 1 cocktailstuhl als Leseecke
Alle Möbel bis auf das Sofa sind flexibel und können notfalls auch im Nebenraum verschwinden. Küche und Esstisch sind auch nötig.
Unveränderlich ist auch der Leitungsschacht (das diagonale schwar-weisse Viereck) und im schlimmsten Fall auch das WC. Da muss ich aber noch mal nachfragen.
Ich hoffe jemand kann mir einen Denkanstoss geben. Ich habe nebenan im Küchenplanungsforum auch schon mal die Frage gestellt, aber das war wohl für mich zu früh. Ich konnte mich auf nicht viel einlassen irgendwie. Jetzt ist das anders und ich hoffe auf die hiesige Schwarm-Intelligenz
Climbee27.07.17 10:28
Willst Du keinen Wohnbereich mit Couch? Oder hast du es einfach noch nicht untergebracht?
Was ist noch flexibel? Ich denke mal, die Wand mit den Installationen wohl kaum, was bedeutet, es liegt schon ziemlich fest, wo die Küche zu sein hat. Quadratische Räume sind immer blöd zu möblieren, aber ich würde nicht auf einen Wohnbereich verzichten wollen.
Muß es eine Insellösung für die Küche sein?
Ich würde die Insel wenn sie sein muß, auf jeden Fall schmaler machen.
Cocktailstuhl als Leseecke? puh... das stell ich mir ungemütlich vor...wie stellst Du dir das vor? Da hab ich Gerade Schwierigkeiten....
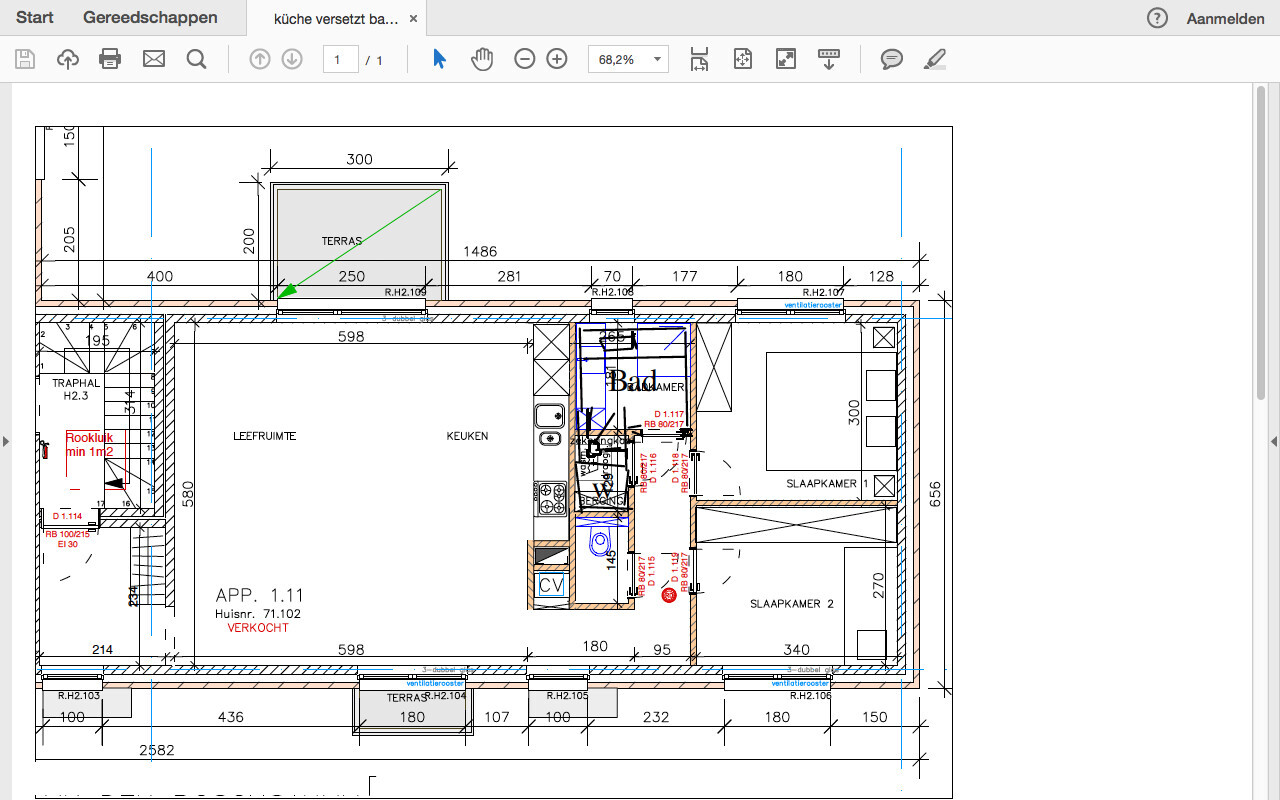
Aber ich skizziere mal was.
Was ist noch flexibel? Ich denke mal, die Wand mit den Installationen wohl kaum, was bedeutet, es liegt schon ziemlich fest, wo die Küche zu sein hat. Quadratische Räume sind immer blöd zu möblieren, aber ich würde nicht auf einen Wohnbereich verzichten wollen.
Muß es eine Insellösung für die Küche sein?
Ich würde die Insel wenn sie sein muß, auf jeden Fall schmaler machen.
Cocktailstuhl als Leseecke? puh... das stell ich mir ungemütlich vor...wie stellst Du dir das vor? Da hab ich Gerade Schwierigkeiten....
Aber ich skizziere mal was.
ypg27.07.17 10:33
Soll das eine Alltagswohnung darstellen oder eine Ferienwohnung?
Du schreibst vom Nebenraum, wo wäre der?
Du schreibst vom Nebenraum, wo wäre der?
Climbee27.07.17 10:34
Ich denke, da sind alle Möbel untergebracht aus der Liste.
Wenn der Durchgang zwischen Küchenzeile und Tisch in den priv. Wohnbereich zu eng wird, ggf. die Küchenzeile bzw. -Insel etwas kürzen.
Aber so hätte man zumindest einen Wohnbereich. Ein Sofa am Tisch finde ich persönlich doof, allein schon deswegen, weil man auf dem Sofa viel zu tief sitzt für den Tisch

Wenn der Durchgang zwischen Küchenzeile und Tisch in den priv. Wohnbereich zu eng wird, ggf. die Küchenzeile bzw. -Insel etwas kürzen.
Aber so hätte man zumindest einen Wohnbereich. Ein Sofa am Tisch finde ich persönlich doof, allein schon deswegen, weil man auf dem Sofa viel zu tief sitzt für den Tisch
Bertram10027.07.17 12:12
Ihr seit ja schnell Ich arbeite mal die Punkte Stück für Stück ab:
:
ich bin meistens allein (nur am Wochenende nicht). Der Wohnbereich ist bei mir wirklich nur Sofa und ein Minicouchtisch zum Füsse hochlegen. Ich habe keinen Fernseher, Laptop auf den Schoss und bei Nichtgebrauch neben/hinters Sofa.
Der Leitungsschacht liegt fest, das WC im schlimmsten Fall auch, die Wand selber ist noch flexibel. Ich glaube dass die Küchen auch an die gegenüberliegende Seite könnte, also das das technisch kein Problem wäre.
Eine Insellösung muss nicht sein. Es ist nur so dass ich bei einer Nur-Wand-Zeile ja immer gegen die Wand schaue statt in den Raum oder ins Licht. Das finde ich ein bisschen depri und würde ich nur machen wenn es keine andere Lösung gibt.
Der Cocktailstuhl steht jetzt einfach in einer Ecke, mit Leselampe. Aber das ist mir wirklich der unwichtigste Teil des ganzen und kann auch problemlos rausfliegen.
:
ja, es ist meine einzige und Alltags- und Hauptwohnung. Ich wohne allein und habe eine zweites Schlafzimmer als "Reserve", zum Lagern und Wäsche trocknen und so Gedöns.
Ja, das Sofa würde ich auch nicht an den Tisch stellen. Das war ein Vorschlag von jemandem anders den ich noch elektronisch zur Verfügung habe. Ich werde noch mal einen leeren Plan machen, vielleicht ist das dann deutlicher.
Ich habe auch die Idee dass ich die Küche planlinke machen könnte und den Durchgang zu den hinteren Schlafzimmern mehr in die Mitte, nach planogen verschieben kann. Dann allerdings fehlt mir die Inspiration wie ich Hauswirtschaftsraum und WC planen soll.
Der hintere Flur nimmt ganz schön viel unnützen Platz weg. Da bin ich gerade ratlos wie ich das noch anders lösen könnte.
:
ich bin meistens allein (nur am Wochenende nicht). Der Wohnbereich ist bei mir wirklich nur Sofa und ein Minicouchtisch zum Füsse hochlegen. Ich habe keinen Fernseher, Laptop auf den Schoss und bei Nichtgebrauch neben/hinters Sofa.
Der Leitungsschacht liegt fest, das WC im schlimmsten Fall auch, die Wand selber ist noch flexibel. Ich glaube dass die Küchen auch an die gegenüberliegende Seite könnte, also das das technisch kein Problem wäre.
Eine Insellösung muss nicht sein. Es ist nur so dass ich bei einer Nur-Wand-Zeile ja immer gegen die Wand schaue statt in den Raum oder ins Licht. Das finde ich ein bisschen depri und würde ich nur machen wenn es keine andere Lösung gibt.
Der Cocktailstuhl steht jetzt einfach in einer Ecke, mit Leselampe. Aber das ist mir wirklich der unwichtigste Teil des ganzen und kann auch problemlos rausfliegen.
:
ja, es ist meine einzige und Alltags- und Hauptwohnung. Ich wohne allein und habe eine zweites Schlafzimmer als "Reserve", zum Lagern und Wäsche trocknen und so Gedöns.
Ja, das Sofa würde ich auch nicht an den Tisch stellen. Das war ein Vorschlag von jemandem anders den ich noch elektronisch zur Verfügung habe. Ich werde noch mal einen leeren Plan machen, vielleicht ist das dann deutlicher.
Ich habe auch die Idee dass ich die Küche planlinke machen könnte und den Durchgang zu den hinteren Schlafzimmern mehr in die Mitte, nach planogen verschieben kann. Dann allerdings fehlt mir die Inspiration wie ich Hauswirtschaftsraum und WC planen soll.
Der hintere Flur nimmt ganz schön viel unnützen Platz weg. Da bin ich gerade ratlos wie ich das noch anders lösen könnte.
hbf1227.07.17 12:40
Warum das WC nicht mit ins Bad, den Hauswirtschaftsraum planunten vor das zweite Zimmer (die Tür des zweiten Zimmers nach oben verschieben)?
Dann könntest du die Küche als L (an der neuen Wand und in den Raum stehend) planunten setzen (mit der kleinen Terrasse im Rücken), und den Tisch und das Sofa im restlichen Raum verteilen.
Dann könntest du die Küche als L (an der neuen Wand und in den Raum stehend) planunten setzen (mit der kleinen Terrasse im Rücken), und den Tisch und das Sofa im restlichen Raum verteilen.
Ähnliche Themen