ᐅ Einschätzung der Gesamtkosten realistisch?
Erstellt am: 15.10.18 17:30
S
SenorRaul715.10.18 17:30Hi,
ich hoffe es ist okay, dass ich so viele Threads aufmache, aber die jeweiligen Themen passen halt immer ganz gut in die Unterforen
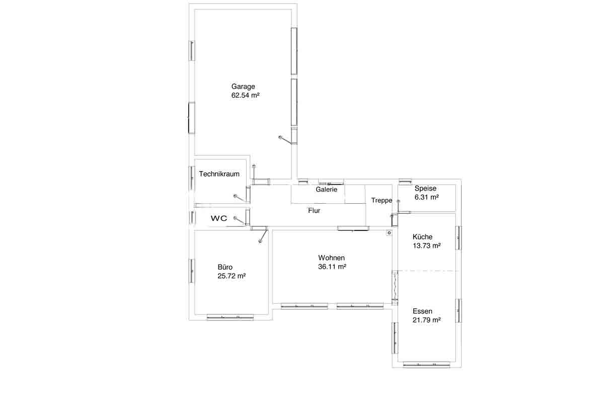
Ich habe für unseren geplanten Bau [Einfamilienhaus | 145m² Wohnfläche | 522m² Grundstück]
mal eine Kostenaufstellung gemacht.
Der Grundpreis von ca. 242.000 € beinhaltet viele kleine Inklusivleistungen wie sämtliche Bauversicherungen, Baustrom, Bau WC etc... (siehe Übersicht). Der Preis wird sich wohl noch erhöhen, wenn wir in die Details wie Steckdosen, kleine Grundrissänderungen etc. gehen. Es handelt sich um eine Baulücke. Das Grundstück haben wir bereits gekauft bzw. zum größten Teil finanziert. Die Erschließung steht aber noch aus.
Mir geht es vor allem um die Kosten drum herum. Fällt euch etwas auf? Etwas Wichtiges, was noch fehlt? Irgendwo viel zu viel/wenig angesetzt?
Wir wollen bei der anstehenden Finanzierung keinen großen Posten übersehen.

ich hoffe es ist okay, dass ich so viele Threads aufmache, aber die jeweiligen Themen passen halt immer ganz gut in die Unterforen
Ich habe für unseren geplanten Bau [Einfamilienhaus | 145m² Wohnfläche | 522m² Grundstück]
mal eine Kostenaufstellung gemacht.
Der Grundpreis von ca. 242.000 € beinhaltet viele kleine Inklusivleistungen wie sämtliche Bauversicherungen, Baustrom, Bau WC etc... (siehe Übersicht). Der Preis wird sich wohl noch erhöhen, wenn wir in die Details wie Steckdosen, kleine Grundrissänderungen etc. gehen. Es handelt sich um eine Baulücke. Das Grundstück haben wir bereits gekauft bzw. zum größten Teil finanziert. Die Erschließung steht aber noch aus.
Mir geht es vor allem um die Kosten drum herum. Fällt euch etwas auf? Etwas Wichtiges, was noch fehlt? Irgendwo viel zu viel/wenig angesetzt?
Wir wollen bei der anstehenden Finanzierung keinen großen Posten übersehen.
R
readytorumble15.10.18 18:58Wie groß sollen Einfahrt + Terrassen werden?
Schau mal hier: https://www.hausbau-forum.de/threads/liste-der-anfallenden-Baunebenkosten-bauseits-teurer.9737/
Und ja: spontan fallen viele teure Dinge auf, die bei Dir nicht sind oder falsch.
Erschließungskosten sind nicht Anschlusskosten. Ein nicht erschlossenes Grundstück muss an die Hauptversorger erschlossen werden -> Erschließungskosten. Dazu kann auch die Strasse gehören.
Anschlusskosten sind dann die Kosten der Anschlüsse, die am Grundstück liegen, diese ans Haus anzuschließen.
Was also hast Du in Deiner Kalkulation drin?
-Erdarbeiten: kann einfach mal durch 20/30cm mehr Aushub 3-10000€ kosten.
-Abfuhr auch 1-5000€
-Bauwasser und -Strom wird manchmal vom GU übernommen. Das inkludiert aber meist nicht die Miete des Elektrokastens wie auch den Wasseransvhluss.
-Pflasterarbeiten sind knapp. Ich würde das doppelte einplanen. Das, was übrig bleibt, in eine Hecke investieren.
-Eingangspodest fehlt.
-Bodengrundgutachten fehlt
-Material für Bodenbeläge und Malern 10000€ einplanen. Sockelleisten sind teuer.
Und ja: spontan fallen viele teure Dinge auf, die bei Dir nicht sind oder falsch.
Erschließungskosten sind nicht Anschlusskosten. Ein nicht erschlossenes Grundstück muss an die Hauptversorger erschlossen werden -> Erschließungskosten. Dazu kann auch die Strasse gehören.
Anschlusskosten sind dann die Kosten der Anschlüsse, die am Grundstück liegen, diese ans Haus anzuschließen.
Was also hast Du in Deiner Kalkulation drin?
-Erdarbeiten: kann einfach mal durch 20/30cm mehr Aushub 3-10000€ kosten.
-Abfuhr auch 1-5000€
-Bauwasser und -Strom wird manchmal vom GU übernommen. Das inkludiert aber meist nicht die Miete des Elektrokastens wie auch den Wasseransvhluss.
-Pflasterarbeiten sind knapp. Ich würde das doppelte einplanen. Das, was übrig bleibt, in eine Hecke investieren.
-Eingangspodest fehlt.
-Bodengrundgutachten fehlt
-Material für Bodenbeläge und Malern 10000€ einplanen. Sockelleisten sind teuer.
Ähnliche Themen