ᐅ Einfamilienhaus vergrößern & kernsanieren oder Abreißen und neu bauen?
Erstellt am: 19.12.21 18:54
Z
zizou8911ant schrieb:
D.h. Ihr macht nun einen Tiefabriß und benutzt außer der Baugrube nichts weiter, obwohl OKKD auch höhenmäßig gepaßt hätte ?Fast, die Grube wird noch etwas vertieft. Die Höhe wäre das nämlich der nächste Kompromiss. Das Haus bzw. der aktuelle Keller steht aktuell ca. 1 m aus dem Boden heraus, d.h. man geht vorne eine Treppe hoch und zum Garten wieder eine Treppe runter. Alles nicht schön. Dazu ist der gesamte Grundriss einfach zu klein.11ant schrieb:
Nein, da ist es einerseits sogar völlig normal, daß es da keine Deckenpläne gibt (und gab). Und andererseits müßte da eigentlich nur zufällig etwas vorhanden sein, denn ein Haus von um 1920 hat immerhin schon den zweiten Weltkrieg erlebt. Da sind mehr Archive ausgebombt worden als daß früher Napoleon gesagt hätte, das Zeug aus der Cäsarzeit könne jetzt in den Schredder ;-)
Im Mittelalter herrschte noch viel Chaos und die städtische Siedlungsform war noch neu, Hauptmotor der Bauvorschriften-Evolution waren verheerende Brände. Erste Bebauungspläne galten der Bekämpfung ausgefranster Straßenränder durch Fluchtlinienvorgaben - Bebauungspläne waren also noch sehr übersichtlich: es gab eine straßenseitige Bauline, und die Firsthöhenvorgabe "nicht höher als der Kirchturm". Noch in der Kaiserzeit gab es wenig Vorschriften: beispielsweise in Berlin gab es die Traufhöhenvorschrift bemessen daran, daß eine Hausfassade hypothetisch wie ein gefällter Baum einstürzend noch vor der gegenüberliegenden Häuserreihe zu liegen kommen konnte, und in den Innenhöfen war der Wendekreis der Feuerspritze das Maß aller Dinge. Statische Berechnungen zum Bauantrag zu fordern, ist eher jungen Datums und in Holzbalkendecken liegen zudem überhaupt keine Eisen.
Holzbalkendecken sind sehr bauforensikfreundlich, aber das betrifft im hier vorliegenden Fall nur diejenige zwischen DG und Spitzboden, die aufklärungsbedürftige Decke ist hier jedoch diejenige zwischen EG und DG.Das ist bei uns nicht der Fall. Zu unserem Haus gibt es zwei dicke Akten. Mit jedem Blödsinn, auch teilweise noch Streitigkeiten vor der Erbauung. Da ist mehr da als man denkt. Nur leider keine Baupläne.
Wir sind nun ein ganzes Stück weiter, da wir mit Bauzeichnerin im Haus waren, und sie den Bebauungsplan mitgebracht hat. Damit hat sich die Dachform erledigt. Darf nicht anders gebaut sein.
Wir werden wahrscheinlich wie folgt vorgehen:
1. Dach bleibt wie gehabt, wird gedämmt und neu eingedeckt.
2. Klinkerfassade wird durch Vorhangfassade "kaschiert" oder verputzt 😉 (bitte seid mir nicht so böse)
3. Innen wird kernsaniert, (neue Heizungsanlage inkl. FB-Heizung, neuer Estrich, neue Leitungen etc.)
4. Neben dem Haus wird ein Anbau von 4x14 Metern in Holzständerbauweise gemacht, in dem ein Elterntrakt entsteht. Heiß also Elternschlafzimmer, Bad und Ankleide alles im EG (ist nötig, da wir nur eingeschossig bauen dürfen).
Optisch stellen wir uns das Haus ungefähr so vor, also farblich und die Gaube. Auch die dunklen Fensterkästen etc.

Dazu dann ein langer, das Holz der Gaube wiederspiegelnder, Anbau, ähnlich wie hier:

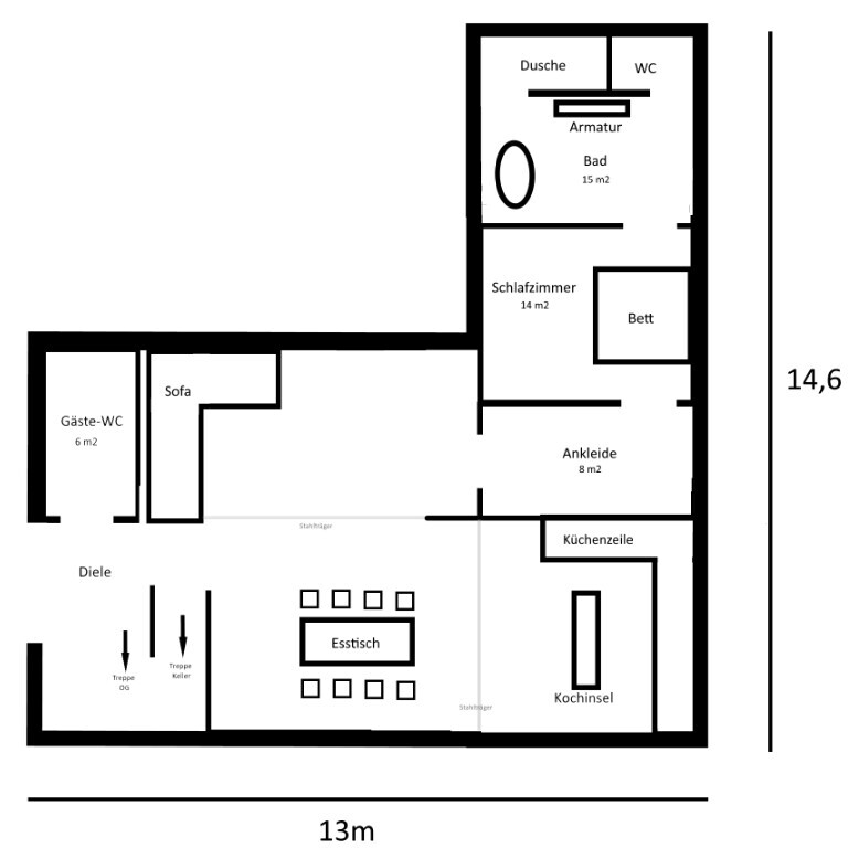
Neuen Plan hier: In grau habe ich die Wände eingetragen, in denen ein Durchbruch gemacht werden müsste. Denkt ihr, dass das statisch machbar ist?

Badezimmer und Elternschlafzimmer haben quasi einen Ausblick auf den Garten. Wellnessoase oder Stimmungskiller? 😀
Durchgang ins Elternschlafzimmer über Ankleide ok oder was denkt ihr?
Seid ruhig ganz offen. Jede Art von Kritik hilft mir 😉
Danke euch für das Feedback!
Wir werden wahrscheinlich wie folgt vorgehen:
1. Dach bleibt wie gehabt, wird gedämmt und neu eingedeckt.
2. Klinkerfassade wird durch Vorhangfassade "kaschiert" oder verputzt 😉 (bitte seid mir nicht so böse)
3. Innen wird kernsaniert, (neue Heizungsanlage inkl. FB-Heizung, neuer Estrich, neue Leitungen etc.)
4. Neben dem Haus wird ein Anbau von 4x14 Metern in Holzständerbauweise gemacht, in dem ein Elterntrakt entsteht. Heiß also Elternschlafzimmer, Bad und Ankleide alles im EG (ist nötig, da wir nur eingeschossig bauen dürfen).
Optisch stellen wir uns das Haus ungefähr so vor, also farblich und die Gaube. Auch die dunklen Fensterkästen etc.
Dazu dann ein langer, das Holz der Gaube wiederspiegelnder, Anbau, ähnlich wie hier:
Neuen Plan hier: In grau habe ich die Wände eingetragen, in denen ein Durchbruch gemacht werden müsste. Denkt ihr, dass das statisch machbar ist?
Badezimmer und Elternschlafzimmer haben quasi einen Ausblick auf den Garten. Wellnessoase oder Stimmungskiller? 😀
Durchgang ins Elternschlafzimmer über Ankleide ok oder was denkt ihr?
Seid ruhig ganz offen. Jede Art von Kritik hilft mir 😉
Danke euch für das Feedback!
Das sieht nach einem machbaren Plan aus. Ob das statisch passt berechnet der Statiker. Die Reihenfolge von Ankleide, Schlafzimmer und Bad, wird hier verschieden gesehen. Die Argumente werden sicher noch vorgebracht. Bei uns wäre das Ankleiden, Bad und Schlafzimmer,
Falls sie Sissi oder Top Gun im Heimkino hat, oder er früh raus muss, ist es hinten ruhiger zum schlafen.
Das WZ hat viel Durchgangsverkehr
Falls sie Sissi oder Top Gun im Heimkino hat, oder er früh raus muss, ist es hinten ruhiger zum schlafen.
Das WZ hat viel Durchgangsverkehr
zizou89 schrieb:
Wir sind nun ein ganzes Stück weiter, da wir mit Bauzeichnerin im Haus waren, und sie den Bebauungsplan mitgebracht hat. Damit hat sich die Dachform erledigt. Darf nicht anders gebaut sein.WIR sind noch nicht weiter, so lange Du den Bebauungsplan nicht mit uns teilst. Bislang wurde noch nichts vorgeschlagen, was mir nicht umsetzbar erschienen wäre (mit vier Jahrzehnten Erfahrung in dem Kram). Das aktuelle Haus IST übrigens eingeschossig, da so flachdachig einen Seecontainer ans Haus zu kleben erscheint mir nicht geboten.zizou89 schrieb:
Neuen Plan hier: In grau habe ich die Wände eingetragen, in denen ein Durchbruch gemacht werden müsste. Denkt ihr, dass das statisch machbar ist?
[...] Seid ruhig ganz offen. Jede Art von Kritik hilft mirWozu, wenn Du die Kritik nicht annimmst und wieder so einen Quatsch mit dünngeknabberter bisheriger Außenwand einzeichnest ? - wenn Stahl keine Rolex spielt, geht statisch fast alles, dann ist nur für alles Andere kein Geld mehr übrig ;-)Mit welchem Kinderprogramm versuchst Du denn überhaupt Deine Grundrißbastelei ?
Das ist ja schon fast eine Kunst, Verhältnisse deren korrekte Maße man kennt, so ismirdochegalig abzumalen !
Für uns Mitleser ist das "nur" anstrengend, aber Dich selbst kostet das in entscheidendem Maße möglichen Durchblick :-(
https://www.instagram.com/11antgmxde/
https://www.linkedin.com/company/bauen-jetzt/
11ant schrieb:
WIR sind noch nicht weiter, so lange Du den Bebauungsplan nicht mit uns teilst. Bislang wurde noch nichts vorgeschlagen, was mir nicht umsetzbar erschienen wäre (mit vier Jahrzehnten Erfahrung in dem Kram). Das aktuelle Haus IST übrigens eingeschossig, da so flachdachig einen Seecontainer ans Haus zu kleben erscheint mir nicht geboten.
Wozu, wenn Du die Kritik nicht annimmst und wieder so einen Quatsch mit dünngeknabberter bisheriger Außenwand einzeichnest ? - wenn Stahl keine Rolex spielt, geht statisch fast alles, dann ist nur für alles Andere kein Geld mehr übrig ;-)
Mit welchem Kinderprogramm versuchst Du denn überhaupt Deine Grundrißbastelei ?
Das ist ja schon fast eine Kunst, Verhältnisse deren korrekte Maße man kennt, so ismirdochegalig abzumalen !
Für uns Mitleser ist das "nur" anstrengend, aber Dich selbst kostet das in entscheidendem Maße möglichen Durchblick :-(Mit welchem Programm kann ich es denn machen? Ich habe doch keine Ahnung wie man sieht.
Für mich geht es doch in erster Linie darum, dass ich einem Architekten in nächster Zeit mitteilen kann, was ich mir so vorstellen könnte und ihm/ihr nicht zu sagen: Hier ist mein Plan, mach fertig 😀
Ich versuche doch schon mein Bestes, damit es wenigstens einigermaßen vorstellbar ist.
Ähnliche Themen