ᐅ Einfamilienhaus mit 170qm² mit Option Mehrfamilienhaus auf 900 qm² Eckgrundstück
Erstellt am: 05.02.21 15:41
B
BauFamilyBad
Badewanne
Handtücher am Waschbecken putzen die Toilette
Schlafzimmer 2x2 m Bett paßt nicht
Küche
Was ist mit den anderen Schränken? Was soll da rein? Da kommt doch kein Ablauf rein. Wo stellst du mal schnell ein heißes Backblech oder schweren Bräter hin?
Trotz Fenster wirst du an den wenigsten Tagen ohne künstliches Licht auskommen.
Für was einen Keller? Lebensmittel oben Wäsche oben Gast oben
Was meinst du was in dem Eck hinter dem Windfang gelagert wird? Dann muss halt der Rasenmäher und Sack Erde vorbei
Haus mit Keller, Garage, Erker, Balkon oben wird nichts für das Budget.
Wann willst du das Schlafzimmer im Alter unten nutzen
Badewanne
Handtücher am Waschbecken putzen die Toilette
Schlafzimmer 2x2 m Bett paßt nicht
Küche
Was ist mit den anderen Schränken? Was soll da rein? Da kommt doch kein Ablauf rein. Wo stellst du mal schnell ein heißes Backblech oder schweren Bräter hin?
Trotz Fenster wirst du an den wenigsten Tagen ohne künstliches Licht auskommen.
Für was einen Keller? Lebensmittel oben Wäsche oben Gast oben
Was meinst du was in dem Eck hinter dem Windfang gelagert wird? Dann muss halt der Rasenmäher und Sack Erde vorbei
Haus mit Keller, Garage, Erker, Balkon oben wird nichts für das Budget.
Wann willst du das Schlafzimmer im Alter unten nutzen
B
BauFamily05.02.21 23:25Vielen Dank für euer Feedback. Ich habe verstanden, dass ich grundsätzlich etwas anpassen muss. Ich mache mich an die Arbeit und komme auf euch zurück.
B
BauFamily07.02.21 09:56Hallo zusammen,
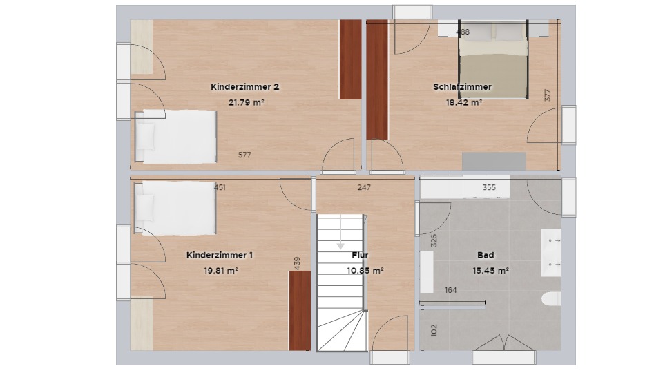
nachfolgend findet ihr (eure Rückmeldung berücksichtigt) einen angepassten Grundriss, der jedoch keine mehre Wohneinheiten zulässt, jedoch eher einen großzügigen Einfamilienhaus-Charakter (insbesondere mit einem breiten Flur) entspricht. Das zusätzliche Zimmer im EG fällt daher weg. Das Home Office muss dann in das Schlafzimmer oder in den Keller bzw. Dachgeschoss ausweichen.
Die Garage ist nun praktischer als klassische Doppelgarage, die jedoch nicht mehr so lang ist. Sie ist so lang, wie das Baufenster es zulässt und gleichzeitig ein Fenster im Gäste-WC möglich ist.
Was denkt ihr?



nachfolgend findet ihr (eure Rückmeldung berücksichtigt) einen angepassten Grundriss, der jedoch keine mehre Wohneinheiten zulässt, jedoch eher einen großzügigen Einfamilienhaus-Charakter (insbesondere mit einem breiten Flur) entspricht. Das zusätzliche Zimmer im EG fällt daher weg. Das Home Office muss dann in das Schlafzimmer oder in den Keller bzw. Dachgeschoss ausweichen.
Die Garage ist nun praktischer als klassische Doppelgarage, die jedoch nicht mehr so lang ist. Sie ist so lang, wie das Baufenster es zulässt und gleichzeitig ein Fenster im Gäste-WC möglich ist.
Was denkt ihr?
Bist Du Dir sicher, dass Du jetzt jede eher unüberlegte und spontane und noch nicht ausgereifte Idee posten möchtest?
Schau Dir einfach nur mal das Gäste-WC an: quasi ein Gang mit der Option, sich zum Klo zu kämpfen.
Man sollte als Laie, der sich dem Rätsel des Optimierens von Räumen hingibt, mit Ideen schwanger gehen, man sollte tagein tagaus Grübeln und immer wieder rangehen, damit nicht die Gefahr besteht, einen lieblosen Abklatsch aufs Papier zu bringen.
Wenn das nicht passiert, dann sollte man ganz schnell an einen Architekten abgeben.
Die Geduld eines Forums ist auch endlich und will nicht immer auf Treppenlängen und Schranktiefen hinweisen.
Vielleicht geht es mit Papier und Bleistift etwas einfacher 😉
Schau Dir einfach nur mal das Gäste-WC an: quasi ein Gang mit der Option, sich zum Klo zu kämpfen.
Man sollte als Laie, der sich dem Rätsel des Optimierens von Räumen hingibt, mit Ideen schwanger gehen, man sollte tagein tagaus Grübeln und immer wieder rangehen, damit nicht die Gefahr besteht, einen lieblosen Abklatsch aufs Papier zu bringen.
Wenn das nicht passiert, dann sollte man ganz schnell an einen Architekten abgeben.
Die Geduld eines Forums ist auch endlich und will nicht immer auf Treppenlängen und Schranktiefen hinweisen.
Vielleicht geht es mit Papier und Bleistift etwas einfacher 😉
BauFamily schrieb:Erstmal Prios festlegen, ein Hin und her ist nicht produktiv.
keine mehre Wohneinheiten zulässt, jedoch eher einen großzügigen Einfamilienhaus-Charakter (insbesondere mit einem breiten Flur) entspricht. Das zusätzliche Zimmer im EG fällt daher weg. Das Home Office muss dann in das Schlafzimmer oder in den Keller bzw. Dachgeschoss ausweichen.
B
BauFamily07.02.21 11:46@ypg: Das Ganze hier dient doch dazu, angehenden Bauherren entsprechend zu Unterstützen und nicht grundsätzlich Instrumente, die Laien heutzutage haben, zu kritisieren?
Wir haben hier zunächst einen Grundriss gepostet, an dem wir lange gearbeitet haben. Am Ende waren wir uns nicht ganz sicher, ob das Ganze doch mit zu viel Individualität verbunden ist (keine klaren Linien, etc.) Daher unser Post hier.. Was ist passiert? Unser Bauchgefühl wurde bestätigt von wir haben nun einen neuen ENTWURF anlehnend auch an deiner Kritik erstellt. An diesem Entwurf gilt es nun zu arbeiten bzw. feinzujustieren. Daher hätten wir uns entsprechend Feedback gewünscht, ob der neue Entwurf die Kritik aufgenommen hat. Wir wollten vermeiden, dass wir auf Basis dieses Entwurfs wieder lange um Details Gedanken machen (so wie es beim ersten Grundriss der Fall war), um dann erfahren, dass das Ganze nicht passend ist.
Was passt dir daran nicht? Das Laien heutzutage im digitalen Zeitalter Möglichkeiten haben selbst etwas in relativ "kurzer" Zeit zu entwerfen? Wir sind wie gesagt auf die Kritik, die wir sehr gut nachvollziehen können und selbst im Hinterkopf hatten, eingegangen und sind mit einem neuen Grundentwurf zurück. Abgesehen davon, empfinden wir das Nachvollziehen von Raumgefühl, etc. mit so einem 3D Programm wesentlich intuitiver als mit Bleistift und Papier. Aber das soll hier nicht Diskussionsgrundlage sein... Schranktiefen mit 60 cm sowie die Treppenmaße (genau nach dem Forum hier - 1,28 cm Breite ) haben wir berücksichtigt.
Sachliche Kritik, was bei dem Grundriss nicht so realisierbar ist und was es grundsätzlich zu Überdenken gilt aus welchen Gründen hilft an der Stelle viel mehr denke ich...
Aber deine sachliche Kritik hinsichtlich dem Gäste-WC haben wir aufgenommen und werden es entsprechend anpassen ;-) Vielen Dank dafür.
Wir haben hier zunächst einen Grundriss gepostet, an dem wir lange gearbeitet haben. Am Ende waren wir uns nicht ganz sicher, ob das Ganze doch mit zu viel Individualität verbunden ist (keine klaren Linien, etc.) Daher unser Post hier.. Was ist passiert? Unser Bauchgefühl wurde bestätigt von wir haben nun einen neuen ENTWURF anlehnend auch an deiner Kritik erstellt. An diesem Entwurf gilt es nun zu arbeiten bzw. feinzujustieren. Daher hätten wir uns entsprechend Feedback gewünscht, ob der neue Entwurf die Kritik aufgenommen hat. Wir wollten vermeiden, dass wir auf Basis dieses Entwurfs wieder lange um Details Gedanken machen (so wie es beim ersten Grundriss der Fall war), um dann erfahren, dass das Ganze nicht passend ist.
Was passt dir daran nicht? Das Laien heutzutage im digitalen Zeitalter Möglichkeiten haben selbst etwas in relativ "kurzer" Zeit zu entwerfen? Wir sind wie gesagt auf die Kritik, die wir sehr gut nachvollziehen können und selbst im Hinterkopf hatten, eingegangen und sind mit einem neuen Grundentwurf zurück. Abgesehen davon, empfinden wir das Nachvollziehen von Raumgefühl, etc. mit so einem 3D Programm wesentlich intuitiver als mit Bleistift und Papier. Aber das soll hier nicht Diskussionsgrundlage sein... Schranktiefen mit 60 cm sowie die Treppenmaße (genau nach dem Forum hier - 1,28 cm Breite ) haben wir berücksichtigt.
Sachliche Kritik, was bei dem Grundriss nicht so realisierbar ist und was es grundsätzlich zu Überdenken gilt aus welchen Gründen hilft an der Stelle viel mehr denke ich...
Aber deine sachliche Kritik hinsichtlich dem Gäste-WC haben wir aufgenommen und werden es entsprechend anpassen ;-) Vielen Dank dafür.
B
BauFamily07.02.21 12:45Nur um es klar zu stellen: Wir hatten jetzt nicht vor alle 2 Tage mit einem neuen Vorschlag um die Ecke zu kommen. Wir wollte nur Feedback, ob eure Kritik in den neuen Entwurf eingeflossen ist, bzw. so gemeint war. Auf Basis dessen machen wir uns detaillierte Gedanken und kommen auf euch zurück. Der neue Entwurf ist keineswegs bis zum Ende durchdacht, das ist uns klar.
Ähnliche Themen