ᐅ Einfamilienhaus - Kapitänshaus - 150m² - Neubau - Tipps benötigt
Erstellt am: 09.10.19 10:54
E
Erisa2010
Hallo ihr Lieben,
wir haben ein Grundstück in Niedersachsen gekauft und waren bereits im ersten Planungsgespräch mit der Architektin unserer Baufirma, dh. der erste Vorentwurf ist durch, drei haben wir frei.
Wir haben uns eine 3D-Datei schicken lassen, und konnten so vorab mal "durchs Haus gehen". Dabei hat uns nicht alles zugesagt, sodass ich hoffe, hier ein paar gute Tipps zur Optimierung zu bekommen.
Bebauungsplan/Einschränkungen
Größe des Grundstücks: 595 m²
Hang: entlang der Nordseite von der Einfahrt bis zur Nord-Ost-Ecke steigend, höchste Stelle ca. 1,30-1,50m (Stützmauer entlang der Grenze in Planung)
Gebäudetyp: Einfamilienhaus
Grundflächenzahl: 0,25
Geschossigkeit: 1 Vollgeschoss
Baugrenze: Norden 5m, Süden/Westen 3m
Anzahl Stellplatz: 2 lt. Bebauungsplan (1 Carport, 1 Stellplatz davor)
Ausrichtung: Süden
Maximale Höhen/Begrenzungen: Firsthöhe über OK EGFF: 9m , Traufhöhe über OK EGFF: 4,5m
Anforderungen der Bauherren
Stilrichtung, Dachform, Gebäudetyp: massives Kapitänshaus mit Giebel zum Süden, Satteldach 45°
Keller, Geschosse: 1 Vollgeschoss, kein Keller
Anzahl der Personen, Alter: 2 Personen (30, 34), 2 Kinder geplant
Raumbedarf im UG, EG, OG:
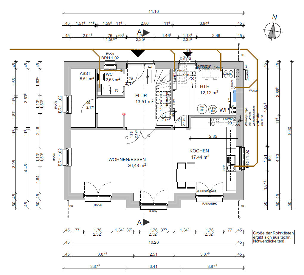
EG: Gäste-WC, Hauswirtschaftsraum, Küche, Wohn-/Esszimmer
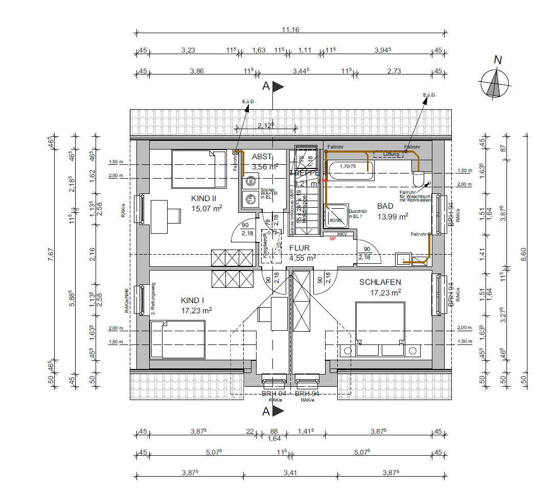
OG: Bad, Elternschlafzimmer, 2 Kinderzimmer, Abstellraum (Waschmaschine/Trockner erhöht)
offene Küche, Kochinsel: Insellösung (auch ohne kochfeld und evtl. mit Sitzplätzen dran) fand bislang keinen Platz; Thema offen: siehe unten
Anzahl Essplätze: 4 in Küche, 6-8 im Wohn-/Essbereich
Kamin: nein
Musik/Stereowand: nein
Balkon: nein
Terrasse: ja, vor Küche und Wohn-/Essbereich
Zisterne: ja
Heizung/Strom: Erdwärmepumpe und Photovoltaikanlage mit Stromspeicher
Garage, Carport: Carport
weitere Wünsche/Besonderheiten, gern auch Begründungen, warum dieses oder das nicht sein soll:
- Küche: In der Küche möchten wir zu viert essen können, dabei geht es hauptsächlich um Frühstück in der Woche oder warme Mahlzeiten, bei denen der Kochtopf auch auf dem Herd stehen bleiben kann. Mit Kindern/Hochstühlen halte ich einen Bartisch/-Tresen nicht für sinnig!?
- Bad OG: Uns wurde von anderen Bauherren empfohlen, die Dusche (und WC dann auch?) wegen der Lautstärke nicht an die Wand zum Schlafzimmer zu legen.
- Fenstergrößen noch variabel
Hausentwurf
Von wem stammt die Planung: von uns in Abstimmung mit der Architektin der Hausbaufirma
Was gefällt besonders? Warum? :
- Größe der Küche, Ausgang zur Terrasse
- Tür von Küche in Hauswirtschaftsraum
- Hauswirtschaftsraum mit Platz für unsere 2 regale (1,67m Wand) für Lebensmittel und Haushaltssachen und gelber Sack direkt um die Ecke (neben Lüftung)
- HKV versteckt im Hauswirtschaftsraum, oben versteckt in dickerer Wand
- Abstellraum im OG mit Platz für Waschmaschine und Trockner auf Podest und Wäscheständer würde auch hineinpassen (Raum wird entlüftet)
- große Kinderzimmer
Was würden wir am derzeitigen Plan für den 2. Entwurf ändern :
- Tür Küche-Hauswirtschaftsraum zur Küche hin öffnen, um Kollision zu vermeiden? (keine Schiebetür-Lösung)
- evtl. Lichtband in Gäste-WC, damit man beim Zur-Haustür-Gehen nicht direkt hereinschauen kann und mehr Licht auf den Spiegel fällt, als wenn man das Licht nur im Rücken hat (Nordseite ist eh eher dunkler) > jetziges Bad-Fenster dann in Flur verschieben
- Fenster in Wohn-/Essbereich müssten von innen schauend beide nach links verrückt werden, zu nah an Wand
- evtl. Dachfenster in den Treppenaufgang, da Flur OG sonst zu dunkel
- Ablage in Dusche ohne Sitzmöglichkeit, nur halbe Mauer als Ablage für Duschzeug; entstehender Totraum hinter Dusche vom Abstellraum aus zugänglich als Nische machen
- Kinderzimmer sind mit 1,40m-Betten im Grundriss, 90er reichen natürlich auch
Was gefällt nicht? Warum? :
- Flur EG zu schmal
- zu öffnende Tür zum Wohn-/Essbereich ist "unter" der Treppe (=vom Flur aus rechte Tür), da man sonst nicht in die Küche kommt
- geschlossene Treppenstufen, die ich gerne gehabt hätte, kommen bei diesem Grundriss nicht in Frage
- beidseitiges Treppengeländer im Flur OG (optisch), wobei der Flur so offener und weniger schmal wirkt
- Hauswirtschaftsraum hat "überflüssig viel" Platz in der Raummitte
- Bad oben: Aufteilung allgemein, Bad wirkt klein und unmodern
Warum ist der Entwurf so geworden, wie er jetzt ist?
- Küche: Da ich unter der Woche zum Frühstück nicht alles bis zum großen Esstisch schleppen möchte, ist mir ein Essbereich in der Küche wichtig. Optisch erschien mir Küchensitzbereich "neben" großem Esstischsitzbereich komisch, sodass wir derzeit eine halbhohe Mauer als Abgrenzung geplant haben, hinter die man den Küchentisch stellen könnte, sodass es immer noch halbwegs offen ist. Bin aber auch nicht sicher, ob die Wandlänge ausreicht
- anfangs fanden wir eine gerade Treppe ansprechend, aber sie ragt eben extrem weit durchs Haus unten und oben
[U]Was ist die wichtigste/grundlegende Frage zum Grundriss in 130 Zeichen zusammengefasst? [/U]
Wie kann man den Flur besser gestalten, sodass er nicht so eng wirkt? Wir sind auch offen gegenüber anderen Treppenformen. Es muss Platz für eine Garderobennische bleiben, die nicht zu einsehbar sein sollte. Gern auch vor dem Gäste-WC. Vielleicht entspannt sich durch die neue Gestaltung oben auch die Bad-Situation?
Ich bin gespannt auf Eure Anmerkungen und Ideen!
Liebe Grüße, Erisa







wir haben ein Grundstück in Niedersachsen gekauft und waren bereits im ersten Planungsgespräch mit der Architektin unserer Baufirma, dh. der erste Vorentwurf ist durch, drei haben wir frei.
Wir haben uns eine 3D-Datei schicken lassen, und konnten so vorab mal "durchs Haus gehen". Dabei hat uns nicht alles zugesagt, sodass ich hoffe, hier ein paar gute Tipps zur Optimierung zu bekommen.
Bebauungsplan/Einschränkungen
Größe des Grundstücks: 595 m²
Hang: entlang der Nordseite von der Einfahrt bis zur Nord-Ost-Ecke steigend, höchste Stelle ca. 1,30-1,50m (Stützmauer entlang der Grenze in Planung)
Gebäudetyp: Einfamilienhaus
Grundflächenzahl: 0,25
Geschossigkeit: 1 Vollgeschoss
Baugrenze: Norden 5m, Süden/Westen 3m
Anzahl Stellplatz: 2 lt. Bebauungsplan (1 Carport, 1 Stellplatz davor)
Ausrichtung: Süden
Maximale Höhen/Begrenzungen: Firsthöhe über OK EGFF: 9m , Traufhöhe über OK EGFF: 4,5m
Anforderungen der Bauherren
Stilrichtung, Dachform, Gebäudetyp: massives Kapitänshaus mit Giebel zum Süden, Satteldach 45°
Keller, Geschosse: 1 Vollgeschoss, kein Keller
Anzahl der Personen, Alter: 2 Personen (30, 34), 2 Kinder geplant
Raumbedarf im UG, EG, OG:
EG: Gäste-WC, Hauswirtschaftsraum, Küche, Wohn-/Esszimmer
OG: Bad, Elternschlafzimmer, 2 Kinderzimmer, Abstellraum (Waschmaschine/Trockner erhöht)
offene Küche, Kochinsel: Insellösung (auch ohne kochfeld und evtl. mit Sitzplätzen dran) fand bislang keinen Platz; Thema offen: siehe unten
Anzahl Essplätze: 4 in Küche, 6-8 im Wohn-/Essbereich
Kamin: nein
Musik/Stereowand: nein
Balkon: nein
Terrasse: ja, vor Küche und Wohn-/Essbereich
Zisterne: ja
Heizung/Strom: Erdwärmepumpe und Photovoltaikanlage mit Stromspeicher
Garage, Carport: Carport
weitere Wünsche/Besonderheiten, gern auch Begründungen, warum dieses oder das nicht sein soll:
- Küche: In der Küche möchten wir zu viert essen können, dabei geht es hauptsächlich um Frühstück in der Woche oder warme Mahlzeiten, bei denen der Kochtopf auch auf dem Herd stehen bleiben kann. Mit Kindern/Hochstühlen halte ich einen Bartisch/-Tresen nicht für sinnig!?
- Bad OG: Uns wurde von anderen Bauherren empfohlen, die Dusche (und WC dann auch?) wegen der Lautstärke nicht an die Wand zum Schlafzimmer zu legen.
- Fenstergrößen noch variabel
Hausentwurf
Von wem stammt die Planung: von uns in Abstimmung mit der Architektin der Hausbaufirma
Was gefällt besonders? Warum? :
- Größe der Küche, Ausgang zur Terrasse
- Tür von Küche in Hauswirtschaftsraum
- Hauswirtschaftsraum mit Platz für unsere 2 regale (1,67m Wand) für Lebensmittel und Haushaltssachen und gelber Sack direkt um die Ecke (neben Lüftung)
- HKV versteckt im Hauswirtschaftsraum, oben versteckt in dickerer Wand
- Abstellraum im OG mit Platz für Waschmaschine und Trockner auf Podest und Wäscheständer würde auch hineinpassen (Raum wird entlüftet)
- große Kinderzimmer
Was würden wir am derzeitigen Plan für den 2. Entwurf ändern :
- Tür Küche-Hauswirtschaftsraum zur Küche hin öffnen, um Kollision zu vermeiden? (keine Schiebetür-Lösung)
- evtl. Lichtband in Gäste-WC, damit man beim Zur-Haustür-Gehen nicht direkt hereinschauen kann und mehr Licht auf den Spiegel fällt, als wenn man das Licht nur im Rücken hat (Nordseite ist eh eher dunkler) > jetziges Bad-Fenster dann in Flur verschieben
- Fenster in Wohn-/Essbereich müssten von innen schauend beide nach links verrückt werden, zu nah an Wand
- evtl. Dachfenster in den Treppenaufgang, da Flur OG sonst zu dunkel
- Ablage in Dusche ohne Sitzmöglichkeit, nur halbe Mauer als Ablage für Duschzeug; entstehender Totraum hinter Dusche vom Abstellraum aus zugänglich als Nische machen
- Kinderzimmer sind mit 1,40m-Betten im Grundriss, 90er reichen natürlich auch
Was gefällt nicht? Warum? :
- Flur EG zu schmal
- zu öffnende Tür zum Wohn-/Essbereich ist "unter" der Treppe (=vom Flur aus rechte Tür), da man sonst nicht in die Küche kommt
- geschlossene Treppenstufen, die ich gerne gehabt hätte, kommen bei diesem Grundriss nicht in Frage
- beidseitiges Treppengeländer im Flur OG (optisch), wobei der Flur so offener und weniger schmal wirkt
- Hauswirtschaftsraum hat "überflüssig viel" Platz in der Raummitte
- Bad oben: Aufteilung allgemein, Bad wirkt klein und unmodern
Warum ist der Entwurf so geworden, wie er jetzt ist?
- Küche: Da ich unter der Woche zum Frühstück nicht alles bis zum großen Esstisch schleppen möchte, ist mir ein Essbereich in der Küche wichtig. Optisch erschien mir Küchensitzbereich "neben" großem Esstischsitzbereich komisch, sodass wir derzeit eine halbhohe Mauer als Abgrenzung geplant haben, hinter die man den Küchentisch stellen könnte, sodass es immer noch halbwegs offen ist. Bin aber auch nicht sicher, ob die Wandlänge ausreicht
- anfangs fanden wir eine gerade Treppe ansprechend, aber sie ragt eben extrem weit durchs Haus unten und oben
[U]Was ist die wichtigste/grundlegende Frage zum Grundriss in 130 Zeichen zusammengefasst? [/U]
Wie kann man den Flur besser gestalten, sodass er nicht so eng wirkt? Wir sind auch offen gegenüber anderen Treppenformen. Es muss Platz für eine Garderobennische bleiben, die nicht zu einsehbar sein sollte. Gern auch vor dem Gäste-WC. Vielleicht entspannt sich durch die neue Gestaltung oben auch die Bad-Situation?
Ich bin gespannt auf Eure Anmerkungen und Ideen!
Liebe Grüße, Erisa
Erisa2010 schrieb:
Danke dir, wir haben noch mal versucht, das genauer einzugrenzen und sind zu dem Entschluss gekommen, dass wir im Grunde zu viert immer an dem großen Esstisch essen können (wenn der Weg nicht so weit ist wie im ersten Entwurf!) und so ein Tresenbereich aber für ein schnelles Frühstück durchaus schön wäre, dann reichen aber 3 Plätze aus.Ich meine eigentlich den Gedanken finden, ohne auf diesen Entwurf zu schauen.Erst wenn ihr wisst, was ihr wollt, dann entsprechend Küche, Ess und WZ planen. Es gibt ja schließlich auch noch die Variante Wohnküche und separates WZ.
Ich würde auch mal den Esstisch etwas zur Küche ziehen und/oder den Tresen mal als Verlängerung zur Insel planen, zb als 80x80er Tisch in Hochtischart oder 72er Höhe. Da gibt es viel mehr Möglichkeiten als diese Barvariante.
Meist wird der Hochstuhl nämlich im Alltag kaum benutzt.
Zwei Hauswirtschaftsraum-Türen sind überflüssig: da sollte man mal schauen, dass man die Schräge unter der Treppe besser für Kommoden und Schränke nutzt.
Erisa2010 schrieb:
Ach, langes morgendliches im Bettsitzen machen wir eh nicht Momentan haben wir 77cm zwischen Bett und Schrank und ich finde es optimal, dass ich morgens auIch meine eigentlich die Kniestock-Höhe. Ich sitze gerade im Bett, während ich dieses schreibe: dabei in einem bequemen Bett mit Boxspringhöhe und eher gekrümmten Rücken. Dabei bin ich gefühlt 15cm kleiner als der Kniestock, der ca. 125cm ist. Bei Deinem Kniestock müsste ich a) ein anderes Bett haben b) könnt ich morgens nicht sitzen.kaho674 schrieb:
Hier gönn ich mir französische Balkone für meine Schatzis.Ausblick für die Knie unter dem schreibtisch ?https://www.instagram.com/11antgmxde/
https://www.linkedin.com/company/bauen-jetzt/
11ant schrieb:
Ausblick für die Knie unter dem Schreibtisch ?Schreibtisch? Hast Du keine Bilder in #12? Dort steht kein Schreibtisch beim Kapitän. Es ist noch gar nicht möbliert. Aber natürlich stell ich den Schreibtisch nicht vor den fr. Balkon.
kaho674 schrieb:
Aber natürlich stell ich den Schreibtisch nicht vor den fr. Balkon.Bei Kindern mit halben Kapitänen landet er aber dermaßen oft dort, daß ich schon einen speziellen Magnetismus dahinter vermute https://www.instagram.com/11antgmxde/
https://www.linkedin.com/company/bauen-jetzt/
E
Erisa201018.10.19 09:53Hallo,
sorry, dass ich mich ein paar Tage nicht gemeldet habe, ich habe diese Woche jeden Tag mit der Architektin telefoniert und am Grundriss gebastelt.
Bis Mittwoch müssen wir ihn finalisieren.
Vielen Dank für den Vorschlag! Das sieht sehr gut aus. Leider sträubt sich die Architektin, das WZ noch breiter zu machen, da sie befürchtet, dass die Decke wegen der Statik komplett dicker gemacht werden muss. Kennt sich da wer aus, auch bzgl. Mehrkosten? Wir konnten von der Baufirma noch keine Aussage erhalten, ohne dass der Statiker draufgeschaut hat.
Falls das hier falsch rübergekommen ist, wir wollen in den Hauswirtschaftsraum noch Regale stellen, wo auch Lebensmittel drin sind. Im neuen Grundriss seht ihr es (Originalmaße) stehen. Der davorliegende "Schlauch" ist uns breit genug, so ähnlich viel Platz ist jetzt in der Wohnung auch davor und es ist ausreichend.
Die WaMa hätten wir gern oben mit Trockner nebeneinander auf einem Podest.
Den Tipp mit dem Teilen des Kapitängiebels oben haben wir aufgenommen.
Die Architektin meinte, bei Wärmepumpe kann es sein, dass der HKV 1,10m breit sein muss!?
Zurzeit essen wir eigentlich immer an unserem Bartisch Frühstück. Ich lasse mich morgen mal im Küchenstudio beraten, was es für Möglichkeiten gibt.
Hatten wir auch drüber nachgedacht, aber ich möchte zum einen den Durchgang zur Küche, da Hauswirtschaftsraum auch Speisekammerersatz. Und wenn ich mir vorstelle, dass man den Hauswirtschaftsraum auch als Nebeneingang benutzt mit dreckigen Schuhen usw., hat man ja oft trotzdem eine Jacke an, die zur Garderobe muss oder will noch zum Händewaschen ins Bad.
Versteh ich leider nicht richtig mit der Höhe, aber hat sich mit der neuen Planung vielleicht eh erledigt? Ich kann mich nicht erinnern, in meiner jetzigen Wohnung mal mit Laptop im Bett gesessen zu haben, da zieh ich doch die Couch vor
Zum neuen Entwurf:
Wie gesagt, Wohnzimmer ist wohl schwierig breiter zu kriegen wegen der Statik.
Die Möbel in Wohnen/Essen und Kochen stimmen nicht.
Das Viereck Abst/WC/Garderobe hatte ich erst umgestellt, um den Abst. (dann als Gästezimmer) breiter zu kriegen (WC in die Hausecke, Garderobe davor, Abstellraum zwischen WZ und dem Schlauch WC/Garderobe) aber das passt wohl oben mit den Rohren nicht. Dann wäre das Entlüftungsrohr entweder mittig an der Außenwand von Kind II oder, wenn man das Fallrohr/WC in die Ecke macht, müsste ein kompletter Kanal an der Wand von Kind II entlang gehen, da die WaMa noch den Abfluss nach unten braucht. Ein extra-Abflussrohr nach unten von der WaMa würde, mit Gäste-WC in der Hausecke, durch den Vorraum davor laufen, sodass der Gang wieder breiter müsste und der Abstellraum auch wieder schmaler werden würde.
Das OG sieht für mich soweit ok aus. Allerdings gibt es auch im Bad das Problem Fallrohr. Das Rohr vom Waschbecken kann wohl ohne offensichtlichen Kasten nur bis da vors Fenster geführt werden. Was unten in der Ecke der Küche resultieren würde. Bis zur Toilette rüber wäre wohl zu weit und würde in einem Rohrkasten entlang des Fensters resultieren.
Die Möbel in Kind I und Kind II stehen in der Zeichnung nicht optimal, darüber brauchen wir nicht zu sprechen, denke, das kriegt man besser hin.
Das Problem ist, dass uns die Zeit davon läuft, da wir am Mittwoch für 3,5 Wochen in den Urlaub fliegen und den Grundriss gern vorher fix hätten, um nicht zu viel Zeit zu verlieren.
Vielen Dank für eure Mithilfe!



sorry, dass ich mich ein paar Tage nicht gemeldet habe, ich habe diese Woche jeden Tag mit der Architektin telefoniert und am Grundriss gebastelt.
Bis Mittwoch müssen wir ihn finalisieren.
kaho674 schrieb:
Ich finde diese Hausbreite hier irgendwie nicht Fisch und nicht Fleisch. Es ist zu zu schmal, um das WZ mit auf Linie zu bringen aber eigentlich auch zu breit, da viel nutzloses Fläche in der Mitte entsteht, die für's WZ fehlt. Die Aufteilung der Kinderzimmer oben ist ja auch ein Chaos und dieser Flur geht gleich mal gar nicht.
Wär es meins, würde ich auf mehr Breite gehen und alle Wohn-Räume im EG an die Terrasse bringen (Grundfläche gleich = kostenneutral). Dazu eine anständige Speisekammer, Bad mit Extra-Dusche für den Hund oder Papa ( ) sowie Hauswirtschaftsraum.
Oben anständige Kinderzimmer, die sich den Kapitän teilen und somit die Südsonne ins Zimmer holen. Hier gönn ich mir französische Balkone für meine Schatzis.
Da für die Wama kein Platz mehr ist, gibts als Ausgleich einen Wäscheschacht bis in den Hauswirtschaftsraum. Von dort gibts ne Tür direkt zum Wäscheplatz.
4 Schrankmeter im Schlafzimmer bieten ausreichend Platz für Anzug und Ballkleid.
Das schmalere Haus vergrößert zudem gleich noch den Garten.
Vielen Dank für den Vorschlag! Das sieht sehr gut aus. Leider sträubt sich die Architektin, das WZ noch breiter zu machen, da sie befürchtet, dass die Decke wegen der Statik komplett dicker gemacht werden muss. Kennt sich da wer aus, auch bzgl. Mehrkosten? Wir konnten von der Baufirma noch keine Aussage erhalten, ohne dass der Statiker draufgeschaut hat.
Falls das hier falsch rübergekommen ist, wir wollen in den Hauswirtschaftsraum noch Regale stellen, wo auch Lebensmittel drin sind. Im neuen Grundriss seht ihr es (Originalmaße) stehen. Der davorliegende "Schlauch" ist uns breit genug, so ähnlich viel Platz ist jetzt in der Wohnung auch davor und es ist ausreichend.
Die WaMa hätten wir gern oben mit Trockner nebeneinander auf einem Podest.
Den Tipp mit dem Teilen des Kapitängiebels oben haben wir aufgenommen.
Die Architektin meinte, bei Wärmepumpe kann es sein, dass der HKV 1,10m breit sein muss!?
ypg schrieb:
Ich würde auch mal den Esstisch etwas zur Küche ziehen und/oder den Tresen mal als Verlängerung zur Insel planen, zb als 80x80er Tisch in Hochtischart oder 72er Höhe. Da gibt es viel mehr Möglichkeiten als diese Barvariante.
Meist wird der Hochstuhl nämlich im Alltag kaum benutzt.
Zurzeit essen wir eigentlich immer an unserem Bartisch Frühstück. Ich lasse mich morgen mal im Küchenstudio beraten, was es für Möglichkeiten gibt.
ypg schrieb:
Zwei Hauswirtschaftsraum-Türen sind überflüssig: da sollte man mal schauen, dass man die Schräge unter der Treppe besser für Kommoden und Schränke nutzt.
Hatten wir auch drüber nachgedacht, aber ich möchte zum einen den Durchgang zur Küche, da Hauswirtschaftsraum auch Speisekammerersatz. Und wenn ich mir vorstelle, dass man den Hauswirtschaftsraum auch als Nebeneingang benutzt mit dreckigen Schuhen usw., hat man ja oft trotzdem eine Jacke an, die zur Garderobe muss oder will noch zum Händewaschen ins Bad.
ypg schrieb:
Ich meine eigentlich die Kühlschrank-Höhe. Ich sitze gerade im Bett, während ich dieses schreibe: dabei in einem bequemen Bett mit Boxspringhöhe und eher gekrümmten Rücken. Dabei bin ich gefühlt 15cm kleiner als der Kühlschrank, der ca. 125cm ist. Bei Deinem Kühlschrank müsste ich a) ein anderes Bett haben b) könnt ich morgens nicht sitzen.
Versteh ich leider nicht richtig mit der Höhe, aber hat sich mit der neuen Planung vielleicht eh erledigt? Ich kann mich nicht erinnern, in meiner jetzigen Wohnung mal mit Laptop im Bett gesessen zu haben, da zieh ich doch die Couch vor
Zum neuen Entwurf:
Wie gesagt, Wohnzimmer ist wohl schwierig breiter zu kriegen wegen der Statik.
Die Möbel in Wohnen/Essen und Kochen stimmen nicht.
Das Viereck Abst/WC/Garderobe hatte ich erst umgestellt, um den Abst. (dann als Gästezimmer) breiter zu kriegen (WC in die Hausecke, Garderobe davor, Abstellraum zwischen WZ und dem Schlauch WC/Garderobe) aber das passt wohl oben mit den Rohren nicht. Dann wäre das Entlüftungsrohr entweder mittig an der Außenwand von Kind II oder, wenn man das Fallrohr/WC in die Ecke macht, müsste ein kompletter Kanal an der Wand von Kind II entlang gehen, da die WaMa noch den Abfluss nach unten braucht. Ein extra-Abflussrohr nach unten von der WaMa würde, mit Gäste-WC in der Hausecke, durch den Vorraum davor laufen, sodass der Gang wieder breiter müsste und der Abstellraum auch wieder schmaler werden würde.
Das OG sieht für mich soweit ok aus. Allerdings gibt es auch im Bad das Problem Fallrohr. Das Rohr vom Waschbecken kann wohl ohne offensichtlichen Kasten nur bis da vors Fenster geführt werden. Was unten in der Ecke der Küche resultieren würde. Bis zur Toilette rüber wäre wohl zu weit und würde in einem Rohrkasten entlang des Fensters resultieren.
Die Möbel in Kind I und Kind II stehen in der Zeichnung nicht optimal, darüber brauchen wir nicht zu sprechen, denke, das kriegt man besser hin.
Das Problem ist, dass uns die Zeit davon läuft, da wir am Mittwoch für 3,5 Wochen in den Urlaub fliegen und den Grundriss gern vorher fix hätten, um nicht zu viel Zeit zu verlieren.
Vielen Dank für eure Mithilfe!
Erisa2010 schrieb:
Vielen Dank für den Vorschlag! Das sieht sehr gut aus. Leider sträubt sich die Architektin, das WZ noch breiter zu machen, da sie befürchtet, dass die Decke wegen der Statik komplett dicker gemacht werden muss. Kennt sich da wer aus, auch bzgl. Mehrkosten? Wir konnten von der Baufirma noch keine Aussage erhalten, ohne dass der Statiker draufgeschaut hat.Wir haben eine noch längere Hausbreite (11.65m) und auch so einen durchgehenden Raum wie ihr. Unsere Deckenstärke im OG musste von 18 cm auf 22 cm erhöht werden wegen der Statik. Mehrkosten waren etwa 1000€. Finde ich aber ok dafür. Wer mehr will, muss auch mehr bezahlen Erisa2010 schrieb:
Wie gesagt, Wohnzimmer ist wohl schwierig breiter zu kriegen wegen der Statik.Wie gesagt, sollte mit etwas Erhöhung der Deckenstärke kein Problem sein.Erisa2010 schrieb:
Die Möbel in Wohnen/Essen und Kochen stimmen nicht.Kannst du die mal einzeichnen? Wo soll das Sofa stehen? Vor dem bodentiefen Fenster?Erisa2010 schrieb:
Das OG sieht für mich soweit ok aus. Allerdings gibt es auch im Bad das Problem Fallrohr. Das Rohr vom Waschbecken kann wohl ohne offensichtlichen Kasten nur bis da vors Fenster geführt werden. Was unten in der Ecke der Küche resultieren würde. Bis zur Toilette rüber wäre wohl zu weit und würde in einem Rohrkasten entlang des Fensters resultieren.Fallrohr in der Küche finde ich richtig blöd. Das sieht man ja jeden Tag. Kann man es nicht noch etwas weiter ziehen? Ja vielleicht kriegt man da wirklich einen Rohrkasten, müsste man mal schauen wie weit man den versteckt bekommen, vielleicht Estrich weglassen oder so...Ähnliche Themen