ᐅ Einfamilienhaus - Flachdachausstieg oder gemauerte Dachbox?
Erstellt am: 21.12.25 20:52
B
Bauherr8899B
Bauherr889921.12.25 20:52Hallo zusammen,
ich plane aufgrund der guten Aussicht von meinem Grundstück ein Flachdach mit Dachterrasse. Leider kommt auf unserem Grundstück nur wenig Sonne an: Im Tagesverlauf wird sie nacheinander durch einen großen Baum, ein Einfamilienhaus, wieder einen großen Baum und erneut ein Einfamilienhaus abgeschattet. Wir haben daher überwiegend Schatten.
Die Dachterrasse wäre für uns bewusst ein Aufpreis für mehr Sonne und vor allem für die Aussicht.
Geplant ist, die halbgewendelte Treppe vom OG ins DG fortzuführen. Nun stellt sich für mich die Frage, ob der Ausstieg auf die Dachterrasse auch über einen horizontalen Flachdachausstieg realisiert werden kann, anstatt über eine gemauerte Dachbox. Ich erhoffe mir davon eine deutliche Kosteneinsparung.
Eine Leiter kommt für mich nicht infrage, da der Zugang nicht nur zu Revisionszwecken, sondern regelmäßig genutzt werden soll.
Mich würde daher eure Meinung interessieren:
Wie würdet ihr einen solchen Flachdachausstieg sinnvoll und praxisgerecht umsetzen?
Vielen Dank!
Lageplan:

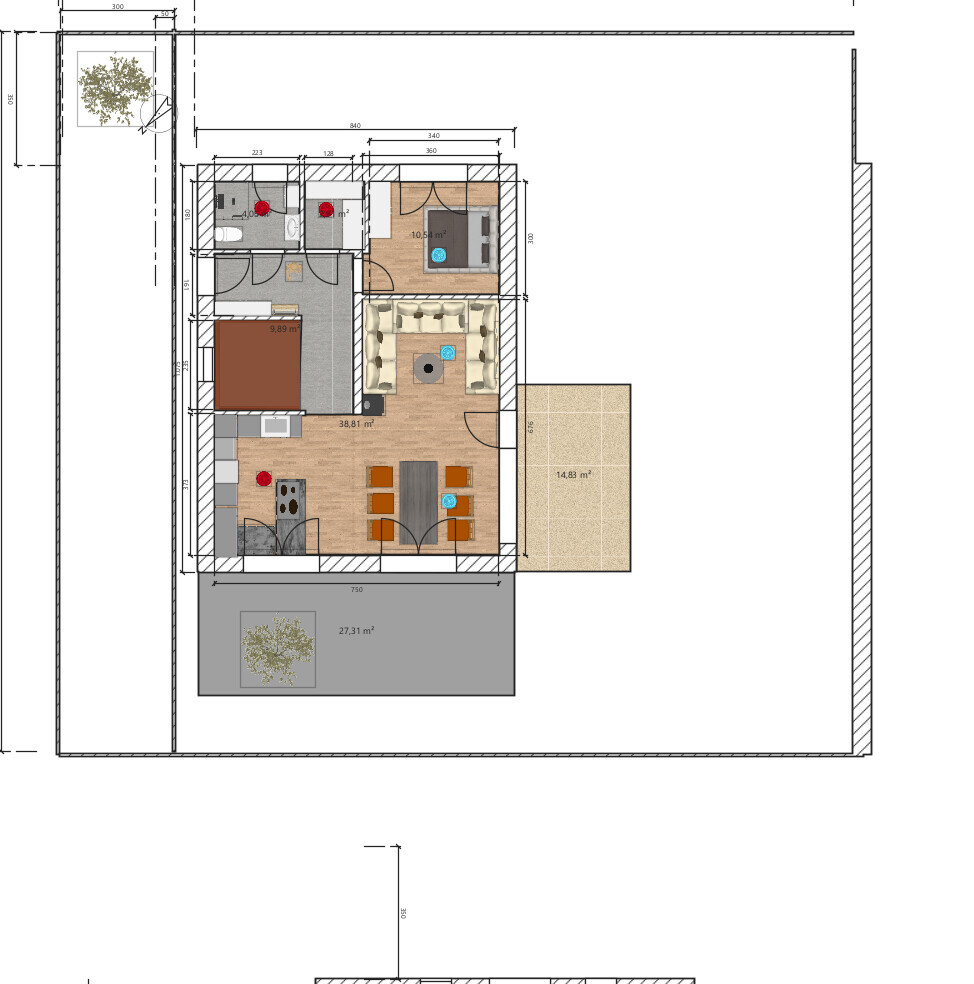
EG:

OG:

mögliches DG bei Realisierung der gemauerten Dachbox:


ich plane aufgrund der guten Aussicht von meinem Grundstück ein Flachdach mit Dachterrasse. Leider kommt auf unserem Grundstück nur wenig Sonne an: Im Tagesverlauf wird sie nacheinander durch einen großen Baum, ein Einfamilienhaus, wieder einen großen Baum und erneut ein Einfamilienhaus abgeschattet. Wir haben daher überwiegend Schatten.
Die Dachterrasse wäre für uns bewusst ein Aufpreis für mehr Sonne und vor allem für die Aussicht.
Geplant ist, die halbgewendelte Treppe vom OG ins DG fortzuführen. Nun stellt sich für mich die Frage, ob der Ausstieg auf die Dachterrasse auch über einen horizontalen Flachdachausstieg realisiert werden kann, anstatt über eine gemauerte Dachbox. Ich erhoffe mir davon eine deutliche Kosteneinsparung.
Eine Leiter kommt für mich nicht infrage, da der Zugang nicht nur zu Revisionszwecken, sondern regelmäßig genutzt werden soll.
Mich würde daher eure Meinung interessieren:
Wie würdet ihr einen solchen Flachdachausstieg sinnvoll und praxisgerecht umsetzen?
Vielen Dank!
Lageplan:
EG:
OG:
mögliches DG bei Realisierung der gemauerten Dachbox:
Anzeige
Hallo Bauherr8899,
schau mal hier: Einfamilienhaus - Flachdachausstieg oder gemauerte Dachbox?. Da wird jeder fündig!
schau mal hier: Einfamilienhaus - Flachdachausstieg oder gemauerte Dachbox?. Da wird jeder fündig!
N
nordanney21.12.25 22:38Falls Ihr wirklich dauernd dort unterwegs seid, dann ein richtig gemauerter Ausstieg mit Tür. Alles andere ist nur eine Teilzeitlösung - umständlich, ggf. undicht, dreckig.
Ähnliche Themen