ᐅ Einfamilienhaus - "fast" Finaler Grundriss - Verbesserungsvorschläge ???
Erstellt am: 17.10.19 16:08
F
Fabsta MBebauungsplan/Einschränkungen
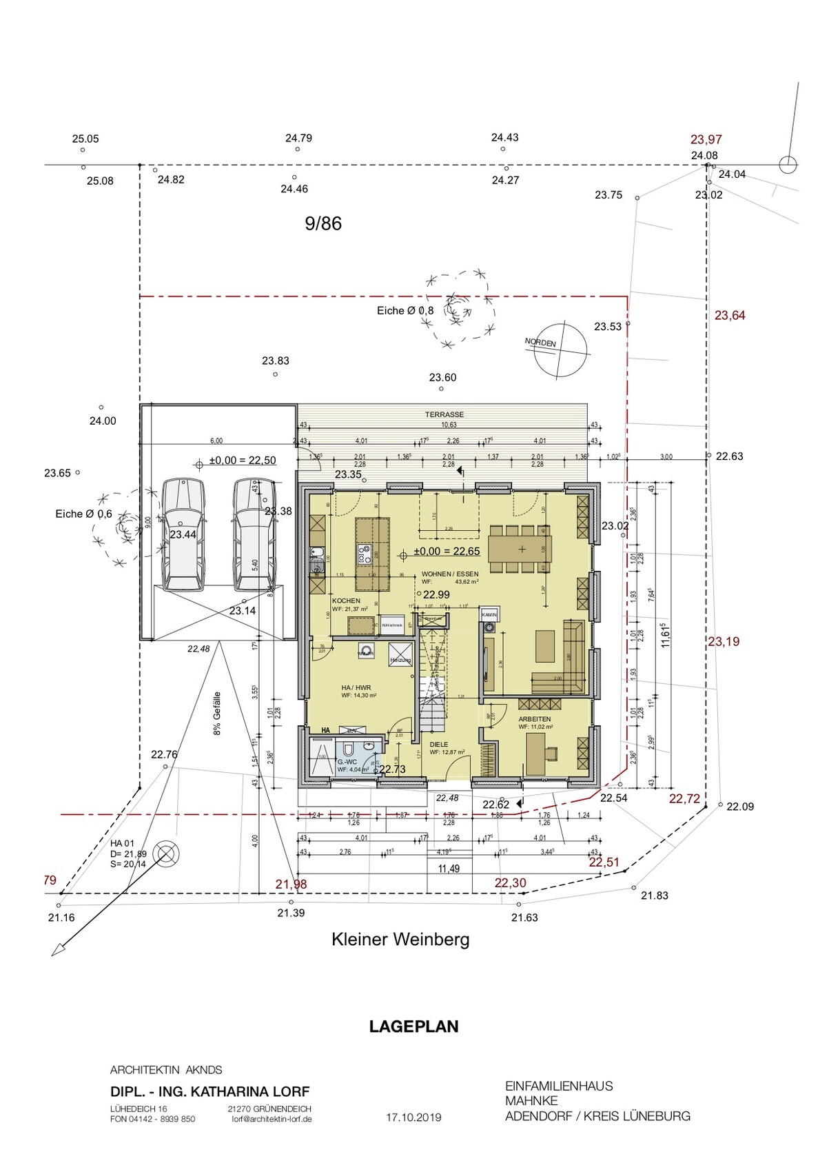
Größe des Grundstücks: 597 m²
Hang: Leicht zur Straße Richtung Westen
Gebäudetyp: Einfamilienhaus mit Doppelgarage
Grundflächenzahl: 0,25
Randbebauung: Nein
Stellplätze: Doppelgarage / Carport vor der Garage
Geschossigkeit: 1,5
Baugrenze: Überall 3 m, außer Garage
Ausrichtung: Süden
Maximale Wandhöhen: 4,4m
Anforderungen der Bauherren
Stilrichtung, Dachform, Gebäudetyp: Einfamilienhaus Massiv, Satteldach mit 30° Dachneigung
Keller, Geschosse: 1 Vollgeschoss, 0,5 OG , kein Keller
Anzahl der Personen, Alter: 3 Personen (34,25), 1 Kind (10), 1 weiteres geplant
Raumbedarf im UG, EG, OG:
EG: Wohnküche, Wohnzimmer, Büro, Hauswirtschaftsraum, Gästebad
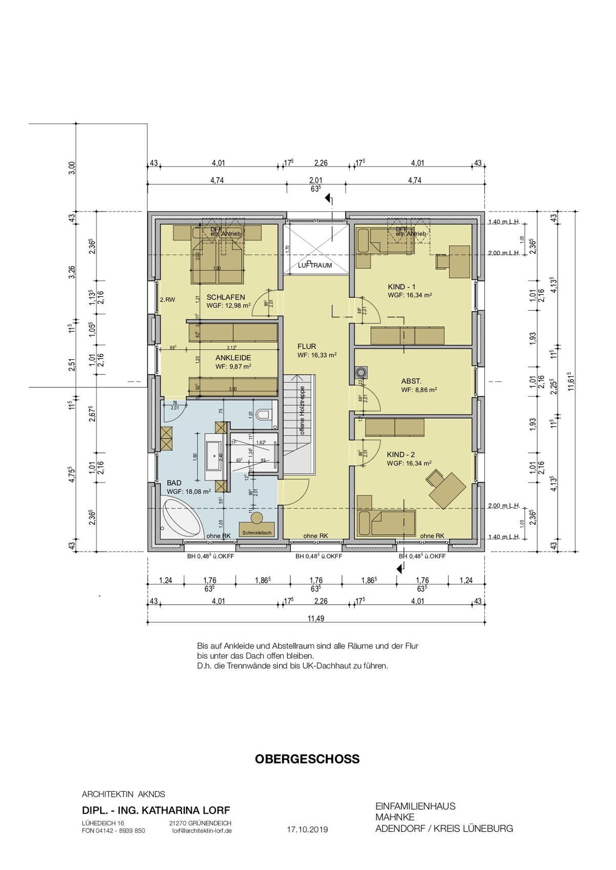
OG: Elternschlafzimmer, 2 Kinderzimmer, Bad, Toilette, Ankleidezimmer, Abstellraum
Büro: Privat und Geschäftlich, aber mit Schlafsofa für Gäste
Schlafgäste: 30x pro Jahr.
konservativ oder moderne Bauweise: moderne offene Küche, Kochinsel: Wohnküche mit Insel
Anzahl Essplätze: 8
Kamin: ja
Musik/Stereowand: ja, 9.2 System
Balkon: nein
Terrasse: ja, vor Wohnküche und Wohnzimmer über die gesamte Ostseite (Windschutz durch vorgelegte Garage
Garage: große Doppelgarage mit 54 (6m x 9m) m²
Nutzgarten: im Osten
Zisterne: nein
weitere Wünsche/Besonderheiten, gern auch Begründungen, warum dieses oder das nicht sein soll:,
Hausentwurf
Von wem stammt die Planung: Von uns selbst mit Architektin
Was gefällt besonders? Warum? Der offene Wohn-Küchen Bereich sowie das Masterbad-Ankleidezimmer
Was gefällt nicht? Warum? Leider mussten wir grade den Drempel verringern und nun beginnen die Schrägen im 2. OG schon auf 1,40m nicht wie vorher auf 1,60, anders lässr es der Bebauungsplan allerdings nicht zu. Diese Änderung ergab sich aufgrund von Höhenänderungen im Baugebiet.
Persönliches Preislimit fürs Haus, inkl Ausstattung: 600TEUR
favorisierte Heiztechnik: Erdwärmepumpe mit Wärmespeicher / Keine Heizkörper, nur Fußbodenheizung.
Wenn Ihr verzichten müsst, auf welche Details/Ausbauten
-könnt Ihr verzichten: Büro
-könnt Ihr nicht verzichten: Große offene Küche
Der Entwurf ist an sich schon in trockenen Tüten, leider mussten wir nun den Kniestock etwas verringern und nun beginnen die Schrägen im 2. OG auf 1,40m. Das finden wir nicht wirklich schön aber leider gibt der B Plan keine 2 Vollgeschosse frei.
Wir würden uns einfach mal über ein Feedback freuen, alle Ideen und Vorschläge sind Herzlich willkommen. Natürlich denken wir das wir alles gut durchdacht haben, aber jede Info kann uns helfen.
Bäume stehen keine mehr auf dem Grundstück.
Vielen Dank schon mal für das Feedback.







Größe des Grundstücks: 597 m²
Hang: Leicht zur Straße Richtung Westen
Gebäudetyp: Einfamilienhaus mit Doppelgarage
Grundflächenzahl: 0,25
Randbebauung: Nein
Stellplätze: Doppelgarage / Carport vor der Garage
Geschossigkeit: 1,5
Baugrenze: Überall 3 m, außer Garage
Ausrichtung: Süden
Maximale Wandhöhen: 4,4m
Anforderungen der Bauherren
Stilrichtung, Dachform, Gebäudetyp: Einfamilienhaus Massiv, Satteldach mit 30° Dachneigung
Keller, Geschosse: 1 Vollgeschoss, 0,5 OG , kein Keller
Anzahl der Personen, Alter: 3 Personen (34,25), 1 Kind (10), 1 weiteres geplant
Raumbedarf im UG, EG, OG:
EG: Wohnküche, Wohnzimmer, Büro, Hauswirtschaftsraum, Gästebad
OG: Elternschlafzimmer, 2 Kinderzimmer, Bad, Toilette, Ankleidezimmer, Abstellraum
Büro: Privat und Geschäftlich, aber mit Schlafsofa für Gäste
Schlafgäste: 30x pro Jahr.
konservativ oder moderne Bauweise: moderne offene Küche, Kochinsel: Wohnküche mit Insel
Anzahl Essplätze: 8
Kamin: ja
Musik/Stereowand: ja, 9.2 System
Balkon: nein
Terrasse: ja, vor Wohnküche und Wohnzimmer über die gesamte Ostseite (Windschutz durch vorgelegte Garage
Garage: große Doppelgarage mit 54 (6m x 9m) m²
Nutzgarten: im Osten
Zisterne: nein
weitere Wünsche/Besonderheiten, gern auch Begründungen, warum dieses oder das nicht sein soll:,
Hausentwurf
Von wem stammt die Planung: Von uns selbst mit Architektin
Was gefällt besonders? Warum? Der offene Wohn-Küchen Bereich sowie das Masterbad-Ankleidezimmer
Was gefällt nicht? Warum? Leider mussten wir grade den Drempel verringern und nun beginnen die Schrägen im 2. OG schon auf 1,40m nicht wie vorher auf 1,60, anders lässr es der Bebauungsplan allerdings nicht zu. Diese Änderung ergab sich aufgrund von Höhenänderungen im Baugebiet.
Persönliches Preislimit fürs Haus, inkl Ausstattung: 600TEUR
favorisierte Heiztechnik: Erdwärmepumpe mit Wärmespeicher / Keine Heizkörper, nur Fußbodenheizung.
Wenn Ihr verzichten müsst, auf welche Details/Ausbauten
-könnt Ihr verzichten: Büro
-könnt Ihr nicht verzichten: Große offene Küche
Der Entwurf ist an sich schon in trockenen Tüten, leider mussten wir nun den Kniestock etwas verringern und nun beginnen die Schrägen im 2. OG auf 1,40m. Das finden wir nicht wirklich schön aber leider gibt der B Plan keine 2 Vollgeschosse frei.
Wir würden uns einfach mal über ein Feedback freuen, alle Ideen und Vorschläge sind Herzlich willkommen. Natürlich denken wir das wir alles gut durchdacht haben, aber jede Info kann uns helfen.
Bäume stehen keine mehr auf dem Grundstück.
Vielen Dank schon mal für das Feedback.
Adendorf. Meine 2. Heimat Schöne Grüße.
Die Küchenarbeitsfläche wirkt etwas klein finde ich.
Die 6m beim Carport und eure freie Fläche bei den beiden Autos täuscht. 6m ist das Außenmass und nicht Innenmaß. Könnt ihr ja mal ausprobieren. Ich persönlich würde es etwas erweitern, wenn es möglich wäre.
Die Küchenarbeitsfläche wirkt etwas klein finde ich.
Die 6m beim Carport und eure freie Fläche bei den beiden Autos täuscht. 6m ist das Außenmass und nicht Innenmaß. Könnt ihr ja mal ausprobieren. Ich persönlich würde es etwas erweitern, wenn es möglich wäre.
H
hampshire17.10.19 16:41Ich finde den Entwurf rundum gelungen.
Sicher wird es für ältere und dickere Menschen oben etwas eng auf der Toilette - Gäste sollen eh das Bad unten nutzen.
Der Weg zur Waschmaschine wird ein weiter sein. Ist ja nicht schlimm. Eine Klappe aus dem oberen Bad könnte für Alltagskomfort sorgen.
Ich würde das kleinere Fenster im Essbereich auf den Esstisch ausrichten und nicht auf Symmetrie der Außenansicht. Von innen nach außen denken, nicht anders herum. Wenn Außen so wichtig ist, kann man das Kinderzimmerfenster ja gleich mit versetzen, dann stehen diese beiden übereinander.
Normalerweise finde ich die Dusche an der Gästetoilette überflüssig - hier passt es, da die Gäste wohl im Arbeitszimmer übernachten werden.
Den kleinen Luftraum nach oben würde ich lassen, denn er trägt nicht wesentlich zu einem besseren Raumgefühl unten bei und hat dabei die vollen Nachteile der Hellhörigkeit nach oben.
Wie @danixf schriebt ist die Garage etwas eng - mit den beiden eingezeichneten BMW 3er Touring E30 geht das. Mit modernen Autos wird es etwas schmal. Vermutlich wird in der Praxis eh nur ein Auto in der Garage stehen sobald Kind/Kinder eigene Fahrzeuge unterbringen und vor Allem auch rangieren.
Sicher wird es für ältere und dickere Menschen oben etwas eng auf der Toilette - Gäste sollen eh das Bad unten nutzen.
Der Weg zur Waschmaschine wird ein weiter sein. Ist ja nicht schlimm. Eine Klappe aus dem oberen Bad könnte für Alltagskomfort sorgen.
Ich würde das kleinere Fenster im Essbereich auf den Esstisch ausrichten und nicht auf Symmetrie der Außenansicht. Von innen nach außen denken, nicht anders herum. Wenn Außen so wichtig ist, kann man das Kinderzimmerfenster ja gleich mit versetzen, dann stehen diese beiden übereinander.
Normalerweise finde ich die Dusche an der Gästetoilette überflüssig - hier passt es, da die Gäste wohl im Arbeitszimmer übernachten werden.
Den kleinen Luftraum nach oben würde ich lassen, denn er trägt nicht wesentlich zu einem besseren Raumgefühl unten bei und hat dabei die vollen Nachteile der Hellhörigkeit nach oben.
Wie @danixf schriebt ist die Garage etwas eng - mit den beiden eingezeichneten BMW 3er Touring E30 geht das. Mit modernen Autos wird es etwas schmal. Vermutlich wird in der Praxis eh nur ein Auto in der Garage stehen sobald Kind/Kinder eigene Fahrzeuge unterbringen und vor Allem auch rangieren.
Toller Entwurf.
Trotzdem ein paar (für mich) grobe Schnitzer:
- Türen würde ich im Neubau niemals mit 76cm einplanen. Schon gar nicht zum Hauswirtschaftsraum, wo man mit einem Wäschekorb, Getränkekisten etc. durch die Tür kommen will! Die wäre bei mir eher ~1m
-Ich würde in jedem Fall darauf achten, dass hinter Türen Platz für einen Schrank bleibt. Siehe Küche, Hauswirtschaftsraum und Arbeitszimmer.
- In der Küche würde ich die Zeile zur Garage auf die ganze Breite planen.
-Zwei Türen im Bad finde ich nicht so ideal, aber das ist wohl Geschmackssache. Ich würde eher schauen, ob es oben für das Duschbad reicht und unten die Dusche streichen.
- Luftraum bringt nicht viel, wie hampshire schon schreibt.
- Im Bad oben wäre mir die Dusche zu dunkel und zu eng.
Mal reingekritzelt mit Paint...


Trotzdem ein paar (für mich) grobe Schnitzer:
- Türen würde ich im Neubau niemals mit 76cm einplanen. Schon gar nicht zum Hauswirtschaftsraum, wo man mit einem Wäschekorb, Getränkekisten etc. durch die Tür kommen will! Die wäre bei mir eher ~1m
-Ich würde in jedem Fall darauf achten, dass hinter Türen Platz für einen Schrank bleibt. Siehe Küche, Hauswirtschaftsraum und Arbeitszimmer.
- In der Küche würde ich die Zeile zur Garage auf die ganze Breite planen.
-Zwei Türen im Bad finde ich nicht so ideal, aber das ist wohl Geschmackssache. Ich würde eher schauen, ob es oben für das Duschbad reicht und unten die Dusche streichen.
- Luftraum bringt nicht viel, wie hampshire schon schreibt.
- Im Bad oben wäre mir die Dusche zu dunkel und zu eng.
Mal reingekritzelt mit Paint...
Bei >200m2 Wohnfläche und eher großzügiger Raumaufteilung würde ich über ein 2. Duschbad im OG nachdenken. Das könnte gut im Bereich zwischen Kind 2 und Bad angesiedelt werden - das "Elternbad" im Bereich des Schminktischs dann evtl. etwas kleiner. Oder im oberen Abstellraum und dieser dann an der zuvor beschriebenen Position. Der Abstellraum würde sich doch auch für die Waschmaschine anbieten, oder? Dann müsstet ihr die Wäsche nicht ins EG und wieder hoch schleppen (aufwärts funktioniert leider der Wäscheschacht nicht).
Weiterhin würde ich den Elterntrakt über die Ankleide betreten und von dort so wie geplant in Schlafzimmer und Bad. Das erweitert noch etwas die Privatsphäre.
Sehe gerade, @Tamstar war mit der Idee schneller und hat sogar eine Skizze dazu .
Weiterhin würde ich den Elterntrakt über die Ankleide betreten und von dort so wie geplant in Schlafzimmer und Bad. Das erweitert noch etwas die Privatsphäre.
Sehe gerade, @Tamstar war mit der Idee schneller und hat sogar eine Skizze dazu .
Moin Moin, erst mal danke für die tollen Antworten. Hier ein zwei Rückantworten von meiner Seite.
Noch zu erwähnen, falls es im Grundriss nicht gleich ersichtlich ist. Die Decke im OG bleibt bis unter das Dach offen, inkl frei liegender Balken. Das schafft, wie wir finden ein Super Raumgefühl. Hierdurch ergibt sich aber auch die Problematik keinen Dachboden zu haben, weswegen der Hauswirtschaftsraum und auch der Abstellraum im OG schon diese Größe haben MÜSSEN (da kein Keller vorhanden) Natürlich wird auch in der Garage etwas Stauraum sein, aber ihr wisst ja wie das ist
---------------------------
Schöne Grüße zurück
Anbei noch mal Fotos zur genauen Küchenplanung. Die Hat die Architektin nur so GROB mit in den Grundriss eingetragen. aber von den maßen her, ist die Küchen Insel 2,40x1,60. zusätzlich ist der Schrank neben dem Kühlschrank noch breiter geworden um mehr Fläche zu schaffen.
ja, die Garage, leider geht aufgrund vom Baufenster nicht noch breiter. Ich hätte auch gerne mehr gehabt.
-------------------------------
Erstmal vielen Dank
Ja, eine Klappe wo man vom Bad aus, die Wäsche nach unten werfen kann ist auch geplant, aber da sich das Bad aktuell immer noch ein wenig verändert, wollten wir warten bis wir damit 100% fertig sind, deswegen liegt es aber auch direkt über dem Hauswirtschaftsraum
Tolle Idee mit dem Fenster beim Esstisch, ich denke das werden wir mal mit übernehmen, wie du schon geschrieben hast, kann das Fenster oben ja direkt mit versetzt werden. Richtig, da das Büro auch gleichzeitig Gästezimmer sein wird, ist die Dusche unten geplant. auch wenn man mal mit Kind oder Hund (wir haben 2) dreckig in das Haus kommt, kann man die direkt so unten in die Dusche stellen.
Was die Garage angeht, hab ich es ja oben schon gesagt, leider geht es nicht breiter. und da davor auch noch ein Carport kommt, wird wohl eh meistens auch nur ein Auto und mein Motorrad drin stehen (wie in der jetzigen Garage )
---------------------------------------
Vielen Dank auch dir, der Tipp mit den Türen ist direkt auf meine Liste für die Architektin gekommen, da ist auch genug Platz um das ganz easy so zu machen. Im Büro geht das auch und im OG auch fast überall. Was die Küche angeht, siehst du ja wie es geplant ist jetzt....ist alles etwas breiter geworden. Aber noch so viel Platz das die Tür ganz aufgehen kann und rechts neben ist noch ein wenig Platz wo die Hundefutternäpfe stehen sollen
Da Gäste zu meist im Büro schlafen werden, kann das Duschbad eben unten bleiben. Noch ein weiteres Bad finde ich überflüssig. Denn Kind(er) dürften auch gerne mit ins Elterliche Bad und sobald sie das nicht mehr wollen, ist die Dusche unten auch noch da.
Ja, der Luftraum war am Anfang auch etwas größer, hat sich jetzt durch andere Veränderungen zu dem Entwickelt was er ist...so sicher sind wir uns da auch nicht mehr....Allerdings dürfte es mit der offenen Decke im OG bis unter das Dach, trotzdem ein sehr schönes Bild abgegeben. Wie viel lautere das jetzt am Ende ist, kann ich natürlich auch nur erahnen.
Die Dusche oben wird durch das davor liegende Bodentiefe Fenster und die Tatsache das die Decke frei ist genug Licht haben denke ich. Die Wände der Dusche werden ca. 250cm hoch sein, oder sogar etwas weniger, so das Licht auch von oben einfallen kann.
Da sich vorhin wieder einige Änderungen ergeben haben, hat sich das Bad von 150x160cm auf 135x160cm wie im Grundriss angeben geändert, aber ich glaube auch 135x160 ist noch recht groß Wenn ich das mit unserer aktuellen Dusche mit 75x75cm vergleiche, sogar RIESIG .
--------------------------------------------------------
Moin,
über den Eingang vom Ankleidezimmer aus, werden wir mal nachdenken, klingt auf jedenfalls interessant. Allerdings sollte an die Wand eigentlich ein schöner Großer Spiegel von innen, aber wir werden mal darüber nachdenken.
Was das 2.Bad oben angeht, habe ich es ja schon geschrieben. Ich denke wir belassen es bei dem einen Bad. Ich werde die Idee aber trotzdem mal bei der Regierung vortragen
Noch zu erwähnen, falls es im Grundriss nicht gleich ersichtlich ist. Die Decke im OG bleibt bis unter das Dach offen, inkl frei liegender Balken. Das schafft, wie wir finden ein Super Raumgefühl. Hierdurch ergibt sich aber auch die Problematik keinen Dachboden zu haben, weswegen der Hauswirtschaftsraum und auch der Abstellraum im OG schon diese Größe haben MÜSSEN (da kein Keller vorhanden) Natürlich wird auch in der Garage etwas Stauraum sein, aber ihr wisst ja wie das ist
---------------------------
danixf schrieb:
Adendorf. Meine 2. Heimat Schöne Grüße.
Die Küchenarbeitsfläche wirkt etwas klein finde ich.
Die 6m beim Carport und eure freie Fläche bei den beiden Autos täuscht. 6m ist das Außenmass und nicht Innenmaß. Könnt ihr ja mal ausprobieren. Ich persönlich würde es etwas erweitern, wenn es möglich wäre.
Schöne Grüße zurück
Anbei noch mal Fotos zur genauen Küchenplanung. Die Hat die Architektin nur so GROB mit in den Grundriss eingetragen. aber von den maßen her, ist die Küchen Insel 2,40x1,60. zusätzlich ist der Schrank neben dem Kühlschrank noch breiter geworden um mehr Fläche zu schaffen.
ja, die Garage, leider geht aufgrund vom Baufenster nicht noch breiter. Ich hätte auch gerne mehr gehabt.
-------------------------------
hampshire schrieb:
Ich finde den Entwurf rundum gelungen.
Sicher wird es für ältere und dickere Menschen oben etwas eng auf der Toilette - Gäste sollen eh das Bad unten nutzen.
Der Weg zur Waschmaschine wird ein weiter sein. Ist ja nicht schlimm. Eine Klappe aus dem oberen Bad könnte für Alltagskomfort sorgen.
Ich würde das kleinere Fenster im Essbereich auf den Esstisch ausrichten und nicht auf Symmetrie der Außenansicht. Von innen nach außen denken, nicht anders herum. Wenn Außen so wichtig ist, kann man das Kinderzimmerfenster ja gleich mit versetzen, dann stehen diese beiden übereinander.
Normalerweise finde ich die Dusche an der Gästetoilette überflüssig - hier passt es, da die Gäste wohl im Arbeitszimmer übernachten werden.
Den kleinen Luftraum nach oben würde ich lassen, denn er trägt nicht wesentlich zu einem besseren Raumgefühl unten bei und hat dabei die vollen Nachteile der Hellhörigkeit nach oben.
Wie @danixf schriebt ist die Garage etwas eng - mit den beiden eingezeichneten BMW 3er Touring E30 geht das. Mit modernen Autos wird es etwas schmal. Vermutlich wird in der Praxis eh nur ein Auto in der Garage stehen sobald Kind/Kinder eigene Fahrzeuge unterbringen und vor Allem auch rangieren.
Erstmal vielen Dank
Ja, eine Klappe wo man vom Bad aus, die Wäsche nach unten werfen kann ist auch geplant, aber da sich das Bad aktuell immer noch ein wenig verändert, wollten wir warten bis wir damit 100% fertig sind, deswegen liegt es aber auch direkt über dem Hauswirtschaftsraum
Tolle Idee mit dem Fenster beim Esstisch, ich denke das werden wir mal mit übernehmen, wie du schon geschrieben hast, kann das Fenster oben ja direkt mit versetzt werden. Richtig, da das Büro auch gleichzeitig Gästezimmer sein wird, ist die Dusche unten geplant. auch wenn man mal mit Kind oder Hund (wir haben 2) dreckig in das Haus kommt, kann man die direkt so unten in die Dusche stellen.
Was die Garage angeht, hab ich es ja oben schon gesagt, leider geht es nicht breiter. und da davor auch noch ein Carport kommt, wird wohl eh meistens auch nur ein Auto und mein Motorrad drin stehen (wie in der jetzigen Garage )
---------------------------------------
Tamstar schrieb:
Toller Entwurf.
Trotzdem ein paar (für mich) grobe Schnitzer:
- Türen würde ich im Neubau niemals mit 76cm einplanen. Schon gar nicht zum Hauswirtschaftsraum, wo man mit einem Wäschekorb, Getränkekisten etc. durch die Tür kommen will! Die wäre bei mir eher ~1m
-Ich würde in jedem Fall darauf achten, dass hinter Türen Platz für einen Schrank bleibt. Siehe Küche, Hauswirtschaftsraum und Arbeitszimmer.
- In der Küche würde ich die Zeile zur Garage auf die ganze Breite planen.
-Zwei Türen im Bad finde ich nicht so ideal, aber das ist wohl Geschmackssache. Ich würde eher schauen, ob es oben für das Duschbad reicht und unten die Dusche streichen.
- Luftraum bringt nicht viel, wie hampshire schon schreibt.
- Im Bad oben wäre mir die Dusche zu dunkel und zu eng.
Mal reingekritzelt mit Paint...
[ATTACH alt="Haus 2.jpg"]39061[/ATTACH][ATTACH alt="Haus 6.jpg"]39062[/ATTACH]
Vielen Dank auch dir, der Tipp mit den Türen ist direkt auf meine Liste für die Architektin gekommen, da ist auch genug Platz um das ganz easy so zu machen. Im Büro geht das auch und im OG auch fast überall. Was die Küche angeht, siehst du ja wie es geplant ist jetzt....ist alles etwas breiter geworden. Aber noch so viel Platz das die Tür ganz aufgehen kann und rechts neben ist noch ein wenig Platz wo die Hundefutternäpfe stehen sollen
Da Gäste zu meist im Büro schlafen werden, kann das Duschbad eben unten bleiben. Noch ein weiteres Bad finde ich überflüssig. Denn Kind(er) dürften auch gerne mit ins Elterliche Bad und sobald sie das nicht mehr wollen, ist die Dusche unten auch noch da.
Ja, der Luftraum war am Anfang auch etwas größer, hat sich jetzt durch andere Veränderungen zu dem Entwickelt was er ist...so sicher sind wir uns da auch nicht mehr....Allerdings dürfte es mit der offenen Decke im OG bis unter das Dach, trotzdem ein sehr schönes Bild abgegeben. Wie viel lautere das jetzt am Ende ist, kann ich natürlich auch nur erahnen.
Die Dusche oben wird durch das davor liegende Bodentiefe Fenster und die Tatsache das die Decke frei ist genug Licht haben denke ich. Die Wände der Dusche werden ca. 250cm hoch sein, oder sogar etwas weniger, so das Licht auch von oben einfallen kann.
Da sich vorhin wieder einige Änderungen ergeben haben, hat sich das Bad von 150x160cm auf 135x160cm wie im Grundriss angeben geändert, aber ich glaube auch 135x160 ist noch recht groß Wenn ich das mit unserer aktuellen Dusche mit 75x75cm vergleiche, sogar RIESIG .
--------------------------------------------------------
RomeoZwo schrieb:
Bei >200m2 Wohnfläche und eher großzügiger Raumaufteilung würde ich über ein 2. Duschbad im OG nachdenken. Das könnte gut im Bereich zwischen Kind 2 und Bad angesiedelt werden - das "Elternbad" im Bereich des Schminktischs dann evtl. etwas kleiner. Oder im oberen Abstellraum und dieser dann an der zuvor beschriebenen Position. Der Abstellraum würde sich doch auch für die Waschmaschine anbieten, oder? Dann müsstet ihr die Wäsche nicht ins EG und wieder hoch schleppen (aufwärts funktioniert leider der Wäscheschacht nicht).
Weiterhin würde ich den Elterntrakt über die Ankleide betreten und von dort so wie geplant in Schlafzimmer und Bad. Das erweitert noch etwas die Privatsphäre.
Sehe gerade, @Tamstar war mit der Idee schneller und hat sogar eine Skizze dazu .
Moin,
über den Eingang vom Ankleidezimmer aus, werden wir mal nachdenken, klingt auf jedenfalls interessant. Allerdings sollte an die Wand eigentlich ein schöner Großer Spiegel von innen, aber wir werden mal darüber nachdenken.
Was das 2.Bad oben angeht, habe ich es ja schon geschrieben. Ich denke wir belassen es bei dem einen Bad. Ich werde die Idee aber trotzdem mal bei der Regierung vortragen
Ähnliche Themen