ᐅ Einfamilienhaus am Nordhang - Bitte um Meinungen, Tipps zur Ausrichtung
Erstellt am: 23.11.09 15:13
A
AzaleeHallo, Forum,
im Frühjahr/Sommer hatte ich hier bereits nette und hilfreiche Antworten auf Fragen zur Hausplanung erhalten Damals dachte ich noch, dass wir uns mit unserem Grundstück sicher seien. Irgendwie sind dann aber doch wieder Zweifel aufgekommen; wir haben viele andere Grundstücke gesehen, das Ganze auch eine Zeitlang einfach ruhen lassen und schließlich beschlossen, noch mal absolut rational zu selektieren, was wir wollen, inwieweit "unser" Grundstück das erfüllt und welche Kompromisse wir eingehen müssen.
Herausgekommen ist, dass das bereits erwählte Grundstück die beste Option in unserer Gegend für uns ist, allerdings möchte ich eine solche Entscheidung nicht nur auf rationaler Basis treffen, sondern auch emotional voll dahinterstehen. Dazu gehört, dass wir beim Grundstück-Kauf schon wissen sollten, was für ein persönliches "Traumhaus" wir darauf bauen möchte. Naja, und da sind wir gerade dran
Gegenüber der Planung vor ein paar Monaten haben sich ein paar Dinge verändert, etliches ist natürlich auch gleich geblieben.
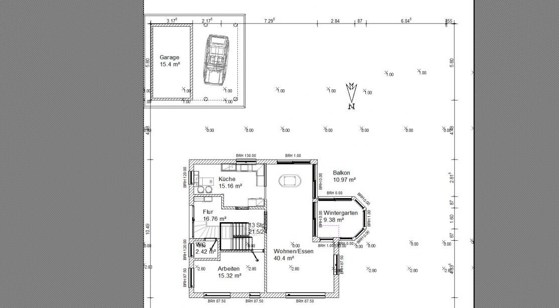
Ich habe hier mal ein paar Grundrisse des EGs. Es wird ein Einfamilienhaus, eineinhalbgeschossig, vollunterkellert mit ebenerdigem Ausgang der nördlichen Zimmer im Keller. Ein Problem ist - und damit fange ich mal an -, dass das Arbeitszimmer im EG nach Möglichkeit ein Westfenster bekommen soll, ohne dass das Wohnzimmer den Panoramablick nach Norden (Hangseite) verliert. Und das ist nicht einfach... *seufz*
Kurz zur Einordnung: Unten ist Norden (ich weiß, unüblich, aber so schaut man der Hang "herauf"), das Grundstück ist am Nordhang mit ca. 3-4m Gefälle auf 30m (die Umgebung ist weniger steil) und hat eine Größe von ca. 25x30m. Die Straße verläuft oben im Süden, der Blick nach Westen ist relativ offen, sonst ist/wird drumherum gebaut.
Wir hoffen, dass wir das Haus leicht tiefer als Straßenniveau bauen können (ca. 1m), um zur Straße hin nicht wie auf dem "Präsentierteller" zu stehen. Ein Hecke erledigt dann den Rest
zu 1: quasi unsere älteste, wenn auch überarbeitete Planung: Küche Richtung Straße, daneben nach Süden der Essbereich und weiter im Süden und Westen der Wohnbereich. Dadurch rutscht das AZ in den Nordosten.
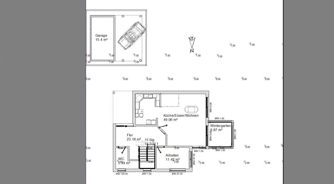
zu2: ganz anders, der Eingang liegt im Norden und müsste über einen umlaufenden "Balkon" erreicht werden. Keine Ahnung, was unser Architekt dazu sagen wird/würde, aber bevor wir mit ihm an die Umsetzbarkeit gehen und ihn und den Bauträger beauftragen, hätten wir gerne eine konkrete Vorstellung.
Das AZ liegt schön im NW, aber der tolle Ausblick vom Wohnzimmer den Hang hinunter ist futsch, wird aber ein kleines bisschen durch den Blick aus dem Wintergarten ausgeglichen.
zu 3: Hier sind zwei Ecken eingefügt, damit das Wohnzimmer trotz des westlich ausgerichteten AZs ein Nordfenster bekommt. Richtiges Panorama ist das nicht mehr, aber vielleicht ein Kompromiss. Die Haustür bleibt an der Ostseite mit Straßenausrichtung.
Vielen Dank für eure Hilfe!
Christiane



im Frühjahr/Sommer hatte ich hier bereits nette und hilfreiche Antworten auf Fragen zur Hausplanung erhalten Damals dachte ich noch, dass wir uns mit unserem Grundstück sicher seien. Irgendwie sind dann aber doch wieder Zweifel aufgekommen; wir haben viele andere Grundstücke gesehen, das Ganze auch eine Zeitlang einfach ruhen lassen und schließlich beschlossen, noch mal absolut rational zu selektieren, was wir wollen, inwieweit "unser" Grundstück das erfüllt und welche Kompromisse wir eingehen müssen.
Herausgekommen ist, dass das bereits erwählte Grundstück die beste Option in unserer Gegend für uns ist, allerdings möchte ich eine solche Entscheidung nicht nur auf rationaler Basis treffen, sondern auch emotional voll dahinterstehen. Dazu gehört, dass wir beim Grundstück-Kauf schon wissen sollten, was für ein persönliches "Traumhaus" wir darauf bauen möchte. Naja, und da sind wir gerade dran
Gegenüber der Planung vor ein paar Monaten haben sich ein paar Dinge verändert, etliches ist natürlich auch gleich geblieben.
Ich habe hier mal ein paar Grundrisse des EGs. Es wird ein Einfamilienhaus, eineinhalbgeschossig, vollunterkellert mit ebenerdigem Ausgang der nördlichen Zimmer im Keller. Ein Problem ist - und damit fange ich mal an -, dass das Arbeitszimmer im EG nach Möglichkeit ein Westfenster bekommen soll, ohne dass das Wohnzimmer den Panoramablick nach Norden (Hangseite) verliert. Und das ist nicht einfach... *seufz*
Kurz zur Einordnung: Unten ist Norden (ich weiß, unüblich, aber so schaut man der Hang "herauf"), das Grundstück ist am Nordhang mit ca. 3-4m Gefälle auf 30m (die Umgebung ist weniger steil) und hat eine Größe von ca. 25x30m. Die Straße verläuft oben im Süden, der Blick nach Westen ist relativ offen, sonst ist/wird drumherum gebaut.
Wir hoffen, dass wir das Haus leicht tiefer als Straßenniveau bauen können (ca. 1m), um zur Straße hin nicht wie auf dem "Präsentierteller" zu stehen. Ein Hecke erledigt dann den Rest
zu 1: quasi unsere älteste, wenn auch überarbeitete Planung: Küche Richtung Straße, daneben nach Süden der Essbereich und weiter im Süden und Westen der Wohnbereich. Dadurch rutscht das AZ in den Nordosten.
zu2: ganz anders, der Eingang liegt im Norden und müsste über einen umlaufenden "Balkon" erreicht werden. Keine Ahnung, was unser Architekt dazu sagen wird/würde, aber bevor wir mit ihm an die Umsetzbarkeit gehen und ihn und den Bauträger beauftragen, hätten wir gerne eine konkrete Vorstellung.
Das AZ liegt schön im NW, aber der tolle Ausblick vom Wohnzimmer den Hang hinunter ist futsch, wird aber ein kleines bisschen durch den Blick aus dem Wintergarten ausgeglichen.
zu 3: Hier sind zwei Ecken eingefügt, damit das Wohnzimmer trotz des westlich ausgerichteten AZs ein Nordfenster bekommt. Richtiges Panorama ist das nicht mehr, aber vielleicht ein Kompromiss. Die Haustür bleibt an der Ostseite mit Straßenausrichtung.
Vielen Dank für eure Hilfe!
Christiane
okay, dann bin ich beruhigt.
Es gibt in der Architektur verschiedenes bei einen Entwurf zu beachten,
wie Form follows function, schaffen einer Durchwohnsituation, Licht- und Luftführung ,
Schrittgeschwindigkeiten,Haustechnik,Gebäudeschatten,...um nur einige zu nennen.
Und nicht zu vergessen Euren Geschmack, denn Ihr müsst Euch in Eurem
Haus auch heimisch und geborgen fühlen.
Deshalb, weißes Blatt, die Himmelsrichtung und die Geländehöhe skizziert und
dann z.B. einem Mix aus Durchwohnsituation und Funktion gefolgt. (Das ist nur ein Beispiel)
Ein Vorentwurf sollte auf jeden Fall dem Bebauungsplan / Landesbauordnung entsprechen.
Auch gleich mit richtigen Wandstärken arbeiten. Energetisch auf die Kubatur achten.
Funktionierende Verkehrswege vorsehen.
Ich hoffe das reicht an Anregung.
LG
P.S.: warum lasst ihr das nicht einen Architekten machen, der hat sowas gelernt ?
Es gibt in der Architektur verschiedenes bei einen Entwurf zu beachten,
wie Form follows function, schaffen einer Durchwohnsituation, Licht- und Luftführung ,
Schrittgeschwindigkeiten,Haustechnik,Gebäudeschatten,...um nur einige zu nennen.
Und nicht zu vergessen Euren Geschmack, denn Ihr müsst Euch in Eurem
Haus auch heimisch und geborgen fühlen.
Deshalb, weißes Blatt, die Himmelsrichtung und die Geländehöhe skizziert und
dann z.B. einem Mix aus Durchwohnsituation und Funktion gefolgt. (Das ist nur ein Beispiel)
Ein Vorentwurf sollte auf jeden Fall dem Bebauungsplan / Landesbauordnung entsprechen.
Auch gleich mit richtigen Wandstärken arbeiten. Energetisch auf die Kubatur achten.
Funktionierende Verkehrswege vorsehen.
Ich hoffe das reicht an Anregung.
LG
P.S.: warum lasst ihr das nicht einen Architekten machen, der hat sowas gelernt ?
Hallo und danke für die Tipps!
Es ist einfach so, dass ich gerne VOR der definitiven Beauftragung wissen möchte, ob auf diesem Grundstück mit seinen (teils ungünstigen) Vorgaben ein Haus realisierbar ist, das uns rundum gefallen würde. Ich möchte kein Grundstück kaufen, ohne von dem zukünftigen Haus darauf eine prinzipielle Vorstellung zu haben. Manche Punkte gehören für mich zu einer "alltäglichen Lebensqualität", z.B. ein Ostfenster in der Küche bzw. am Essraum, z.B. Licht im Arbeitszimmer (idealerweise nach Westen, weil ich dort nachmittags und abends bin - bin Lehrerin) usw.
Wenn manches von unseren Vorstellungen nicht umsetzbar sein sollte (bzw. nicht zu einem machbaren Preis ), wüsste ich das gerne vorher, um neu zu entscheiden, ob es trotzdem dieses Grundstück werden soll oder ob wir lieber weitersuchen. Kurz: Es muss klar sein, an welchen Punkten wir wie große Kompromisse eingehen werden müssen.
Deshalb ist unser Ziel ja auch kein exakter, professioneller Entwurf, nach dem direkt bauen könnte, sondern eine Planung nach dem Motto "So in etwa ginge es und alles wichtige wäre dabei umgesetzt". Ich hoffe, man versteht, was ich meine
Über weitere Tipps oder konkrete Vorschläge würde ich mich freuen!
Viele Grüße,
Christiane
Es ist einfach so, dass ich gerne VOR der definitiven Beauftragung wissen möchte, ob auf diesem Grundstück mit seinen (teils ungünstigen) Vorgaben ein Haus realisierbar ist, das uns rundum gefallen würde. Ich möchte kein Grundstück kaufen, ohne von dem zukünftigen Haus darauf eine prinzipielle Vorstellung zu haben. Manche Punkte gehören für mich zu einer "alltäglichen Lebensqualität", z.B. ein Ostfenster in der Küche bzw. am Essraum, z.B. Licht im Arbeitszimmer (idealerweise nach Westen, weil ich dort nachmittags und abends bin - bin Lehrerin) usw.
Wenn manches von unseren Vorstellungen nicht umsetzbar sein sollte (bzw. nicht zu einem machbaren Preis ), wüsste ich das gerne vorher, um neu zu entscheiden, ob es trotzdem dieses Grundstück werden soll oder ob wir lieber weitersuchen. Kurz: Es muss klar sein, an welchen Punkten wir wie große Kompromisse eingehen werden müssen.
Deshalb ist unser Ziel ja auch kein exakter, professioneller Entwurf, nach dem direkt bauen könnte, sondern eine Planung nach dem Motto "So in etwa ginge es und alles wichtige wäre dabei umgesetzt". Ich hoffe, man versteht, was ich meine
Über weitere Tipps oder konkrete Vorschläge würde ich mich freuen!
Viele Grüße,
Christiane
Hallo Christiane,
ich verstehe schon, nur sehe ich auch das Ihr es nicht wirklich gelöst bekommt.
Um zu wissen was Du bauen darfst, muss sich jemand mit dem Bebauungsplan und Landesbauordnung beschäftigen.
Der Vorentwurf (nicht Genehmigungsplanung) klärt, wie es sein kann.
Darauf würde eine erste Kostenschätzung basieren.
Erst jetzt kannst Du wieder Rückschlüsse auf die weitere Planung machen,
also z.B. was für ein energetischer Standard um ggf. KfW Darlehen, BAFA oder Landeszuschüsse zu bekommen.
D.h. das was Du willst ist nicht wenig und sprengt mit Sicherheit den Rahmen dieses Forums. Ich müsste mich ja jetzt Schlau machen und vor ein leeres Blatt Papier setzen,...
Besser wäre, Ihr würdet erst einmal auf einem Grundstück stehen und sagen, genau das wollen wir.
Dann findet sich immer eine Lösung. Du wirst als Lehrerin auch völlig unterschiedliche Kindern etwas beibringen können, nur die Klasse und bestimmte Voraussetzungen wirst Du auch wissen müssen. Okay, mit einem "schwierigen" Schüler ist es vielleicht eine Herausforderung,...
LG
ich verstehe schon, nur sehe ich auch das Ihr es nicht wirklich gelöst bekommt.
Um zu wissen was Du bauen darfst, muss sich jemand mit dem Bebauungsplan und Landesbauordnung beschäftigen.
Der Vorentwurf (nicht Genehmigungsplanung) klärt, wie es sein kann.
Darauf würde eine erste Kostenschätzung basieren.
Erst jetzt kannst Du wieder Rückschlüsse auf die weitere Planung machen,
also z.B. was für ein energetischer Standard um ggf. KfW Darlehen, BAFA oder Landeszuschüsse zu bekommen.
D.h. das was Du willst ist nicht wenig und sprengt mit Sicherheit den Rahmen dieses Forums. Ich müsste mich ja jetzt Schlau machen und vor ein leeres Blatt Papier setzen,...
Besser wäre, Ihr würdet erst einmal auf einem Grundstück stehen und sagen, genau das wollen wir.
Dann findet sich immer eine Lösung. Du wirst als Lehrerin auch völlig unterschiedliche Kindern etwas beibringen können, nur die Klasse und bestimmte Voraussetzungen wirst Du auch wissen müssen. Okay, mit einem "schwierigen" Schüler ist es vielleicht eine Herausforderung,...
LG
Ähnliche Themen