Guten Abend zusammen
und schon hier besten Dank für all die zahlreichen Informationen welche uns bislang viel geholfen haben!
Nach vielen Jahren (wie die Zeit vergeht) hier im Forum und einigen Rückschlägen hinsichtlich Grundstückszuweisung und Marktlage sind wir nun auch in der glücklichen Lage, ein Grundstück erworben zu haben welches als Fundament für unser Glück zu zweit (vorerst!) dienen soll.
Wir möchten euch gerne unser Projekt vorstellen.
Nachdem wir einen passenden Architekten gefunden hatten, der mit uns gemeinsam einen Hybridbau (EG Stahlbeton/OG Massivholz bzw. Holzriegel) nach Vorarlberger Schule umsetzt, haben wir bislang viele Monate in die Planung investiert und somit ein Hauskonzept entworfen, das ganz allein auf unsere Bedürfnisse zugeschnitten ist.
Aktuell befinden wir uns in der Erstellung der Genehmigungsplanung.
Mit diesem Beitrag möchten wir euch gerne am Projekt teilhaben lassen und vielleicht dem ein oder anderen Hilfestellung geben, der ein ähnliches Vorhaben plant.
Hinsichtlich der Ausstattung und finalen Ausgestaltung der Technik sind wir sehr konservativ. Somit stehen KNX und sonstige Spielereien nicht zur Debatte.
Kurze Eckdaten:
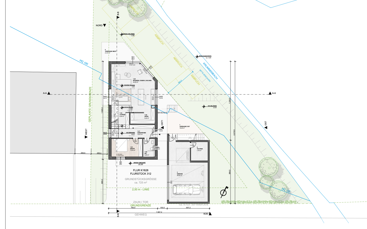
Grundstück etwa 760m2; Teilweise Hochwasserzone
Region: Rems-Murr-Kreis
Wohnfläche: etwa 177m2 sowie 50m2 Nebenfläche
Geheizt wird mittels Nahwärme; Photovoltaik ist noch in Klärung
reine Baukosten: bislang 630.000€ (netto)
Wir freuen uns schon jetzt auf eine hoffentlich rege und nicht allzu hitzige Diskussion.
Liebe Grüße




und schon hier besten Dank für all die zahlreichen Informationen welche uns bislang viel geholfen haben!
Nach vielen Jahren (wie die Zeit vergeht) hier im Forum und einigen Rückschlägen hinsichtlich Grundstückszuweisung und Marktlage sind wir nun auch in der glücklichen Lage, ein Grundstück erworben zu haben welches als Fundament für unser Glück zu zweit (vorerst!) dienen soll.
Wir möchten euch gerne unser Projekt vorstellen.
Nachdem wir einen passenden Architekten gefunden hatten, der mit uns gemeinsam einen Hybridbau (EG Stahlbeton/OG Massivholz bzw. Holzriegel) nach Vorarlberger Schule umsetzt, haben wir bislang viele Monate in die Planung investiert und somit ein Hauskonzept entworfen, das ganz allein auf unsere Bedürfnisse zugeschnitten ist.
Aktuell befinden wir uns in der Erstellung der Genehmigungsplanung.
Mit diesem Beitrag möchten wir euch gerne am Projekt teilhaben lassen und vielleicht dem ein oder anderen Hilfestellung geben, der ein ähnliches Vorhaben plant.
Hinsichtlich der Ausstattung und finalen Ausgestaltung der Technik sind wir sehr konservativ. Somit stehen KNX und sonstige Spielereien nicht zur Debatte.
Kurze Eckdaten:
Grundstück etwa 760m2; Teilweise Hochwasserzone
Region: Rems-Murr-Kreis
Wohnfläche: etwa 177m2 sowie 50m2 Nebenfläche
Geheizt wird mittels Nahwärme; Photovoltaik ist noch in Klärung
reine Baukosten: bislang 630.000€ (netto)
Wir freuen uns schon jetzt auf eine hoffentlich rege und nicht allzu hitzige Diskussion.
Liebe Grüße
Als erstes, mal ein ganz realistischer Preis. Da schon mal Daumen hoch.
Habt ihr Euch schon damit beachäftigt, was passiert wenn Kinder nicht kommen sollten, was Euch keiner wünscht. Wir haben uns auch 2 Kinder gewündcht, ist aber "nur" eins geworden. Wofür wir aber auch sehr dankbar sind.
Ich würde ein Zimmer streichen. A) Erspart Kosten, b) ihr habt weitere 3 Zimmer (Gäste, Büro und Gast). C) Gast kann auch im Büro pennen, oder macht ihr als Nebengewerbe Hotel auf :-) ).
Habt ihr Euch schon damit beachäftigt, was passiert wenn Kinder nicht kommen sollten, was Euch keiner wünscht. Wir haben uns auch 2 Kinder gewündcht, ist aber "nur" eins geworden. Wofür wir aber auch sehr dankbar sind.
Ich würde ein Zimmer streichen. A) Erspart Kosten, b) ihr habt weitere 3 Zimmer (Gäste, Büro und Gast). C) Gast kann auch im Büro pennen, oder macht ihr als Nebengewerbe Hotel auf :-) ).
Tom1978 schrieb:
Als erstes, mal ein ganz realistischer Preis. Da schon mal Daumen hoch.
Habt ihr Euch schon damit beachäftigt, was passiert wenn Kinder nicht kommen sollten, was Euch keiner wünscht. Wir haben uns auch 2 Kinder gewündcht, ist aber "nur" eins geworden. Wofür wir aber auch sehr dankbar sind.
Ich würde ein Zimmer streichen. A) Erspart Kosten, b) ihr habt weitere 3 Zimmer (Gäste, Büro und Gast). C) Gast kann auch im Büro pennen, oder macht ihr als Nebengewerbe Hotel auf 🙂 ).Gerechtfertigte Anmerkungen!Wir diskutieren aktuell eine Verkleinerung 😉
Genau aus deinen genannten Gründen
Tom1978 schrieb:
was passiert wenn Kinder nicht kommen sollten,Woher weißt Du, dass noch keine Kinder da sind?Malunga schrieb:
Wir diskutieren aktuell eine Verkleinerung 😉Wer Wir? Ist der Entwurf nicht schon fix?Malunga schrieb:
Wir freuen uns schon jetzt auf eine hoffentlich rege und nicht allzu hitzige Diskussion.Was möchtest Du denn diskutieren?Malunga schrieb:
Mit diesem Beitrag möchten wir euch gerne am Projekt teilhaben lassen und vielleicht dem ein oder anderen Hilfestellung geben, der ein ähnliches Vorhaben plant.Ich lese hieraus, dass Du andere beraten möchtest hinsichtlich Deiner Erfahrung und dem Baufortschritt Eures Bauvorhabens.ypg schrieb:
Woher weißt Du, dass noch keine Kinder da sind?
Einfach nur den Beitrag genau lesen. Die haben ein Grundstück erworben ds als Fundament für Glück zu zweit (vorerst) dienen soll. Kann natürlich auch Vater oder Mutter + Kind sein. Da aber vorerst steht, ist der Nachwuchs in der obengenannten Konstellation schwierig.
ypg schrieb:
Woher weißt Du, dass noch keine Kinder da sind? Sind Sie nicht 🙂
Wer Wir? Ist der Entwurf nicht schon fix?
Aktuell sind wir ja noch in der Entwurfsplanung, Genehmigung wird vorbereitet
Was möchtest Du denn diskutieren?
Grundsätzlich nur Bemerkungen anderer Leser welche etwas loswerden wollen 😉
Ich lese hieraus, dass Du andere beraten möchtest hinsichtlich Deiner Erfahrung und dem Baufortschritt Eures Bauvorhabens.
Beraten ist das falsche Wort. An mir habe ich festgestellt, dass ich im Forum ähnliche Vorhaben mitgelesen habe und gelegentlich Fragen hatte.
Diese Lücke könnten wir eventuell für andere schließen.
Ist ja noch ein wachsendes Projekt, welches ich einfach gerne teilen möchte.
Sei es um Interessenten über aktuelle Preise oder Baustoffe oder Innengestaltungen zu informieren.Hab die Anmerkungen direkt zitiert 🙂Ähnliche Themen