Einfamilienhaus 177m2 ohne Keller - Hybridbau in BW

4,60 Stern(e) 9 Votes
Zuletzt aktualisiert 20.11.2025
Sie befinden sich auf der Seite 5 der Diskussion zum Thema: Einfamilienhaus 177m2 ohne Keller - Hybridbau in BW
>> Zum 1. Beitrag <<

K a t j a

K a t j a

Autsch. von 177 auf 153 runter, dass ist bitter. Zwar Jammern auf hohem Niveau aber ein Jammern bleibt es imho. ;)
 
M

Malunga

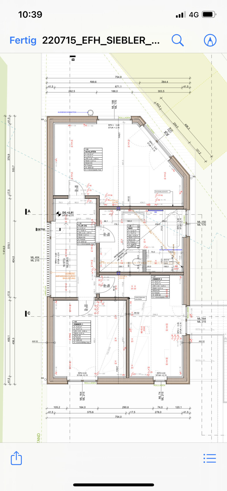
Euren Tipp mit einem Kinderzimmer weniger haben wir direkt umgesetzt.
Auch haben wir die Speisekammer deutlich reduziert.
Das war das Resultat aus einer konsequenten Streichung von etwa 1,5m auf die Gesamthauslänge, sowie einer Reduzierung von etwa 0,5m auf die Breite.
Natürlich ist jetzt das Gästezimmer sehr kompakt, aber zum Schlafen sowie Arbeiten reicht es allemal.

Grundriss eines Gebäudes mit mehreren Zimmern, Türen, Wänden und Maßlinien.


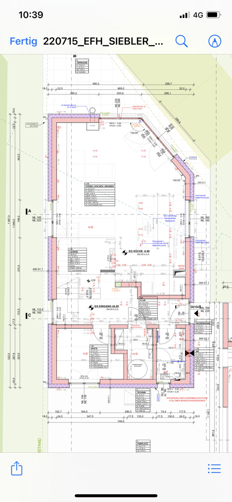
Grundriss eines Gebäudes mit Wänden, Türen und Maßangaben.
 
M

Malunga

Ja die gibt es.

Es liegen etwa15% des nördlichen Gebäudes in der Zone.

Folgendes musste beachtet werden:
- Retentionsausgleich für die ges. Fläche
- keine Schlafräume idZone
- keine neuralgische Technik (Elo/Hauswirtschaftsraum) idZone
- erdberührende Teile aus Stahlbeton ( hier Sockel 90cm)
 
Zuletzt aktualisiert 20.11.2025
Im Forum Bauplanung gibt es 5071 Themen mit insgesamt 100812 Beiträgen
Oben