Liebe Forenmitglieder,
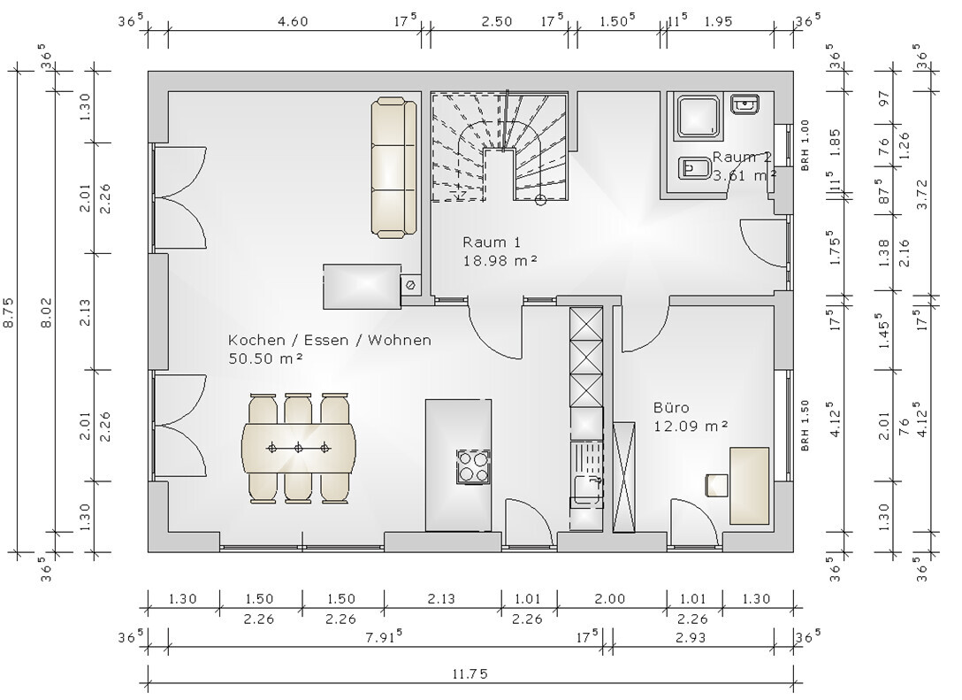
nachdem wir die Lage des Hauses und der Garage vor einigen Wochen mit eurer Hilfe geklärt haben (https://www.hausbau-forum.de/threads/knifflige-Grundstücksplanung-garage-eingang-nach-sw-oder-no.30264/) liegt nun der erste Entwurf des Architekten vor (Ich habe die Grundrisse und Ansichten aus Copyrightgründen selbst nachgezeichnet, ich bitte dies zu entschuldigen. Alles Wesentliche sollte aber erkennbar sein, ggf. gerne nachfragen.)
Jetzt freuen wir uns über konstruktive Kritik von euch! (Noch kann alles geändert werden…)
Bebauungsplan/Einschränkungen
Größe des Grundstücks: 500 m² (Ost-West ca.24m, Nord-Süd ca. 20m)
Bretteben
Grundflächenzahl: 0,4
Baufenster, Baulinie und –grenze: siehe Lageplan
Anzahl Stellplatz: 1 Garage + 1 Stellplatz (5m vor Garage zählen als Stellplatz)
Geschossigkeit: 2 Vollgeschosse
Dachform: Walmdach oder Satteldach
Ausrichtung: Giebel Ost-West
Maximale Höhen/Begrenzungen: Wandhöhe (Traufhöhe) 5,70 m
weitere Vorgaben: DN 20 – 35°, Hauslänge mind. 25 % größer als Hausbreite, Garage Flach- oder Pultdach, Garage zw. 5m und 7m von Straße entfernt
Anforderungen der Bauherren
Stilrichtung, Dachform, Gebäudetyp: zeitlos, Walmdach oder Satteldach (noch offen, nur Sichtdachstuhl ist uns wichtig)
Keller, Geschosse: 2 Vollgeschosse + Keller
Anzahl der Personen, Alter: 2 Erw. + Kleinkind + evtl. weiteres Kind
Raumbedarf im EG: Allraum, Büro, Duschbad; im OG: Schlafen, 2 Kinderzimmer, Bad
Büro: Homeoffice
Schlafgäste pro Jahr: 5
offene oder geschlossene Architektur: eher offen
konservativ oder moderne Bauweise: modern
offene Küche, Kochinsel: offen
Anzahl Essplätze: 4 + regelmäßig Gäste
Kamin: ja
Musik/Stereowand: nein
Balkon, Dachterrasse: nein
Garage, Carport: Garage für 1 Kfz + Platz für Fahrräder
Nutzgarten, Treibhaus: nein
Hausentwurf
Von wem stammt die Planung: Architekt
Was gefällt besonders? Warum? Alle gewünschten Räume vorhanden, angenehme Raumgrößen, gute Raumausnutzung, nicht verwinkelt
Was gefällt nicht? Warum? Schlauchbad im EG, zu wenig Privatsphäre in den Kinderzimmer?
Preisschätzung lt Architekt/Planer: 450 k für Haus, Garage, Baunebenkosten (ohne Außenanlagen)
Persönliches Preislimit fürs Haus, inkl Ausstattung: 500 k
favorisierte Heiztechnik: Gas + Photovoltaik (alternativ Luft-Wasser-Wärmepumpe)
Wenn Ihr verzichten müsst, auf welche Details/Ausbauten
-könnt Ihr verzichten: Walmdach
-könnt Ihr nicht verzichten: Anzahl der Räume, Keller
Warum ist der Entwurf so geworden, wie er jetzt ist?
Raumprogramm und die Ausrichtung nach Süden und Westen wurden von uns vorgegeben und vom Architekten umgesetzt
Gute Ausnutzung des kleinen Grundstücks (kleiner Garten bleibt noch übrig)
Was ist die wichtigste/grundlegende Frage zum Grundriss in 130 Zeichen zusammengefasst?
- Funktioniert der Grundriss?
- Sind die Fensterflächen in den Kinderzimmer zu groß? (Vorschläge für alternative Fenstergestaltung?)
- Wohin mit dem TV? (TV ist für uns nicht sehr wichtig, aber wir besitzen einen)




nachdem wir die Lage des Hauses und der Garage vor einigen Wochen mit eurer Hilfe geklärt haben (https://www.hausbau-forum.de/threads/knifflige-Grundstücksplanung-garage-eingang-nach-sw-oder-no.30264/) liegt nun der erste Entwurf des Architekten vor (Ich habe die Grundrisse und Ansichten aus Copyrightgründen selbst nachgezeichnet, ich bitte dies zu entschuldigen. Alles Wesentliche sollte aber erkennbar sein, ggf. gerne nachfragen.)
Jetzt freuen wir uns über konstruktive Kritik von euch! (Noch kann alles geändert werden…)
Bebauungsplan/Einschränkungen
Größe des Grundstücks: 500 m² (Ost-West ca.24m, Nord-Süd ca. 20m)
Bretteben
Grundflächenzahl: 0,4
Baufenster, Baulinie und –grenze: siehe Lageplan
Anzahl Stellplatz: 1 Garage + 1 Stellplatz (5m vor Garage zählen als Stellplatz)
Geschossigkeit: 2 Vollgeschosse
Dachform: Walmdach oder Satteldach
Ausrichtung: Giebel Ost-West
Maximale Höhen/Begrenzungen: Wandhöhe (Traufhöhe) 5,70 m
weitere Vorgaben: DN 20 – 35°, Hauslänge mind. 25 % größer als Hausbreite, Garage Flach- oder Pultdach, Garage zw. 5m und 7m von Straße entfernt
Anforderungen der Bauherren
Stilrichtung, Dachform, Gebäudetyp: zeitlos, Walmdach oder Satteldach (noch offen, nur Sichtdachstuhl ist uns wichtig)
Keller, Geschosse: 2 Vollgeschosse + Keller
Anzahl der Personen, Alter: 2 Erw. + Kleinkind + evtl. weiteres Kind
Raumbedarf im EG: Allraum, Büro, Duschbad; im OG: Schlafen, 2 Kinderzimmer, Bad
Büro: Homeoffice
Schlafgäste pro Jahr: 5
offene oder geschlossene Architektur: eher offen
konservativ oder moderne Bauweise: modern
offene Küche, Kochinsel: offen
Anzahl Essplätze: 4 + regelmäßig Gäste
Kamin: ja
Musik/Stereowand: nein
Balkon, Dachterrasse: nein
Garage, Carport: Garage für 1 Kfz + Platz für Fahrräder
Nutzgarten, Treibhaus: nein
Hausentwurf
Von wem stammt die Planung: Architekt
Was gefällt besonders? Warum? Alle gewünschten Räume vorhanden, angenehme Raumgrößen, gute Raumausnutzung, nicht verwinkelt
Was gefällt nicht? Warum? Schlauchbad im EG, zu wenig Privatsphäre in den Kinderzimmer?
Preisschätzung lt Architekt/Planer: 450 k für Haus, Garage, Baunebenkosten (ohne Außenanlagen)
Persönliches Preislimit fürs Haus, inkl Ausstattung: 500 k
favorisierte Heiztechnik: Gas + Photovoltaik (alternativ Luft-Wasser-Wärmepumpe)
Wenn Ihr verzichten müsst, auf welche Details/Ausbauten
-könnt Ihr verzichten: Walmdach
-könnt Ihr nicht verzichten: Anzahl der Räume, Keller
Warum ist der Entwurf so geworden, wie er jetzt ist?
Raumprogramm und die Ausrichtung nach Süden und Westen wurden von uns vorgegeben und vom Architekten umgesetzt
Gute Ausnutzung des kleinen Grundstücks (kleiner Garten bleibt noch übrig)
Was ist die wichtigste/grundlegende Frage zum Grundriss in 130 Zeichen zusammengefasst?
- Funktioniert der Grundriss?
- Sind die Fensterflächen in den Kinderzimmer zu groß? (Vorschläge für alternative Fenstergestaltung?)
- Wohin mit dem TV? (TV ist für uns nicht sehr wichtig, aber wir besitzen einen)
Schonmal danke für eure schnellen Rückmeldungen!


ypg schrieb:Die Dusche fällt uns sehr schwer wegzulassen, auch wenn es den Eingangsbereich deutlich entspannen würde. Auf Abstellfläche können wir zur Not verzichten (=> Keller, großer Küchenschrank, Staubsauger evtl. ins Büro).
Über die Dusche im EG kann man sich streiten. Kleine Abstellfläche im EG fehlt nämlich (außer im Büro)
ypg schrieb:
Die Fensterflächen in den Kinderzimmer sind wahrlich too much.
Niloa schrieb:Sehen wir auch so. Hab mal je ein Element rausgeschmissen. Sieht von außen immer noch passabel aus. Reicht die Fensterfläche, damit das 23qm-Zimmer trotzdem schön hell ist?
Da sie Richtung Süden liegen, muss eigentlich den ganzen Tag verschattet werden, damit man nicht vor Hitze kaputt geht.
ypg schrieb:Warum? Unsere Idee war: man kommt ins Bad, zieht sich aus und biegt nach links in die Dusche ab. Bei einem Tausch müsste man immer nackt direkt am Fenster vorbei. Außerdem hat man beim aktuellen Entwurf Tageslicht bei der Toilette. Das T muss nicht zwingend sein.
Toilette und Dusche gehört getauscht
haydee schrieb:Das gefällt uns auch noch nicht besonders gut. Ich hab grad noch eine Variante gebastelt. Ist diese praktikabler? Garderobe ist immer noch nicht riesig und wohl recht dunkel.
Flur, Schrank, WC gehört anders angeordnet. Großer Flur, keine vernünftige Garderobe
haydee schrieb:Was meinst du damit? Unterer Teil feststehend?
Würde die Südfenster auch mit Brüstung versehen
ypg schrieb:Absolute Symmetrie finde ich gerade bei "Stadtvillen" auch nicht unbedingt erstrebenswert. Wirkt dann wie ein Würfel. Darf also gerne etwas außer Symmetrie sein. Auf der Nordseite geht mit Fenster allerdings nicht viel, da bis 2,7 m vor der Hauskante NW die Garage steht.
Zum TV:
Mein Vorschlag gegen langweilige Symmetrie: Fenster im WZ-Bereich im Westen weglassen und auf die Nordseite legen oder auf der Westseite mittig einen Dreier plus einen Meter im Norden. TV-Platz ergibt sich dann.
ich finde bodentiefe Fenster im Kinderzimmer schön, meine Tochter liebt ihr Fenster und lässt auch meistens die Sonne immer schön rein, damit es mind. 28 Grad werden im Sommer, sonst ist es ihr zu kalt .
Eure Decken werden wohl recht niedrig, wenn ich mir eure Fensterhöhen und Treppenstufen ansehe. Bei eurem großen Wohnraum wirken zu niedrige Decken sehr erdrückend.
LG
Sabine
Eure Decken werden wohl recht niedrig, wenn ich mir eure Fensterhöhen und Treppenstufen ansehe. Bei eurem großen Wohnraum wirken zu niedrige Decken sehr erdrückend.
LG
Sabine
Bambula schrieb:
Warum? Unsere Idee war: man kommt ins Bad, zieht sich aus und biegt nach links in die Dusche ab. Bei einem Tausch müsste man immer nackt direkt am Fenster vorbei. Außerdem hat man beim aktuellen Entwurf Tageslicht bei der Toilette. Das T muss nicht zwingend sein.Dann schau Dir mal Dein Bad an 😉
Bambula schrieb:
Was meinst du damit? Unterer Teil feststehend?Nein, Brüstung! Mauer mit Fensterbank. Ist in Schlafräumen angebrachter.
Bambula schrieb:
uf der Nordseite geht mit Fenster allerdings nicht viel, da bis 2,7 m vor der Hauskante NW die Garage steht.Das reicht doch!
Ich fand den Eingangsbereich im Ausgangspost eigentlich ganz ok. Auch die Dusche. Kann jetzt nicht wirklich eine enorme Verbesserung sehen - aber funktioniert auch. Eher Geschmackssache.
Was mich viel mehr stören würde, ist ehrlich gesagt der Kamin. Der dicke Klops als Raumtrenner macht den Raum m.E. eher zwergig und eng denn gemütlich. Du willst nicht vielleicht auf flaches Satteldach umschwenken und den Kamin lieber an die Außenwand stellen? 😀
Was mich viel mehr stören würde, ist ehrlich gesagt der Kamin. Der dicke Klops als Raumtrenner macht den Raum m.E. eher zwergig und eng denn gemütlich. Du willst nicht vielleicht auf flaches Satteldach umschwenken und den Kamin lieber an die Außenwand stellen? 😀
Ähnliche Themen