Liebe Forenmitglieder,
nachdem wir die Lage des Hauses und der Garage vor einigen Wochen mit eurer Hilfe geklärt haben (https://www.hausbau-forum.de/threads/knifflige-Grundstücksplanung-garage-eingang-nach-sw-oder-no.30264/) liegt nun der erste Entwurf des Architekten vor (Ich habe die Grundrisse und Ansichten aus Copyrightgründen selbst nachgezeichnet, ich bitte dies zu entschuldigen. Alles Wesentliche sollte aber erkennbar sein, ggf. gerne nachfragen.)
Jetzt freuen wir uns über konstruktive Kritik von euch! (Noch kann alles geändert werden…)
Bebauungsplan/Einschränkungen
Größe des Grundstücks: 500 m² (Ost-West ca.24m, Nord-Süd ca. 20m)
Bretteben
Grundflächenzahl: 0,4
Baufenster, Baulinie und –grenze: siehe Lageplan
Anzahl Stellplatz: 1 Garage + 1 Stellplatz (5m vor Garage zählen als Stellplatz)
Geschossigkeit: 2 Vollgeschosse
Dachform: Walmdach oder Satteldach
Ausrichtung: Giebel Ost-West
Maximale Höhen/Begrenzungen: Wandhöhe (Traufhöhe) 5,70 m
weitere Vorgaben: DN 20 – 35°, Hauslänge mind. 25 % größer als Hausbreite, Garage Flach- oder Pultdach, Garage zw. 5m und 7m von Straße entfernt
Anforderungen der Bauherren
Stilrichtung, Dachform, Gebäudetyp: zeitlos, Walmdach oder Satteldach (noch offen, nur Sichtdachstuhl ist uns wichtig)
Keller, Geschosse: 2 Vollgeschosse + Keller
Anzahl der Personen, Alter: 2 Erw. + Kleinkind + evtl. weiteres Kind
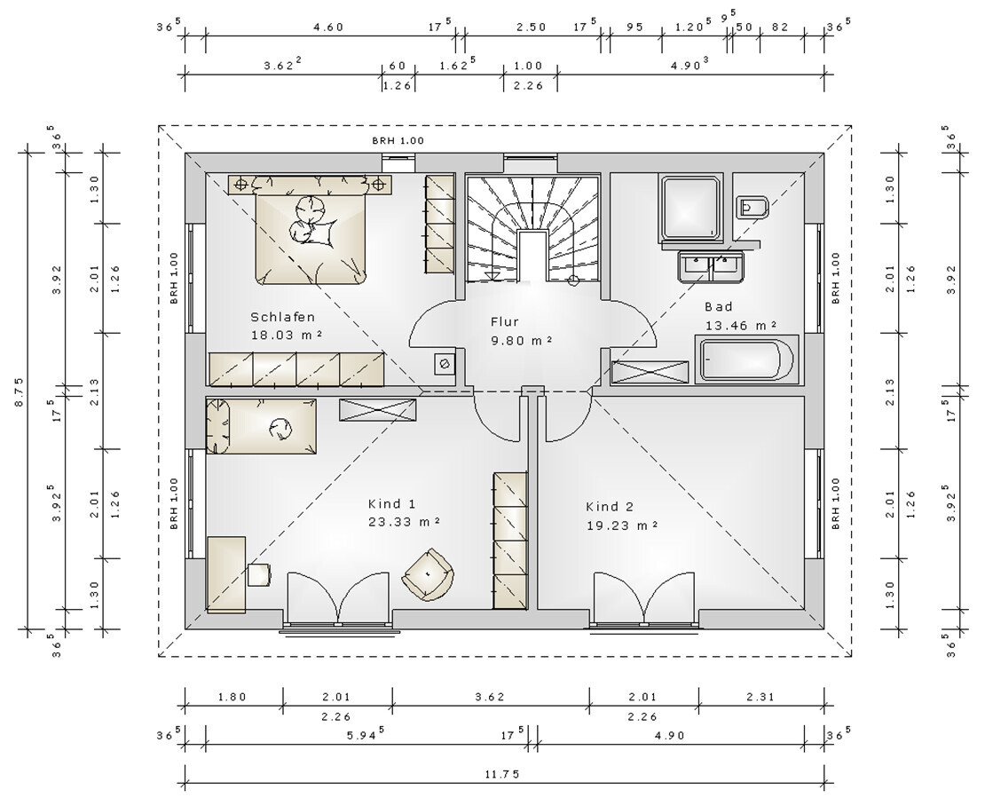
Raumbedarf im EG: Allraum, Büro, Duschbad; im OG: Schlafen, 2 Kinderzimmer, Bad
Büro: Homeoffice
Schlafgäste pro Jahr: 5
offene oder geschlossene Architektur: eher offen
konservativ oder moderne Bauweise: modern
offene Küche, Kochinsel: offen
Anzahl Essplätze: 4 + regelmäßig Gäste
Kamin: ja
Musik/Stereowand: nein
Balkon, Dachterrasse: nein
Garage, Carport: Garage für 1 Kfz + Platz für Fahrräder
Nutzgarten, Treibhaus: nein
Hausentwurf
Von wem stammt die Planung: Architekt
Was gefällt besonders? Warum? Alle gewünschten Räume vorhanden, angenehme Raumgrößen, gute Raumausnutzung, nicht verwinkelt
Was gefällt nicht? Warum? Schlauchbad im EG, zu wenig Privatsphäre in den Kinderzimmer?
Preisschätzung lt Architekt/Planer: 450 k für Haus, Garage, Baunebenkosten (ohne Außenanlagen)
Persönliches Preislimit fürs Haus, inkl Ausstattung: 500 k
favorisierte Heiztechnik: Gas + Photovoltaik (alternativ Luft-Wasser-Wärmepumpe)
Wenn Ihr verzichten müsst, auf welche Details/Ausbauten
-könnt Ihr verzichten: Walmdach
-könnt Ihr nicht verzichten: Anzahl der Räume, Keller
Warum ist der Entwurf so geworden, wie er jetzt ist?
Raumprogramm und die Ausrichtung nach Süden und Westen wurden von uns vorgegeben und vom Architekten umgesetzt
Gute Ausnutzung des kleinen Grundstücks (kleiner Garten bleibt noch übrig)
Was ist die wichtigste/grundlegende Frage zum Grundriss in 130 Zeichen zusammengefasst?
- Funktioniert der Grundriss?
- Sind die Fensterflächen in den Kinderzimmer zu groß? (Vorschläge für alternative Fenstergestaltung?)
- Wohin mit dem TV? (TV ist für uns nicht sehr wichtig, aber wir besitzen einen)




nachdem wir die Lage des Hauses und der Garage vor einigen Wochen mit eurer Hilfe geklärt haben (https://www.hausbau-forum.de/threads/knifflige-Grundstücksplanung-garage-eingang-nach-sw-oder-no.30264/) liegt nun der erste Entwurf des Architekten vor (Ich habe die Grundrisse und Ansichten aus Copyrightgründen selbst nachgezeichnet, ich bitte dies zu entschuldigen. Alles Wesentliche sollte aber erkennbar sein, ggf. gerne nachfragen.)
Jetzt freuen wir uns über konstruktive Kritik von euch! (Noch kann alles geändert werden…)
Bebauungsplan/Einschränkungen
Größe des Grundstücks: 500 m² (Ost-West ca.24m, Nord-Süd ca. 20m)
Bretteben
Grundflächenzahl: 0,4
Baufenster, Baulinie und –grenze: siehe Lageplan
Anzahl Stellplatz: 1 Garage + 1 Stellplatz (5m vor Garage zählen als Stellplatz)
Geschossigkeit: 2 Vollgeschosse
Dachform: Walmdach oder Satteldach
Ausrichtung: Giebel Ost-West
Maximale Höhen/Begrenzungen: Wandhöhe (Traufhöhe) 5,70 m
weitere Vorgaben: DN 20 – 35°, Hauslänge mind. 25 % größer als Hausbreite, Garage Flach- oder Pultdach, Garage zw. 5m und 7m von Straße entfernt
Anforderungen der Bauherren
Stilrichtung, Dachform, Gebäudetyp: zeitlos, Walmdach oder Satteldach (noch offen, nur Sichtdachstuhl ist uns wichtig)
Keller, Geschosse: 2 Vollgeschosse + Keller
Anzahl der Personen, Alter: 2 Erw. + Kleinkind + evtl. weiteres Kind
Raumbedarf im EG: Allraum, Büro, Duschbad; im OG: Schlafen, 2 Kinderzimmer, Bad
Büro: Homeoffice
Schlafgäste pro Jahr: 5
offene oder geschlossene Architektur: eher offen
konservativ oder moderne Bauweise: modern
offene Küche, Kochinsel: offen
Anzahl Essplätze: 4 + regelmäßig Gäste
Kamin: ja
Musik/Stereowand: nein
Balkon, Dachterrasse: nein
Garage, Carport: Garage für 1 Kfz + Platz für Fahrräder
Nutzgarten, Treibhaus: nein
Hausentwurf
Von wem stammt die Planung: Architekt
Was gefällt besonders? Warum? Alle gewünschten Räume vorhanden, angenehme Raumgrößen, gute Raumausnutzung, nicht verwinkelt
Was gefällt nicht? Warum? Schlauchbad im EG, zu wenig Privatsphäre in den Kinderzimmer?
Preisschätzung lt Architekt/Planer: 450 k für Haus, Garage, Baunebenkosten (ohne Außenanlagen)
Persönliches Preislimit fürs Haus, inkl Ausstattung: 500 k
favorisierte Heiztechnik: Gas + Photovoltaik (alternativ Luft-Wasser-Wärmepumpe)
Wenn Ihr verzichten müsst, auf welche Details/Ausbauten
-könnt Ihr verzichten: Walmdach
-könnt Ihr nicht verzichten: Anzahl der Räume, Keller
Warum ist der Entwurf so geworden, wie er jetzt ist?
Raumprogramm und die Ausrichtung nach Süden und Westen wurden von uns vorgegeben und vom Architekten umgesetzt
Gute Ausnutzung des kleinen Grundstücks (kleiner Garten bleibt noch übrig)
Was ist die wichtigste/grundlegende Frage zum Grundriss in 130 Zeichen zusammengefasst?
- Funktioniert der Grundriss?
- Sind die Fensterflächen in den Kinderzimmer zu groß? (Vorschläge für alternative Fenstergestaltung?)
- Wohin mit dem TV? (TV ist für uns nicht sehr wichtig, aber wir besitzen einen)
Ich finde auch, wenig zu mosern 😉 😉.
Würde allerdings auch keine so breiten bodentiefen Fenster in den Kinderzimmern vorsehen. Dann eher im Süden mit Fensterbrüstung und evlt. im Osten und Westen je ein türbreites bodentiefes Fenster.
Im EG finde ich die Badlösung im Eingangsthread auch besser, weil dann die Dusche auch Platz hat und auch das WC gut nutzbar ist.
Fenster im Westen dann eher so (passt vielleicht auch gut mit bodentiefem Fenster im OG von Kind 1

Grün soll planunten bedeuten, hier einen Fensterteil, der sich öffnet ... denn dort soll doch bestimm schon Terrasse beginnen ... oder wie liegt die?
Würde allerdings auch keine so breiten bodentiefen Fenster in den Kinderzimmern vorsehen. Dann eher im Süden mit Fensterbrüstung und evlt. im Osten und Westen je ein türbreites bodentiefes Fenster.
Im EG finde ich die Badlösung im Eingangsthread auch besser, weil dann die Dusche auch Platz hat und auch das WC gut nutzbar ist.
Fenster im Westen dann eher so (passt vielleicht auch gut mit bodentiefem Fenster im OG von Kind 1
Grün soll planunten bedeuten, hier einen Fensterteil, der sich öffnet ... denn dort soll doch bestimm schon Terrasse beginnen ... oder wie liegt die?
ypg schrieb:
Wenn ich dran denke, Fotografiere ich unsere Ecke. Ich könnte es mir ohne Fenster dort nicht vorstellen. Ansonsten schaust Du ja gg eine geschlossene Wand?! Das ist doch bei einer Außenwand nicht gerade die schönste Idee.Hier mal eine Variante der Fensteranordnung im WZ, wo Rausschauen und TV schauen gewährleistet ist 😉
kbt09 schrieb:
Im EG finde ich die Badlösung im Eingangsthread auch besserSo wird es wahrscheinlich auch gemacht. Ein quadratisches 3,6 qm Bad ist doch sehr beengt. der 2m breite Flur sollte dann auch für eine Garderobe genügen (wenn auch nicht zu üppig).kbt09 schrieb:
Fenster im Westen dann eher soWas mir an dieser Lösung nicht so gefällt: 2 zusätzliche Fenster, somit entsprechende Mehrkosten (elektr. Rollladen usw.) Der Fensterteil, den du grün markiert hast, soll der bewegl. Teil der Schiebe-Hebe-Tür werden. (Konnte ich im Programm nicht darstellen)ypg schrieb:
Hier mal eine Variante der Fensteranordnung im WZ, wo Rausschauen und TV schauen gewährleistet istGefällt mir gut. Wir spielen auf jeden Fall noch mit der Fensteranordnung im WZ. Vielleicht nordsseitig nur eine "Schießscharte" und statt der 2-flügeligen Tür in der Westwand nur eine Tür? (siehe Skizze)Außerdem überlegen wir, ob im Schlafzimmer ein zweites Fenster sinnvoll wäre. Dann würde der Raum von 2 Seiten belichtet und man könnte im Bett untertags auch mal lesen (kommt bei uns vor). Was meint ihr? Würde das dem Raum gut tun?
J
j.bautsch02.04.19 07:51Bambula schrieb:
Außerdem überlegen wir, ob im Schlafzimmer ein zweites Fenster sinnvoll wäre. Dann würde der Raum von 2 Seiten belichtet und man könnte im Bett untertags auch mal lesen (kommt bei uns vor).licht von hinten ist nie praktischfinde das tut dem raum überhaupt nicht gut, seitliches großes fenster reicht eigentlich vollkommen aus 😉
Ähnliche Themen