K
KaJuJu31125.05.21 17:28Hallo,
wir (Geschwister) wollen ein Doppelhaus bzw. Zweifamilienhaus bauen. Die Doppelhaushälften sollten gleich groß sein, aber unsere Überlegung war durch einen gemeinsamen Hauswirtschaftsraum ein Zweifamilienhaus zu schaffen. Allerdings gibt es einige Vorgaben im Bebauungsplan und wir werden immer mehr verunsichert, ob unser Plan überhaupt sinnvoll ist.
Möglich wäre z.B. ein Doppelhaus mit rund 15,5 m breite und 12 m länge. Die Firstrichtung muss von Osten nach Westen gehen. Wohnfläche sollte rund 140 m² betragen.
Größe des Grundstücks: 765 m²
Hang: -
Grundflächenzahl:
Geschossflächenzahl: 0,4
Baufenster, Baulinie und -grenze: siehe Baufenster
Anzahl Stellplatz: 2
Geschossigkeit: 2 Vollgeschosse
Dachform: Satteldach
Stilrichtung: Doppelhaus
Ausrichtung: Terrasse / Garten geht nach Süden
Maximale Höhen/Begrenzungen: TH 4,7 m FH 11,70 m
weitere Vorgaben: Grenzbebauung
Anforderungen der Bauherren
Stilrichtung, Dachform, Gebäudetyp: Doppelhaus mit Satteldach - was anderes ist nicht erlaubt
Keller, Geschosse: 2 Vollgeschosse ohne Keller
Anzahl der Personen, Alter: 2 Personen/30/33
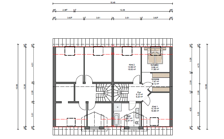
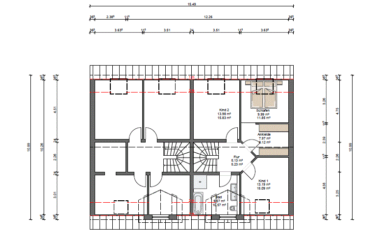
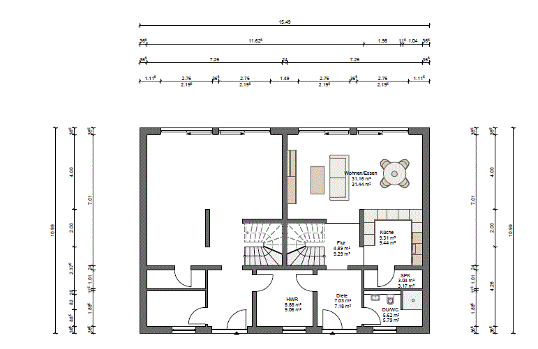
Raumbedarf im EG, OG: Arbeits-/Gästezimmer, offener Wohn-, Ess- Küchenbereich, Toilette mit Dusche im EG, Abstellkammer, großzügiger Garderobenbereich- OG: 2 Kinderzimmer, Schlafzimmer mit Ankleide und Balkon, großes Bad mit Badewanne
Schlafgäste pro Jahr: ca. 3-4 mal
offene oder geschlossene Architektur: eher offen
konservativ oder moderne Bauweise: modern
offene Küche, Kochinsel: Ja, evtl. Halbinsel als Abtrennung mit Theke
Anzahl Essplätze: 6 dauerhaft - erweiterbar auf 8 - 10
Kamin: nicht unbedingt
Musik/Stereowand: -
Balkon, Dachterrasse: Balkon Richtung Süden (Schlafzimmer) gewünscht
Garage, Carport: Garage
Nutzgarten, Treibhaus: -
weitere Wünsche/Besonderheiten/Tagesablauf, gern auch Begründungen, warum dieses oder das nicht sein soll:
Wir haben nach Süden hin eine unverbaute Sicht, die auch unverbaut bleiben wird. Man kann direkt auf das Feld schauen. Daher soll nach Süden hin im EG eine große Fensterfront entstehen. Nach Norden steht noch ein Einfamilienhaus, das bestehen bleibt. Alles andere kann abgerissen werden.
Hausentwurf
Von wem stammt die Planung:
-Bauunternehmen
Was gefällt besonders? Warum?
Wohn- Küchen-Essbereich, großzügig und offen gestaltet.
Was gefällt nicht? Warum?
Durch Grenzbebauung kaum Fenster möglich - evtl. Gauben? Ist es überhaupt möglich wirklich Licht reinzubekommen?
Preisschätzung lt Architekt/Planer: 350k€
Persönliches Preislimit fürs Haus, inkl Ausstattung: 400k€
favorisierte Heiztechnik: Sole-Wasser-Wärmepumpe
Wenn Ihr verzichten müsst, auf welche Details/Ausbauten
-könnt Ihr verzichten: Kamin, Gästezimmer im EG, Balkon im OG
-könnt Ihr nicht verzichten: Abstellkammer, große Schiebeelemente im Wohnzimmer, großer Garderobenbereich
Warum ist der Entwurf so geworden, wie er jetzt ist? ZB
Standardentwurf vom Planer an unsere Gegebenheiten (nur Fenster auf zwei Seiten möglich) angepasst.
Entsprechende/Welche Wünsche wurden vom Architekten umgesetzt: Garderobenbereich, Speisekammer, großes Bad
Was macht ihn in Euren Augen besonders gut oder schlecht: Fensterproblem ganz gut gelöst, allerdings wirkt es zu "0815".
Wir sind eigentlich schon einigermaßen zufrieden mit dem Entwurf, haben allerdings noch gar keine Berührungspunkte zum Thema bauen und beachten wahrscheinlich vieles nicht. Ursprünglich war eine gerade Treppe geplant, allerdings wurde uns mitgeteilt das dies nicht sinnvoll sei. Zudem wollten wir den Speicher auch über eine richtige Treppe erschließen, auch dies wurde uns mehrfach ausgeredet.
Vielen Dank für eure Hilfe!



wir (Geschwister) wollen ein Doppelhaus bzw. Zweifamilienhaus bauen. Die Doppelhaushälften sollten gleich groß sein, aber unsere Überlegung war durch einen gemeinsamen Hauswirtschaftsraum ein Zweifamilienhaus zu schaffen. Allerdings gibt es einige Vorgaben im Bebauungsplan und wir werden immer mehr verunsichert, ob unser Plan überhaupt sinnvoll ist.
Möglich wäre z.B. ein Doppelhaus mit rund 15,5 m breite und 12 m länge. Die Firstrichtung muss von Osten nach Westen gehen. Wohnfläche sollte rund 140 m² betragen.
Größe des Grundstücks: 765 m²
Hang: -
Grundflächenzahl:
Geschossflächenzahl: 0,4
Baufenster, Baulinie und -grenze: siehe Baufenster
Anzahl Stellplatz: 2
Geschossigkeit: 2 Vollgeschosse
Dachform: Satteldach
Stilrichtung: Doppelhaus
Ausrichtung: Terrasse / Garten geht nach Süden
Maximale Höhen/Begrenzungen: TH 4,7 m FH 11,70 m
weitere Vorgaben: Grenzbebauung
Anforderungen der Bauherren
Stilrichtung, Dachform, Gebäudetyp: Doppelhaus mit Satteldach - was anderes ist nicht erlaubt
Keller, Geschosse: 2 Vollgeschosse ohne Keller
Anzahl der Personen, Alter: 2 Personen/30/33
Raumbedarf im EG, OG: Arbeits-/Gästezimmer, offener Wohn-, Ess- Küchenbereich, Toilette mit Dusche im EG, Abstellkammer, großzügiger Garderobenbereich- OG: 2 Kinderzimmer, Schlafzimmer mit Ankleide und Balkon, großes Bad mit Badewanne
Schlafgäste pro Jahr: ca. 3-4 mal
offene oder geschlossene Architektur: eher offen
konservativ oder moderne Bauweise: modern
offene Küche, Kochinsel: Ja, evtl. Halbinsel als Abtrennung mit Theke
Anzahl Essplätze: 6 dauerhaft - erweiterbar auf 8 - 10
Kamin: nicht unbedingt
Musik/Stereowand: -
Balkon, Dachterrasse: Balkon Richtung Süden (Schlafzimmer) gewünscht
Garage, Carport: Garage
Nutzgarten, Treibhaus: -
weitere Wünsche/Besonderheiten/Tagesablauf, gern auch Begründungen, warum dieses oder das nicht sein soll:
Wir haben nach Süden hin eine unverbaute Sicht, die auch unverbaut bleiben wird. Man kann direkt auf das Feld schauen. Daher soll nach Süden hin im EG eine große Fensterfront entstehen. Nach Norden steht noch ein Einfamilienhaus, das bestehen bleibt. Alles andere kann abgerissen werden.
Hausentwurf
Von wem stammt die Planung:
-Bauunternehmen
Was gefällt besonders? Warum?
Wohn- Küchen-Essbereich, großzügig und offen gestaltet.
Was gefällt nicht? Warum?
Durch Grenzbebauung kaum Fenster möglich - evtl. Gauben? Ist es überhaupt möglich wirklich Licht reinzubekommen?
Preisschätzung lt Architekt/Planer: 350k€
Persönliches Preislimit fürs Haus, inkl Ausstattung: 400k€
favorisierte Heiztechnik: Sole-Wasser-Wärmepumpe
Wenn Ihr verzichten müsst, auf welche Details/Ausbauten
-könnt Ihr verzichten: Kamin, Gästezimmer im EG, Balkon im OG
-könnt Ihr nicht verzichten: Abstellkammer, große Schiebeelemente im Wohnzimmer, großer Garderobenbereich
Warum ist der Entwurf so geworden, wie er jetzt ist? ZB
Standardentwurf vom Planer an unsere Gegebenheiten (nur Fenster auf zwei Seiten möglich) angepasst.
Entsprechende/Welche Wünsche wurden vom Architekten umgesetzt: Garderobenbereich, Speisekammer, großes Bad
Was macht ihn in Euren Augen besonders gut oder schlecht: Fensterproblem ganz gut gelöst, allerdings wirkt es zu "0815".
Wir sind eigentlich schon einigermaßen zufrieden mit dem Entwurf, haben allerdings noch gar keine Berührungspunkte zum Thema bauen und beachten wahrscheinlich vieles nicht. Ursprünglich war eine gerade Treppe geplant, allerdings wurde uns mitgeteilt das dies nicht sinnvoll sei. Zudem wollten wir den Speicher auch über eine richtige Treppe erschließen, auch dies wurde uns mehrfach ausgeredet.
Vielen Dank für eure Hilfe!
S
Strahleman25.05.21 19:37Sind die möbel nur so reingestellt oder ist das schon die finale Möblierungsplanung? Und sind die Möbel maßstabsgetreu? Sie wirken zumindest recht üppig.
Im EG baut ihr euch mit dem Sofa so direkt vor den einzigen Eingang in den Wohnbereich eine Hürde/Engstelle. Das finde ich recht unpraktisch. Auch der Platz zwischen Sofa und Esstisch könnte recht eng wirken, wenn ihr den Esstisch nicht direkt an die Wand rücken wollt. Die Küche offen zu machen und dann doch mit Unterschränken zuzubauen finde ich auch ungeschickt. Das könnte recht provisorisch aussehen (oder soll hier eine Art Durchreiche hin?).
Im EG baut ihr euch mit dem Sofa so direkt vor den einzigen Eingang in den Wohnbereich eine Hürde/Engstelle. Das finde ich recht unpraktisch. Auch der Platz zwischen Sofa und Esstisch könnte recht eng wirken, wenn ihr den Esstisch nicht direkt an die Wand rücken wollt. Die Küche offen zu machen und dann doch mit Unterschränken zuzubauen finde ich auch ungeschickt. Das könnte recht provisorisch aussehen (oder soll hier eine Art Durchreiche hin?).
K
KaJuJu31125.05.21 19:50Danke für die Antwort. Die Möbel sind vom Planer eingezeichnet u sollen auf keinen Fall so bleiben. Die Küche soll höchstens zur Hälfte geschlossen werden. Auf jeden Fall sollte man durchgehen können.
K
KaJuJu31125.05.21 20:23Ja durch viele unterschiedliche Aussagen sind wir mittlerweile so verunsichert und überlegen ob es sich so realisieren lässt wie wir es gerne hätten. Gerade das Problem mit den Fenster bringt mich gerade an meine Grenzen.
KaJuJu311 schrieb:
Ja durch viele unterschiedliche Aussagen sind wir mittlerweile so verunsichert und überlegen ob es sich so realisieren lässt wie wir es gerne hätten.Ich bin wohl nicht allein mit dem Gefühl, daß "wie wir es gerne hätten" nicht so heiß gegessen wie gekocht wird ;-)KaJuJu311 schrieb:
Gerade das Problem mit den Fenster bringt mich gerade an meine Grenzen.Erzählt mal mehr über das Grundstück und die Bebauungsbedingungen. Mich irritieren zum einen die beidseitige Grenzbebauung / Fensterlosigkeit und zum anderen die Aussage mit der Zulässigkeit nur eines Doppelhauses.https://www.instagram.com/11antgmxde/
https://www.linkedin.com/company/bauen-jetzt/
Ähnliche Themen