T
thelastscout8503.08.16 10:51Hallo zusammen,
mal schauen, ob es auf meine Frage eine allgemeine Antwort gibt.
Wir überlegen, unsere Doppelgarage quer zur Straße zu setzen. Kann man pauschal sagen, wie viel Rangierfläche man benötigt? Vor allem die Länge der Garageneinfahrt wäre hier interessant.
Danke schon mal
Volker
mal schauen, ob es auf meine Frage eine allgemeine Antwort gibt.
Wir überlegen, unsere Doppelgarage quer zur Straße zu setzen. Kann man pauschal sagen, wie viel Rangierfläche man benötigt? Vor allem die Länge der Garageneinfahrt wäre hier interessant.
Danke schon mal
Volker
R
RobsonMKK03.08.16 10:52Da hilft ein Blick in den Bebauungsplan.
Bei uns ist ein Abstand von 5 Metern von Straße zu Garage vorgeschrieben.
Bei uns ist ein Abstand von 5 Metern von Straße zu Garage vorgeschrieben.
J
Jochen10403.08.16 11:08Hallo!
Das kommt auf deine Fahrzeuge und deine Fahrkünste an.
Darf ich fragen wieso du überhaupt auf die Idee kommst?
Das kommt auf deine Fahrzeuge und deine Fahrkünste an.
Darf ich fragen wieso du überhaupt auf die Idee kommst?
Architekten und andere Planer können die Radien/Fahrwege in Plänen darstellen. Wir haben gerade ein solches Objekt in Bearbeitung, die Fläche, die vor Haus/Garage gepflastert wird, ist ca. 6m x 8m groß, wobei die 6m der Breite der Garageneinfahrt entsprechen.
Wenn's eng ist, reichen vielleicht auch 6m oder auch nur 5m Rangiertiefe, aber das muss man dann entscheiden, ob man da jeden Tag rückwärts rein oder raus manövrieren will. Hängt ja auch von der Größe der PKW ab.
MfG
Dirk Grafe
Wenn's eng ist, reichen vielleicht auch 6m oder auch nur 5m Rangiertiefe, aber das muss man dann entscheiden, ob man da jeden Tag rückwärts rein oder raus manövrieren will. Hängt ja auch von der Größe der PKW ab.
MfG
Dirk Grafe
T
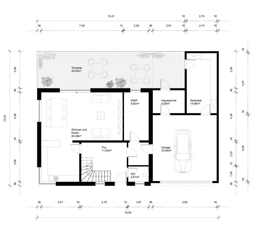
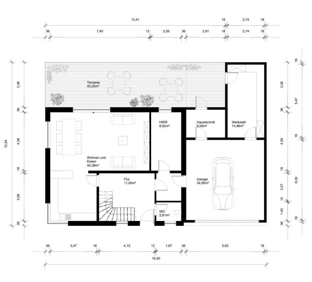
thelastscout8503.08.16 12:55Danke schon mal für die ganzen Antworten. Ich habe hier mal den Bebauungsplan angehängt. Unser Grundstück ist die Nummer 25, Süden ist unten, deswegen sollte hier auch am meisten Platz vorhanden sein für eine große Terrasse und einen schönen Garten.


Das hier ist der erste Entwurf von unserem Architekten. Allerdings muss das Haus um 180 Grad gedreht werden.
Wit wollten jetzt eben wissen, wie weit wir mit dem Haus und der Garage nach unten rutschen müssen, damit wir eine passable Einfahrt haben.
Da das die ersten Gratisentwürfe für ein Angebot von unserer Baufirma sind, bleibt hier das Grundstück noch außen vor, deshalb die Frage an euch.
Ich hoffe, das hab ich jetzt einigermaßen verständlich rübergebracht
Grüße
Das hier ist der erste Entwurf von unserem Architekten. Allerdings muss das Haus um 180 Grad gedreht werden.
Wit wollten jetzt eben wissen, wie weit wir mit dem Haus und der Garage nach unten rutschen müssen, damit wir eine passable Einfahrt haben.
Da das die ersten Gratisentwürfe für ein Angebot von unserer Baufirma sind, bleibt hier das Grundstück noch außen vor, deshalb die Frage an euch.
Ich hoffe, das hab ich jetzt einigermaßen verständlich rübergebracht
Grüße
Ähnliche Themen