Deckenauslässe für Kontrollierte-Wohnraumlüftung, ist das korrekt ?

4,00 Stern(e) 5 Votes
Zuletzt aktualisiert 21.11.2025
Sie befinden sich auf der Seite 5 der Diskussion zum Thema: Deckenauslässe für Kontrollierte-Wohnraumlüftung, ist das korrekt ?
>> Zum 1. Beitrag <<

T

tumaa

der nette @HIGIL schlug mir anderen Plan vor, bin echt froh, dass ich hier noch mal nachgefragt habe, keine Sorge, er kennt sich aus !

Danke auch an die Anderen hier.


PS: Als Gerät wurde mir ein Rotationswärmetauscher empfohlen.



Grundriss eines Wohnhauses mit Eltern- und drei Kinderzimmern, Flur und Dachboden.

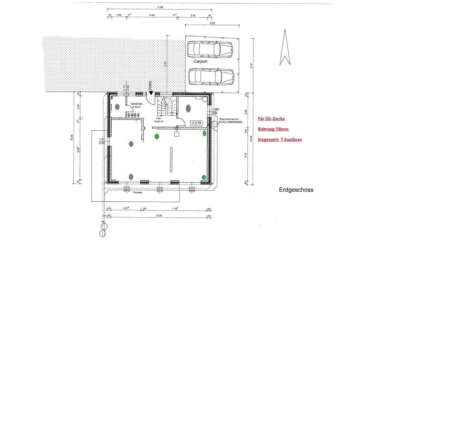
Grundriss Erdgeschoss: Haus mit Carport, Terrasse, Treppenhaus und Raumaufteilung.


Grundriss eines Apartments mit Wohnzimmer, Küche und Bad; Lüftungswege (3 Abluft, 2 Zuluft).
 
Zuletzt bearbeitet:
Mycraft

Mycraft

Moderator
PS: Als Gerät wurde mir ein Rotationswärmetauscher empfohlen.
Warum? Weil diese besonders wartungsanfällig sind und gerne mal kaputtgehen? Des weiteren auch eine unerwünschte Vermischung von Abluft und Zuluft zulassen und auch noch Strom verbrauchen im Gegensatz zu einem üblichen Kreuzwärmetauscher?
 
T

tumaa

Hatte ich vergessen zu schreiben, die Kontrollierte-Wohnraumlüftung ist auch platztechnischen für den Dachboden geplant, gibt es eigentlich dann Bedenken zum Zimmer, bzgl. Geräuschpegel ?




-----------------------------------------------------

Warum? Weil diese besonders wartungsanfällig sind und gerne mal kaputtgehen? Des weiteren auch eine unerwünschte Vermischung von Abluft und Zuluft zulassen und auch noch Strom verbrauchen im Gegensatz zu einem üblichen Kreuzwärmetauscher?
Ich denke aus technischer Sicht, macht es mehr Sinn, wenn er sich dazu äußért ...waren mehrere Aspekte.



Gruß
 
Zuletzt aktualisiert 21.11.2025
Im Forum Wärmepumpen / Lüftungsanlagen gibt es 814 Themen mit insgesamt 11796 Beiträgen


Ähnliche Themen zu Deckenauslässe für Kontrollierte-Wohnraumlüftung, ist das korrekt ?
Nr.ErgebnisBeiträge
1Luft Wärmepumpe auf Dachboden 12
2Lüften im gedämmten Dachboden 23
3V100 oder Rauspund für den Dachboden 16
4Haus ohne Garage und Keller? Ausbau Dachboden? Fresswarze? 85
5Dachboden in neuer Stadtvilla nutzen 21
6OSB-Platten für den Dachboden "erforderlich", trotzdem Aufpreis? - Seite 333
7Gastherme auf Dachboden oder in Hauswirtschaftsraum EG? 10
8Tipps/Dämmkonzept meiner Garage/Dachboden einziehen? incl. Skizze 10
9Estrich notwendig? nicht ausgebauter, aber gedämmter Dachboden 23
10Dachboden Problem. Hohe Luftfeuchtigkeit - Kontrollierte-Wohnraumlüftung? 39
11Suche ein schöne Lösung für den Dachboden - Licht 20
12Dachboden bei Satteldach 22 Grad Dachneigung 31
13Gedämmten Technikraum für die Gastherme auf dem Dachboden schaffe 57
14Isoliertes Trockenbau-Kämmerchen für Kontrollierte-Wohnraumlüftung auf Dachboden 26
15Dachboden Höhe - Wie viel Lagerplatz ist es wirklich? 22
16Dachboden Fußboden aufbauen 24
17Feuchtigkeit im Dachboden. Wärme kommt von der Innenwand. 11
18Pultdach 20Grad - ohne Dachboden? 19
19Sollte die Decke unter dem Dachboden gedämmt werden? 10
20Dicke der Verlegeplatten für Dachboden? - Seite 316

Oben