Deckenauslässe für Kontrollierte-Wohnraumlüftung, ist das korrekt ?

4,00 Stern(e) 5 Votes
Zuletzt aktualisiert 21.11.2025
Sie befinden sich auf der Seite 2 der Diskussion zum Thema: Deckenauslässe für Kontrollierte-Wohnraumlüftung, ist das korrekt ?
>> Zum 1. Beitrag <<

T

tumaa

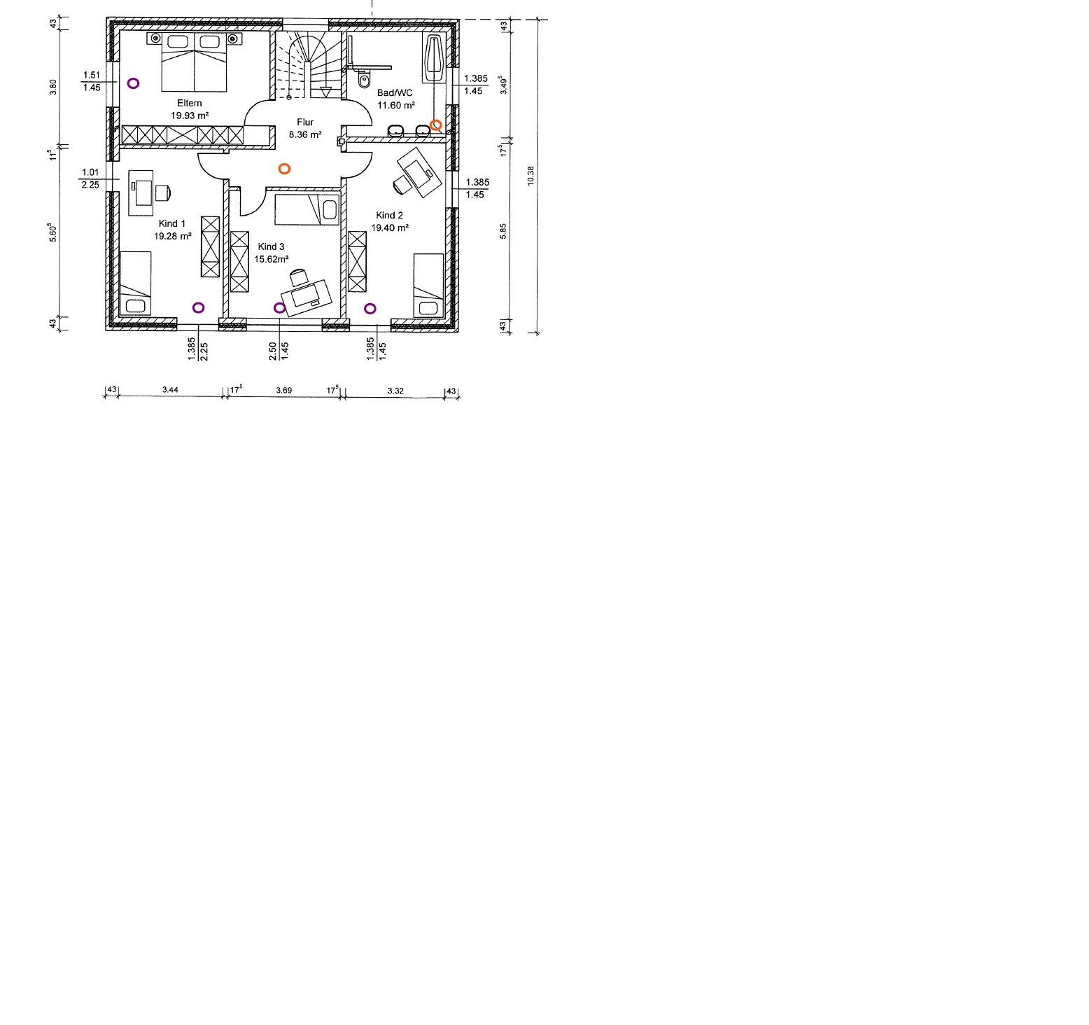
Was sagt ihr, passt alles ?
Muss eigentlich die Statik angepasst werden?

Die Rohre werden also durchs Mauerwerk gezogen, habe anfangs an einer Aussarrung gedacht.
 
B

boxandroof

Auf die Schnelle und ich bin kein Profi:
Bei Nennlüftung sollte die Kontrollierte-Wohnraumlüftung bei ca. 50% Leistung liegen,würde das Gerät unbedingt eine Nummer größer nehmen.

Zwei Ventile bei Eltern wären besser gegen Geräusch und Zugerscheinung bei der hohen Luftmenge.
 
B

boxandroof

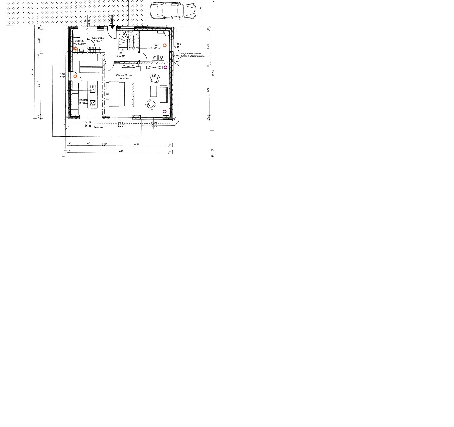
Ist das in der Küche eine geschlossene Speisela,mer oder ein Tresen? Fall geschlossen, dann Ventil dorthin setzen. Und sonst vielleicht auch.

Flur braucht nicht zwingend Abluft, das Treppenhaus wird dann mitbelüftet, die Luft geht ins EG. Nachteil wenn die Etagen nicht ausgeglichn sind: Staub auf der Treppe.
Letztes Bild ist sicher einmal Zu- und einmal Abluft!?
 
Zuletzt bearbeitet:
Zuletzt aktualisiert 21.11.2025
Im Forum Wärmepumpen / Lüftungsanlagen gibt es 814 Themen mit insgesamt 11792 Beiträgen


Ähnliche Themen zu Deckenauslässe für Kontrollierte-Wohnraumlüftung, ist das korrekt ?
Nr.ErgebnisBeiträge
1Kontrollierte-Wohnraumlüftung und Dunstabzugshaube Abluft 10
2Abluft und Zuluft übereinander? 22
3Abluft Vs. Umluft bei eine Kontrollierte-Wohnraumlüftung - Seite 332
4Wohnraumlüftung Anzahl der Zu-und Abluft 11
5Zentrale Kontrollierte-Wohnraumlüftung: Zu- und Abluft, Türbodenspalt 30
6Abluft im Schlafzimmer - Zuluft im Abstellraum 24
7offene Küche: Abluft oder Umluft bei Kontrollierte-Wohnraumlüftung & KfW55 40
8Kontrollierte-Wohnraumlüftung: Positionierung der Zu- und Abluft in meinen Entwürfen 44
9Kontrollierte-Wohnraumlüftung + Kamin + Abluft für Küche, funktioniert das? - Seite 456
10Kontrollierte-Wohnraumlüftung - Planung der Positionen für Zuluft / Abluft 60
11Dunstabzug mit Abluft bei KfW55 27
12Dunstabzugshaube Umluft oder Abluft bei KFW55?? 27
13Badlüfter, reine Abluft mit Feuchtigkeitssensor gesucht 11

Oben